Springe auf Hauptinhalt Springe auf Hauptmenü Springe auf SiteSearch

Fettabscheider als Wärmequelle

Abwasser als Wärmequelle ist besonders dort attraktiv geworden, wo hohe Abwassermengen und Temperaturen vorhanden sind. Beides findet sich häufig in Großküchen der Gastronomie, die folglich optimale Voraussetzungen für eine wirtschaftliche Rückgewinnung der Wärme bieten. Allerdings müssen gewerbliche Verursacher von Abwasser durch geeignete Vorbehandlungsanlagen dafür Sorge tragen, dass Stoffe und Flüssigkeiten, die schädliche und belästigende Auswirkungen zur Folge haben, nur in geringen Mengen in die öffentliche Kanalisation gelangen. Deshalb sind in Betrieben, in denen fetthaltiges Abwasser anfällt, Fettabscheider nach DIN 4040/ DIN EN 1825 einzubauen, um die Zurückhaltung von Fetten und Ölen organischen Ursprungs aus dem Schmutzwasser zu gewährleisten. Die Anwendungsgrundlage ergibt sich aus der DIN 1986–100.

Bei korrekter Auslegung eines Fettabscheiders werden die freiabscheidbaren Fette sowie die Sinkstoffe fast gänzlich zurückgehalten. Die Abwasserqualität hinter einem Fettabscheider steigt. Doch als sinnvolle Wärmequelle wurde der Fettabscheider bislang nicht erkannt und das warme Abwasser folglich ungenutzt der öffentlichen Kanalisation zugeführt. Hier setzt das Abwasserwärme-Rückgewinnungssystem ACO Liputherm an, das die im Abwasser vorhandene Wärmeenergie nutzbar macht.

Funktion und Technik

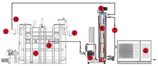
Die Funktionsweise von ACO Liputherm folgt physikalischen Gesetzmäßigkeiten: Das vom Küchenbetrieb generierte warme Abwasser gelangt zunächst über den Zulauf in den Fettabscheider. Über die am Fettabscheider vorgesehene Anschlussmuffe wird dieses Abwasser mittels der Zirkulationseinheit aus dem Ablauf des Abscheiders gezogen. Anschließend fließt das zunächst noch warme Abwasser in den Wärmetauscher, wird dort abgekühlt und gelangt abschließend wieder in den Fettabscheider zurück. Die Temperatur am Ablauf des Fettabscheiders wird hierdurch deutlich gesenkt. Zur Vermeidung von Ablagerungen im Innenraum des Wärmetauschers wird dieser in regelmäßigen Abständen von der Reinigungseinheit gereinigt. Die vom Wärmetauscher gewonnene Energie wird auf den Solekreislauf der Wärmepumpe übertragen und steht somit für verschiedene Anwendungen bereit. Eine Vermischung von Trink- und Abwasser ist somit ausgeschlossen. Zur Vermeidung von Wirkungsgradverlusten durch Verschmutzung der Anlagentechnik, wird die Wärmeübertragungsfläche durch ein integriertes Reinigungssystem in regelmäßigen Abständen gereinigt.

ACO Liputherm ist nicht darauf ausgelegt, den Fettabscheider möglichst schnell abzukühlen. Sinn und Zweck bestehen vielmehr darin, dem anfallenden Abwasser die Wärme möglichst gleich bleibend zu entziehen. Denn nur dann lässt sich die Wärmequelle Fettabscheider effizient für den Wärmerückgewinnungsprozess verwenden. Voraussetzung sind hier neben einer optimalen Reinigung der Wärmeübertragungsfläche auch die strömungstechnische Auslegung sowie die Größe der Wärmeübertragungsfläche des Wärmetauschers. Insbesondere die Reinigung der Wärmetauscherfläche ist eines der technischen Kernelemente von ACO Liputherm. Mit der sogenannten „Wiper-Technology“ ist es ACO Haustechnik gelungen, ein effektives und wartungsarmes Reinigungssystem zu entwickeln.

Neben den aufeinander abgestimmten Komponenten (Wärmetauscher, Wärmepumpe) trägt auch die Temperaturüberwachung des Fettabscheiders durch den Wärmetauscher zum reibungslosen Betrieb bei: Wird ein definierbarer Wert unterschritten, schaltet die Wärmepumpe ab und verhindert damit Entsorgungsprobleme durch ausgehärtete Fette.

Planung und Leistung

Aus Planungssicht ist bei der Auslegung von ACO Liputherm insbesondere auf die drei folgenden Leistungsfaktoren und die damit verbundene Wirtschaftlichkeit zu achten: die Abwassertemperatur, die Betriebszeiten der Küche und der tägliche Abwasserverlauf.

Für den sinnvollen und effizienten Einsatz der Wärmerückgewinnungseinheit muss die Abwassertemperatur nicht zwingend auf einem sehr hohen Niveau liegen. Temperaturen von durchschnittlich 25 °C bis 30 °C sind für das System bereits ausreichend, um den Solekreislauf um einige Grad zu erhöhen und der Wärmepumpe die notwendige Energie zur Verfügung zu stellen. Wesentlich wichtiger sind die Faktoren Dauer und Kontinuität: Je länger und kontinuierlicher Küchenabwasser anfällt, desto effektiver arbeitet ACO Liputherm. Nicht zu vernachlässigen ist dabei auch die Tatsache, dass gerade die nächtliche Küchenreinigung enorm viel warmes Abwasser produziert und die Einheit so ausreichend Energie zur Verfügung stellt. Grundsätzlich gilt: Die Wirtschaftlichkeit des Systems wird maßgeblich von der angeschlossenen Küche beeinflusst.

Neben der technischen Seite verfügt das System auch über eine vorzeigbare Energiebilanz. Der notwendige Energieeintrag aller elektrischen Komponenten des Wärmetauschers beträgt maximal 0,38 kW. Bei optimalen Betriebsbedingungen ergibt sich eine Leistungszahl der Wärmepumpe von 4,7. Dies bedeutet, dass lediglich 1,25 kW (+0,38 kW vom WT) nötig sind, um eine Heizleitung von 5,9 kW zu realisieren. Folglich kann mehr als das 3,5-Fache an Energie aus dem Gesamtsystem entnommen werden, als für den Betrieb der Anlage notwendig ist. Insgesamt stehen drei verschiedene Ausführungen (unterschiedliche Wärmetauscherflächen) zur Verfügung. Die Auslegung von ACO Liputherm richtet sich dabei nach der Größe des vorhandenen bzw. geplanten Fettabscheiders. Drei Leistungsklassen stehen zur Verfügung: 5,5, 10 und 20 (für Fettabscheider NS 2 bis 5,5, NS 7 bis 10 bzw. NS 15 bis 20).

Die anzuschließende Wärmepumpe verfügt über 5,9 kW oder 7,8 kW Heizleistung und lässt sich unterstützend in die Gebäudetechnik integrieren. Der Anschluss an die Warmwasseraufbereitung oder an die Fußbodenheizung sind nur zwei der zahlreichen Anwendungsmöglichkeiten. Nicht unerwähnt bleiben darf in diesem Zusammenhang, dass Wärmepumpen durch das Bundesamt für Wirtschaft und Ausfuhrkontrolle (BAFA) gefördert werden (bis zu 30 % der Nettoinvestitionskosten, maximal 60 000 Euro).

Fazit

Mit ACO Liputherm wurde eine technische Schnittstelle geschaffen, um den Fettabscheider als Wärmequelle für Wärmepumpen nutzbar zu machen. Neben hohen und konstanten Abwassertemperaturen bietet die bereits im Abscheider stattfindende Vorbehandlung von Fetten und Sinkstoffen optimale Bedingungen für eine Wärmerückgewinnung. Das Abwasserwärme-Rückgewinnungssystem leistet einen Beitrag sowohl zum Umweltschutz also auch zum wirtschaftlichen Betrieb von Großküchen. Weitere Informationen hierzu im Internet auf der Seite

www.aco-haustechnik.de

Info

Liputherm in der BKK Akademie Rotenburg

Die BKK Akademie oberhalb der Fachwerkstadt Rotenburg an der Fulda entstand Mitte der 1970er-Jahre. Als Bildungszentrum dient sie für Aus-, Fort- und Weiterbildungsseminare im Bereich der gesetzlichen Krankenversicherung für Krankenkassen. Das Seminarhotel mit Schwimmbad umfasst 218 Einzel- oder Doppelzimmer. Im Rahmen eines Versuchsaufbaus zur energetischen Sanierung wurde hier eine ACO Liputherm Wärmerückgewinnungsanlage installiert und nach erfolgreichen Testläufen um einen Pufferspeicher (800 l), eine Wärmepumpe und eine Entnahmestelle (Lüfter) erweitert. ACO Liputherm produziert ca. 80 kWh pro Tag, die zur Schwimmbaderwärmung genutzt werden können. Die Anbindung der Wärmerückgewinnungsanlage an die Schwimmbadtechnik reduziert den Verbrauch fossiler Energieträger und senkt die Betriebskosten.