Springe auf Hauptinhalt Springe auf Hauptmenü Springe auf SiteSearch
WÄRMEVERTEILUNG

Heizungsrohrnetze sicher auslegen und abgleichen

  • Eine rechnergestützte Berechnung des Heizungsrohrnetzes hilft, technische und rechtliche Nachteile und Probleme zu vermeiden.
  • Die zur Heizflächenauslegung erforderlichen Heizlastdaten lassen sich auch automatisch aus einem integrierten Softwaremodul übernehmen.
  • Sogenannte Verlegeassistenten verringern den Aufwand für die Rohrführung von der Heizfläche zum Steigstrang oder Verteiler.
  • Mittels Dimensionierungsvorgaben und Massenströmen berechnet die Software alle für den hydraulischen Abgleich wichtigen Parameter.
  • Visualisierungen eignen sich nicht nur zur Kollisionskontrolle , sondern lassen sich u. a. für Angebote sowie als Installations- und Montagehilfe nutzen.
  • Die jeweils zum Betrieb passende Softwarelösung hängt primär vom Einsatzzweck, den Projekten und der Nutzungshäufigkeit ab.
  • Nach wie vor werden einfache Heizungsrohrnetze mit der „Dicken-Daumen-­Regel“ überschlägig dimensioniert. Doch das geht nicht immer gut: Fallen die Querschnitte zu gering aus, werden hinterher „notfalls“ Heizkurven angehoben oder leistungsfähigere Heizungspumpen eingebaut, was unnötig hohe Druckverluste und Energieverbräuche sowie eventuell störende Strömungsgeräusche zur Folge hat.

    Wird der Rohrquerschnitt „aus Sicherheitsgründen“ zu groß gewählt, so verursacht das unnötig höhere Kosten für Rohre, Dämmung und Zubehör. Um vor solchen Nachteilen und Problemen und eventuell sogar Schadensersatzklagen von Kunden geschützt zu sein, empfiehlt sich der Einsatz einer rechnergestützten Heizungsrohrnetz-Berechnung. Und nicht zuletzt ist eine präzise Berechnung die Grundlage dafür, dass eine Anlage nach der Einregulierung optimal funktioniert.

    Heizflächen auslegen

    Grundlage der Heizkörper- und Rohrnetzplanung sind in der Regel per DXF-, DWG- oder IFC-Schnittstelle importierte CAD-Architektenpläne mit den entsprechenden Raumdaten. Teilweise ist auch ein Import von Pixel- oder PDF-Daten möglich. Damit können gescannte Papier-Bestandspläne importiert und kalibriert werden, sodass die Heizkörper und das Rohrnetz auf einer separaten Zeichnungsfolie geplant werden können. Liegen weder digitale Daten noch Papierpläne vor, muss der Grundriss oder das Gebäude per 2D-Zeichnungs- bzw. 3D-Gebäudeeditor eingegeben werden.

    Die für die Heizkörperauslegung erforderlichen Heizlast- bzw. Heizleistungsdaten werden entweder zuvor separat berechnet und manuell eingegeben oder automatisch aus einem entsprechenden Heizlast-Softwaremodul übernommen. Danach werden die Heizkörper entsprechend der Raumheizlast gemäß DIN EN 12831-1 und DIN/TS 12831-1 [1], [2] sowie nach VDI 6030 [4] verteilt: entweder manuell gebäude-, geschoss- oder raumweise, entsprechend den technischen und geometrischen Randbedingungen, oder automatisch mithilfe eines Auslegungsassistenten.

    Dabei lässt sich per Voreinstellung beispielsweise definieren,

  • dass die Heizkörperabmessungen durch vorhandene Fenster (Anzahl, Fensterbreite, Brüstungshöhe) bestimmt werden,
  • dass nur Heizkörper einer bestimmten Höhe/Breite/Tiefe verwendet werden,
  • dass nur Heizkörper eines bestimmten Herstellers oder Typs aus den Bauteilkatalogen mit Herstellerdatensätzen nach VDI 3805 [6] ausgewählt werden. Wobei sich diese Vorauswahl später noch ändern lässt.
  • Danach werden die Heizkörper an das Rohrnetz angeschlossen.

    Analog ermöglichen die Programme die Auslegung von Flächenheizungen gemäß DIN EN 1264-3 [5] und unterstützen bei der Ermittlung der günstigsten Vorlauftemperatur oder sinnvoller Verlegeabstände sowie bei der Dimensionierung von Heizkreisen und Verteilern – wahlweise für Gesamtprojekt, Gebäude und Geschoss oder für den einzelnen Raum.

    Die Grundlage der Planung bildet eine möglichst umfangreiche und gut strukturierte Bauteildatenbank.

    Bild: Solar-Computer

    Die Grundlage der Planung bildet eine möglichst umfangreiche und gut strukturierte Bauteildatenbank.

    Rohrnetz berechnen

    Ebenfalls auf Grundlage eines ­Strangschemas, 2D-Grundrisses oder 3D-Modells wird das Rohrnetz ausgelegt. Sind die Anzahl und Lage der Heizkörper festgelegt, kann die Trassenführung im Grundriss, in der Ansicht oder in der 3D-Projektion definiert werden. In dieser Entwurfsphase sind Heizungsleitungen häufig als einfache Systemlinie dargestellt, die der Achse der späteren 3D-Rohrleitungen samt Dämmung entspricht.

    Um die Trassenführung zu erleichtern, enthalten einige Programme einen „Verlegeassistenten“, der Leitungen automatisch innerhalb der Wand oder, entsprechend einem definierten Wandabstand im Estrich, bis zum jeweiligen Steigstrang führt. Werden zwei Leitungssegmente ausgewählt, schlägt das Programm mehrere Verbindungsvarianten zur Auswahl vor. Weitere Funktionen, wie das Kopieren, Drehen, Spiegeln oder Strecken bereits erstellter Teilstrecken, verkürzen ebenfalls die Bearbeitungszeit.

    Die Anbindung der Heizkörper an das Rohrnetz erfolgt automatisch, wobei es mehrere Anschlussvarianten zur Auswahl gibt: gleich- oder wechselseitig, reitend, hängend, mittig etc. Werden Heizkörper hinzugefügt oder entfernt, öffnet bzw. schließt das Programm die Leitungsstränge selbstständig.

    Rohrnetz passend zum Massenstrom

    Wurden die Leitungsführungen im Gebäude vorgegeben und die Heizkörper automatisch angebunden, legt die Software das Rohrnetz entsprechend den Massenströmen aus. Zentrale Randbedingungen sind dabei die maximale Strömungsgeschwindigkeit und der materialabhängige Rohrreibungswiderstand (R-Wert). Prinzipiell lassen sich die Heizungsrohre nach unterschiedlichen (maximalen oder minimalen) Vorgabewerten für den ungünstigsten (längsten) Fließweg dimensionieren.

    Zu den Auslegungsparametern gehören Durchmesser, Dämmdicke, Gesamtdruckdifferenz, Druckgefälle oder Fließgeschwindigkeit. Aus konstruktiven Überlegungen kann auch ein minimaler Durchmesser, beispielsweise DN 10, vorgegeben werden. Übrigens: Andere Heizkörper und Verteiler können alternativ mit einem größeren Druckgefälle angeschlossen werden, wobei dann die Minimierung der Rohrnennweite spätestens von der Strömungsgeschwindigkeit begrenzt wird.

    Mit den Dimensionierungsvorgaben sowie dem (aus Trassenführung und Heizflächenauslegung) jeder Teilstrecke zugeordneten Massenstrom berechnet die Software, unter Berücksichtigung der Ventildaten (Kv-Werte) und formstückabhängigen Widerstandsbeiwerte (Zeta-Werte), die passenden Nennweiten, die Förderhöhe der Umwälzpumpe(n) sowie die Voreinstellwerte für Heizkörperventile und Strangarmaturen für den hydraulischen Abgleich.

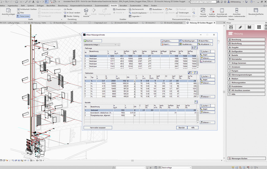
    Eigenschaften und Berechnungswerte jedes Bauteils im Heizungsrohrnetz werden parallel angezeigt.

    Bild: Dendrit

    Eigenschaften und Berechnungswerte jedes Bauteils im Heizungsrohrnetz werden parallel angezeigt.
    Heizungs-CAD ermöglicht auch eine rationelle Planung und Auslegung von Fußbodenheizungen.

    Bild: Hottgenroth

    Heizungs-CAD ermöglicht auch eine rationelle Planung und Auslegung von Fußbodenheizungen.

    Kontrollieren und optimieren

    Mehr Sicherheit bietet eine 3D-modellbasierende Planung des Heizungsrohrnetzes: So lässt sich beispielsweise über eine visuelle oder automatische Kollisionskontrolle prüfen, ob sich Rohrleitungen mit anderen Objekten der Heizungsanlage oder mit Gebäudebauteilen unzulässig überschneiden. Wird parallel auch das Trink-, Abwasser- oder Lüftungsnetz geplant, ist eine TGA-übergreifende Kollisionskontrolle möglich.

    Visualisierungen können ferner für Angebote, die Projektdokumentation oder als Installations- und Montagehilfe eingesetzt werden. Alle aus dem Bauteilkatalog ausgewählten Bauelemente der Heizungsanlage werden mit ihren tatsächlichen Abmessungen und Einbaupositionen genau so dargestellt, wie sie später vor Ort montiert ­werden.

    Diese exakte Vorwegnahme der späteren räumlichen Verhältnisse bietet insbesondere bei beengten Technikzentralen und Installationsschächten handfeste Vorteile: Eine zentimetergenaue 3D-Planung und Visualisierung von Heizkesseln, Pufferspeichern, Armaturen und (ausreichend gedämmten) Rohren klärt schon frühzeitig am Bildschirm, ob die Platzverhältnisse und die Arbeitsbereiche für Installation und Wartung später ausreichen.

    Einige Programme unterstützen auch die Schlitz- und Durchbruchsplanung (HOAI-­Leistungsphase 5). Dabei werden für Rohrleitungen, die Wände oder Decken durchdringen, automatisch die notwendigen Wand- und Deckendurchbrüche generiert. Allerdings ist eine visuelle Kontrolle dennoch erforderlich, um in Kombination mit anderen Öffnungen eine zulassungskonforme Abschottung der Brandabschnitte zu gewährleisten.

    Alle Berechnungsergebnisse lassen sich vielfältig auswerten und ausgeben: Visualisierungen und Diagramme zeigen Temperaturen, Druckverluste, Nennweiten oder Wärmeströme an und vereinfachen damit die Analyse und Optimierung des Rohrnetzes. Stücklisten, Massenzusammenstellungen und Bestelllisten mit Artikelnummern des gewählten Herstellers, nach beliebigen Merkmalen sortiert, vereinfachen die Materialbestellung, Installation und Montage. (PDF-)­Druckoptionen ermöglichen die Ausgabe als Strang-Grafik oder als Tabelle, sortiert nach Bauteilen, Herstellern oder technischen Werten – wahlweise separat für Rohre, Formstücke, Ventile, Regler, Wärmedämmung und Zubehör.

    Visualisierungen sind für Kunden- und Projektbesprechungen oder als Installations- und Montagehilfe nützlich.

    Bild: Trimble

    Visualisierungen sind für Kunden- und Projektbesprechungen oder als Installations- und Montagehilfe nützlich.
    Mit 3D-CAD-/BIM-Software behalten Anwender auch bei komplexen Rohrnetzen den Überblick, wie z. B. über die Heizwasser-Massenströme.

    Bild: Hottgenroth

    Mit 3D-CAD-/BIM-Software behalten Anwender auch bei komplexen Rohrnetzen den Überblick, wie z. B. über die Heizwasser-Massenströme.

    Welche Software wählen?

    Unsere Marktübersicht listet 19 Programme für die Planung und Berechnung von Heizungsrohrnetzen. Diese werden von Software-, teilweise auch von SHK-Produktanbietern offeriert. In der Konzeption, im Funktionsumfang und den Möglichkeiten unterscheiden sie sich teilweise deutlich. Alle Programme unterstützen sowohl die Neuplanung von Heizungsrohrnetzen als auch die Überprüfung bestehender Netze sowie den hydraulischen Abgleich. Offeriert werden Rechenprogramme mit tabellen- oder schemaorientierter Eingabe, 2D-Programme mit integrierter Berechnung bis hin zu 3D-CAD- oder BIM-Lösungen.

    Welche Lösung am besten zum Unternehmen passt, hängt von der Verwendung, den Projekten und der Nutzungshäufigkeit ab. So eignen sich z. B. Rechenprogramme mit tabellarischer respektive Strangschema-orientierter Eingabe vor allem für Installateure ohne CAD-Kenntnisse, die überschaubare Projekte planen oder bestehende Teilstränge überprüfen.

    Auch 2D-CAD führt häufig schneller zum Ziel als die aufwendigere Planung am 3D-Modell – etwa bei einfachen Anlagen für kleine und mittlere Wohngebäude. Ist das Heizungsrohrnetz jedoch weit verzweigt und geht es über mehrere Etagen und Bauabschnitte, ist der Nutzen einer 3D-Eingabe größer als der Mehraufwand bei der Erfassung – vor allem wegen der besseren Übersicht.

    Die Unterschiede zwischen den Programmen liegen im Detail. Sie zeigen sich z. B. in der Art und Weise, wie komfortabel Bauteile aus Bauteilkatalogen ausgewählt und Heizkörper oder Leitungs­trassen automatisch ausgelegt werden oder wie rasch Änderungen im Grundriss oder im Leitungssystem in allen Ebenen umsetzbar sind.

    Und falls die Aufgabenstellung komplexer wird, müssen einige Programme passen. Dazu zählen z. B. gekoppelte Anlagen oder Mehrkesselanlagen mit Pufferspeichern, hydraulischen Weichen, Wärmeüberträgern etc., die als Gesamtsystem und nicht als mühsam aufgeteilte Teilnetze berechnet werden sollen. Auch mit Einspritz-, Verteiler- und Beimischschaltungen sind manche Programme überfordert.

    Derartige Einschränkungen sowie der tatsächlich benötigte Funktionsumfang sollten bei der Programmvorauswahl im Mittelpunkt stehen. Wichtig ist außerdem, beim Preisvergleich die Kosten für den Wartungsvertrag und für eine eventuell zusätzlich erforderliche Basis-Software zu berücksichtigen.

    Für den hydraulischen Abgleich berechnet die Software auch die Voreinstellwerte für Heizkörperventile und Strangarmaturen.

    Bild: liNear

    Für den hydraulischen Abgleich berechnet die Software auch die Voreinstellwerte für Heizkörperventile und Strangarmaturen.
    Berechnungsübersichten und Reports vereinfachen die Planung und Kundenberatung.

    Bild: Graphisoft Building Systems

    Berechnungsübersichten und Reports vereinfachen die Planung und Kundenberatung.

    Richtlinien

    [1] DIN EN 12831-1: Heizungsanlagen in Gebäuden – Verfahren zur Berechnung der Norm-Heizlast, Teil 1: Raumheizlast, Modul M3-3; Beuth/Berlin, September 2017 (vollständig anwendbar nur zusammen mit der Vornorm DIN/TS 12831-1)

    [2] DIN/TS 12831-1 (Vornorm): Verfahren zur Berechnung der Raumheizlast – Teil 1: Nationale Ergänzungen zur DIN EN 12831-1, Beuth/Berlin, April 2020

    [3] DIN/TS 18599-12: Energetische Bewertung von Gebäuden – Berechnung des Nutz-, End- und Primärenergiebedarfs für Heizung, Kühlung, Lüftung, Trinkwarmwasser und Beleuchtung – Teil 12: Tabellenverfahren für Wohngebäude, Beuth/Berlin, April 2021

    [4] VDI 6030, Blatt 1: Auslegung von freien Raumheizflächen – Grundlagen – Auslegung von Raumheizkörpern, Beuth/Berlin, Juli 2002

    [5] DIN EN 1264-3: Raumflächenintegrierte Heiz- und Kühlsysteme mit Wasserdurchströmung – Teil 3: Auslegung, Beuth/Berlin, August 2021

    [6] VDI 3805, Blatt 2: Produktdatenaustausch in der Technischen Gebäudeausrüstung – Armaturen für Heizungen, Beuth/Berlin, Dezember 2021

    [7] DIN EN ISO 11855-1 bis -4: Umweltgerechte ­Gebäudeplanung – Planung, Auslegung, Installation und Steuerung flächenintegrierter Strahlheizungs- und kühlsysteme – Teil 1: Begriffe, Symbole und Komfortkriterien; Teil 2: Bestimmung der Auslegungs-Heiz- bzw. Kühlleistung; Teil 3: Planung und Aus­legung; Teil 4: Auslegung und Berechnung der dynamischen Wärme- und Kühlleistung für thermoaktive Bauteilsysteme (TABS). Beuth/Berlin, April 2022

    Autor

    Dipl.-Ing. Marian Behaneck
    ist Fachautor zahlreicher Publikationen zu Hardware, Software und IT im Bau­bereich.

    Bild: Behaneck

    Jetzt weiterlesen und profitieren.

    + SBZ E-Paper-Ausgabe – jeden Monat neu
    + Kostenfreien Zugang zu unserem Online-Archiv
    + Fokus SBZ: Sonderhefte (PDF)
    + Webinare und Veranstaltungen mit Rabatten
    uvm.

    Premium Mitgliedschaft

    2 Monate kostenlos testen