Springe auf Hauptinhalt Springe auf Hauptmenü Springe auf SiteSearch

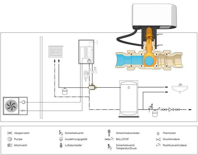
Drei-Wege-Motor-Kugelumschaltventil für Wärmepumpenanlagen

Motor- oder Zonenventile gibt es als Durchgangs-, als Zwei-Wege- oder als Drei-Wege-Ventil. Durchgangs- oder Zwei-­Wege-­Ventile werden als motorisierte Absperrungen eingesetzt oder zum Regeln von Volumenströmen, z. B. mittels thermostatischer Einzelraumreglung. Sie dienen entweder zum Steuern von Verbrauchern oder zum Steuern von Anlagenabschnitten oder werden – wie der Name schon sagt – zum Steuern von Zonen eingesetzt. Drei-Wege-Ventile übernehmen in Wärmepumpenanlagen folgende Aufgaben: das Umschalten zwischen Verbrauchern, wie z. B. Warmwasserbereiter und Heizungssystem, oder das automatische Beimischen des Mediums direkt in den Rücklauf. Dieser Anwendungsfall hat im Vergleich zum Zwei-Wege-Ventil den Vorteil, dass die Wärme/Kälte bis kurz vor dem Verbraucher ansteht und die Geräuschbildung geringer ist. Ein weiterer Vorteil: Beim Zwei-Wege-Ventil wird nur die Zuleitung abgesperrt. Der Strang „stirbt“ so mit der Zeit ab und muss beim Öffnen erst wieder vollständig durchströmt werden.

Ein wichtiges Detail der Serie 645 für den Einsatz in Wärmepumpensystemen ist die Isolierung. Sie sorgt für besonders niedrige Betriebstemperaturen des Wärmeträgermediums und der daraus resultierenden reduzierten Bildung von Kondenswasser. Ein weiteres Plus: die hohe hydraulische Leistung, kombiniert mit der geringen Größe und dem gemeinsamen frontseitigen Anschluss.

Das Ventil kann mit der Ventilspindel in waagrechter oder senkrechter Stellung installiert werden, es darf jedoch niemals über Kopf montiert werden. Zwischen dem Ventilkörper und dem Stellantrieb wird eine Wärmesperre aus Technopolymer montiert, die im Innern zwei Edelstahlwellen und einen Isolierring enthält. Sie verhindert, dass die Wärme vom Medium auf den elektrischen Stellantrieb übertragen wird und es zur Kondensatbildung im Stellantrieb kommt.

Das Drei-Wege-Motor-Kugelumschaltventil der Serie 6445 besteht aus Messing, die Kugel aus verchromtem Messing, Anschlüsse 1" AG mit Verschraubung. Betriebsmedien sind Wasser und Glykollösungen (max. Glykolgehalt 50 %). Der maximale Betriebsdruck liegt bei 10 bar, der Betriebstemperaturbereich bei –5 bis 110 °C.

Technische Merkmale auf einen Blick

Anschlüsse 1" AG mit Verschraubung. Messinggehäuse. Kugel aus verchromtem Messing. Kugeldichtung aus PTFE mit O-Ring aus EPDM. Steuerspindeldichtung mit doppeltem O-Ring aus ­EPDM. Verschraubungsdichtungen mit O-Ring aus EPDM. Betriebsmedien Wasser und Glykollösungen; max. Glykol­gehalt 50 %. Maximaler Betriebsdruck 10 bar. Max. Betriebs-Differenzdruck 10 bar. Stellantrieb aus selbstlöschendem Polycarbonat. Farbe Grau RAL 9002. Dreipunkt-Stellmotor mit Hilfs-Mikroschalter. Betriebsspannung 230 V – 50/60 Hz. Leistungsaufnahme 4 VA. Dynamisches Anlaufmoment 8 N·m. Belastbarkeit der Hilfsschalterkontakte 0,8 A. Schutzart IP 44 mit senkrechter Spindel, IP 40 mit waagrechter Spindel. Schaltzeit (90°-Drehung) 40 s (10 s). Raumtemperaturbereich 0 bis 55 °C.

Ein wichtiges Detail des motorisierten Drei-Wege-Kugelumschaltventils der Serie 6445 für den Einsatz in Wärmepumpen­systemen ist die Isolierung.

Bild: Caleffi

Ein wichtiges Detail des motorisierten Drei-Wege-Kugelumschaltventils der Serie 6445 für den Einsatz in Wärmepumpen­systemen ist die Isolierung.

Tags