Springe auf Hauptinhalt Springe auf Hauptmenü Springe auf SiteSearch

Brandschutz in Hotel- und Beherbergungsgebäuden

Die Muster-Beherbergungsstättenverordnung (MBeVO) enthält besondere Anforderungen für den Bau und Betrieb von Beherbergungsstätten. Aufgrund ihrer betrieblichen Besonderheiten sind Hotel- und Beherbergungsbetriebe grundsätzlich sehr großen Brandgefahren ausgesetzt. Hotelbrände bedrohen nicht nur Unternehmensexistenzen und Sachwerte, sondern in besonderem Maße eine überdurchschnittlich hohe Anzahl von Menschenleben ( Bild 1 ). Die Sicherheit der Gäste und Angestellten ist für das Beherbergungsgewerbe von höchster Bedeutung. Die Vorschriften der Muster-Beherbergungsstättenverordnung gelten für Beherbergungsstätten mit mehr als zwölf Gastbetten.

Begriffe, tragende Wände, Stützen und Decken

Beherbergungsstätten sind Gebäude oder Gebäudeteile, die ganz oder teilweise für die Beherbergung von Gästen, ausgenommen die Beherbergung in Ferienwohnungen, bestimmt sind. Beherbergungsräume sind Räume, die dem Wohnen und Schlafen von Gästen dienen. Gasträume sind Räume, die für den Aufenthalt von Gästen, jedoch nicht zum Wohnen und Schafen bestimmt sind, wie zum Beispiel Speiseräume oder Tagungsräume.

Tragende Wände, Stützen und Decken müssen in Beherbergungsstätten gemäß § 4 der MBeVO feuerbeständig (F90) sein. Feuerhemmende tragende Wände, Stützen und Decken (F30) reichen aus in

  • Gebäuden mit nicht mehr als zwei oberirdischen Geschossen,
  • obersten Geschossen von Dachräumen mit Beherbergungsräumen.

Trennwände

Gemäß § 5 der Muster-Beherbergungsstättenverordnung müssen Trennwände feuerbeständig (F90) sein

  • zwischen Räumen einer Beherbergungsstätte und Räumen, die nicht zu der Beherbergungsstätte gehören
  • zwischen Beherbergungsräumen und Gasträumen oder Küchen.

Wenn die tragenden Wände, Stützen und Decken nur feuerhemmend (F30) sein müssen, genügen feuerhemmende Trennwände (F30).

Die Trennwände zwischen Beherbergungsräumen sowie zwischen Beherbergungsräumen und sonstigen Räumen müssen feuerhemmend (F30) sein.

Brandlasten und Brandklassifizierung

Der Begriff Brandlast wird immer im Zusammenhang mit dem Brandschutz von Gebäuden verwendet. Unter der Brandlast eines Gegenstandes versteht man die Energie, die bei dessen Verbrennung frei wird und damit bei Schutzmaßnahmen für einen möglichen Gebäudebrand zu berücksichtigen ist. Die Brandlast entsteht durch alle brennbaren Stoffe, die in ein Gebäude eingebracht werden. Sie ist von der Menge und vom Heizwert der Stoffe abhängig. Die Brandlast wird in kWh/m² angegeben und ist das auf eine bestimmte Grundfläche – zum Beispiel eine Brandabschnittsfläche – bezogene Wärmepotenzial aller vorhandenen brennbaren Stoffe. Eine Liste mit „Brandlasten für verschiedene Nutzungen“ steht zum Beispiel unter www.bauforumstahl.de zur Verfügung. Hohe Brandlasten entstehen zum Beispiel schon durch eine ungünstige Auswahl von Baustoffen. Deshalb sollte bereits in der Planungsphase des Gebäudes auf eine Reduzierung unnötiger Brandlasten geachtet werden. Nichtbrennbare Materialien mit der Baustoffklasse A sollten immer bevorzugt werden.

In Deutschland ist momentan die Klassifizierung des Brandverhaltens von Baustoffen sowohl nach DIN 4102-1 als auch nach DIN EN 13501-1 möglich. Nur bei Bauprodukten und Bauarten, die der CE-Kennzeichnung unterliegen, ist eine Brandklassifizierung nach der DIN EN 13501-1 zwingend erforderlich ( Bild 2 ).

Rettungswege gemäß Muster-Beherbergungsstättenverordnung

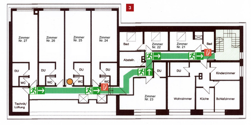
Gemäß § 3 benötigt jeder Beherbergungsraum mindestens zwei voneinander unabhängige bauliche Rettungswege, die innerhalb eines Geschosses über denselben notwendigen Flur führen dürfen. Der erste Rettungsweg muss für Beherbergungsräume, die nicht zu ebener Erde liegen, über eine notwendige Treppe führen; der zweite Rettungsweg über eine weitere notwendige Treppe oder eine Außentreppe. In Beherbergungsstätten mit insgesamt nicht mehr als 60 Gastbetten genügt als zweiter Rettungsweg eine mit Rettungsgeräten der Feuerwehr erreichbare Stelle des Beherbergungsraumes; dies gilt nicht, wenn in einem Geschoss mehr als 30 Gastbetten vorhanden sind. Die Länge zum Erreichen des Ausgangs ins Freie oder eines notwendigen Treppenraums darf maximal 35 m betragen. Gemäß § 6 müssen Bekleidungen, Unterdecken und Dämmstoffe in notwendigen Fluren aus nichtbrennbaren Baustoffen; Bodenbeläge aus mindestens schwerentflammbaren Baustoffen bestehen. Gemäß § 12 sind am Ausgang jedes Beherbergungsraumes ein Rettungswegplan und Hinweise zum Verhalten bei einem Brand anzubringen ( Bild 3 ).

Leitungsanlagen in Rettungswegen

Bei der Verlegung von Leitungsanlagen innerhalb der Rettungswege von Beherbergungsstätten gilt der Abschnitt 3 der Muster-Leitungsanlagen-Richtlinie (MLAR), Fassung 10. Februar 2015 (Redaktionsstand 5. April 2016). Im Abschnitt 3 der MLAR sind die grundlegenden Voraussetzungen für sichere Flucht- und Rettungswege festgelegt. Hiernach dürfen brennbare Leitungen, zum Beispiel Kunststoffrohre, in Flucht- und Rettungswegen nicht frei verlegt werden. In der Regel ist dann eine brandschutztechnische Kapselung durch die Verlegung innerhalb von Unterdecken, Bodenkanälen oder Installationsschächten mit einer Feuerwiderstandsdauer von 30 Minuten (F 30) erforderlich ( Bild 4 ). Nichtbrennbare Leitungen, zum Beispiel gusseiserne Abflussrohrsysteme, dürfen in Flucht- und Rettungswegen frei verlegt werden ( Bild 5 ).

Alarmierungseinrichtungen und Brandmeldeanlagen

Gemäß § 9 der Muster-Beherbergungsstättenverordnung sind Beherbergungsstätten mit Alarmierungseinrichtungen auszurüsten, durch die im Brandfall die Angestellten und Gäste gewarnt werden können. Beherbergungsstätten mit mehr als 60 Gastbetten müssen Brandmeldeanlagen (BMA) mit automatischen Brandmeldern – die auf die Kenngröße Rauch in den notwendigen Fluren ansprechen – und nichtautomatische Brandmelder (Handfeuermelder) zur unmittelbaren Alarmierung der dafür zuständigen Stelle haben.

Die automatischen Brandmeldeanlagen müssen in einer Betriebsart ausgeführt sein, bei der mit technischen Maßnahmen Falschalarme vermieden werden. Brandmeldungen sind unmittelbar und automatisch zur zuständigen Feuerwehralarmierungsstelle zu übertragen.

Abschottungen von Leitungsdurchführungen

Für Leitungsanlagen in Beherbergungsstätten gelten die Anforderungen der Leitungsanlagen-Richtlinien der Länder. Die Abschottungen von Leitungsanlagen müssen entsprechend der geforderten Feuerwiderstandsdauer der Bauteile – gemäß dem projektspezifischen Brandschutzkonzept – ausgeführt werden. Nach der Musterleitungsanlagenrichtlinie (MLAR), Fassung 10. Februar 2015 (Redaktionsstand 5. April 2016) sind zum Beispiel Abschottungen von Abwasserleitungen entweder nach den entsprechenden Verwendbarkeitsnachweisen (Abschnitt 4.1) oder nach den Erleichterungen (Abschnitte 4.2 und 4.3) auszuführen ( Bild 6, 7 und 8 ).

Fazit

Das oberste Ziel der Muster-Beherbergungsstättenverordnung (MBeVO) ist die rechtzeitige Branderkennung und Alarmierung der Hotelgäste, die zum überwiegenden Teil nur eingeschränkt ortskundig sind. Damit die Schutzziele des Brandschutzes sichergestellt sind, ist bei Beherbergungsstätten mit mehr als zwölf Gastbetten – die gemäß Musterbauordnung (MBO) unter die Sonderbauten fallen – grundsätzlich die Erstellung eines spezifischen Brandschutzkonzeptes erforderlich. Das Brandschutzkonzept ist die Basis für eine brandschutztechnisch einwandfreie Ausführung des Hotel- bzw. Beherbergungsgebäudes einschließlich der Rettungswege und der Leitungsanlagen. Zur Minimierung der Brandlasten in Hotel- und Beherbergungsgebäuden sind grundsätzlich Leitungen aus nichtbrennbaren Werkstoffen der Brandklasse A empfehlenswert. Nichtbrennbare Leitungen führen zu keiner Brandlast oder Brandweiterleitung und dürfen in Flucht- und Rettungswegen frei verlegt werden.

Lesen Sie mehr zum Thema im nachfolgenden SBZ-Interview mit Bernd Ishorst.

Info

Gut zu wissen

Bei Beherbergungsstätten mit mehr als zwölf Gastbetten handelt es sich um Sonderbauten im Sinne des § 51 Abs. 1 der Musterbauordnung (MBO). Zur Sicherstellung der Schutzziele des Brandschutzes ist bei Sonderbauten grundsätzlich die Erstellung eines spezifischen Brandschutzkonzeptes erforderlich.

Literatur

  • Muster-Verordnung über den Bau und Betrieb von Beherbergungsstätten (Muster-Beherbergungsstättenverordnung – MBeVO), Fassung Dezember 2000, zuletzt geändert durch Beschluss der Fachkommission Bauaufsicht vom Mai 2014
  • Musterbauordnung (MBO), Fassung November 2002, zuletzt geändert durch Beschluss der Bauministerkonferenz vom 13. Mai 2016
  • Muster-Richtlinie über brandschutztechnische Anforderungen an Leitungsanlagen (MLAR), Fassung 10. Februar 2015 (Redaktionsstand 5. April 2016)
  • Kommentar zur Muster-Leitungsanlagen-Richtlinie (MLAR), 4. Auflage 2011