Bei der Auslegung von Trinkwasserrohrnetzen spielt die Trinkwasserqualität eine zentrale Rolle. Sie wird neben den Rohrwerkstoffen und der Ausführung maßgeblich auch von der Konstruktion und Berechnung des Leitungsnetzes beeinflusst. Die Rohrdurchmesser von Verbrauchs- und Zirkulationsleitungen müssen daher sorgfältig und auf der Grundlage der aktuellen Technischen Regeln berechnet werden.
Prinzipiell besteht die Möglichkeit, Trinkwasserrohrnetze auch manuell mit Taschenrechner oder Excel-Tabellen auszulegen. Einfacher und wirtschaftlicher ist die Planung und Berechnung vor allem großer und komplexer Anlagen allerdings mit den hier vorgestellten Programmen.
 
 Bild: ConSoft
Richtlinienkonform planen
Die normenrechtliche Grundlage für die Auslegung von Trinkwasserrohrnetzen in Gebäuden bildet die DIN 1988‑300 [3]. Sie zielt darauf ab, die Mindestdurchflüsse an allen Entnahmestellen mit den kleinstmöglichen Innendurchmessern sicherzustellen, um Hygieneproblemen durch zu geringen Wasseraustausch und zu geringe Strömungsgeschwindigkeiten vorzubeugen. Zugleich werden Überdimensionierungen und die damit verbundenen Mehrkosten vermieden.
Gegenüber der vereinfachten Bemessung nach der DIN EN 806‑3 [4], die nur für Objekte mit maximal sechs Wohneinheiten und nur unter bestimmten Voraussetzungen zulässig ist, erfasst die nationale Ergänzungsnorm DIN 1988‑300 alle Einflussfaktoren präziser und detaillierter. Nahezu alle in der nachfolgenden Vergleichstabelle vorgestellten Programme offerieren eine Trinkwasserrohrnetz-Berechnung gemäß DIN 1988‑300. Zusätzlich werden die DVGW-Arbeitsblätter W 551 [6], W 551-3 (früher W 557) [7], W 553 [8] und W 575 [9] sowie weitere Richtlinien berücksichtigt.
 
 Bild: Uponor
Automatismen vereinfachen die Planung
Geplant werden Trinkwasserrohrnetze als Strangschemapläne ausgehend vom Systemschnitt des Gebäudes oder als Installationspläne auf der Basis von Grundrissplänen, die im Programm erstellt oder per DXF- oder DWG-Schnittstelle eingelesen werden. Ein IFC-Import ermöglicht die Teilnahme an BIM-Projekten, einige Programme verfügen auch über einen (optionalen) 3D-Modelleditor.
Die gewünschten Verbrauchersymbole werden anschließend in die Grundrisse oder Gebäudeschnitte eingefügt. Dazu werden die Installationsobjekte aus herstellerspezifischen oder neutralen Bibliotheken ausgewählt und platziert. Deren Berechnungs- und Anschlusswerte lassen sich individuell verändern.
Die Trassenführung der Kalt- und Warmwasserleitung wird mit einer Polylinie vorgegeben, die Installationsobjekte werden danach manuell oder automatisch an die Leitungen angeschlossen, deren Rohrmaterial und -dämmung zuvor ausgewählt wurde. Werden neue Verbrauchersymbole eingefügt, entfernt oder verändert, passt sich die Leitungsführung in der Regel selbstständig an.
Einzelne Leitungsstränge und Anlagenteile lassen sich auch geschossweise kopieren und an der neuen Position an das Hauptleitungsnetz anbinden. Diese und weitere Funktionen minimieren den Aufwand beim Erstellen und vor allem beim Ändern von Trinkwasserrohrnetz-Plänen.
 
 Bild: Solar-Computer
Berechnen und optimieren
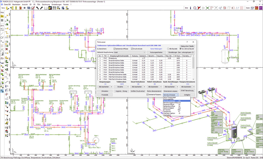
Berechnen lassen sich Trinkwasseranlagen meist entweder aus dem Grundriss, aus dem Leitungsschema oder aus der Tabelle. Bei der hydraulischen Berechnung werden aus den Sanitäreinrichtungen die jeweiligen Durchflusswerte und der minimale Fließdruck übernommen und unter Berücksichtigung von Gleichzeitigkeitsfaktoren der Berechnungs-, Dauer- und Spitzendurchfluss nach DIN 1988‑300 ermittelt.
Die Trinkwasserleitungen werden nach vorgegebener maximaler Geschwindigkeit und maximalem R‑Wert dimensioniert. Herstellerspezifische Rohr-, Formteil- und Ventildatensätze sind in der Regel vorhanden und können individuell oder über Onlinedatenbanken ergänzt werden.
Für eine produktneutrale Planung und Ausschreibung ist die Verwendung der Referenzrohrreihen der DIN 1988‑300 mit den dort angegebenen Werten möglich. Ermittelt werden der Gesamtdruckverlust, der maximale Einzeldruckverlust, Daten für Druckminderer und Druckerhöhungsanlagen, die ungünstigsten Stränge für Kalt- und Warmwasser etc. Ferner werden alle notwendigen Durchflüsse der Zirkulationsleitungen, der Temperaturverlauf und die Einstellung der Zirkulationsventile berechnet.
Die Berechnung erfolgt etagenweise oder für das gesamte Gebäude. Stränge und Etagen können beliebig ausgewählt bzw. kombiniert werden. Neben der Leitungsplanung und -berechnung ist auch eine Optimierung von Rohrleitungsführungen, Regelkomponenten und Pumpen möglich.
Unterstützt werden auch die hydraulische Einregulierung, Inbetriebnahme und ein hygienischer Betrieb des Leitungssystems, beispielsweise über eine Hygienespülungs-Berechnung, welche die erforderliche Durchflussmenge und Dauer für jede Teilleitung ermittelt.
 
 Bild: liNear
Ausgeben und dokumentieren
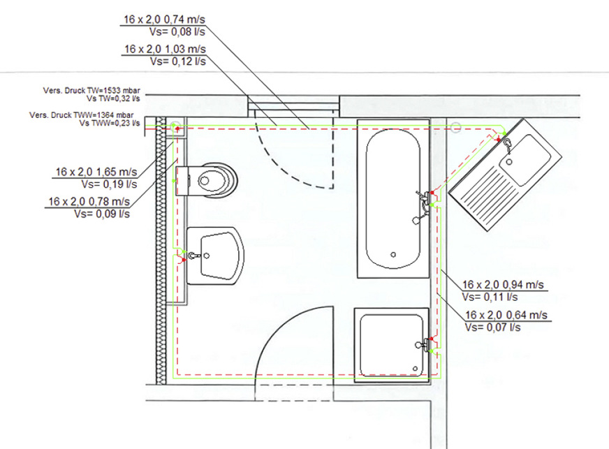
Das Ergebnis ist ein qualifiziertes Strangschema mit allen Angaben – vom eingesetzten Rohrmaterial mit entsprechender Nennweite bis hin zum Mindestfließdruck an jeder Entnahmestelle. Damit lässt sich sowohl die Wirtschaftlichkeit und Betriebssicherheit der Trinkwasser-Installation als auch die Versorgungssicherheit an den Zapfstellen dokumentieren.
Eine grafische Anzeige von Eingabewerten und Berechnungsergebnissen wie Leitungsdimensionen und -materialien, Geschwindigkeiten, Druckverlusten oder ungünstigsten Fließwegen vereinfacht die Planung, Fehlersuche und Bewertung. Ob das Trinkwasserrohrnetz auch tatsächlich funktioniert, ob beispielsweise für das Zirkulationssystem passende Regelventile und Pumpen ausgewählt wurden, lässt sich bei einigen Programmen mithilfe einer Zirkulationssimulation für Neuanlagen oder Bestandsnetze überprüfen, um Schwachstellen im Vorfeld zu analysieren.
Aus dem Schemaplan generierte Stücklisten inklusive aller Leitungsarten, Formteile und Artikelnummern vereinfachen Fachhandwerkern die Angebotskalkulation und Bestellung. Einige Programme geben auch Montagepläne aus oder unterstützen die Schlitz- und Durchbruchsplanung. Die Berechnungsergebnisse werden in Form von Tabellen oder Grafiken dokumentiert und können ausgedruckt oder als PDF-Datei ausgegeben werden.
 
 Bild: Viega
Welche Programme gibt es?
Etwa 25 deutschsprachige Planungsprogramme für Trinkwasserrohrnetze gibt es derzeit (siehe Tabelle und [14]), davon sind 18 Programme in diesem Produktvergleich enthalten. Neben produktunabhängigen Programmen von Softwareherstellern werden auch produktspezifische Berechnungsprogramme von Trinkwassersystem-Herstellern offeriert. Diese beinhalten Rohr-, Formteil- und Ventildatensätze eines Herstellers und unterstützen vor allem Fachhandwerker bei der rationellen Planung, Kalkulation und Bestellung.
Zu den produktunabhängigen Lösungen gehören numerische Berechnungsprogramme mit grafischer 2D-Darstellung sowie CAD-Programme mit angeschlossenen Berechnungsmodulen oder integrierten Berechnungsfunktionen. Letztere ermöglichen eine Berechnung unmittelbar im Modell, ohne zeitraubende und fehleranfällige Datenübergabe. Änderungen im Modell werden automatisch in der Berechnung übernommen und umgekehrt.
Die meisten Programme eignen sich sowohl für einfache als auch für große und komplexe Trinkwasseranlagen im Neubau und Bestand. Integrierte Lösungen ermöglichen auch die parallele Planung von Abwasser- oder Dachentwässerungsanlagen und anderen gebäudetechnischen Gewerken.
Unterschiede zeigen sich in Details, beispielsweise in den Bauteilkatalogen, deren Umfang, Strukturierung oder Erweiterbarkeit oder bei der Berechnung und Ausgabe, wo teilweise elementare Funktionen fehlen. Nicht alle Programme berücksichtigen hierzulande relevante Trinkwassernormen, manchmal fehlen auch wichtige Schnittstellen oder die Programme setzen eine Basissoftware voraus.
 
 Bild: Hottgenroth Software
 
 Bild: Solar-Computer
 
 Bild: Viega
 
 Bild: Hottgenroth Software
 
 Bild: Graphisoft Building Systems
 
 
  
 
  
 
 Quellen
[1] DIN 1988-100: Technische Regeln für Trinkwasser-Installationen – Teil 100: Schutz des Trinkwassers, Erhaltung der Trinkwassergüte; Technische Regel des DVGW, Berlin: Beuth Verlag, August 2011
[2] DIN 1988-200: Technische Regeln für Trinkwasser-Installationen – Teil 200: Installation Typ A (geschlossenes System) – Planung, Bauteile, Apparate, Werkstoffe; Technische Regel des DVGW, Berlin: Beuth Verlag, Mai 2012
[3] DIN 1988-300: Technische Regeln für Trinkwasser-Installationen – Teil 300: Ermittlung der Rohrdurchmesser; Technische Regel des DVGW, Berlin: Beuth Verlag, Mai 2012
[4] DIN EN 806-3: Technische Regeln für Trinkwasser-Installationen – Teil 3: Berechnung der Rohrinnendurchmesser – Vereinfachtes Verfahren, Berlin: Beuth Verlag, Juli 2006
[5] DIN EN 1717: Schutz des Trinkwassers vor Verunreinigungen in Trinkwasser-Installationen und allgemeine Anforderungen an Sicherungseinrichtungen zur Verhütung von Trinkwasserverunreinigungen durch Rückfließen, Berlin: Beuth Verlag, August 2011
[6] DVGW W 551: Trinkwassererwärmungs- und Trinkwasserleitungsanlagen – Technische Maßnahmen zur Verminderung des Legionellenwachstums – Planung, Errichtung, Betrieb und Sanierung von Trinkwasser-Installationen, Berlin: Beuth Verlag, April 2004
[7] DVGW W 551-3 (früher W 557): Hygiene in der Trinkwasser-Installation – 
Teil 3: Reinigung und Desinfektion, Berlin: Beuth Verlag, August 2022
[8] DVGW W 553: Bemessung von Zirkulationssystemen in zentralen Trinkwassererwärmungsanlagen, Berlin: Beuth Verlag, Dezember 1998
[9] DVGW W 575: Ermittlung von Widerstandsbeiwerten für Form- und Verbindungsstücke in der Trinkwasser-Installation, Berlin: Beuth Verlag, Januar 2012
[10] VDI 6003: Trinkwassererwärmungsanlagen – Komfortkriterien und Anforderungsstufen für Planung, Bewertung und Einsatz, Berlin: Beuth Verlag, August 2018
[11] VDI 6023-1: Hygiene in Trinkwasser-Installationen, Blatt 1: Anforderungen an Planung, Ausführung, Betrieb und Instandhaltung, Berlin: Beuth Verlag, September 2022
[12] Kistemann, T.; Schulte, W.; Rudat, K.; Hentschel, W.; Häußermann, D.: Gebäudetechnik für Trinkwasser. Fachgerecht planen – Rechtssicher ausschreiben – Nachhaltig sanieren, Berlin: VDI‑Buch, Springer, 2012
[13] Bäcker, C.: Bemessung von Trinkwasser-Installationen nach DIN 1988‑300, Pfullendorf: Geberit Kompetenzbroschüre, Eigenverlag, 2019
[14] Weitere Produkte und Anbieter (Auswahl): Acado Haustechnik (www.acado.ch), EboCAD Sanitär (www.eboplan.ch), Geberit ProPlanner (www.geberit.com), pit-CAD Heizung-Sanitär (www.pit.de), SpriCAD (Sprinklernetze, www.idat.de), TriCAD MS (www.venturisit.de), Trimble Nova (www.mep.trimble.com), Trinkwasserinstallation DIN 1988‑300 (www.sss2000.de)
 
     
     
  
       
     
     
     
     
    