Springe auf Hauptinhalt Springe auf Hauptmenü Springe auf SiteSearch
Große Solarthermieanlagen planen

Solar im großen Stil

Die jährliche Sonnenstrahlung liegt hierzulande zwischen 900 und 1200 kWh/m2. Die Warmwasserbereitung mithilfe der Sonne ist daher eine naheliegende Anwendung, denn der über das gesamte Jahr relativ konstante Warmwasserbedarf lässt sich mit einer thermischen Solaranlage, die diese Sonnenenergie nutzt, zu einem guten Teil decken (Bild 1). Auch wenn das Heizsystem den Warmwasserbedarf allein bereitstellen können muss, um längere Schlechtwetterperioden zu überbrücken, ergänzt die Solarthermie das Heizsystem um eine wichtige regenerative Komponente.

Bild 1: Energieangebot einer Solaranlage im Verhältnis zum jährlichen Energiebedarf für Warmwasserbereitung (links) sowie im Verhältnis zum jährlichen Energiebedarf für Warmwasserbereitung und Heizung (rechts). Legende: (a) Energiebedarf (Bedarfsanforderung), (b) Energieangebot der Solaranlage, (M) Monat, (Q) Wärmeenergie

Bild: Buderus

Bild 1: Energieangebot einer Solaranlage im Verhältnis zum jährlichen Energiebedarf für Warmwasserbereitung (links) sowie im Verhältnis zum jährlichen Energiebedarf für Warmwasserbereitung und Heizung (rechts). Legende: (a) Energiebedarf (Bedarfsanforderung), (b) Energieangebot der Solaranlage, (M) Monat, (Q) Wärmeenergie

Großflächige Heizkörper mit niedrigen Betriebstemperaturen oder Fußbodenheizungen sind dann sinnvoll, denn die Solaranlage kann nur Wärme abgeben, wenn die Rücklauftemperatur der Heizung niedriger ist als die Temperatur des Solarkollektors. Entsprechend ausgelegt, liefert die thermische Solaranlage bis zu 30 % der benötigten Gesamt-Jahreswärmeenergie für Warmwasserbereitung und Heizung.

Fachhandwerker realisieren solarthermische Anlagen häufig in Ein- und Zweifamilienhäusern. Doch die meisten Wohnungen befinden sich dem Statistischen Bundesamt zufolge in Mehrfamilienhäusern. Ende 2020 gab es 42,8 Millionen Wohnungen, gut die Hälfte davon in Gebäuden mit drei und mehr Wohnungen. Betrachtet man nur die Gebäude ab sieben Wohnungen, beinhalten diese mehr als 5,2 Millionen Wohnungen – ein riesiges, bislang kaum erschlossenes Potenzial für solarthermische Großanlagen.

Ein Grund dafür, dass dieses Potenzial bislang kaum beachtet wurde, liegt auch im Planungsaufwand. Für Ein- und Zweifamilienhäuser gibt es von unterschiedlichen Herstellern viele komplett vorkonfektionierte (Paket-)Lösungen. Größere Anlagen waren früher dagegen mit einer individuellen, aufwendigen und damit auch fehleranfälligen Planung verbunden. Das gilt heute nicht mehr: Für die meisten Anwendungsfälle stehen bewährte Systemlösungen zur Verfügung.

Bild 2: Flach- und Röhrenkollektoren gibt es in unterschiedlichen Ausführungen.

Bild: Buderus

Bild 2: Flach- und Röhrenkollektoren gibt es in unterschiedlichen Ausführungen.

Typen von Solarkollektoren

Es gibt verschiedene Arten von Solarkollektoren mit individuellen Vorteilen. Zu den am häufigsten verwendeten Typen zählen Flachkollektoren und Vakuumröhrenkollektoren aus der Serienproduktion (Bild 2). Überwiegend werden Flachkollektoren eingesetzt, die hohe Erträge liefern – dazu trägt eine hochselektive PVD-Beschichtung des Absorbers bei.

Wenn höhere flächenbezogene Energieerträge gefordert sind, bieten sich Vakuumröhrenkollektoren an. Diese funktionieren nach dem Thermoskannen­prinzip: Zwei ineinandergeschobene Glasröhren sind an den Enden miteinander verschmolzen. Speziell geformte CPC-Spiegel hinter den Röhren fangen die Sonnenstrahlen ein und reflektieren sie auf den Absorber, der sich innerhalb des Vakuums auf der inneren Glasröhre befindet. Vakuumröhrenkollektoren ohne CPC-Spiegel eignen sich besonders für die liegende Montage auf Flachdächern.

Warmwasserbedarf ist maßgeblich

Entscheidend für die fachgerechte Auslegung einer solaren Großanlage ist der individuelle, objektspezifische Warmwasserbedarf. Bei großen Anlagen lässt er sich aufgrund schwankender Bewohnerzahlen und der zeitgleichen Nutzung von Duschen und Bädern nur schwer exakt ermitteln. Diese Anlagen sind deshalb mit besonders großen Toleranzen auszulegen.

Planende Fachhandwerker müssen also sicherstellen, dass die Versorgung mit Warmwasser zu jeder Zeit gewährleistet ist. Auch in Spitzenbedarfszeiten dürfen die Zapftemperaturen nicht sinken. Weil der Größe von Warmwasserspeichern jedoch Grenzen gesetzt sind und eine tägliche Aufheizung der Vorwärmstufe auf mindestens 60 °C vorgeschrieben ist, sind Systeme mit Pufferspeichern sinnvoll.

Für die Planung des Kollektorfelds ist der durchschnittliche Tagesbedarf ausreichend, aber für die Dimensionierung der Pufferumladung und/oder des Vorwärmspeichers sowie der Frischwasserstation werden die maximalen Spitzenzapfvolumina sowie die Dauer der Spitzenzapfung benötigt.

Wird zusätzlich zur Warmwasserbereitung auch eine Heizungsunterstützung gewünscht, ist die Anlage so zu dimensionieren, dass möglichst wenig Stillstand in den Kollektorfeldern entsteht. Stillstand (Stagnation) bedeutet: Es entstehen Temperaturen von mehr als 120 °C in den Kollektoren, aber die solare Wärme wird nicht ins System übertragen, zum Beispiel weil der Speicher bereits eine maximale Temperatur erreicht hat.

Stillstand ist möglichst zu vermeiden, weil er die Alterung der Solarflüssigkeit beschleunigt und langfristig das Kollektorfeld schädigen kann. Wichtig ist deshalb ein ausgewogenes Verhältnis zwischen Kollektorfeldgröße und Pufferspeichervolumen.

Bild 3: Empfehlung von Systemlösungen für Mehrfamilienhäuser nach Anzahl der Wohneinheiten.

Bild: Buderus

Bild 3: Empfehlung von Systemlösungen für Mehrfamilienhäuser nach Anzahl der Wohneinheiten.

Wärmeversorgung als ­Gesamtkonzept

Grundsätzlich muss die Wärmeversorgung eines Gebäudes als Gesamtkonzept betrachtet werden: Es geht nicht nur um die Auslegung des Kollektorfelds, sondern auch darum, den Heizkessel oder die Fernwärme intelligent ins Heizsystem einzubinden, idealerweise mit einer Systemregelung.

Hersteller bieten in ihren Planungsunterlagen Auswahlhilfen zur Orientierung. Abhängig von Warmwasserbedarf, Wasserhärte und vorhandenen Trinkwasserspeichern werden Lösungen mit Frischwasser- oder Wohnungsstationen beziehungsweise Warmwasserspeichern empfohlen (Bild 3).

Um Aussagen zur solaren Deckung der einzelnen Anlage oder zu den Erträgen der Kollektoren treffen zu können, ist eine Simulation der jeweiligen Anlage sinnvoll. Diese Simulation ermöglichen Programme wie T*Sol oder GetSolar. Die richtige Dimensionierung und damit auch eine realitätsnahe Simulation hängen im Wesentlichen von der Genauigkeit der Informationen über den tatsächlichen Warmwasserbedarf ab.

Folgende Werte sind für die Auslegung erforderlich:

  • Warmwasserbedarf pro Tag
  • Tagesprofil des Warmwasserbedarfs
  • Wochenprofil des Warmwasserbedarfs
  • Jahreszeitlicher Einfluss auf den Warmwasserbedarf (zum Beispiel Campingplatz)
  • Warmwasser-Solltemperatur
  • Vorhandene Technik zur Warmwasserbereitung (bei Erweiterung einer bestehenden Anlage)
  • Zirkulationsverluste
  • Wärmebedarf des Gebäudes (für solare Anlagen mit Heizungsunterstützung)
  • Standort
  • Dachneigung (Kollektorneigungswinkel)
  • Dachausrichtung (Kollektorausrichtung nach Süden)
  • Warmwasser-Verbrauchsprofil
  • Länge und Dämmung der Zirkulationsleitung
  • Länge und Dämmung der übrigen Verrohrung
  • Die Auslegung des Kollektorfelds für eine Solaranlage zur Warmwasserbereitung und Heizungsunterstützung ist zusätzlich auch vom Wärmebedarf des Gebäudes und der gewünschten solaren Deckungsrate abhängig. In der Heizperiode wird generell nur eine Teildeckung erreicht.

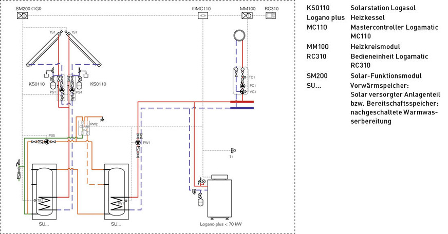
    Bild 4: Anlagenbeispiel einer Zwei-Speicher-­Anlage als Großanlage mit Vorwärmspeicher und Bereitschaftsspeicher; Steuerung der Speicherumladung und thermische Desinfektion gemäß DVGW-Arbeitsblatt W551 durch ein ­Solarmodul.

    Bild: Buderus

    Bild 4: Anlagenbeispiel einer Zwei-Speicher-­Anlage als Großanlage mit Vorwärmspeicher und Bereitschaftsspeicher; Steuerung der Speicherumladung und thermische Desinfektion gemäß DVGW-Arbeitsblatt W551 durch ein ­Solarmodul.

    Warmwasserbereitung mit solarer Vorwärmstufe in Zwei-Speicher-Anlagen

    Ein Anlagenbeispiel: Für bis zu 20 Wohneinheiten lässt sich das System Logasol SAT-R einsetzen – eine Reihenschaltung von zwei Speichern (Bild 4). Die Systemlösung zur solaren Warmwasserbereitung eignet sich auch für eine wohnungsähnliche Nutzung in Wohnheimen oder Hotels. Insbesondere für die Nachrüstung bietet sich ein solches System an, weil der bestehende Warmwasserspeicher weiterverwendet wird. Für die Solaranlage wird ein zusätzlicher Vorwärmspeicher nachgerüstet.

    Bei Großanlagen im Sinne des Deutschen Vereins des Gas- und Wasserfaches (DVGW) muss das Wasser am Warmwasseraustritt des Speichers mindestens 60 °C heiß sein. Der gesamte Inhalt des Vorwärmspeichers ist mindestens einmal am Tag auf mindestens 60 °C zu erwärmen.

    Wenn diese Temperatur in der Vorwärmstufe über den Tag nicht durch die Solaranlage erreicht wurde, wird die Umladung zu einer vorgegebenen Zeit gestartet. Die Solltemperatur für den Bereitschaftsspeicher beträgt mindestens 60 °C.

    Solar-Funktionsmodule der Solarregelung schalten die Pumpe für die Umladung zwischen den beiden Speichern ein, wenn der Vorwärmspeicher wärmer als der Bereitschaftsspeicher ist. Damit werden oberhalb der Solltemperatur beide Speicher beladen und auch der Zirkulationswärmeaufwand lässt sich solar decken.

    Bild 5: Anlagenbeispiel für bis zu 160 Wohneinheiten: solare Warmwasserbereitung mit Frisch­wasserstation und Heizungsunterstützung.

    Bild: Buderus

    Bild 5: Anlagenbeispiel für bis zu 160 Wohneinheiten: solare Warmwasserbereitung mit Frisch­wasserstation und Heizungsunterstützung.

    Solare Warmwasserbereitung mit Frischwasserstation

    Ein weiteres Anlagenbeispiel zeigt die Hydraulik für ein Heizsystem mit solarer Warmwasserbereitung, Frischwasserstation und solarer Heizungsunterstützung (Bild 5). Das System Logasol SAT-FS eignet sich für bis zu 160 Wohneinheiten, „FS“ steht hier für „Frischwasserstation“. Die Frischwasserstation wird abhängig vom Spitzenvolumenstrom ausgelegt. Wenn Messwerte vorliegen, sind diese zu verwenden.

    Bei Mehrfamilienhäusern lässt sich zur Auslegung die DIN 4708 anwenden: Die Norm unterstützt bei der Berechnung des Wärmebedarfs für zentrale Anlagen zur Trinkwasser­erwärmung, sofern die Spitzenbedarfszeiten unter zehn Minuten bleiben.

    Für die Auslegung von Anlagen mit längeren Spitzenbedarfszeiten – beispielsweise in Hotels – lässt sich diese Norm nicht anwenden. Planer und Fachhandwerker können mit der DIN 4708 die Bedarfskennzahl N ermitteln, die sich unter anderem aus der Anzahl der Wohneinheiten sowie deren Belegung und Ausstattung ergibt. Hersteller liefern in den Planungsunterlagen auch Tabellen, aus denen sich die Bedarfskennzahl N sowie der jeweilige Spitzenvolumenstrom nach DIN 4708 (über zehn Minuten) entnehmen lassen (Bild 6).

    Die Warmwasserbereitung mit einer Frisch­wasserstation setzt ein (Bereitschafts-)Pufferspeichervolumen mit einer geeigneten Temperatur voraus. Das erforderliche Volumen hängt zum einen von den Zapfspitzen, zum anderen aber auch von der zur Verfügung stehenden Heizleistung des Wärmeerzeugers und der Pufferspeichertemperatur ab.

    Bereitschaftsvolumen und Kesselbindungszeit lassen sich mit Formeln ermitteln. Buderus bietet hierfür das Simulationsprogramm Diwa an. Tabellen der Hersteller als Auswahlhilfe dienen zur Orientierung für das erforderliche Pufferspeichervolumen.

    Geht es schließlich um den Rohrdurchmesser, hilft die DIN 1988-300 weiter: Hier wird aus der Summe der Einzeldurchflüsse der Warmwasserzapfstellen (Summendurchlauf) ein Spitzenvolumenstrom (Spitzendurchlauf) ermittelt. Die Umrechnung erfolgt über Faktoren in Abhängigkeit des Gebäudetyps.

    Bild 6: Beispiele für den Spitzenvolumenstrom bei 60 °C Wassertemperatur in Wohngebäuden (nach DIN 4708).

    Bild: Buderus

    Bild 6: Beispiele für den Spitzenvolumenstrom bei 60 °C Wassertemperatur in Wohngebäuden (nach DIN 4708).

    Solarthermie mit ­Wohnungsstationen

    Bei der Umrüstung von Etagenheizungen auf eine Heizzentrale bietet sich zur Einbindung regenerativer Energiequellen eine Solaranlage an. Das System Logasol SAT-WS ähnelt den Anlagen mit Frischwasserstationen, jedoch erfolgt die Warmwasserbereitung dezentral in den Wohnungen.

    Vorteile sind die hygienische Warmwasserbereitung im Durchlaufprinzip und relativ geringe Temperaturen im Pufferspeicher für die Versorgung. Mit geringen Systemtemperaturen werden Wärmeverluste reduziert und ein effizienter Betrieb der Wärmeerzeuger wird ermöglicht.

    Die Wohnungsstationen können mit drei Leitungen je Strang versorgt werden. Eine zentrale Trinkwasserzirkulation ist nicht erforderlich. In den meisten Fällen fallen keine Kosten für die regelmäßigen Legionellenpüfungen an. Mit dem Einbau von Wärmemengen- und Kaltwasserzählern in die Wohnungsstationen können die Verbrauchswerte für die Betriebskostenabrechnung eindeutig zugeordnet werden.

    Fazit

    Bei der Sanierung von Mehrfamilienhäusern und im Neubau sind Solaranlagen heute Standard. Systemlösungen erleichtern es, solare Großanlagen schnell und effizient zu planen sowie zu realisieren. Verschiedene Kombinationen mit Warmwasser- oder Pufferspeichern beziehungsweise mit Frischwasser- oder Wohnungsstationen werden auch unterschiedlichen Bedürfnissen von Bauherren, Vermietern und Bewohnern gerecht.

    Fachhandwerker können so maßgeschneiderte Systeme umsetzen und Eigentümer die gesetzlichen Vorgaben einfach erfüllen. Fachgerecht realisiert, profitieren Anlagenbetreiber und Mieter von optimal abgestimmten Systemen und einem hohen Heizungs- und Warmwasserkomfort mit der unterstützenden, kostenlosen Kraft der Sonne. 

    Info

    Systemlösungen für große solar­thermische Anlagentechnik

    Grundsätzlich empfiehlt es sich, für solare Großanlagen auf Systemlösungen der Hersteller zurückzugreifen. Das hat den Vorteil, dass alle erforderlichen Komponenten für eine solare Warmwasserbereitung und gegebenenfalls Heizungsunterstützung mitgeliefert werden und diese aufeinander abgestimmt sind: von den Kollektoren über Warmwasser- oder Pufferspeicher, Frischwasser- oder Wohnungsstation bis hin zu Systemreglern und Pufferentladestationen. Buderus bietet als Systemexperte mehrere unterschiedliche Systemlösungen an:

  • Logasol SAT-R („Solare Anlagen-Technik Reihenschaltung“) für Mehrfamilienhäuser, insbesondere zur Nachrüstung
  • Logasol SAT-FS (Frischwasserstation) für Mehrfamilienhäuser, Frischwasserstation zur hygienischen Trinkwasserbereitung
  • Logasol SAT-VWFS (Vorwärm-Frischwasserstation) für Gebäude ohne größere Zapfspitzen, insbesondere zur Nachrüstung
  • Logasol SAT-VWS (Vorwärmsystem) für große Objekte mit einem täglichen Warmwasserbedarf ab
    etwa 1000 l (60 °C)
  • Logasol SAT-WS mit Wohnungsstationen für die dezentrale Warmwasserbereitung im Durchflussprinzip mit relativ niedrigen Versorgungstemperaturen
  • Autoren

    Susan Stehle
    ist im Produktmanagement Systeme/ Systemkomponenten bei Buderus.

    Bild: Nikolaos Radis

    Michael Gröne
    ist im Produktmanagement Systeme/Systemkomponenten bei Buderus, 35576 Wetzlar,

    Bild: Buderus

    Jetzt weiterlesen und profitieren.

    + SBZ E-Paper-Ausgabe – jeden Monat neu
    + Kostenfreien Zugang zu unserem Online-Archiv
    + Fokus SBZ: Sonderhefte (PDF)
    + Webinare und Veranstaltungen mit Rabatten
    uvm.

    Premium Mitgliedschaft

    2 Monate kostenlos testen