Springe auf Hauptinhalt Springe auf Hauptmenü Springe auf SiteSearch

Vor Ort flexibel mit der digitalen Baustellenmappe fürs Bad

Moderne Badplanungen erfordern eine präzise Kommunikation zwischen Planern, Handwerkern und Kunden. Der Palette CAD Web Viewer bietet praktische Funktionen, die den Arbeitsalltag deutlich erleichtern.

Alle Pläne griffbereit: Mit nur einem Klick können Planer in Palette CAD geplante Räume per Web Viewer teilen. Ein einfacher Haken beim Speichern genügt, um eine Webansicht zu erstellen und diese für Handwerker oder Kunden freizugeben. Die Webansicht ist eine vollständige digitale Dokumentation der Planung und enthält alle Informationen, die für die Umsetzung relevant sind.

Offline-Funktionalität: Die gespeicherten Dateien lassen sich auf Laptop, Smartphone oder Tablet laden und sind anschließend auch ohne Internetzugang jederzeit abrufbar – ideal für den Einsatz auf der Baustelle.

Vielfältige Ansichten: Detaillierte Ansichten und Schnitte durch Räume oder spezifische Objekte ermöglichen einen präzisen Abgleich zwischen Planung und Umsetzung. Das erleichtert insbesondere die Arbeit mit Einbaumöbeln und Sanitäreinrichtungen. Die digitale 3D-Ansicht lässt sich dabei auch wie eine Virtual-Reality-Ansicht interaktiv erkunden. Zusätzlich lassen sich Original-Produktdaten der eingeplanten Sanitärobjekte, wie Preise und Artikelnummern, direkt in der Web-Viewer-Ansicht abrufen.

Ein digitales Exposé führt zu höherer Präzision

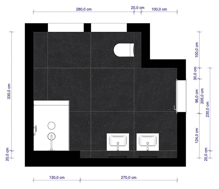
Ein weiterer digitaler Helfer für die Baustelle ist das digitale Exposé, das sich mit wenigen Klicks in Palette CAD generieren lässt. Es enthält sämtliche Vermaßungen, Grundrisse, Frontabwicklung, automatisch generierte Stücklisten sowie technische Angaben, die für die Umsetzung relevant sind. Das Ergebnis: ein effizienter Workflow. Alle notwendigen Informationen sind an einem Ort gebündelt, was Abstimmungen und die Arbeit auf der Baustelle beschleunigt. Auch der Kunde vor Ort erhält einen detaillierten Überblick über die gesamte Badplanung, wodurch Missverständnisse vermieden und Änderungswünsche frühzeitig berücksichtigt werden können.

Mit dem Web Viewer und einem digitalen Exposé wird die Schnittstelle zwischen Büro und Baustelle nahtloser – und das Handwerk profitiert von einem zuverlässigen, digital gestützten Arbeitsprozess. Für SHK-Betriebe bietet diese Kombination eine unschätzbare Arbeitserleichterung: Die Planung ist immer greifbar, Änderungen können sofort berücksichtigt werden, und die Umsetzung erfolgt präzise nach Plan.

www.palettecad.com

Bild: Palette CAD

Mit wenigen Klicks lässt sich in Palette CAD ein Exposé zusammenstellen, inklusive bemaßtem Grundriss (unten), Frontabwicklung (oben) sowie Stücklisten (Bild rechte Seite).

Bild: Palette CAD

Mit wenigen Klicks lässt sich in Palette CAD ein Exposé zusammenstellen, inklusive bemaßtem Grundriss (unten), Frontabwicklung (oben) sowie Stücklisten (Bild rechte Seite).

Bild: Palette CAD

Mehr Badplanung online

Weitere Beiträge rund  um das Thema Badplanung gibt es online unter:

Jetzt weiterlesen und profitieren.

+ SBZ E-Paper-Ausgabe – jeden Monat neu
+ Kostenfreien Zugang zu unserem Online-Archiv
+ Fokus SBZ: Sonderhefte (PDF)
+ Webinare und Veranstaltungen mit Rabatten
uvm.

Premium Mitgliedschaft

2 Monate kostenlos testen