Springe auf Hauptinhalt Springe auf Hauptmenü Springe auf SiteSearch

Trinkwasserhygiene im Stockwerk

Die Durchschleif-Ringinstallation ( Bild 1 ) ist eine Alternative für die Verteilung von Trinkwasser im Stockwerk. Im Gegensatz zu herkömmlichen T-Stück- oder Reiheninstallationen werden hier die einzelnen Entnahmestellen nicht nacheinander, sondern ringförmig von zwei Seiten mit Wasser versorgt ( Bild 2 ). Dazu werden die Warm- und die Kaltwasserleitung am jeweils ersten Verbraucher geteilt und an den weiteren Entnahmestellen mithilfe sogenannter U-Wandscheiben ohne Einzelanbindungsleitungen an den Ring angeschlossen. Dabei hat diese Installationsart nichts mit der Einbindung der Zirkulationsleitung in die Stockwerksinstallation gemein, bei der zum Schutz vor der Verkeimung langer Einzelanbindungen 55 bis 60 °C warmes Wasser dauerhaft im Umlauf ist, was in Schächten, Vorwänden und an Armaturen zu Problemen im Kaltwasserbereich führt. Die Einbindung der Zirkulation in die Stockwerksinstallation muss laut dem DVGW-Arbeitsblatt W 551 ab einem Leitungsvolumen von über 3 l vom „zirkulierten“ Abzweig ins Stockwerk vorgenommen werden. Das Ziel ist es dann, den nicht zirkulierenden Leitungsteil unter 3 l zu halten.

Neben hohen Anforderungen an die Dämmung von Kalt- und Warmwasserleitungen ist diese Installation vor allem aus Sicht des hydraulischen Abgleichs der Zirkulation ein schwieriges Unterfangen. Denn was nützt die Zirkulation im Stockwerk, wenn sie dann – meist völlig unbemerkt – mit 45 bis 50 °C durch die Leitungen „dümpelt“. Hinzu kommt, dass die Verbrauchserfassung mit Etagenwasserzählern eine Einbindung der Zirkulation in die Stockwerksinstallation fast unmöglich macht.

Ganz anders funktioniert die Durchschleif-Ringinstallation, bei der während der Zapfruhe kein Warmwasser zirkuliert. Im Grunde handelt es sich hierbei um eine Parallelschaltung der Warmwasser-Stockwerksleitungen. Alle Zapfstellen werden von zwei Seiten mit Wasser versorgt und alle Leitungsteile der Installation werden bei jeder Zapfung komplett durchspült.

Wo liegen die Vorteile für die Trinkwasserhygiene?

Bei der Durchschleif-Ringinstallation sorgt jede Nutzung eines Verbrauchers dafür, dass das gesamte Stockwerksleitungssystem durchströmt wird. Dementsprechend ist – anders als bei der klassischen T-Stück- oder der Reiheninstallation – Stagnation bei einem üblichen Verbrauchsverhalten ausgeschlossen. Zudem kommen mit der Ringinstallation Einflüsse auf die Trinkwasserhygiene durch die individuelle Nutzung der Zapfstellen, zum Beispiel in einem Mehrfamilienhaus, kaum zum Tragen. Es macht keinen Unterschied, ob die Badewanne weniger häufig als die Dusche genutzt wird oder ob an einem Waschmaschinenanschluss tatsächlich eine Waschmaschine angeschlossen ist. Bei jedem normalen Zapfvorgang wird das Wasservolumen des Leitungssystems vollständig ausgetauscht.

Ebenso wichtig für die Trinkwasserhygiene ist es, das Wasservolumen in den Rohrleitungen möglichst gering zu halten. Dementsprechend müssen in allen Leitungsteilen die Druckverluste reduziert werden, um geringere Rohrdurchmesser zu erreichen. Durch die Parallelschaltung von Widerständen und die Aufteilung des Volumenstroms auf zwei Fließwege weisen Ringleitungen generell niedrigere Druckverluste auf als beispielsweise Reiheninstallationen. Auf diese Weise können sowohl die Rohrdimensionen als auch der Wasserinhalt besonders klein gehalten werden. Damit sind einige der zentralen Forderungen der VDI-Richtlinie 6023 „Hygiene in Trinkwasser-Installationen“ (Stagnationsstrecken vermeiden, Wasserinhalt gering halten und für einen regelmäßigen Wasseraustausch sorgen) erfüllt.

Wie steht es um die Temperaturhaltung im Stockwerk?

Ein Verkeimungsrisiko ergibt sich regelmäßig dann, wenn zwei Bedingungen gleichzeitig erfüllt sind: ungünstiger Temperaturbereich (zwischen 25 °C und 50 °C) und lange Verweilzeiten des Wassers. Daher ist die Kenntnis der Temperaturbereiche einer Installation – zum Beispiel während normaler Zapfruhen etwa an Werktagen – wichtig, um eine hygienisch optimale Lösung auszuwählen.

Im Gegensatz zur Zirkulation wird die Warmwasserleitung bei der Durchschleif-Ringinstallation nicht dauerhaft auf hohen Temperaturen gehalten. Stattdessen sinkt die Warmwassertemperatur während der Zapfruhe in relativ kurzer Zeit unter den kritischen Temperaturbereich von 25 °C ab. Zugleich entfällt das für die Zirkulation typische Aufheizen der Kaltwasserleitung, sodass auch bei längeren Zapfunterbrechungen das Verkeimungsrisiko insgesamt – also für Warm- und Kaltwasserleitungen – minimiert wird.

Bild 3 verdeutlicht anschaulich die Temperaturverläufe in einer typischen Durchschleif-Ringinstallation während der Zapfruhe an einem Werktag nach Verlassen der Wohnung. Innerhalb von ca. 2,5 Stunden fällt die Warmwassertemperatur auf das Umgebungstemperaturniveau. Parallel dazu nähert sich auch die Kaltwassertemperatur der Umgebungstemperatur an. Auf diese Weise befindet sich der Wasserinhalt in keiner der beiden Leitungen über einen längeren Zeitraum im hygienisch ungünstigen Bereich von 25 bis 50 °C.

Zugeständnisse beim Warm-wasserkomfort erforderlich?

Nein, die Ringinstallation sorgt aufgrund des geringen Druckbedarfs für hohen Warmwasserkomfort und optimale Versorgungssicherheit. Dies zeigen etwa Vergleichsberechnungen für eine typische Mehrfamilienhaus-Stockwerksinstallation mit einem Bad und benachbarter Küche. Bei einer T-Stück-Installation wurden hier im Vergleich zur Ringinstallation bei gleichem Druckbedarf sehr geringe Unterschiede hinsichtlich der Ausstoßzeiten für Warmwasser gemäß VDI-Richtlinie 6003 „Trinkwassererwärmungsanlagen – Komfortkriterien und Anforderungsstufen für Planung, Bewertung und Einsatz“ festgestellt. Die T-Stück-Installation liefert nach elf Sekunden 42 °C an der Duscharmatur, während die Durchschleif-Ringinstallation hierfür eine Ausstoßzeit von 15 Sekunden aufweist.

Je nach Anforderungsstufe gibt die VDI-Richtlinie 6003 für eine Dusche Warmwasserausstoßzeiten von 26 bis 7 Sekunden vor. Bei der oben genannten Stockwerksinstallation liegt die Ringleitung demnach ebenso wie die T-Stück-Installation in der Komfortanforderungsstufe 2 und bildet damit einen Kompromiss aus Trinkwasserhygiene und Warmwasserkomfort.

Was ist bei der Planung und Auslegung zu beachten?

Die Durchschleif-Ringinstallation bringt einige Vorteile mit sich, welche die Planung und Auslegung vereinfachen. So kann hier das gesamte Leitungssystem mit nur einem Rohrdurchmesser ausgeführt werden, der zudem sehr klein ausfällt. Bei T-Stück- oder Reiheninstallationen ist dies beispielsweise nicht möglich, da die „in Reihe geschalteten“ T-Stücke zu höheren Druckverlusten und am Anfang der Installation zu größeren Rohrdimensionen führen.

Hinzu kommt, dass das gesamte Stockwerksleitungssystem jederzeit optimal durchströmt wird. Deshalb können die Entnahmestellen und Anschlüsse im Ring in beliebiger Reihenfolge angeordnet werden. Im Gegensatz zu den anderen Installationsarten muss also nicht darauf geachtet werden, dass sich die am häufigsten genutzten Verbraucher generell am Leitungsende befinden. Gleichzeitig lassen sich auch Spülstationen flexibel in das Leitungssystem einbinden ( Bild 4 ).

Aufgrund der Parallelschaltung aller Rohrnetzwiderstände mit kleinstmöglichen Rohrdimensionen liegt die Ringleitung zudem bei einer typischen Wohnungsinstallation in der Regel unter dem im DVGW-Arbeitsblatt W 551 vermerkten Grenzwert von 3 l. Gegebenenfalls sollte die Ringinstallation eher auf zwei kleine Ringe als auf einen Ring, der die komplette Wohnung erschließt, aufgeteilt werden.

Wie wird die Durchschleif-Ringinstallation berechnet?

Da die Versorgung der Entnahmestellen bei Trinkwasser-Ringleitungen von zwei Seiten erfolgt, ist deren Berechnung etwas aufwendiger als die von T-Stück- oder Reiheninstallationen. Bewährt hat sich hier das „Hardy-Cross-Verfahren“, dessen Anwendung auch in der DIN 1988-300 „Technische Regeln für Trinkwasser-Installationen“ empfohlen wird. Anders als die in der Heizungs- und Sanitärtechnik bislang bekannten Druckverlust-Berechnungsmethoden handelt es sich dabei um ein iteratives Verfahren zur Ermittlung der Volumenströme, die sich aufgrund der vorhandenen Widerstände im Ring einstellen.

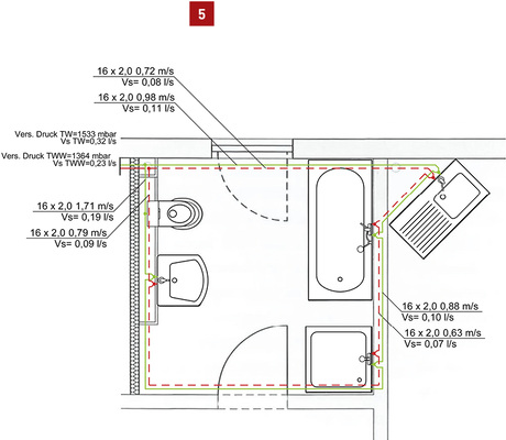
Eine komfortable Lösung bieten hier moderne Planungsprogramme, in denen die Bemessung von Stockwerksinstallationen nach der Hardy-Cross-Methode integriert ist. So können Durchschleif-Ringinstallationen beispielsweise mit der Uponor-HSE-Planungssoftware dimensioniert und analysiert werden. Weiterhin verfügt HSE über eine Funktion zur Strömungssimulation einzelner Entnahmestellen, mit der die Aufteilung der Volumenströme jeder einzelnen Teilstrecke in der Ringleitung überprüft und falls notwendig optimiert werden kann ( Bild 5 ).

Bei der softwaregestützten Auslegung der Durchschleif-Ringinstallation zeigt sich üblicherweise auch die gegenüber anderen Installationsarten höhere Versorgungssicherheit. So stehen hier gegenüber der T-Stück- oder der Durchschleif-Reiheninstallation mehr Druckreserven für die nachträgliche Einbindung von Verbrauchern mit größeren Zapfmengen – wie etwa einer „Rainshower-Brausearmatur“ anstelle einer herkömmlichen Duscharmatur – zur Verfügung.

Wie sieht es mit dem Installationsaufwand aus?

Die Durchschleif-Ringinstallation ist häufig dem Vorurteil ausgesetzt, teurer und aufwendiger zu sein als andere Installationsarten. Dies scheint auf den ersten Blick nachvollziehbar, allein angesichts der größeren Rohrlängen. Bei genauerem Hinsehen zeigt sich aber, dass die Ringleitung etwa im Vergleich zur T-Stück-Installation insgesamt sogar günstiger ist. So schlägt sich die größere Rohrlänge im Ring gerade nicht in höheren Materialkosten nieder. Zwar wird hier mehr Rohr benötigt, dies wird aber durch die kleinere Dimension sowie die geringere Anzahl an Fittings kompensiert.

Darüber hinaus ist die Umsetzung der Durchschleif-Ringinstallation mit deutlich weniger Montageaufwand verbunden, wodurch sich letztlich auch Wirtschaftlichkeitsvorteile ergeben ( Bild 6 ). So werden nicht nur weniger Pressverbindungen benötigt, es entfallen auch Dimensionswechsel beim Material, beim Werkzeug und bei den Fittings. Auf diese Weise lässt sich die komplette Installation mit einem vorgedämmten 4-mm-Rohr normenkonform und wirtschaftlich umsetzen.

Autor

Dipl.-Ing. Matthias Hemmersbach ist Area Application Manager D/A/CH bei der Uponor GmbH in 97437 Haßfurt, Telefon (0 95 21) 6 90-0, E-Mail: matthias.hemmersbach@uponor.com