Springe auf Hauptinhalt Springe auf Hauptmenü Springe auf SiteSearch

Stagnationsfrei zu jeder Zapfstelle

Ein durchschnittliches Hotelzimmer – Luxus-Herbergen hier einmal ausgenommen – stellt aus Sicht des Installateurs und seiner Aufgabe, für eine hygienisch sichere Installation zu sorgen, ähnliche Anforderungen wie Bettenzimmer in Kliniken oder Wohnheimen ( Bild 1 ). Neben dem grundsätzlich ähnlichen architektonischen Zuschnitt und der sanitären Ausstattung kann für die Planung nämlich nicht von einem dauerhaft bestimmungsgemäßen Betrieb ausgegangen werden. Ganz abgesehen von den gesundheitlichen Risiken, denen Gäste ausgesetzt sind, kann ein positiver Befund auf Legionellen als Folge einer stagnierend oder mit mangelnder Temperaturhaltung betriebenen Trinkwasserinstallation für die Betreiber mit enormen wirtschaftlichen Schäden verbunden sein. Die Relevanz der damit verbundenen heutigen Anforderungen an die Rohrnetz-Planung und Dimensionierung wird anhand der vom IHA Hotelverband Deutschland veröffentlichten Daten deutlich. So entstanden in Deutschland in den letzten Jahren jährlich rund 500 Hotelprojekte, während sich der Bestand auf etwa 35 000 Hotels und rund 950 000 Zimmer beziffert. Die durchschnittliche jährliche Belegung wird dabei vom Hotelverband mit etwa 67 % angegeben.

Bestimmungsgemäßer Betrieb bei niedriger Auslastung

Bei der durchschnittlichen Bettenbelegung in deutschen Hospitälern und Kliniken, die jährlich vom Statistischen Bundesamt erhoben wird, zeigt sich abhängig vom Bundesland mit 75 bis 80 % Bettenauslastung zunächst ein positiveres Bild. Berücksichtigt werden muss aber in Wohn- und Pflegeheimen sowie Bettenzimmern in Krankenhäusern ein wichtiger Aspekt, der den bestimmungsgemäßen Betrieb nachteilig beeinflussen kann: Patienten sind häufig gar nicht in der Lage, Dusche, Waschtisch oder Toilette selbstständig zu nutzen, sodass auf Pflegewannen etc. ausgewichen werden muss. Die Trinkwasserinstallation in Bettenzimmern kann so häufig über längere Zeit nicht bestimmungsgemäß betrieben werden.

Insbesondere für diesen Nutzungstyp sollten Möglichkeiten für einen dauerhaft stagnationsfreien Betrieb, wie der Einsatz von automatisierten Spülstationen, geprüft werden. Grundsätzlich bildet das Verteilnetz – hier die Ringinstallation – die Basis für eine konsequente Durchströmung ohne Stagnationszonen. Sie entspricht der in der VDI-Richtlinie 6023 „Hygiene in Trinkwasserinstallationen“ definierten Forderung nach kleinstmöglichen Rohrquerschnitten und Leitungslängen.

Manuelle Spülpläne, als Konsequenz aus den heute noch üblichen T-Stück-Installationen mit ihren stagnierenden Stichleitungen, sind dagegen mit hohen Risiken, Personalaufwand und entsprechenden Wasserverbräuchen verbunden. Bereits 1988 hat das Robert-Koch-Institut in einer Richtlinie das Heranführen der Rohrleitungen bis an die Entnahmestellen möglichst im Ring empfohlen. Heute gibt es komfortable Software-Lösungen, wie Uponor HSE-san, mit der nicht nur die sichere Dimensionierung gemäß DIN 1988-300, sondern auch die Analyse von Ringvolumenströmen abhängig von der Nutzung bestimmter Entnahmestellen möglich ist. So kann das Rohrsystem auf hydraulische Ungleichgewichte und eine turbulente Durchströmung geprüft und ggf. optimiert werden.

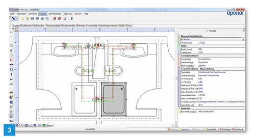
Zusammenfassen sorgt für häufigeren Wasseraustausch

Vor der Dimensionierung der Ringinstallation, die nachfolgend anhand eines typischen Hotelzimmerbades ( Bild 2 ) gezeigt werden soll, steht die Überlegung, wie die Rohrführung der Trinkwasserinstallation innerhalb des Bades erfolgen sollte. Da die Bäder zweier Zimmer in der Regel Wand an Wand gegenüberstehen und nicht selten den gleichen Installationsschacht nutzen, können die Entnahmestellen über die Nutzungseinheiten hinweg ohne große Leitungswege zusammengefasst werden ( Bild 3 ). Sollte also eines der Bäder zeitweise nicht genutzt werden, so sorgen Entnahmen an Dusche, Waschtisch und WC in dem anderen Bad jeweils automatisch für Durchströmung der Leitungen im ungenutzten Bad.

Bei konsequenter Anwendung der Nutzungseinheiten-Methodik entsprechend DIN 1988-300 werden je Badezimmer die Berechnungsvolumenströme der beiden größten Verbraucher einer Nutzungseinheit addiert. Dies entspricht dem Spitzenvolumenstrom eines Badezimmers, mit dem das Rohrnetz später dimensioniert wird.

Spitzenvolumenströme nach DIN 1988-300 variieren kaum

Für den Kaltwasseranschluss eines Badezimmers ergibt sich somit mit Dusche (0,15 l/s) und WC (0,13 l/s) ein Spitzenvolumenstrom von 0,28 l/s. Für die Warmwasserleitung entsprechend 0,22 l/s. Zur Ermittlung des Spitzenvolumenstroms für beide Bäder greift die Gleichzeitigkeitsformel, da sie den geringeren Spitzenvolumenstrom liefert. Je nach Gebäudetyp unterscheiden sich die Konstanten aus Tabelle 3 der DIN 1988-300 und damit auch die ermittelten Spitzenvolumenströme.

Bild 4 liefert eine Gegenüberstellung der Spitzenvolumenströme für eine Nutzungseinheit sowie für beide zusammen. Die mit der Gleichzeitigkeits-Formel ermittelten Werte weisen für die verschiedenen Nutzungen nur sehr geringe Unterschiede auf. Interessanterweise ergeben sich nach DIN 1988-300 im Bettenhaus eines Krankenhauses ebenso große Spitzenvolumenströme wie in einem Hotel. Aus Sicht des Autors ist das eine unrealistische Annahme. Für beide Hotelzimmer zusammen würde sich demnach ein Spitzenvolumenstrom von 0,34 l/s Warmwasser ergeben.

Geht man ganz praktisch davon aus, dass die beiden Badezimmer maximal jeweils von einer Person genutzt werden und dabei mit der Dusche die beiden größten Verbraucher gleichzeitig zum Einsatz kommen (je 0,15 l/s), so kann man auch ohne Gleichzeitigkeitsformel den Spitzenbedarf recht plausibel abschätzen.

Dimensionierung mit Hardy Cross

Die Zusammenfassung von Nutzungseinheiten ist im Grundriss in Bild 3 dargestellt. Das Schema in Bild 5 verdeutlicht zusätzlich die Leitungsführung. Es ergibt sich ein sehr symmetrisches Installationsbild. Kalt- und Warmwasserleitungen werden jeweils nach der Stockwerksabsperrung auf dem Boden liegend, nach rechts und links als Ring durch die beiden Bäder geführt, wo sie in einer durchgehend gleichen Dimension über U-Wandscheiben zum Durchschleifen an die Zapfstellen geführt werden und im Bereich der Stockwerksabsperrung wieder zusammentreffen.

Und woher fließt das Wasser zur Entnahmestelle? Entstehen evtl. sogar Teilstrecken ohne Wasseraustausch? Diese Fragen können mit der Anwendung des sogenannten Hardy-Cross-Verfahrens beantwortet werden, das aus der Berechnung von Stab-Tragwerken in der Statik stammt und sich für die Bemessung von Ringleitungen in kommunalen Versorgungsnetzen schon viele Jahre bewährt hat.

Anders als die in der Heizungs- und Sanitärtechnik bislang bekannten Druckverlust-Berechnungsmethoden, handelt es sich hierbei um ein iteratives Verfahren zur Ermittlung der sich – aufgrund der vorhandenen Widerstände im Ring – einstellenden Volumenströme. Iterativ deshalb, weil die Volumenstromaufteilung zunächst genauso wenig bekannt ist wie die sich daraus ergebenden Druckverluste. Mithilfe eines Korrekturterms wird der Startwert für die Berechnung in Iterationsschleifen solange angepasst, bis dieser gegen Null geht und der Volumenstrom ermittelt ist.

Kompletter Wasseraustausch auch bei teilweiser Nichtnutzung

Das in der Uponor-HSE-Planungssoftware integrierte Verfahren ermöglicht sowohl die Bemessung anhand der ermittelten „normativen“ Spitzenvolumenströme als auch eine Simulation von tatsächlichen Zapfvorgängen. Welchen Weg das Wasser also zur Zapfstelle nimmt und ob dies turbulent strömt, kann realitätsnah ermittelt werden, wie Bild 6 zeigt. Die Dimensionierung des Kaltwasserrings erfolgte im vorliegenden Beispiel mit 20 x 2,25 mm. Der Warmwasserring kann durchgehend mit 16 x 2 mm installiert werden. Obwohl zwei Badezimmer an einem Ring angeschlossen sind, liegt der Warmwasserinhalt mit 2,3 l unter der Drei-Liter-Grenze aus DVGW-Arbeitsblatt W551, was mit einer Durchschleif-Reiheninstallation aufgrund der in Reihe geschalteten Widerstände nicht möglich wäre. Damit wird das Einschleifen der Zirkulation bis zur Entnahmestelle vermieden.

Es ergeben sich so nahezu ideale Verhältnisse, auch bei der Aufteilung der Ringvolumenströme. Jeder Zweig des Rings fördert etwa 50 % des Volumenstroms, was zu einem sehr geringen Druckverlust und gleichmäßiger Durchströmung führt. Was passiert aber, wenn aufgrund eines Leerstandes ein Bad überhaupt nicht und im anderen nur WC und Waschtisch benutzt werden?

Bild 7 zeigt, dass auch bei einseitiger Nutzung der Installation die Durchströmung gewährleistet ist. Zur Simulation dieses Anwendungsfalls in der Software bleiben die Entnahmestellen einfach rechnerisch unberücksichtigt, sodass sich nur der Berechnungsvolumenstrom des im linken Bad genutzten Waschtisches und des WCs auf den Ring verteilt. Das Ergebnis: Auch in diesem kritischen Anwendungsfall wird der Ring komplett durchströmt. Das im ungenutzten Installationsteil befindliche Kaltwasser wird bereits nach 32 Sekunden Zapfung am Waschtisch und der Inhalt der Warmwasserleitung innerhalb von 48 Sekunden ausgetauscht.

Fazit

Die Planung und Installation von Trinkwasserrohrnetzen muss dem Gebäudetyp und der Nutzung Rechnung tragen. Wenn die Badbereiche in Hotel- oder Bettenzimmern zeitweise nicht genutzt werden, müssen Maßnahmen für die Aufrechterhaltung des bestimmungsgemäßen Betriebs getroffen werden. Basis für Trinkwasserhygiene sind dabei immer durchdachte Planungslösungen, die ein Maximum an Durchströmung und ein Minimum an Wasserinhalt bieten.

Ringinstallationen können mit moderner Planungssoftware sicher dimensioniert und hinsichtlich ihrer Durchströmung analysiert werden. Die Verwendung der Software ermöglicht dem Planer oder Installateur damit die volle Kontrolle über die trinkwasserhygienisch relevanten Strömungsbedingungen in der Installation.

Autor

Dipl.-Ing. Matthias Hemmersbach ist Area Application Manager CE bei der Uponor GmbH in 22415 Hamburg, Telefon (0 40) 3 09 86-4 18, E-Mail: matthias.hemmersbach@uponor.com