Springe auf Hauptinhalt Springe auf Hauptmenü Springe auf SiteSearch
Badgestaltung

Was macht die Dusche im Gäste-WC?

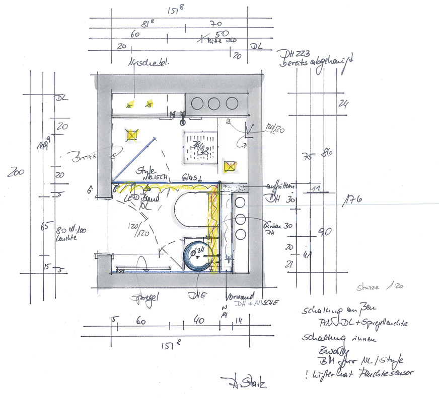
Die Ausgangslage: Für die Badrenovierung einer Eigentumswohnung soll wieder mit einer Dusche, aber zusätzlich mit einer Badewanne geplant werden. Für das gegenüberliegende Gäste­-WC ist lediglich eine Auffrischung mit neuem Porzellan vorgesehen. Im Zuge der Badplanung stellt sich heraus, dass das Platzangebot für eine Badewanne und eine möglichst große Dusche nicht ausreicht und zwangsläufig zu einer Badewannen-­Dusch­-Kombination führen muss. Das Gäste-­WC hingegen, das im täglichen Leben des Eigentümers eine untergeordnete Rolle spielt, ist recht großzügig geschnitten. Um eine Lösung zu finden, die dem heutigen Standard und den gehobenen Ansprüchen des Bauherrn genügen kann, wurden beide Räume geprüft und eine ganz neue Idee entwickelt.

Der Plan: Der Zuschnitt des Gäste­-WCs bietet sich an, die linke Raumhälfte mit einer großzügigen Duschzone zu belegen und den eigentlichen Bereich für die Gäste hinsichtlich des Platzbedarfs auf ein Minimum zu reduzieren. Der bestehende Installationsschacht wird zur Installationswand verlängert und mit einer großen Nische versehen, in der Shampoo und sonstige Duschutensilien abgelegt werden können. Über die gesamte Raumbreite wird ein Duschpodest erstellt, das mit einer Tiefe von 75 cm und einer Breite von 150 cm ein bequemes Duschen ermöglicht. Auf den verbleibenden 100 cm teilen sich WC und eine kleine Waschschale den Platz, um weiterhin als Gäste­-WC zu fungieren.

Über die gesamte Raumbreite wird ein Duschpodest erstellt, das mit einer Tiefe von 75 cm und einer Breite von 150 cm ein bequemes Duschen ermöglicht. Auf den verbleibenden 100 cm teilen sich WC und eine kleine Waschschale den Platz.

Bild: Stark / Müller Verlag

Über die gesamte Raumbreite wird ein Duschpodest erstellt, das mit einer Tiefe von 75 cm und einer Breite von 150 cm ein bequemes Duschen ermöglicht. Auf den verbleibenden 100 cm teilen sich WC und eine kleine Waschschale den Platz.
1 Eine raumbreite Entwässerungsrinne auf der Längsseite der Duschzone umgeht Gefälleschnitte in den Bodenfliesen und ermöglicht eine Glasabtrennung ohne Schrägschnitte.

Bild: Stark / Müller Verlag

1 Eine raumbreite Entwässerungsrinne auf der Längsseite der Duschzone umgeht Gefälleschnitte in den Bodenfliesen und ermöglicht eine Glasabtrennung ohne Schrägschnitte.

Raumbreite Entwässerungsrinne

Alle Raffinessen der Innenarchitektur werden genutzt, um in diesem recht kleinen Raum eine maximale Großzügigkeit zu vermitteln. Die Formensprache ist sehr reduziert, die Fliesengröße hingegen maximiert, die Farben hell und warm und Linien werden zwingend übernommen. Die Lichttechnik spielt eine große Rolle und auch das Kontrastspiel wird berücksichtigt. Eine raumbreite Entwässerungsrinne auf der Längsseite der Duschzone umgeht Gefälleschnitte in den Bodenfliesen und ermöglicht eine Glasabtrennung ohne Schrägschnitte.

Formreduzierte Armaturen regeln den Wasserfluss von der flächig verbauten Regendusche in der Abhangdecke und die getrennt zu steuernde Stabhandbrause im Halter. Die maßgefertigte Glasscheibe wird ohne Profile mit der deckenhohen Vorwand am WC verklebt. Nur die Pendeltür in Flucht muss mit zwei Scharnieren befestigt werden, um ihren Zweck zu erfüllen. Vorgewärmte Handtücher findet der Badbenutzer mit einem Handgriff gegenüberliegend auf dem seitlich offenen Badheizkörper.

Großformatige Fliesen, wenig Fugen

Das Fliesenformat von 120 cm × 120 cm ist gerade noch zu verarbeiten, stellt den Fliesenleger allerdings vor große Herausforderungen. Die einzige durchlaufende Querfuge an der Wand trägt die Armaturen in der Dusche und bedingt die Nischenhöhen auf beiden Vorwandseiten. Alle Kanten sind auf Gehrung geschnitten, um Schienenprofile zu umgehen. Das helle Feinsteinzeug befindet sich auf dem Boden und an zwei Wänden des neu gestalteten Raums. Bedingt durch die Duschgröße muss auch die gegenüberliegende Kopfseite der Dusche wasserfest geschützt werden. Mit einem kupferfarbenen kleinteiligen Format von 10 cm × 20 cm wird ein effektvoller Kontrast gesetzt. Die Kupferfliesen ziehen sich bis in die Rückseite der Shampoonische hinein und schaffen eine harmonische Verbindung.

Die Vorwandschale hinter WC und Wasch­gelegenheit wird deckenhoch ausgebildet. Das kurze Wand­-WC ist zwar in der Breite auf das Minimum von 60 cm reduziert, bietet aber viele andere Vorteile. Neben der spülrandlosen Ausführung des Porzellankörpers verfügt das Unterputzmodul über eine automatische Geruchsabsaugung, die Sitzhöhe kann, falls nötig, manuell verstellt werden und die Spülauslösung funktioniert berührungslos. Der große optische Vorteil ist die schwarze Glasplatte, die auch die Optik des daneben schwebenden Glasbeckens bestimmt.

Der Holzwürfel am Waschplatz

Unter der Glasschale, die mit den passenden Wandarmaturen kombiniert ist, übernimmt ein individuell entworfener Holzwürfel mehrere Funktionen. Er trägt die Glasschale ebenso wie den eingebauten Toilettenpapierhalter und verbirgt den benötigten Durchlauferhitzer hinter der auf Gehrung geschnittenen Holztür. Diese Funktionen nehmen sich optisch hinter weiß lackiertem Holz schlicht zurück.

Eine breite Nische – beginnend an der gleichen Unterkante wie die Duschnische – dient als Ablagefläche. Quer spannt sich eine Aufbauleuchte in 100 cm Breite, die die Höhe des angedachten Spiegels von 60 cm begrenzt. Dieser verläuft auch an der rechten Wandseite bis hinter den Heizkörper hindurch. Während der Bauphase wird spontan entschieden, dass der über dem Becken befindliche Spiegel entfallen soll, um die Fliesenwand nicht in ihrer Wirkung zu unterbrechen.

Licht für jede Stimmung und Tageszeit

Die Lichttechnik spielt eine große Rolle. Der kurze Besuch in dem Raum wird durch die automatisch geschaltete Lichtleiste im Untertritt des Duschpodestes begleitet. Das warme Licht erhellt den Boden, zeigt den Weg und unterstreicht das Podest. Zeitgleich sind die kleinen Spots in der Shampoonische geschaltet, die die Kupferfliesen extra in Szene setzen. Die beiden Deckenspots und die breite Spiegelleuchte sorgen für ein einzigartiges Licht­- und Farbspiel im neuen Duschbad. Sie lassen sich nicht nur in der Helligkeit regeln, sondern können zusätzlich ganz nach individuellem Kundenwunsch den gesamten Raum in eine andere Buntfarbe tauchen. Für den täglichen Gebrauch können sie zudem den Badbenutzer zu jeder Tageszeit mit biodynamischem Licht mit der richtigen Lichtfarbe positiv unterstützen.

2 Formreduzierte Armaturen regeln den ­Wasserfluss von der flächig verbauten Regendusche in der Abhangdecke und die getrennt zu steuernde Stabhandbrause im Halter.

Bild: Stark / Müller Verlag

2 Formreduzierte Armaturen regeln den ­Wasserfluss von der flächig verbauten Regendusche in der Abhangdecke und die getrennt zu steuernde Stabhandbrause im Halter.
3 Mit einem kupferfarbenen, klein­teiligen Format von 10 × 20 cm wird ein effektvoller Kontrast gesetzt.

Bild: Stark / Müller Verlag

3 Mit einem kupferfarbenen, klein­teiligen Format von 10 × 20 cm wird ein effektvoller Kontrast gesetzt.
4 Quer durch den Raum spannt sich eine Aufbauleuchte in 100 cm Breite, die die Höhe des angedachten Spiegels von 60 cm begrenzt.

Bild: Stark / Müller Verlag

4 Quer durch den Raum spannt sich eine Aufbauleuchte in 100 cm Breite, die die Höhe des angedachten Spiegels von 60 cm begrenzt.
Der Holzwürfel trägt die Waschschale, den eingebauten Toilettenpapierhalter und verbirgt einen Durchlauferhitzer.

Bild: Stark / Müller Verlag

Der Holzwürfel trägt die Waschschale, den eingebauten Toilettenpapierhalter und verbirgt einen Durchlauferhitzer.
Die beiden Deckenspots und die breite Spiegelleuchte sorgen für ein einzigartiges Licht­ und Farbspiel im neuen Duschbad. Sie lassen sich nicht nur in der Helligkeit regeln, sondern können zusätzlich ganz nach individuellem Kundenwunsch den gesamten Raum in eine andere Buntfarbe tauchen.

Alle Bilder: Stark / Müller Verlag

Die beiden Deckenspots und die breite Spiegelleuchte sorgen für ein einzigartiges Licht­ und Farbspiel im neuen Duschbad. Sie lassen sich nicht nur in der Helligkeit regeln, sondern können zusätzlich ganz nach individuellem Kundenwunsch den gesamten Raum in eine andere Buntfarbe tauchen.

INFO

Biodynamisches Licht

Biodynamisches Licht – auch als Human Centric Lighting (HCL) bekannt – stellt das individuelle Lichtbedürfnis des Menschen in den Vordergrund. Mit LED-Technologie und Lichtsteuerung wird Innenraumbeleuchtung so regulierbar, dass immer das dem Tageslicht entsprechende richtige Licht Menschen in Innenräumen durch den Tag begleitet. Durch voreingestellte Farbwerte wird die Lichtfarbe der Leuchten über den Tag so geregelt, dass der Weißton dem aktuellen Weißton des Tageslichts möglichst genau entspricht. Der ist am Morgen eher aktivierender, gegen Abend beruhigender. Das fördert den Biorhythmus, die Vitalität und Leistungsfähigkeit, denn die positive Wirkung des Sonnenlichts gelangt so in Innenräume.

SBZ-Lesetipp

Handbuch: Bäder neu gestalten

„Bäder neu gestalten“ von Andrea Stark ist in neuer Auflage erschienen. Die 2. Auflage ist aktualisiert und wurde mit zahlreichen neuen Badbeispielen aus der Praxis der Autorin erweitert. Diese zeigen u. a. viele zeitgemäße Gestaltungsideen mit Fliesen sowie individuelle Lösungen für schwierige Raumsituationen. Das Buch ist Inspiration und Ideensammlung für alle, die sich mit der Umgestaltung von Bädern im Bestand beschäftigen. Mit ihrer umfangreichen Kollektion an reich bebilderten Beispielen aus der Praxis bietet die Sammlung Badplanern, Architekten, Fachunternehmern mit Planungsaufgaben und nicht zuletzt auch den Bauleuten viele Anregungen für den Umbau und die Modernisierung von Bädern zu moderaten Kosten.

Ob kleine Bäder, barrierefreie Bäder oder Dachgeschossbäder – das Handbuch liefert Gestaltungskonzepte für unterschiedliche Raumsituationen und zeigt die Umsetzung verschiedenster Bauherrenwünsche an konkret realisierten Badezimmern. Alle Beispiele sind Komplettlösungen, die das Zusammenwirken von Raumaufteilung, Wand- und Bodengestaltung, Möblierung, Farbe und Beleuchtung zeigen. Jedem Badbeispiel sind die Wünsche der jeweiligen Bauherren, evtl. die spezielle Heraus­forderung des betreffenden Raumes sowie ein Grundriss, an dem sich die beschriebenen Umbauten gut nachvollziehen ­lassen, vorangestellt. Zahlreiche Skizzen und Fotos veranschau­lichen die neu gestalteten Bäder. Des Weiteren ergänzen theoretische Grundlagen rund um die Badplanung die Beispielsammlung.

Die Eckdaten:
„Bäder neu gestalten – Konzepte zwischen Standard und Luxus“
von Andrea Stark,
21,0 x 29,7 cm, gebunden,
316 Seiten mit 558 farbigen Abbildungen, 59 Euro,
Verlagsgesellschaft Rudolf Müller, ISBN Buch: 978-3-481-04144-1, ISBN E-Book: 978-3-481-04145-8.

Bild: Rudolf Müller

Autorin

Die Innenarchitektin Andrea Stark-­Niehaus 
ist seit mehr als 25 Jahren im Bäderbau mit „Starkberaten“ tätig. Sie hält Vorträge zur Ausstattung von Badezimmern, gibt Seminare zur Badplanung und -gestaltung und ist Fachautorin.

Bild: Andrea Stark

Jetzt weiterlesen und profitieren.

+ SBZ E-Paper-Ausgabe – jeden Monat neu
+ Kostenfreien Zugang zu unserem Online-Archiv
+ Fokus SBZ: Sonderhefte (PDF)
+ Webinare und Veranstaltungen mit Rabatten
uvm.

Premium Mitgliedschaft

2 Monate kostenlos testen