Springe auf Hauptinhalt Springe auf Hauptmenü Springe auf SiteSearch
  • Home
  • Alle Artikel zum Thema Gäste-WC

Alle Artikel zum Thema Gäste-WC

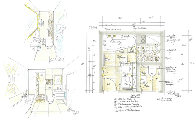
Der Zuschnitt des Gäste-­WCs bot sich an, die linke Raumhälfte mit einer großzügigen Duschzone zu belegen und den eigentlichen Bereich für die Gäste hinsichtlich des Platzbedarfs auf ein Minimum zu reduzieren.
Badgestaltung

Was macht die Dusche im Gäste-WC?

-

Badgestaltung mit Farben, Formen und Werkstoffen ▪ Eine Dusche im Gäste-WC, das Fliesenformat mit 120 x 120 cm gewaltig groß, dazu biodynamisches Licht: Was als einfache Renovierung begann, endete als ein Musterbeispiel moderner Badgestaltung. Die gestalterische Linie wird geprägt durch das Spiel mit Kontrasten, in der Materialität ebenso wie bei der Beleuchtung und den Farben. → Andrea Stark-Niehaus

Bad und Gäste-WC bleiben getrennte Räume, aber mit einer anderen Flächenverteilung: Das Gäste-WC „schrumpft“, der gewonnene Raum wird dem Hauptbad zugeschlagen. In die Nische kommt eine Dusche, die es vorher im Bad nicht gab. Die neue trapezförmige Badewanne erleichtert den Zugang. Aus verständlichen Gründen der Intimität sollte das Gäste-WC unbedingt für die Gäste des Hauses beibehalten werden, um das Badezimmer ausschließlich für den Privatgebrauch vorsehen zu können.
Raumgestaltung mit Optionen

Bad-Renovierung: Kleines Bad und Gäste-WC planen

-

Wie so häufig sind Kundenwünsche bei Gäste-WC- und Bad-Renovierung größer als die Räume. Beispiele für die Planung mit Lösungsvorschlägen finden Sie im Beitrag.

Bad und Gäste-WC bleiben getrennte Räume, aber mit einer anderen Flächenverteilung: Das Gäste-WC „schrumpft“, der gewonnene Raum wird dem Hauptbad zugeschlagen. In die Nische kommt eine Dusche, die es vorher im Bad nicht gab. Die neue trapezförmige Badewanne erleichtert den Zugang. Aus verständlichen Gründen der Intimität sollte das Gäste-WC unbedingt für die Gäste des Hauses beibehalten werden, um das Badezimmer ausschließlich für den Privatgebrauch vorsehen zu können.
Raumgestaltung mit Optionen

Gut geplant ist halb gewonnen

-

Raumgestaltung mit Optionen ▪ Der Badumbau in einer Eigentumswohnung liegt an. Wie so häufig ist die Liste der Kundenwünsche größer als das Platzangebot. Ein nebenliegendes Gäste-WC soll außerdem aufgehübscht werden, aber Fliesenarbeiten oder Ähnliches sind nicht angedacht, um das Umbaubudget nicht übermäßig zu strapazieren. Das kennen viele Badplaner: Mit diesen Gedanken im Kopf fragt der Bauherr nach einem schlüssigen Konzept. Die Aufgabe besteht nun darin, die Gestaltungswünsche zu erfüllen. Außerdem wichtig: Da der Baubestand nicht ganz einfach einzuschätzen ist, müssen für manche Punkte mehrere Varianten durchdacht werden. Der Beitrag schildert das Vorgehen exemplarisch, angereichert mit Lösungsvorschlägen aus diversen Projekten. → Andrea Stark

Kreativ

Außergewöhnliche Siphonie

-



Anbei ein Foto, das einer unserer Monteure bei einem Kunden in Köln im Gäste-WC geschossen hat. Gott sei Dank hat das kein Installateur eingebaut. In diesem Fall hat der Kunde sein Handwaschbecken selber angeschlossen. Auf jeden Fall sehenswert.






Rolf Müller






...

So überraschend kann ein kleines Gäste-WC aussehen. Warm und wohnlich — von Langeweile keine Spur.
Die drei prämierten Badprofis und ihre Gäste-WCs

Top-Bäder der Kategorie Gäste-WC

-

 

Ende September wurden im Rahmen des SBZ-Kreativ-Wettbewerbs die Badprofis des Jahres 2010 ausgezeichnet. Sie lieferten in den drei Kategorien Gäste-WC, Bad kleiner 9 m2 und Bad größer 9 m2 einen eindrucksvollen Nachweis der Leistungsfähigkeit unserer Branche. Viele Einsendungen überzeugten mit frischen Ideen, Raum- und Lichtkonzepten und letztlich perfekten Bädern. Bei der Bewertung durch die Jury flossen nicht nur Anmutung und Erscheinung des Bades, sondern auch die im ­Rahmen der Ausschreibung erbetenen Detail- und Projektinformationen, bzw. die Rahmen­bedingungen der einzelnen Projekte ein. In dieser SBZ stellen wir die prämierten Gäste-WCs und die dazugehörenden Badprofis vor. Nicola Stammer

Karger Charme früherer Zeiten: Das Gäste-WC scheint schon lange auf eine zweite Chance zu warten
Wedi

Verwandlung eines Gäste-WCs

-



Mit einfachen Mitteln hat sich dieses – in jeder Hinsicht überholte – Gäste-WC zu einem einladenden, freundlichen „Örtchen“ gewandelt. Genügend Stauraum, akzentuiert eingesetzte Fliesen und ein Spiegel, der den Raum optisch erweitert komplettieren das Bild einer gelungenen Renovierung. Die...

BADTRENDS

Spezialserie fürs Gäste-WC

-

Mit ihrer Gemeinschaftsentwicklung Joly wollen Keramag und Keuco frischen Wind in deutsche Gäste- WC’s bringen. Asymmetrischer Waschtisch, gering ausladendes WC, Halbeinbau- Urinal und multifunktionale Accessoires sollen mehr Raumökonomie ermöglichen und das Nachfragepotential mit pfiffigen Produktdetails und praktischem Gebrauchsnutzen erschließen.