Springe auf Hauptinhalt Springe auf Hauptmenü Springe auf SiteSearch
Ringleitungssysteme korrekt berechnen

Stagnationsrisiko vermeiden

Trinkwasser-Installationssysteme müssen konstruktiv so aufgebaut werden, dass bereits im bestimmungsgemäßen Betrieb, also mit stattfindenden Wasserentnahmen, möglichst viele Rohrstrecken durchströmt werden. Im Bereich der Stockwerksinstallation finden sich in der Praxis aber oft herkömmliche T-Stück-Installationen. Die sind jedoch hygienisch bedenklich, da jede Entnahmearmatur regelmäßig genutzt werden muss, um das Wasser aus der Stichleitung (Einzelzuleitung) auszutauschen. Andernfalls stellt diese Anbindung trotz der recht kurzen Strecke einen nicht regelmäßig durchströmten Rohrleitungsabschnitt mit entsprechend hohem Verkeimungsrisiko dar.

Als Alternative gelten „durchgeschleifte“ Reihen- oder Ringleitungsinstallationen, bei denen die Anbindung der Zapfstellen über durchströmte Wandscheiben erfolgt. So ist immer ein regelmäßiger Wasseraustausch bis unmittelbar vor der Entnahmestelle gewährleistet. Zusätzlich kann durch die Platzierung des Hauptverbrauchers, beispielsweise ein WC am Ende einer Reihenleitung, für eine regelmäßige Nutzung gesorgt werden.

Durch ergänzendes Verlegen einer Leitung von der letzten Entnahmestelle zum Stockwerksverteiler entsteht aus der Reihenleitung eine Ringleitung. Mit diesem Ringleitungssystem als Stockwerksleitung ist der regelmäßige Wasseraustausch unabhängig von der Frage, welche Zapfstelle geöffnet wurde, sichergestellt. Der Vorteil dieser Leitungsverlegung besteht darin, dass bei einer Wasser­entnahme die Zuströmung über zwei Richtungen erfolgt und der gesamte Wasserinhalt der Stockwerksinstallation bewegt wird.

Spezielle Berechnung für Ringsystem

Die Berechnung eines Ringsystems, wie sie im Kommentar zur DIN 1988 beschrieben wird, beruht allerdings auf Annahmen von hydraulischen Bedingungen, beispielsweise der 50-prozentigen Aufteilung der Volumenströme am Verteiler, die eher eine Ausnahme darstellen. Dies führt dazu, dass in der Praxis, unabhängig von den tatsächlichen hydraulischen Bedingungen, die Aufteilung der Volumenströme bei der Spitzenbelastung „nach der Erfahrung“ und damit nicht fachgerecht vorgenommen wird. Installationen mit zu großen Rohrnennweiten würden in der Folge Einfluss auf die Investitionskos­ten sowie auf das Anlagenvolumen haben.

Viega hat sich mit diesem Problem ausführlich beschäftigt und durch Praxisuntersuchungen die Verteilung der Volumenströme sowie der Druckverluste in den einzelnen Teilstre­cken eines Ringsystems überprüft. Dabei ergab sich, dass die Berechnung eines Ringsys­tems auf dem herkömmlichen Weg einer Rohrnetzberechnung nach DIN 1988 definitiv nicht möglich ist. Für Ringsysteme in der Stockwerksverteilung wurde deswegen zur Ermittlung der Druckverluste für den ­hydraulisch ungüns­tigsten Weg die Viega Software Viptool Engineering weiterentwickelt. In dieser Software sind die Methoden zur Berechnung vermaschter Wasserversorgungsnetze in der Stadttechnik für Systeme im Stockwerksbereich von Gebäuden umgesetzt worden.

Die theoretische Betrachtung eines richtig dimensionierten Ringsystems zeigt, dass der Ring mit der gleichen Nennweite bemessen werden sollte. Durch Messungen wurde bestätigt, dass bei normaler Nutzung der Zapfstellen, unter Berücksichtigung der kleinstmöglichen Nennweite, eine gute Durchspülung der Rohrleitung im Ring erfolgt und es zu einer ausreichenden Versorgung der Entnahmestellen kommt. Vergleiche von gemessenen und berechneten Volumenströmen in Ringsystemen bei bestimmten Belastungssituationen (Gleichzeitigkeiten) an den Entnahmestellen zeigen gute Übereinstimmungen.

Als Berechnungsgrundlage verwendet die Planungssoftware dabei anstelle der überholten Norm-Zeta-Werte die realen Widerstandszahlen der Viega-Trinkwasser-Installationssysteme, z.B. Raxofix und das Edelstahlsystem Sanpress, mit denen in aller Regel wirtschaftlichere Rohrdimensionierungen möglich sind.

Software unterstützt Planung

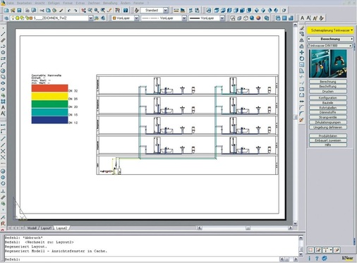
Zur Unterstützung für die Planung einer hygienisch und wirtschaftlich optimierten Trinkwasser-Installation kann eine Rohrnetzanalyse in Form einer grafischen Auswertung der Berechnungsergebnisse, beispielsweise nach den Rohrnennweiten in einem Strangschema mit einer Stockwerksinstallation mit Reihenleitung, hilfreich sein. Für die Prüfung einer Trinkwasser-Rohrnetzberechnung, insbesondere bei komplexen Netzstrukturen, bietet die visualisierte Druckverlustverteilung des gesamten Leitungssystems eine gute Kontrollmöglichkeit für Nennweitenoptimierungen.

Der Erhalt der Trinkwassergüte in einem Gebäude hängt aber nicht nur von der fachgerechten Auslegung des Rohrleitungsnetzes ab. Genauso wichtig ist der bestimmungsgemäße Betrieb. In vielen Gebäuden, wie Krankenhäusern, Schulen, Seniorenheimen, Hotels oder Kasernen, lassen sich jedoch Nutzungsunterbrechungen nicht ausschließen. In neueren Untersuchungen des Bundesministeriums für Bildung und Forschung (BMBF) zeigen Auswertungen umfangreicher Erhebungen deutscher Gesundheitsbehörden beispielsweise, dass längere Nutzungsunterbrechungen (z.B. in Schulen durch die Sommerferien) mit fehlender Spülung festgestellt wurden. In ungenutzten Bereichen ist aber dringend ein regelmäßiger Wasseraustausch vorzunehmen, um Stagnation in den Leitungen zu vermeiden.

Stagnation sicher vermeiden

Eine Lösung zur Vermeidung von Stagnationen bei Nichtbenutzung ist der Einsatz einer Visign for Care Betätigungsplatte mit Viega Hygiene+ Funktion am Ende der jeweiligen Stockwerksleitung. Sie bildet individuell eingestellt den bestimmungsgemäßen Gebrauch durch eine dezentrale Auslöseautomatik an einer entscheidenden Entnahmestelle ab. Bedarfs- und volumenbezogen wird dann bei Überschreiten bestimmter Nutzungsintervalle selbsttätig die Spülung (eines WCs) ausgelöst. Die Spülmenge entspricht dabei dem Wasservolumen, das zur Vermeidung von Stagnation im betroffenen Rohrleitungsabschnitt – hier: der Stockwerksleitung – notwendig ist.

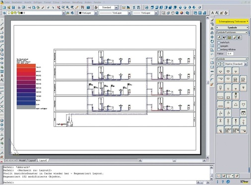
In welchem Maße durch diese Lösung der Wasseraustausch abgesichert ist, kann ebenfalls durch eine Grafikfunktion in Viptool ­Piping visualisiert werden: Sie zeigt den in der Stockwerksleitung stattfindenden Wasseraustausch bei Öffnen einer Zapfstelle bzw. Auslösen eines Verbrauchers. Auf einen Blick kann damit zugleich überprüft werden, ob es bei bestimmungsgemäßem Betrieb eventuell Stagnationsstrecken gibt. Ob diese Vorgabe in der jeweiligen Installation erreicht wird, lässt sich hingegen rechnerisch nur schwer nachvollziehen. Mit der grafischen Darstellung der Software Viptool Engineering aber, kann auch gegenüber dem späteren Betreiber der Trinkwasseranlage – fast ausnahmslos haustechnische oder zumindest trinkwasserhygienische Laien – das Zusammenspiel aus Planungsdetails, Installationsaufwand und Erhalt der Trinkwassergüte wesentlich leichter vertreten werden.

Fazit

Stockwerksleitungen können durch Reihen- oder Ringleitungen konstruktiv so aufgebaut werden, dass bereits im regulären Betrieb, also mit stattfindenden Wasserentnahmen, möglichst viele Rohrstrecken durchströmt werden. Die Leitungsführungen der Installationen sind im Wesentlichen so zu planen, dass

  • selten genutzte Entnahmestellen eingeschleift sind,
  • der Hauptverbraucher am Ende einer Reihenleitung ist,
  • das Volumen einer Installation so gering wie möglich ist, und
  • gegebenenfalls intelligente Spülsysteme zum Einsatz kommen.

Die differenzierte Bemessung von Reihen- oder Ringleitungssystemen als Stockwerkleitungen können mit dem Modul Trinkwasserberechnung im Programm Viptool Piping der Planungssoftware Viptool Engineering von Viega konstruktiv aufgebaut und hydraulisch korrekt bemessen werden. Das integrierte Planungsmodul Hygiene+ unterstützt dabei ­ eine druckverlustarme, „schlanke“ Auslegung durch verbesserte Visualisierung aller wichtigen hydraulischen Aspekte im Rohrnetz.

Um die Wassergüte in der Trinkwasser-Installation dauerhaft zu erhalten, ist außerdem ein regelmäßiger und vollständiger Wasseraustausch notwendig. Zur Vermeidung von Stagnationen bei Nichtbenutzung ist daher eine individuell programmierte auslösende ­Visign for Care Betätigungsplatte mit Viega Hygiene+ Funktion am Ende der jeweiligen Stockwerksleitung sinnvoll.

Das Volumen einer Installation sollte bei identischer Versorgungssicherheit so weit wie möglich minimiert werden. Voraussetzung für „schlanke“ Installationen sind druckverlustarme Installationssysteme. Das trägt entscheidend zum Erhalt der Trinkwassergüte bei und senkt die Investitions- und Betriebskosten.

INFO

Wissenswertes im Überblick

Ringleitungen in Verbindung mit durchströmten Wandscheiben verhindern durch die Wasserentnahme an nur einer Zapfstelle Stagnation in der gesamten Ringleitung.

Die hygieneoptimierte Dimensionierung einer Ringleitung ist mit DIN 1988 nicht möglich. Viega hat des­wegen seine Planungssoftware um Methoden für die Berechnung vermaschter Wasserversorgungsnetze ­erweitert.

Ist aufgrund der Gebäudeart absehbar, dass die typische Nutzung keine kontinuierliche Wasserentnahme gewährleistet, sollte diese „zwangsweise“ ­herbeigeführt werden, beispielsweise durch intelligente Drückerplatten.

SBZ-Tipp

Viptool Engineering

Das Softwarepaket Viptool Engineering von Viega beinhaltet alle wesentlichen Programme, die täglich in Fachhandwerksunternehmen oder Planungsbüros für die Berechnung der Technischen Gebäudeausrüstung notwendig sind: Ein CAD-Modul, Applikationen für die Berechnung unterschiedlichster Rohrnetze oder Software zur Berechnung von Heiz- und Kühllasten sowie zur Auslegung von Flächentemperiersystemen gehören ebenso dazu wie eine 3D-Badgestaltung. Ein wesentliches Al­leinstellungsmerkmal sind dabei die umfangreichen Visualisierungsmöglichkeiten der Rechenergebnisse sowie die Funktion Hygiene+. Damit kann beispielsweise der Wasseraustausch in Trinkwasseranlagen beim Auslösen bestimmter Verbraucher grafisch auf dem Bildschirm dargestellt werden. Eine Arbeitserleichterung sind ebenfalls die grafische Gebäudeerfassung für Heiz- und Kühllast bzw. Flächentemperierung sowie der 2D-Trinkwasser-Schemengenerator. Die Planungssoftware läuft auch unter Windows 7 und ist voll kompatibel zu AutoCAD 2010.

Autor

Dipl.-Ing. (FH) Frank Kasperkowiak ist Produktmanager bei Viega in 57439 Attendorn, Telefon (0 27 22) 61-0, Telefax (0 27 22) 61-14 15, https://www.viega.de/de/homepage.html

Autor

Dipl.-Ing. (FH) Jens Röcher ist u.a. Projektleiter Viptool bei Viega in 57439 Attendorn, Telefon (0 27 22) 61-0, Telefax (0 27 22) 61-14 15, https://www.viega.de/de/homepage.html

Tags