Springe auf Hauptinhalt Springe auf Hauptmenü Springe auf SiteSearch
DDS-CAD

Jetzt mit Kühllastmodul

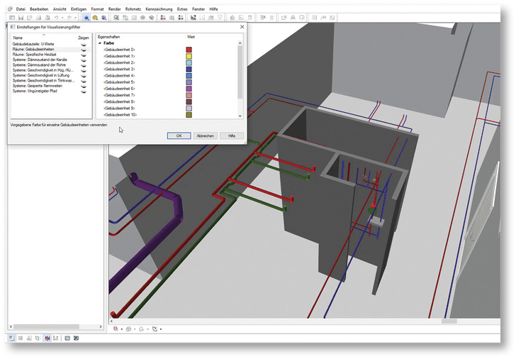
Funktionsneuheiten und -erweiterungen verspricht die TGA-Planungssoftware DDS-CAD mit der Produktversion 17. So zeigt das Softwarehaus, das zu Jahresbeginn 2022 mit seinem Schwesterunternehmen Graphisoft fusioniert hat, beispielsweise die weiterentwickelten Möglichkeiten beim Im- und Export von IFC-Dateien sowie die neuen Filteroptionen bei der Visualisierung von 3D-Gewerkemodellen. Mit diesen lassen sich beispielsweise die spezifische Heizlast von Räumen, Fließ- und Strömungsgeschwindigkeiten oder die Dämmzustände von Rohren und Kanälen anschaulich darstellen. Auch neu: Der Simulationsspezialist Equa hat in Zusammenarbeit mit DDS-CAD ein Kühllastmodul entwickelt und in das gewerkeübergreifend einsetzbare Planungswerkzeug integriert. Damit einher geht auch der reibungslose Datenaustausch zwischen den beiden Anwendungen per IFC-Datei – ein Musterbeispiel für erfolgreiches Open BIM.