Springe auf Hauptinhalt Springe auf Hauptmenü Springe auf SiteSearch

Passendes Umfeld für Abschlüsse

Sie auch? In unserem recht bewegten Markt überlegen viele SHK-Fachunternehmer, wie sie sich für die Zukunft aufstellen wollen, den Kunden erreichen können und welche Serviceleistungen wie angeboten und präsentiert werden sollen. Gut, wenn man – trotz der derzeit ohnehin vielen Arbeit – innehält und sich Gedanken um das Vorgehen macht. Beim Thema Badverkauf nimmt die Ausstellung und Präsentation eine wichtige Rolle ein.

Wie diese Überlegungen aussehen können und wie sie Gestalt annehmen und eine Richtung erhalten, das zeigt der Beitrag beispielhaft anhand eines Fachhandwerkers. Es handelt sich um einen traditionsreichen Handwerksbetrieb im Süden Deutschlands. Über mehrere Generationen hinweg hat sich das Unternehmen einen sehr guten Namen im Bereich SHK erarbeitet. Es gibt neben den vielen technischen Angeboten auch eine Sanitärausstellung, die seit einigen Jahren erfolgreich betrieben wird – es werden Bäder aus einer Hand angeboten und verkauft.

Aber die Historie ist schon zu erkennen – der Ausstrahlung der bisherigen Ausstellung hängt der Charme der 80er-Jahre an. Über die Zeit hat sich viel angesammelt, die Räumlichkeiten bieten zwar eine hohe Produktpräsenz, aber sie entsprechen nicht mehr den Ansprüchen der Kunden von heute.

Zeit für Neues. Schön, dass schon im ersten Konzeptgespräch viele Ideen und Wünsche im Brainstorming zutage traten – gemeinsam mit klaren Vorstellungen, wann denn der Umbau anfangen und wann beendet sein soll. Natürlich mit allen Problemen, die so ein Umbau mit sich bringt – denn das Geschäft darf ja nicht brach liegen, sondern muss weiterlaufen. Umfangreiche Eigenleistungen bei den Arbeiten waren ebenso geplant, es war also zudem mit einem geringeren Einsatz bei Kundenobjekten zu rechnen.

Die Grundidee: ein Industrial Loft

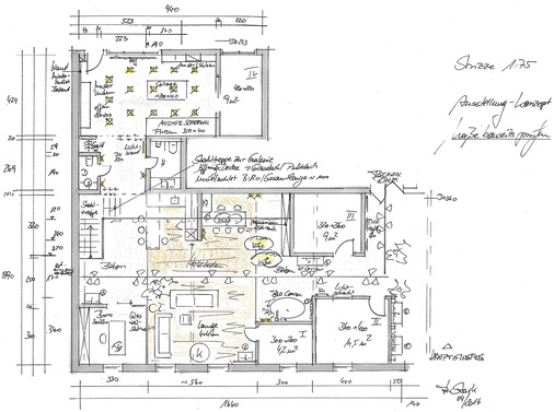
Die derzeitige Ausstellungsfläche von rund 150 m² sollte komplett erneuert und renoviert werden. Unter der Schirmherrschaft des Juniorchefs in Abstimmung mit seinem erfolgreichen Badplaner ist die Grundidee „Industrial Loft“ entstanden. Unter diesem Motto sollte eine neuzeitliche, moderne, zukunftsorientierte Verkaufsfläche geschaffen werden, die sich von den alten Räumlichkeiten maßgeblich unterscheidet. Ein Ambiente, das der heutigen Präsenz des gesamten Unternehmens entspricht.

Nicht die Menge der ausgestellten Musterwaren und unterschiedliche kleinteilige Raumkonzepte sollten das Flair ausmachen, sondern eine reduzierte, aber detailverliebte Darstellung in wenigen Komplettlösungen. Denn: Das zukünftige Verkaufsverhalten wird, von den neuen Medien gestützt, zunehmend digital stattfinden und durch Mustercollagen individualisiert.

Die Ausstrahlung der Verkaufsfläche des Betriebs in Süddeutschland soll einprägend und gewinnend wirken und zudem für andere Aktivitäten gut zu nutzen sein. Die Komplettberatung der Bauherren soll zukünftig in diesen Räumen ganzheitlich stattfinden – dafür ist die Ausweitung der Beratung auf Wand- und Bodengestaltung und Lichtkonzepte angedacht. Die bisherige Klientel soll sich wiederfinden, aber der Anteil hochwertiger Badprojekte (ab 30 000 Euro aufwärts) soll durch die Umbaumaßnahme erhöht werden. Die Maxime dabei: Die perfekte, moderne und professionelle Arbeitsweise des Handwerksbetriebes soll in den neuen Räumlichkeiten ausgedrückt werden.

Warenpräsentation soll Klasse statt Masse ausdrücken

Zunächst werden die vorhandenen Räumlichkeiten geprüft. Ein angrenzender Raum von rund 50 m², der nur zeitweise für Firmenbesprechungen genutzt wird, wird miteinbezogen. Da die neue Ausstellungsfläche auch ausreichend flexibel nutzbare Fläche für Events beinhalten soll, können die Besprechungen zukünftig dort abgehalten werden. So vergrößert sich die Fläche auf ca. 200 m². Die Besucher werden nach wie vor über den Haupteingang geleitet und dort empfangen, aber die Ausstellungsplanung sieht die Möglichkeit vor, nachträglich einen separaten Eingang auf der Kopfseite des Gebäudes einzubauen.

Die spannende Idee des Juniorchefs, den Loftcharakter mit einer Galerie zu untermauern, bedingt wegen der Raumhöhe einen erheblichen Aufwand. Das Dach müsste geöffnet und mit einer Glaskonstruktion erhöht werden. Allein dieser Posten würde einen fast sechsstelligen Betrag verschlingen, sodass die Dacherhöhung auf einen späteren Zeitpunkt verschoben werden musste. Die Galerie aber wird heute schon eingebaut. Die Stahltreppe mit Holzstufen am Kopf der Ausstellung prägt den Charakter der Räumlichkeiten, die Galerie aus Stahlträgern in Kombination mit einem Glasgeländer vermittelt das Flair eines Industrial Loft. Sie sorgt zudem in dem darunterliegenden Besprechungsbereich für die nötige Intimität.

An Arbeitsplätzen ist weiterhin ein eigenes Büro für den Badplaner notwendig. Kundengespräche werden allerdings weiterhin am separaten Besprechungstisch durchgeführt. Die Warenpräsentation soll Klasse statt Masse ausdrücken. Wir verständigen uns darauf, dass es nur vier bis fünf Raumkonzepte geben wird, die in unterschiedliche Richtungen konzipiert und in jedem Detail absolut stimmig sind. Für einen Komplettanbieter, der künftig auch besonderes Augenmerk auf die Lichtgestaltung legt, ist es unabdingbar, die Räume auch mit einer Decke zu versehen.

Der Bauherr kann und soll sich mit diesen Räumen identifizieren können, Ideen sammeln, sich inspirieren lassen und dann daraus – gemeinsam mit dem Badplaner – seine ganz individuelle Raumeinrichtung schaffen. Um das Ambiente der neuen Ausstellung nicht zu verwässern, werden sich nur an wenigen Stellen noch drei bis vier Einzelpräsentationen befinden. Ein Wust an Material, Herstellerpräsentationen und Prospekten darf keinen Platz mehr finden.

Separater Collagenraum mit Bemusterungstisch

Im angrenzenden, neuen Bereich wird ein Collagenraum eingerichtet. Hier befinden sich viele Musterflächen und Fliesen – viel Material, um mit Kunden ihren ganz eigenen Stil zu entwickeln. Intelligente Musterschränke für einzeln entnehmbare Fliesen in unterschiedlichen Größen und andere Materialmuster – durch Schiebetüren teilweise verschlossen – halten in dieser „Werkstatt“ Ordnung und bevorraten zugleich die notwendigen Musterteile, ohne unordentlich zu wirken. Ein Collagentisch – mit einem grauen Filz bespannt und einer Nut versehen – bietet alle modernen Möglichkeiten der Materialpräsentation, damit der Kunde sein individuelles Bad erstellen kann. In die Nut können senkrechte Materialien eingesetzt werden, um das Wechselspiel mit den waagerecht ausgelegten Materialen realistisch darzustellen.

Abgerundet wird der Raum durch ein perfektes Lichtkonzept. LED-Leuchten (Kiteo) werden in die abgehängte, glatt gespachtelte Decke integriert und spenden klares und angenehmes Tageslicht – auf Wunsch biodynamisch – mit einer Farbwiedergabe von RA90, sodass die Farben perfekt wirken können und harmonisch zusammenspielen. Der Raum an sich dient damit der Präsentation der Möglichkeiten.

Kunden optimal beraten

Die Aufteilung der neuen Ausstellung richtet sich nach den räumlichen Gegebenheiten und wird bestimmt von einer klaren Architektur. Der Mittelpunkt ist mit einem warmen, recht rustikalen Holzboden belegt. Im Fokus stehen Beratung, Gespräch und Abschluss.

An einem großen Holztisch werden den Bauherren die Badkonzeptionen im Entwurf präsentiert. Das Ambiente wird durch die großflächige, natürliche Backsteinwand geprägt wie auch durch die schlichte, modern-matt lackierte Schrankwand, in der die notwendigen Unterlagen griffbereit verstaut sind. Da Multimedia eine große Rolle spielt, ist darin ebenso ein Bildschirm eingelassen, der entweder ein beruhigendes Spiel im Aquarium zeigt oder aber die individuell erstellten 3D-Pläne der Bauherren im beeindruckenden Format präsentiert. Jetzt bestimmt modernste Technik die Szenerie, im Gegensatz zu der früheren historischen Pendelleuchte aus der Metro. In einem Umfeld mit Loftcharakter, mit einer Sprossenwand aus Glas und Metall aus dem Industriezeitalter. Neben der optischen Wirkung spendet die Wand den Kunden Schutz und Intimität.

An den Beratungsbereich schließt sich die Küche/Kaffeebar an. Der Einsatz der hauseigenen Corianfertigung – nicht nur für das Bad – wird gezeigt und in Szene gesetzt. Neben der angepassten Arbeitsplatte werden die Möbel auch individuell vom Schreiner auf Maß gefertigt. Die Abfolge und der Wechsel der Materialien vermittelt ein leichtes, legeres Flair – ist aber im Detail geplant. So wie die Raumkonzepte, die im Haus entwickelt werden. Die schwere, dunkle Holztheke lädt zum lockeren Verweilen ein und stärkt das elegante, filigrane Flair des weiß-matten Materials Corian.

Der Clou: ein offener, frei im Raum hängender Kamin. Er ist kein „Fake“, sondern angeschlossen, sodass im Winter ein warmes, offenes Feuer für Gemütlichkeit und Atmosphäre sorgt. Die beiden legeren Ledersofas fordern regelrecht zum Hinsetzen auf. Sie sind aber auch in der Mitte zu teilen und damit schnell an den Rand zu schieben, wenn der Platz für andere Aktivitäten genutzt werden soll. Pflanzen und Stehleuchten runden den Bereich gestalterisch ab.

Bodenbelag Zementestrich und Parkett

Alle übrigen Zonen sind mit einem modernen und natürlichen Bodenbelag aus Zementestrich versehen. Die Kombination von Holz und Zementstrich vereint geschickt die moderne, kühle Wirkung des rohen grauen Bodens mit der warmen Note von Echtholzparkett. Die Wandgestaltung ist ebenso reduziert wie auch warm gehalten. Die Kopfseite der Ausstellung wird geprägt durch einen deckenhohen Wandputz in Betonoptik – auch um der Metalltreppe zur Galerie hinauf den passenden Hintergrund zu geben. Alle übrigen Wände sind in einem zurückhaltenden, hellen Cremeweiß gestrichen.

In der oberen linken Ecke befindet sich das bereits kurz erwähnte Büro des „Motors“ der Ausstellung – des Badprofis. So hat er alles im Blick und ist dennoch durch die Sprossenwand aus Glas und Metall ausreichend abgetrennt. Schallschutz und Ruhe zum Arbeiten sind mit der optischen Transparenz im Raum verbunden. Das Büro ist nicht ausgegliedert, kein Ort zum Verstecken, eine ordentliche Disziplin am Schreibtisch ist deshalb notwendig – aber so ein Arbeitsplatz unterstützt die tägliche Inspiration erheblich! Um mehr Sichtschutz zu erlangen, kann ein bodenlanger, heller Vorhang aus Leinen angebracht werden, der bei Bedarf vorgezogen wird – ebenso wie im Beratungsbereich.

Badkonzepte individuell und unterschiedlich im Budget

Die eigentlichen Warenpräsentationen – also die wenigen geschlossenen Raumkonzepte und Einzelanwendungen – gruppieren sich vor und hinter dem Zentralbereich. Sie sind in sich individuell vom Badprofi gestaltet und zeigen der Region angepasste und unterschiedlich in Größe und Budget ausgestaltete Badbeispiele. Die Gestaltung der Raumkonzepte nimmt der Badplaner eigenständig vor, da hier seine Handschrift unabdingbar ist.

Eines haben sie alle gemeinsam – eine ausgefeilte Lichttechnik. Auch in den unterschiedlichen Preisgruppen. Ob nun als preisorientierte Zentralbeleuchtung, dezentrales LED-Licht in Warmweiß in sehr guter Qualität und Farbwiedergabe oder aber als biodynamisches Licht mit Farblichteinstellungen: Alle Variationen kann der Bauherr in diesen Räumen erleben und fühlen. Ein Service, der sonst nur schwer zu finden ist und ein klares Unterscheidungskriterium darstellt.

Auch der unterschiedliche Einsatz von Fliesen in diversen Formaten und Kombinationen mit alternativen Wandgestaltungen ist zu erleben. Die ganz eigene Farbkombination der Bauherren wird zunächst im 3D-Plan und anschließend anhand der Originalmuster im Collagenraum zusammengestellt und perfektioniert.

Der Eingangsbereich im Objekt wurde ebenfalls neu geplant. Der Bürobereich und Empfang wurden stimmig angepasst. Dazu wurde eine – im Gegensatz zur geradlinigen und nüchternen Gesamtaussage – geschwungene Trockenbauwand erstellt, an der die Firmengeschichte aufgezeigt werden soll. Tradition, auf die die SHK-Unternehmer stolz sind und die in Szene gesetzt werden darf.

Lichtinszenierung im gesamten Ausstellungsbereich

Um die Umbauten bei laufendem Geschäft durchführen zu können, wurde in zwei Bauabschnitten gearbeitet. Als Erstes wurde der hintere Bereich mit dem Collagenraum erstellt. Aufgrund der Bemusterungsfläche war klar, dass hier das sehr hochwertige Licht integriert wird. Perfekte Farbwiedergabe und die Möglichkeit, mit biodynamischem Licht in Tageslichtqualität Kunden und Mitarbeiter positiv zu unterstützen, war das Ziel. An der Decke wurde ein Paneel installiert, in das nicht nur die Lichttechnik, sondern auch die Lüftungsgeräte bündig integriert werden konnten.

Neue Arbeitsabläufe erstellt

Ein guter Geschäftsmann möchte neben dem adäquaten Ausdruck seines Unternehmens mit so einer großen Investition auch mehr Gewinn erzielen. Was ändert sich also nach so einem großen Umbau? Dadurch dass nun alle notwendigen Materialien für einen Komplettbadanbieter im eigenen Haus untergebracht sind, entfallen die doch recht zeitaufwendigen Fahrten mit den Bauherren zu anderen Bemusterungsstellen. Man ist auch nicht mehr auf die Beratungsqualität und Produktpräsentation der anderen Händler angewiesen – sondern hat alles an einem Punkt vereint.

Ein Vorteil, der nicht nur den Badplaner, sondern auch die Bauherren erfreut und entspannt. Ein schöner Nebeneffekt ist zudem die Bündelung der Kompetenzen im eigenen Haus. Natürlich ist das Vorgehen mit einer Wissenserweiterung des Badprofis im Bereich Licht, Wand- und Bodengestaltung gekoppelt.

Der Juniorchef hat sich nicht nur Gedanken um die neue Ausstellung gemacht, sondern auch die bisherigen Arbeitsprozesse untersucht. Um dem Badplaner möglichst viel Zeit in der neuen Ausstellung zu geben, um Aufträge zu generieren, wurde ein neuer Mitarbeiter gefunden, der sich in enger Abstimmung mit dem Badprofi ausschließlich um die Baustellenkoordination kümmert. Die Einteilung der eigenen Handwerker und Fremdfirmen gehört ebenso zu seinem Aufgabenbereich wie die Baustellenbegleitung. Mit seinem beruflichen Hintergrund aus dem Handwerk ist er für diesen Arbeitsbereich besser geeignet und minimiert die Fehlerquote in der Ausführung. Der Bauherr sieht, dass sich jemand immer kümmert, und kann sich wirklich zurücklehnen.

Zukünftig ist der Aufbau eines zusätzlichen Trupps geplant. Auch die Einstellung eigener Handwerker für die übrigen Bereiche, die momentan noch mit Subunternehmen abgedeckt werden, steht auf dem Prüfstand. Es gibt keine Zeit zum Ausruhen, sondern neue Wege werden betrachtet und beleuchtet, um sich auch zukünftig im Markt einen Anteil zu sichern. Möglichst eigenständig und stabil.

Fazit

Was sich bis jetzt aber schon abzeichnet: Der Badumsatz hat sich für das einzelne Bad im Schnitt um ca. 30 % erhöht. Plan ist, jetzt auch die Menge der Badumbauten zu steigern. Mit dem Einsatz von geschickten Werbemaßnahmen ist der Ausstellungsumbau ein Garant für wirtschaftlichen Erfolg. In Summe steht genau das, was anspruchsvolle Bauherren von heute suchen: Ein Stück Bad aus einer Hand. Aber individuell, perfekt und problemlos umgesetzt. Und wer sich schon beim Einkaufen rundum wohlfühlt und verstanden wird, der investiert sein Geld auch gerne, weil er sich sicher sein kann, das Richtige zu tun – mit dem richtigen Partner an seiner Seite. Lästige Preisdiskussionen finden hier keinen Platz!

Autor

Die Innenarchitektin Andrea Stark ist seit mehr als 25 Jahren im Bäderbau tätig. Mit ihrem Unternehmen „Starkberaten“ ist sie in Overath bei Köln tätig. Außerdem hält sie Vorträge zur Ausstattung von Badezimmern und ist als Autorin tätig. info@starkberaten.de www.starkberaten.de

Tags