Springe auf Hauptinhalt Springe auf Hauptmenü Springe auf SiteSearch

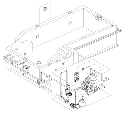
Leitungsbau rund um den Pool

Die Ausführung von Leitungsanlagen für Schwimmbadinstallationen überschneidet sich mit dem Fachbereich Sanitärtechnik, teilweise sind allerdings weitere Fachregeln zu berücksichtigen. Die geltenden technischen Regelwerke für Trinkwasser- und Abwasserinstallationen greifen vor allem an den Schnittstellen wie der Frischwassernachspeisung oder der Ableitung in das Entwässerungssystem, wo unter anderem Normen wie DIN EN 806 (DIN 1988) und DIN 1986-100 zu beachten sind. Die wesentliche Grundlage für die Planung und Ausführung bilden die jeweils geltenden Normen für den Schwimmbadbau. Für die Anwendung der geltenden Regelwerke ist zunächst zu unterscheiden, ob es sich um öffentliche Schwimmbäder oder um Schwimmbäder für die private Nutzung handelt.

Rohrleitungen für Schwimmbadinstallationen

Im Vergleich zu Trinkwasserinstallationen ist die verfügbare Auswahl an Rohrwerkstoffen für Schwimmbad-Leitungsinstallationen begrenzt. Das im Schwimmbadsystem zirkulierende Wasser ist chemisch aufbereitet und desinfiziert; das der Aufbereitungsanlage zugeführte Wasser ist mikrobiologisch belastet. Entsprechend müssen die verwendeten Rohrwerkstoffe chemikalienbeständig und mikrobiologisch unbedenklich sein. Für die Leitungsinstallation in Schwimmbädern werden deshalb vorwiegend Kunststoffrohrsysteme eingesetzt, welche auch im Gebäudetechnikbereich beispielsweise für aufbereitetes Betriebswasser oder bei hohen hygienischen Anforderungen verwendet werden.

Ein allgemeiner Grundsatz lautet, alle Rohrleitungen und Armaturen zugänglich anzuordnen, um problemlos die Inspektion und bei Bedarf Reparaturarbeiten vornehmen zu können. Beim Bau von Hallenschwimmbecken sollte außerdem generell ein Beckenumgang vorgesehen werden. Bei im Freien aufgestellten Schwimmbecken sollte die Schwimmbadtechnik innerhalb des Gebäudes angeordnet werden.

Leitungsinstallationen für private Schwimmbäder

Für das Rohrsystem in privaten Schwimmbädern lassen sich aus der im August 2016 in Kraft getretenen DIN EN 16713 einige Vorgaben entnehmen. Die Rohrleitungen sind so zu dimensionieren, dass sie den Nennvolumenstrom des Filtrationssystems aufnehmen und die Druckverluste möglichst gering bleiben. Die druckseitige Strömungsgeschwindigkeit sollte nicht mehr als 3 m/s betragen; für einen möglichst geringen Energieverbrauch sollten geringere Fließgeschwindigkeiten angestrebt werden. Zur Vermeidung von Kavitationsschäden an den Umwälzpumpen soll die saugseitige Fließgeschwindigkeit kleiner sein als auf der Druckseite; hierzu verweist der Normentext zusätzlich auf die Empfehlungen des jeweiligen Pumpenherstellers. Für Einbauten wie Schwallduschen oder Wassereinläufe gilt die Begrenzung der Fließgeschwindigkeit nicht, da hierfür entsprechende Fließdrücke bereitstehen müssen, woraus sich ggf. höhere Fließgeschwindigkeiten ergeben.

An die Wahl der geeigneteren Rohrwerkstoffe stellt die Norm die allgemeine Anforderung, dass der Werkstoff korrosionsbeständig und für den im System herrschenden Druck geeignet sein muss. Allgemein sollen solche Rohrleitungen und Rohrverbindungen verwendet werden, die für die Anwendung in hydraulischen Systemen geeignet sind und die den Anforderungen nationaler Normen entsprechen. Gleiches gilt für die verwendeten Armaturen wie Absperr- und Umstellventile. Ablaufleitungen und Rückführungsleitungen für Skimmer sind so zu dimensionieren, dass die den vollen Anteil des Volumenstroms aufnehmen können. In verzweigten Schwimmbad-Rohrsystemen sollten an geeignetsten Stellen Absperrarmaturen oder gegebenenfalls Umstellventile gesetzt werden, um einzelne Abschnitte im Wartungs- oder Reparaturfall problemlos absperren und entleeren zu können. Besondere Beachtung gilt hierbei den erdverlegten Rohrleitungen, wenn das Schwimmbad im Außenbereich eines Wohnhauses erstellt wird. Für den Einbau im Erdreich muss das Leitungsmaterial sowohl gegen mechanische als auch chemische Einflüsse beständig sein. Sowohl starre als auch flexible Rohrleitungen müssen bei Erdverlegung von nicht verdichtbarem Schutzmaterial umhüllt sein. Vor der Verfüllung ist eine Dichtheitsprüfung unerlässlich. Zusätzlich ist nach dem Verfüllen – was auch für einzubetonierende Leitungen gilt – eine weitere Druckprüfung durchzuführen, um sicherzustellen, dass die Rohrleitungen beim Verfüllen oder Einbetonieren nicht beschädigt wurden. Wie für alle frostgefährdeten erdverlegten Mediumleitungen gilt auch hier, dass die Verlegung in frostfreier Tiefe erfolgen muss. Leitungsabschnitte wie Anbindeleitungen an Wassereinläufe oder -auslässe außerhalb des frostsicheren Bereichs müssen vollständig entleerbar sein.

Installationsdetails für öffentliche und private Schwimmbäder

Ausführung der Frischwassernachspeisung: Zur Beckenwassernachspeisung wird eine Trinkwasser-Entnahmestelle in der Dimension DN 20 vorgesehen. Für die Zuführung von Frischwasser zum Wassersystem des Schwimmbades gelten die Maßnahmen zum Schutz des Trinkwassers gemäß DIN EN 1717. Über eine der Norm entsprechende Sicherungseinrichtung ist ein Direktanschluss an den Wasserspeicher möglich, aufgrund der höheren hygienischen Sicherheit ist jedoch ein freier Auslauf zu bevorzugen. Die Nachspeisung sollte über eine automatisch arbeitende druckstoßarme Armatur gesteuert werden. Zusätzlich ist eine Überfüllsicherung vorzusehen, um bei einer eventuellen Störung der Nachspeisearmatur eine Überflutung des Aufstellraums zu vermeiden. Die Überfüllsicherung wird in der Praxis meist als Überlauf ausgeführt, über den im Störfall das Wasser in das Entwässerungssystem abgeleitet wird.

Wasserzuführung über Beckenwand oder Beckenboden: Das von der Schwimmbad-Wasseraufbereitungsanlage gereinigte Wasser wird über Einlaufdüsen wieder dem Beckeninhalt zugeführt. Die Einlaufdüsen werden in die Beckenwand (horizontale Beckendurchströmung) oder in den Beckenboden (vertikale Beckendurchströmung) integriert. Generell sind alle Rohrleitungen, die durch Wände und Fundamente geführt werden, spannungsfrei zu verlegen. Bei horizontaler Beckendurchströmung werden für die Anschlussverbindung zu den Einlaufdüsen Rohrdurchführungen benötigt, die passend zur geplanten Art der Beckenabdichtung auszuwählen sind. Bei vertikaler Beckendurchströmung wird die Verrohrung zu den im Beckenboden eingelassenen Einlaufdüsen im Regelfall in die Bodenkonstruktion mit einbetoniert. Hierfür wird z. B. in der Außenschalung des Beckens ein Formteil mit Dicht- bzw. Sperrflansch eingesetzt und das Rohr an der Außenseite mit einem Flanschübergang in die Außenabdichtung einbezogen.

Da im Erdreich unterhalb einer Schwimmbeckenkonstruktion Setzungen nicht gänzlich ausgeschlossen werden können, ist bei vertikaler Beckendurchströmung eine unterhalb der Beckensohle liegende Verrohrung grundsätzlich nicht zu empfehlen. Der Grund ist, dass durch auftretende Setzungen Kräfte auf die Rohrleitungen einwirken, die zu Undichtheiten oder Rohrbruch führen können, sodass Unterspülungen unterhalb der Beckenkonstruktion die Folge wären.

Entwässerungsleitungen im Bereich der Schwimmbadtechnik

Bemessung der Leitungen: Die Dimensionierung der Rohrleitungen erfolgt nach den hydraulischen Erfordernissen. Allerdings sind die Ablaufleitungen von der Überlaufrinne zum Vorlage- oder Schwallwasserbehälter nicht nach DIN 1986-100 zu betrachten. Berücksichtigt werden muss hierbei, dass die Rohrleitung vom Überlauf zum Wasserspeicher Wasser und Luft transportieren muss und daher bei der Bemessung auf eine ausreichende Luftabscheidung zu achten ist. Nach der Richtlinie DGfdB R 65.06 (Deutsche Gesellschaft für das Badewesen e.V.) wird die Rohrleitung je nach Rinnenform mit einem Zuschlag von mindestens 50 % der Schwallwassermenge bemessen. Zudem ist die Ablaufleitung so auszuführen, dass die mitgeführte Luft selbsttätig abgeführt werden kann, was sich in der Praxis beispielsweise mit einem nach oben offenen Abzweigabgang erzielen lässt. Mit der Wahl des Gefälles besteht keine Bindung an die Vorgaben der Norm für Entwässerungsanlagen; es muss jedoch sichergestellt werden, dass die Ablaufleitung ungehindert leerlaufen kann.

Separate Ableitung für Reinigungswasser empfehlenswert: Für Schwimmbecken mit Überlaufrinne wird empfohlen, in der Planung der Leitungsanlage eine separate Ableitung des Reinigungsabwassers vorzusehen. Überlaufrinnen benötigen einschließlich der Abdeckroste eine regelmäßige Reinigung, um die Bildung von Ablagerungen und Flecken sowie das Wachstum von Algen oder Biofilmen zu verhindern. Dazu müssen die Rinnen und Roste mit Reinigungsmitteln gesäubert und abgespült werden. Damit das Reinigungsabwasser nicht in den Wasserspeicher gelangt, sollte die Ableitung direkt in das Entwässerungssystem erfolgen. In der Praxis hat es sich hierfür bewährt, in der Rinnensammelleitung vor dem Eintritt in den Rohwasserspeicher einen Siphon auszubilden, in dessen Rohrsohle ein Abgang nach unten integriert ist, der über ein motorbetriebenes Absperrventil geöffnet werden kann. Für den Reinigungsbetrieb betätigt das Reinigungspersonal oder der Bademeister beispielsweise über einen Schlüsselschalter das Ventil, sodass der Umwälzbetrieb unterbrochen und das Reinigungswasser direkt in das Entwässerungssystem abgeleitet wird. Die elektrische Ansteuerung des Ventils sollte dabei so ausgeführt werden, dass dieses beim Wechsel zurück in den Umwälzbetrieb noch eine bestimmte Zeit geöffnet bleibt, um den Restschmutz abzuführen.

Schutz gegen Rückstau: Zwischen der Entwässerungsanlage und dem Aufbereitungskreislauf darf keine unmittelbare Verbindung bestehen. Zur Sicherheit gegen Überflutung muss außerdem der Aufstellraum über eine ausreichend dimensionierte Entwässerung verfügen. Ein oberhalb der Rückstauebene liegender Schwimmbad-Technikraum kann über Bodenabläufe entwässert werden. In vielen Fällen befinden sich jedoch insbesondere Hallenschwimmbäder unterhalb der Rückstauebene, sodass zur Entwässerung ein Pumpenschacht mit einer Schmutzwasserpumpenanlage vorzusehen ist.

Fazit

Die Installation von Rohrleitungssystemen für die Schwimmbadwasserumwälzung, -aufbereitung, -zuführung und -entleerung unterliegt im Vergleich zu den für die Sanitärtechnik geltenden Regelwerken teilweise anderen Anforderungen. Für Planung und Ausführung sind die geltenden DIN-Normen zu berücksichtigen, wobei für die Anwendung der jeweiligen Norm zunächst die genaue Einordnung erfolgen muss, ob es sich um ein privates oder öffentliches Schwimmbad handelt. Für Schutzziele wie den Schutz des Trinkwassers bei der Frischwassernachspeisung oder den Schutz gegen Rückstau sind in jedem Fall die geltenden Regelwerke für Trinkwasserinstallationen und Entwässerungsanlagen maßgebend.

Info

Normen für Schwimm- und Badebeckenwasser

Öffentliche Schwimmbäder: DIN 19643, Aufbereitung von Schwimm- und Badebeckenwasser.

Private Schwimmbäder: DIN EN 16713, August 2016, Schwimmbäder für private Nutzung – Wassersysteme, Anforderungen und Prüfverfahren; Teil 1 – Filtrationssysteme, Teil 2 – Beckenhydraulik, Teil 3 – Wasseraufbereitung.

Unter privaten Schwimmbädern sind ausschließlich Frei- oder Hallenschwimmbäder zu verstehen, die von ihrem Besitzer, dessen Familie oder einer Hausgemeinschaft genutzt werden. Sobald ein wechselnder Personenkreis das Schwimmbad nutzt, beispielsweise in Pensionen oder Hotels, fällt das Bad in den Bereich der öffentlichen Bäder.

Info

Rohrwerkstoffe für Beckenverrohrungen

Die für Beckenverrohrungen zugelassenen Rohrwerkstoffe sind durch die DIN 19643 vorgegeben:

  • PVC-U nach DIN EN ISO 1452-1
  • PVC-C nach DIN EN ISO 15877-1
  • PE nach DIN EN 12201-1
  • PP nach DIN EN ISO 15874-1
  • Nichtrostender Stahl nach DIN EN 10088-3, z. B. Werkstoffnummer 1.4571.

In der Praxis werden meist Rohrsysteme aus Kunststoff bevorzugt, da für nichtmetallene Rohrsysteme keine Erdung erforderlich ist. Bei PVC-Rohren ist aufgrund der chemischen und thermischen Beanspruchung die Druckstufe PN 10 zu empfehlen; für Rohrsysteme aus PE und PP ist im Regelfall die Druckstufe PN 6 ausreichend.

Autor

Stephan Herreiner ist bei Grünbeck Wasseraufbereitung für die Sparte Schwimmbad und Whirlpool verantwortlich. 89420 Höchstädt, Telefon (0 90 74) 41-0, www.gruenbeck.de

Tags