Springe auf Hauptinhalt Springe auf Hauptmenü Springe auf SiteSearch
Druckverlust- und Hygieneoptimierung eine Frage der Installationsart

Reihen- oder Ringinstallation?

Die Vermeidung von überdimensionierten Trinkwasserinstallationen ist das Hauptziel der neuen DIN 1988-300. Die Absenkung der Spitzenvolumenströme sowie die Verwendung produktspezifischer Mindestfließdrücke und Druckverlustbeiwerte sollen dazu beitragen, dass der Wasseraustausch optimiert und die Installation damit weniger stagnationsanfällig wird. Die Forderung nach schlankeren Rohrnetzen fand auch in anderen technischen Regelwerken ihren Niederschlag. So z.B. in der VDI-Richtlinie 6023 „Hygiene in Trinkwasserinstallationen“. Darin heißt es: „Überdimensionierungen sind sowohl bei Trinkwasserleitungen als auch bei Trinkwasserspeichern und Apparaten zu vermeiden.“

Zeta-Werte im Fokus

Während der inzwischen abgeschlossenen Novellierung des Technischen Regelwerks für die Trinkwasserinstallation (TRWI) standen insbesondere die Druckverlustbeiwerte von Form- und Verbindungsstücken immer wieder im Fokus. Die Tatsache, dass nach neuer DIN 1988-300 die von den Herstellern nach einem DVGW-Prüfverfahren gemessenen ­Zeta-Werte in den Berechnungen verwendet werden müssen, hat in Fachkreisen zu einer lebhaften Diskussion über die Bedeutung des Druckverlustes von Einzelwiderständen geführt. Von Rohr- und Fittingherstellern teilweise zum Wappentier hygienischer Trinkwasserinstallationen hochstilisiert, relativiert sich jedoch der tatsächliche Einfluss des Zeta-Wertes in der Baupraxis. Anhand der nachfolgend vorgestellten Prüfstandmessung und dem in der neuen DIN 1988-300 vorgeschlagenen Ringleitungsbemessungsverfahren nach Hardy Cross zeigt sich, dass die Wahl der richtigen Installationsart im Stockwerk wesentlich größeren Einfluss auf den Druckverlust und auf den Wasseraustausch im Sinne hygienisch einwandfreier Installationen hat.

Durchschleif-Reihen- oder Ringinstallation?

Ziel der Planung von Stockwerksinstallationen sollte also neben der sicheren Wasserversorgung vor allem die Berücksichtigung von Hygieneaspekten sein. Was spricht für eine Reiheninstallation? Wann sind Ringinstalla­tionen sinnvoll? Das nachfolgend dargestellte Berechnungsbeispiel einer typischen Mehrfamilienhaus-Stockwerksinstallation soll die Fragen klären, wie eine hygienisch einwandfreie Installation aus­sehen sollte und welchen tatsächlichen Einfluss die konstruktionsbedingt unterschiedlichen Zeta-Werte auf den Druckverlust und die Dimensionierung von Trinkwasserinstallationen haben.

Für das in Bild 1 gezeigte Bad mit angrenzender Küche soll die Kaltwasserinstallation dazu jeweils als Durchschleif-Reihen- sowie als Ringinstallation dimensioniert werden. Der Vergleich soll Rückschlüsse auf den Druckverlust sowie die Dimensionierung und den Wasserinhalt der Installation geben. Sinnvollerweise sollte in der Reiheninstalla­tion der Hauptverbraucher am Strangende angeschlossen werden, um einen größtmöglichen Wasseraustausch zu gewährleisten. Dies ist für die Kaltwasserinstallation das WC. In unmittelbarer Nähe zum WC wird in den meisten Fällen die Abwasser-Fallleitung liegen, um die sichere Entwässerung zu ermöglichen. In diesem Versorgungsschacht finden sich deshalb auch die Trinkwasserleitungen, sodass die Installation vom Schacht aus­gehend zunächst die Küchenspüle, Badewanne und Dusche über entsprechende Durchschleif-Wandscheiben erschließt, bevor die Leitung an den Waschtisch und abschließend an den Hauptverbraucher (WC) angeschlossen wird (Bild 2).

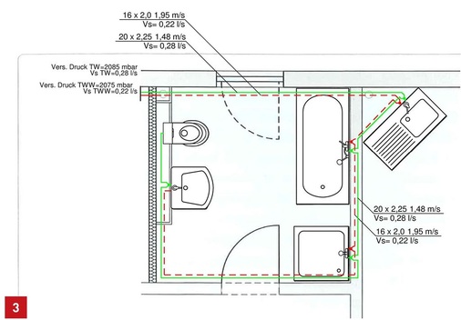
Die Reiheninstallation ermöglicht den kompletten Wasseraustausch allerdings nur dann, wenn die WC-Spülung betätigt wird. Dies kann mit elektronischen Spülsystemen verschiedener Hersteller automatisiert werden, sodass der bestimmungsgemäße Betrieb aufrechterhalten werden kann. Bild 3 zeigt die Berechnungsergebnisse für die ­Dimensionierung der Reiheninstallation. Der Druckbedarf ist aufgrund der Vielzahl in Reihe geschalteter Einzelwiderstände mit 2085mbar (einschl. 1000mbar Mindestfließdruck an der Armatur) relativ hoch. Die Dimensionierung erfordert eine Installation mit 20x2,25-mm-Rohr bis zur Dusche. Danach kann durchgehend 16x2-mm-Rohr verwendet werden. Der Wasserinhalt der Rohrleitung im Stockwerk beträgt in diesem Beispiel 3,75 Liter.

Ringinstallation schlägt ­Reiheninstallation

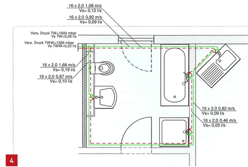
Eine Alternative zur gezeigten Reiheninstallation ist die Ringinstallation. Wie Bild 4 zeigt, liegt das WC als Kaltwasser-Hauptverbraucher direkt neben dem Einspeisepunkt der Kaltwasserinstallation. Mit einem T-Stück, etwa 0,5m Rohr und einer Durchschleif-Wandscheibe lässt sich der Ring auf einfache Weise schließen. Die Aufteilung des Volumenstroms auf zwei Leitungen zeigt deutliche hydraulische Vorteile gegenüber der Reiheninstalla­tion, wie Bild 5 zeigt. So sinkt der Druckbedarf der Ringinstallation (1500mbar) bei gleichem Spitzenvolumenstrom gegenüber der Reiheninstallation (2085mbar) um 27 % ab. Die Ringinstallation kann komplett in 16 x 2mm ausgeführt werden, was einen deutlich geringeren Wasserinhalt von 2,75 ­Litern zur Folge hat.

Bleibt die Frage, ob sich die Dimensionierung, der Wasserinhalt und der Druckbedarf mithilfe sogenannter druckverlustoptimierter Rohrsysteme mit besonders niedrigen Zeta-Werten maßgeblich verbessert. Für die in Bild 3 gezeigte Durchschleif-Reiheninstallation ergibt sich dann ein Druckbedarf einschl. Mindestfließdruck der Armatur von 1790mbar. Der Druckbedarf liegt also um 290 mbar höher als bei der in Bild 4 gezeigten Ringinstallation. Die Dimensionierung erfordert auch hier zunächst eine Installation mit 20x2,8-mm-Rohr bis zur Badewanne. Danach kann mit der Dimension 16 x 2,2mm installiert werden. Der Wasserinhalt der Rohrleitung im Stockwerk beträgt mit dem druckverlustoptimierten System 3,57 Liter und liegt 30 % über dem Wasserinhalt der Ringleitung. Das Beispiel zeigt, dass die alleinige Fokussierung auf einen optimalen Zeta-Wert weder günstigere Rohrquerschnitte noch bessere Druckverhältnisse liefert.

Das Potenzial zur Druckverlustoptimierung liegt vielmehr in der Wahl der richtigen Installationsart. So ist der Einfluss des Zeta-Wertes auf den Druckbedarf in diesem typischen Beispiel mit 14 % nur halb so groß wie der Einfluss der Installationsart (Bild 5). Anhand der Druckverlustformel für Einzelwiderstände lässt sich dies leicht nachvollziehbar erklären:

Δp E = ζ(ρ/2)v 2

Der Zeta-Wert eines Fittings geht in diese Formel als linearer Faktor ein. Halbieren sich die Zeta-Werte, so halbiert sich auch der Druckverlust. Wählt man allerdings eine Ringinstallation, in der sich die Strömung aufteilt, so sinkt die Fließgeschwindigkeit im System. Der Einfluss der Fließgeschwindigkeit geht quadratisch in die Druckverlustbestimmung ein, sodass dessen Einfluss auf den Druckbedarf deutlich größer ist.

Die Ringinstallation ermöglicht dabei nicht nur möglichst geringe Leitungsquerschnitte und Wasserinhalte, sondern auch das komplette Durchspülen des Stockwerks-Leitungssystems von jeder Entnahmestelle in Küche und Bad. Sie entspricht daher der in der VDI-Richtlinie 6023 „Hygiene in Trinkwasserinstallationen“ definierten Forderung nach kleinstmöglichen Rohrquerschnitten und Leitungslängen.

Ein weiterer Vorteil der Installationsart zeigt sich in der höheren Versorgungssicherheit. Wenn beispielsweise abweichend von den geplanten Duscharmaturen nachträglich ein Modell mit deutlich größeren Zapfmengen, wie z.B. eine Rainshower-Brausearmatur installiert wird, stehen deutlich größere Druckreserven zur Verfügung, um den erhöhten Spitzenbedarf abzudecken.

Ringleitungen richtig bemessen

Die Bemessung von Ringinstallationen sollte immer mithilfe des in DIN 1988-300 vorgeschlagenen Hardy-Cross-Verfahrens durchgeführt werden. Dabei werden die Volumenströme im Ring abhängig von den Druckverlusten und Zapfvolumenströmen ermittelt. Das in der Uponor-HSE-Planungssoftware integrierte Verfahren ermöglicht dabei nicht nur die Bemessung anhand der ermittelten „normativen“ Spitzenvolumenströme, sondern auch eine Simulation von tatsächlichen Zapfvorgängen. Damit lässt sich die Aufteilung der Volumenströme jeder Teilstrecke in der Ringinstallation jederzeit überprüfen und gegebenenfalls optimieren.

Bei Zapfvorgängen sollte zur Erreichung eines möglichst hygienischen Betriebs möglichst eine turbulente Strömung in der Ringleitung herrschen. Die HSE-Software macht durch einen entsprechenden Hinweis automatisch auf zu geringe Strömungsgeschwindigkeit (laminare Strömung) aufmerksam. Die Verwendung der Software ermöglicht dem Planer oder Installateur damit die volle Kontrolle über die trinkwasserhygienisch relevanten Strömungsbedingungen in der Installation.

Ringleitungsinstallation auf dem Prüfstand

In der abschließend vorgestellten Prüfstandmessung werden Ringleitungsinstallationen verschiedener Hersteller miteinander verglichen, um auch hier den Einfluss des Zeta-Wertes von Einzelwiderständen auf den Druckverlust und die möglichen Entnahmemengen zu untersuchen. Dazu wurde das Mehrschicht-Verbundrohrsystem von Uponor in einer typischen Badinstallation spiegelgleich neben einem System mit druckverlustoptimierten Fittings nach dem in Bild 6 dargestellten Schema installiert. Für beide Systeme wurden über einen vorgeschalteten Druckminderer unmittelbar vor der Installa­tion gleiche Eingangsdruckverhältnisse hergestellt. An der Badewannenarmatur wurde eingangsseitig der noch zur Verfügung stehende Fließdruck gemessen ( Bild 7 und 8 ). Darüber hinaus wurden in zwei Messreihen die Zapfvolumenströme beider Systeme ermittelt.

Das Ergebnis: Der Druckverlust liegt bei gleichem Eingangsdruck für das Uponor-MLC-System mit 50mbar geringfügig höher als beim Zeta-Wert-optimierten System. Diese Druckreserve hat marginale Auswirkungen auf die Zapfmengen, wie die nachfolgenden Messergebnisse zeigen. So lassen sich 120 Liter – beispielsweise für eine Badewannenfüllung – mit der Uponor-Installation in 10:34 Minuten füllen, während das Zeta-Wert-optimierte Rohrsystem die Badewanne 16 Sekunden schneller füllt (Bild 9). Ein in der Praxis aus Sicht des Nutzers zu vernachlässigender Unterschied.

Fazit

Potenzial zur Optimierung von Druckverlusten und der Trinkwasserhygiene in Stockwerksinstallationen bietet vor allem die Wahl der richtigen Installationsart. Durchschleif-Reiheninstallationen mit einer hohen Anzahl in Serie geschalteter Verbraucher sind auch bei Verwendung druckverlustoptimierter Fittings nicht das Optimum in Sachen Trinkwasserhygiene und Druckbedarf. Ganz im Sinne der VDI-Richtlinie 6023 liefert die Ringinstallation deutlich verbesserte Druckverhältnisse, kleinstmögliche Rohrquerschnitte und einen kompletten Wasseraustausch bei Nutzung jeder einzelnen Armatur am Ring. Die Bemessung und Simulation kann mit der HSE-Planungssoftware nach dem Hardy-Cross-Verfahren durchgeführt werden. Der Einfluss von druckverlustoptimierten Form- und Verbindungsstücken auf die Zapfmengen liegt für eine typische Installation im Bad bei 2,6 %. In der Praxis ergeben sich damit keine signifikanten Vorteile bei den erreichbaren Zapfraten.

Autor

Dipl.-Ing. Matthias Hemmersbach ist Leiter Markt­segment Planer bei der ­Uponor GmbH in 22415 Hamburg, Telefon (0 40) 3 09 86-0, E-Mail: matthias.hemmersbach@uponor.com