Springe auf Hauptinhalt Springe auf Hauptmenü Springe auf SiteSearch
Barrierefrei, Silver Surfer und 55 plus

Komfortbäder möglichst barrierefrei

Kunden verlangen immer häufiger nach bodenbündigen Duschen, benutzerfreundlichen Waschtischen und Armaturen, die nicht nur schön aussehen, sondern auch für jede Generation optimale Nutzungsbedingungen im Bad schaffen. Der Kundenkreis für diese Konzeption ist ein großer und aufgrund der demografischen Entwicklung wachsender Markt. Er umfasst alle Bauherren, die ein exklusives Badezimmer gestalten möchten und auch bereit sind, die Kosten zu tragen. Denn sie haben neben den optischen Argumenten auch viele funktionsorientierte Gründe, die den Einzelnen motivieren, einen größeren Geldbetrag zu investieren.

Was heißt Komfortbadplanung?

Hierbei handelt es sich um eine individualisierte und ganzheitliche Raumplanung, die nicht nur die üblichen Bestandteile des Bades wie Wanne, Waschtisch und WC enthält, sondern diese Elemente im Raum harmonisch zusammenfügt und zugleich alle weiteren notwendigen Aspekte gleichwertig berücksichtigt (Bild 1). Fliesen, Farben, Materialien und besonders Licht sind integrale Einrichtungselemente, die von Anfang an mit einzubinden sind. Die Planung ist vorausschauend auszuführen. Das Komfortbad von heute ist das seniorengerechte Bad von morgen, ohne große Umbauarbeiten. Heute kann der Nutzer die Großzügigkeit der Raumgestaltung einfach nur genießen, für morgen gibt sie ihm die Sicherheit, die benötigten Bewegungsflächen und Hilfen für den Alltag schon zu haben. Es ist ein fließender Übergang. Der Sitz in der Dusche ist heute eine Bequemlichkeit, morgen aber schon eine notwendige Unterstützung im täglichen Ritual.

Die hohe Kunst der Beratung

Bei der Kommunikation mit dem potenziellen Kunden für ein Komfortbad ist psychologische Einfühlung wichtig. Die Käufergruppe zeichnet sich heute durch aktive und zumeist erfolgreiche Menschen aus. Bedingt durch die Langlebigkeit eines Badezimmers denken die meisten schon heute an die Wirklichkeit von morgen. Alt werden möchte jeder und es ist auch jedem bewusst, dass man sich im Alter vielleicht nicht mehr so bewegen kann wie in jungen Jahren. Aber das Thema anzusprechen und darüber zu reden, zu akzeptieren, dass man selber irgendwann einmal mit Bewegungseinschränkungen leben muss, scheuen doch die meisten.

Vielen Kunden ist es unangenehm, sich mit Themen wie einer WC-Erhöhung auseinanderzusetzen. Die Lösung in einem Beratungsgespräch ist, die Erhöhung zwar anzusprechen, aber das Drumherum so spannend zu gestalten, dass es sich für die Bauherren angenehm anfühlt. Das optische Erscheinungsbild eines jeden Bades muss individuell auf den Kunden zugeschnitten werden. Die technischen Vorkehrungen sind dabei inklusive, das gibt Sicherheit. Sicherheit hat für die Zielgruppe einen hohen Stellenwert. Die Aufgabe des Planers besteht nun darin, die ­Sicherheitsvorkehrungen optisch schön zu gestalten. Den Charme von Krankenhaus­design mag niemand.

Zudem sollte neben der Beratung in der Ausstellung immer ein Besuch vor Ort erfolgen. Wichtig ist hier, die technischen Gegebenheiten zu erfahren, auch über den eigentlichen Raum hinaus. Häufig steht der Anspruch auf ein rollstuhlgerechtes Bad im Vordergrund, der nach Besichtigung vor Ort aber schnell über Bord geworfen wird. Um ein Bad mit einem Rollstuhl nutzen zu können, müssen auch die Wege dorthin entsprechend gestaltet sein. Wenn die Bauherren sich dessen bewusst werden, ist der Weg frei für die sinnvolle Planung eines Komfortbades.

Planungsdetails

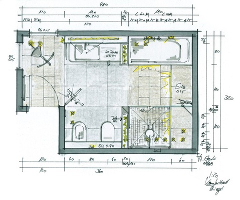
Die Raumkonzeption und welche Artikel in einem Komfortbad Platz finden sollen, richtet sich nach den individuellen Gegebenheiten und Wünschen der Bauherren. Hier ist eine saubere architektonische Konzeption gefragt, die den Raum in ein harmonisches Gesamtbild zusammenfügt. Nicht das Aneinanderreihen von Funktionselementen ist gefragt, sondern die Erstellung eines harmonischen Ensembles unter Beachtung von Raumgeometrie, Lichteinfall und Linienführung. Zu den einzelnen Sanitärelementen gibt es dennoch einige Tipps und Tricks, die bei der Komfortbadplanung bedacht werden sollten. Ein Beispiel dafür ist die in Bild 2 dargestellte Badkonzeption. Hier war die Planung eines großzügigen Badambientes unter den Gesichtspunkten der Komfortbadplanung, nicht nach DIN 18040, gefordert.

Der Badplaner hat es leichter, wenn ihm eine Raumgröße jenseits der üblichen 8 m 2 zur Verfügung steht. Bei der anvisierten Zielgruppe ist das häufig der Fall. Unter Umständen wird das Bad in ein früheres Kinderzimmer verlegt und vergrößert sich damit auf 12 m 2 und mehr. Generell sind die Bewegungsflächen recht großzügig anzulegen. Heute freuen sich die Nutzer über ausreichend Platz, morgen ist er nötig, um mit einer Gehhilfe oder einem Rollator den Raum selbständig zu nutzen. Durchgangsbreiten sollten nicht unter 80cm liegen, gerne auch bei 100cm.

Entspannen in der Badewanne

Die Badewanne wird in den „Letztbädern“ der Bauherren nur noch integriert, wenn einer von ihnen gerne beim Baden entspannt. Die Position der Wanne sollte in einem beruhigten Bereich des Raumes liegen. Das Drumherum muss ansprechend gestaltet sein, ebenso ist dem Blick aus der Badewanne Beachtung zu schenken. Die Wanne selber muss der Größe desjenigen angepasst werden, der am häufigsten badet. Zu klein ist ungemütlich und zu groß verunsichert den Nutzer, da er immer das Gefühl hat, wegzurutschen. Um das Ein- und Aussteigen zu erleichtern, sind Modelle mit beidseitig integrierten Griffen vorteilhaft. Ein der Formensprache der Einrichtung angepasster Haltegriff kann rechts und links neben oder auf den Wannenrand angebracht werden und so die Stützfunktion erfüllen, die beim Aussteigen notwendig ist. Dafür sollte der Platz eingeplant werden.

Eine weitere Funktionserleichterung ist der Untertritt, der allerdings in den letzten Jahren aus den meisten Bädern verschwunden ist. Er erlaubt es, näher an die Badewanne heranzutreten, zum Beispiel um jemandem in der Wanne zu helfen, ohne die Füße seitlich quer zu stellen. In einem modernen Komfortbad ist er Standard und wird optisch in Szene gesetzt durch eine Unterleuchtung (Bild 3). Hierfür sind im Sanitärmarkt mittlerweile LED-Schienen in unterschiedlichen Längen erhältlich, die einen schönen, indirekten Lichtschein aus dem Untertritt heraus über den Bodenbelag gleiten lassen.

Eine Sitzgelegenheit neben der Wanne wird gerne von den Bauherren angenommen – auch wenn sie nur als Ablage für Handtuch, Sektglas, Bodylotion und Co. oder als Fußstütze bei der täglichen Körperhygiene dient. Die Idee des beleuchteten Untertritts kann im angrenzenden Sitzblock fortgeführt werden, rein optisch verleiht das Licht dem großformatigen Block einen schwebenden und damit leichten Charakter (Bild 4).

Die Position eines Fensters über der Badewanne führt bei Badplanern immer wieder zu Diskussionen. Natürlich ist der ungehinderte Zugang zum Fenster eine komfortable Sache. Manchmal ist es aber aus unterschiedlichen Gründen sinnvoll, den Wannenkörper doch unter das Fenster zu rücken. Vielleicht um einen schönen Blick aus dem Fenster beim Baden zu genießen oder aber die Raumstruktur positiv zu verändern. Um das Fenster zu putzen, muss man in die Wanne steigen. Zum Lüften allerdings gibt es Alternativlösungen, die eingebaut werden können. Eine elektrische Fensteröffnung zum Kippen lässt sich auch in bestehende Fenster einbauen.

Bodenbündige Dusche ist Pflicht

Lässt der Platzbedarf es zu, verlangen die Bauherren großräumige Duschzonen, die am besten ohne Schwelle zu betreten sind. Dies stellt die Handwerksgesellen auf der Baustelle abwassertechnisch immer wieder vor neue Herausforderungen. Hier gilt es abzuwägen, welches System man wählt, um eine Bodenbündigkeit realisieren zu können. Als Antwort auf den Wunsch der Bauherren, die Dusche zu nutzen, ohne Türen bewegen zu müssen, kommen die heute so aktuellen Go-in-Duschen in Betracht. Zu beachten ist hier nur der benötigte Platzbedarf. Austretendes Spritzwasser darf nicht zu Beeinträchtigung im Badezimmer führen (120 bis 140 cm Spritzschutz ist sinnvoll) und auch der Durchgang in den Duschbereich sollte großzügig bemessen sein, möglichst 80cm Breite bei einem Komfortbad (Bild 5).

Die Materialien, die als Duschboden angeboten werden, sind in großer Vielfalt auf dem Markt vorhanden. Bei der Planung ist der Sicherheitsaspekt besonders wichtig. Die Rutschfestigkeit sollte durch das Material selber oder durch eine spezielle Beschichtung gewährleistet sein. Gerne werden die Duschelemente auch mit einer Fliese belegt. Hier ist darauf zu achten, dass die Rutschfestigkeit R9 vorhanden ist oder aber durch eine Mosaik­gestaltung mit einem hohen Fugenanteil der Effekt unterstützt wird. Das sicherste ist ein kleinformatiges Mosaik mit secura-Beschichtung. Der Reiz der Fliese liegt in der optischen Komponente – der Boden wirkt homogener und der Raum erscheint damit größer.

Auch auf die Details achten

Neben der Position und Größe der Dusche sind weitere Details wichtig. Beispielsweise ist eine Sitzgelegenheit in der Dusche für jedes Alter komfortabel – auch wenn sie nur zum Füßewaschen dient. Ob nun individuell gemauert oder als Block – gerne unterleuchtet – fügt sie sich als Gestaltungselement in das Raumkonzept ein (Bild 6). Fehlt der notwendige Platz, nimmt ein spezielles Relingsystem einen Klappsitz als Einhängemodell an einer Griffreling auf. Im Alter ist ein Griff in waagerechter und auch in senkrechter Position nötig, um Sicherheit zu geben. Das Relingsystem belegt den senkrechten Griff mit der Funktion Brausestange, der waagerechte Griff dient als Halteelement für den Einhängesitz (Bild 7). Natürlich kann ein Klappsitz auch alleine an die Wand gedübelt werden. Zu achten ist dabei auf die Optik, um den Bauherrn nicht abzuschrecken.

Der früher übliche Drahtkorb für die Shampooflaschen hat ausgedient. Wo irgend möglich freut sich jeder Badnutzer über eine hübsche Nische, die beleuchtet ein optisches Gimmick in der Dusche darstellt und alle Dusch­utensilien aufnimmt.

Das stille Örtchen

Wenn das WC nicht in einem separaten Raum untergebracht werden kann, ist es unbedingt aus dem Sichtfeld des Eintretenden zu nehmen! In der Breite sollten mindestens 80cm zur Verfügung stehen. Viele Bauherren der älteren Generation schätzen das Bidet als Zusatz für die tägliche Hygiene. Hier birgt sich die Möglichkeit, das WC zu einem späteren Zeitpunkt ­seitlich anfahrbar zu gestalten, indem der Bidetkörper entfernt wird (Bild 8). Auf jeden Fall sollten bei der Installation schon die Vorbereitungen für ein Wasch-WC getroffen werden. Elektrisch und wasserseitig vorbereitet kann die Montage auch nachträglich entschieden werden. Gerade ältere oder kranke Menschen schätzen es sehr, wenn sie die intimsten Handgriffe selber erledigen können. Im Zuge der Reiselust der Menschen setzt sich diese Einrichtung aus den asiatischen Ländern immer mehr durch und wird auch in unseren Breitengraden immer beliebter.

Das WC mitwachsen lassen

Besonders die Planung der WC-Einheit ist bei der Komfortbadplanung langfristig anzugehen. Die Sitzhöhe wird heute schon sehr häufig auf 45cm festgelegt – anstelle der Standardhöhen. Aber noch besser ist der Einsatz von einem höhenverstellbaren UP-Kasten. So kann man schnell und ohne große Umbau­arbeiten auf veränderte Lebenssituationen eingehen. Auch die nachträgliche Montage von Klappstützgriffen oder Halteelementen sollte möglich sein. Dafür sollten bei der Rohinstallation schon zusätzliche Befestigungselemente eingebaut oder die Vorwand massiv ausgemauert werden.

Zusatzausstattung zum WC

Die einfache Erreichbarkeit des Toilettenpapiers ist ein wichtiges Detail (am besten im rechten Winkel zum WC). Und da viele Bauherren die WC-Bürste nicht sehen möchten, ist die Alternative, sie in einem Modul in der Wand verschwinden zu lassen. Auch die Spülbetätigung an einen Ort zu verlegen, der im Sitzen bequem zu erreichen ist, zeichnet die Komfortbadplanung aus. Der Nutzer freut sich über eine pneumatisch oder elektronisch ­gesteuerte Spülung zwischendurch, ohne sich verdrehen zu müssen. Ein vertikaler Haltegriff, der das Aufstehen erleichtert, wird auch gerne angenommen. Er wirkt nicht als Halteelement, wenn er einen zusätzlichen Zweck zugeordnet bekommt, zum Beispiel als Zeitungshalter (Bild 9).

Die Diva im Raum

Der Waschtisch spielt auch in Komfortbädern häufig die Hauptrolle. Die Auswahl von Farbe, Material und Ausstattung ist auch hier sehr individuell. Die Möglichkeit, am Waschtisch sitzen zu können sollte eingeplant werden. Wenn sich das Platzangebot als sehr spärlich darstellt, kann man im ersten Schritt einen Waschtisch mit sinnvollem Unterschrank wählen, der abgehängt werden kann, wenn das Sitzen nötig sein sollte.

Viel beliebter sind allerdings Konsolenanlagen, die so gestaltet sind, dass unter dem Waschtisch der Platz frei bleiben kann und der Stauraum daneben angebracht wird. Nicht nur im Alter ist ein Sitzen am Waschtisch sinnvoll, sondern es erleichtert auch das Haarewaschen oder andere Verrichtungen, die am Waschplatz vorgenommen werden. Ein Schminkplatz in Kombination mit dem Waschplatz ist in den heutigen Badszenarien durchaus beliebt. So wird der Spiegel, der dann auch im Sitzen zu nutzen ist, noch sinnvoller. Entweder als beleuchteter Kosmetikspiegel oder aber auch seitlich neben dem Waschtisch als Raumelement angebracht – mit ein bisschen Phantasie ergeben sich mannigfaltige Variationen. Der eigentliche Sitz kann ein Badhocker sein. Eleganter allerdings wirken die Rollcontainer, die nicht nur eine Sitzmöglichkeit, sondern auch Stauraum bieten (Bild 10).

Wärme im Bad

Raumwärme ist ein weiteres wichtiges Thema. Da Pflegeleichtigkeit und Design bei der Komfortbadplanung stark in den Vordergrund rücken, bedient man sich hier gerne der glatten Heizplatten, die durch unterschiedliche Formen und Farben auf das Bad­ambiente abgestimmt werden können. Auch eine Handtuchreling vor der Heizplatte, die großen Badetüchern einen Platz zum Trocknen gewährt, erfreut sich allgemeiner Beliebtheit. Auf jeden Fall müssen die Handtücher einfach zu entnehmen und an der richtigen Stelle im Bad positionierbar sein.

Für ein Komfortbad unabdingbar ist auch eine Bodenheizung. Wenn in dem Objekt keine Warmwasserfußbodenheizung zur Ausführung kommt, bietet sich – auch in der Duschzone – der Einsatz einer elektrischen Fußbodentemperierheizung an. Die individuell programmierbare Zeitschaltuhr bietet täglichen energieorientierten Nutzen.

Lichtplanung wie im Wohnraum

Auch die Lichtgestaltung gehört zu einer Komfortbadplanung. Das Bad als Wohnraum bedarf unterschiedlicher Lichtszenarien, die die individuelle Nutzung unterstützen. Um dem gerecht zu werden, sollte sich das Raumlicht am besten durch einen Dimmer anpassen lassen. Die Lichtempfindlichkeit des Menschen verändert sich im Laufe der Zeit, darauf ist zu achten. Der alleinige Einsatz von Halogenspots an der Decke sollte überdacht werden, hier gibt es bessere Möglichkeiten. Die Beleuchtung kann als indirektes Licht und/ oder durch Wandleuchten angenehmer gestaltet werden, das Thema LED und auch Tageslicht in unterschiedlichen Lichtfarben wird auch immer interessanter.

Ein Funktionslicht am Waschtisch soll schattenfreie Sicht gewähren, Nischen, Stufen und Untertritte werden in Szene gesetzt durch Licht. Die Nutzung des WC bei Nacht wird vereinfacht, wenn ein Nachtlicht vorgesehen ist. Etwa durch einige sinnvoll positionierte LEDs, die per Bewegungsmelder beim Betreten automatisch leuchten. Sie spenden dem nächtlichen Besucher ausreichend Licht für seinen Besuch, lassen ihn aber nicht durch unnötige Lichtleistung schlagartig wach werden. Dieser Effekt ist auch gut in fensterlose Bäder zu integrieren.

Fazit

Kleinigkeiten machen Perfektion aus, aber Perfektion ist keine Kleinigkeit. Dieser Leitsatz von Leonardo da Vinci liegt der Komfortbadplanung zugrunde. Nicht nur die Auswahl der Produkte, sondern auch das Positionieren im Raum, die Aufnahme von Linien und die Detailabstimmung sind hier Gesetz. Das Zusammenspiel von Formen, Fliesen und Farben, unterstützt durch Licht, muss gut abgestimmt sein, bis hin zum passenden Fugenschnitt. Das ist der Designanspruch der Bauherren an das Komfortbad. Eingebettet in die optisch ansprechende Ausstrahlung des Raumes verstecken sich die kleinen Details der Hilfestellung und Voraussicht, die der Planer souverän integriert.

SBZ Checklisten

Waschtisch

Ist für eine Pflegeperson seitlicher Bewegungsraum nötig?

Ist die frontale Benutzung des Wasch­tisches gewährleistet?

Ist der Waschtisch unterfahrbar?

Sind genügend Ablageflächen im Greifbereich?

Werden Haltegriffe benötigt?

Sind die Armaturen funktionsgerecht?

Wird eine herausziehbare Handbrause ­benötigt?

Ist eine Thermostatarmatur notwendig?

Muss der Siphon zurückversetzt werden?

Kann der Spiegel auch in sitzender Position benutzt werden?

Ist der Waschplatz ausreichend beleuchtet?

Wird eine Sitzgelegenheit benötigt?

Toilette

Wird ein zusätzlicher Bewegungsraum (links/rechts) neben dem WC benötigt?

Sind ausreichende Bewegungsflächen vor dem WC vorhanden?

Ist ein WC mit größerer Einbautiefe (70cm) erforderlich?

Ist die Montagehöhe des WC angepasst?

Wird das WC mit einem Rollstuhl benutzt?

Kann die Spülung auch aus der Sitzposition problemlos bedient werden?

Ist der Toilettenpapierhalter auch aus der Sitzposition problemlos erreichbar?

Werden Halte- oder Klappgriffe benötigt?

Sind eine integrierte Spülbedienung oder ­Papierhalter im Klappgriff notwendig?

Wird eine Rückenstütze benötigt?

Sind automatische WC-Systeme sinnvoll?

Dusche

Ist ein ebenerdiger Duschplatz erforderlich?

Müssen Haltegriffe vorgesehen werden?

Ist ein rutschsicherer Bodenbelag eingebaut worden?

Wird ein Duschsitz benötigt?

Werden ergänzende Armlehnen benötigt?

Sind zugängliche Ablagemöglichkeiten vorhanden?

Sind die Armaturen funktionsgerecht?

Ist die Handbrause höhenverstellbar?

Ist eine zusätzliche Kopfbrause notwendig?

Ist eine Thermostatarmatur notwendig?

Ist Spritzschutz für Pflegepersonal erfor­derlich?

Ist die Duschabtrennung barrierefrei zu nutzen und nach außen zu öffnen?

Badewanne

Sind ausreichende Bewegungsflächen vor der Badewanne vorhanden?

Ist ein rutschsicherer Zugang gegeben?

Wird eine Sitzfläche vor oder seitlich der Wanne benötigt?

Kann die Armatur auch aus der Badewanne problemlos bedient werden?

Ist der Wannenablauf auch außerhalb der Wanne zu bedienen?

Wird eine zusätzliche Handbrause benötigt und ist diese problemlos zu erreichen?

Werden Halte- oder Klappgriffe benötigt?

Wird ein Badewannen-Lifter oder eine Hub­anlage benötigt?

Werden sonstige Einstieghilfen benötigt?

Ist eine rutschsichere Einlegematte gefragt?

Wird ein Wannensitz benötigt?

Autor

Innenarchitektin ­ Andrea Stark ist Badcenter-Leiterin des Großhandelshauses Richter + Frenzel in Köln. Mit ihren planerischen Fähigkeiten konnte sie als Siegerin beim SBZ-Bad-Kreativ-Wettbewerb überzeugen. Richter + Frenzel, 50825 Köln, Telefon (02 21) 54 04-2 41, andrea.stark@r-f.de , https://www.richter-frenzel.de/