Springe auf Hauptinhalt Springe auf Hauptmenü Springe auf SiteSearch
Anspruchsvolle Lichtplanung im Bad (Teil 4/6)

Licht und Leuchten

Durch gute Lichtgestaltung bzw. gutes Lichtdesign kann man Personen und Räume im Wortsinne ins richtige Licht setzen, weich und diffus ausleuchten, den Gesichtszügen schmeicheln, aber auch interessante Objekte durch ausgewählte Lichtsetzung im Badezimmer betonen.

Lichtplanung nach Richard Kelly

Um ein Badezimmer optimal zu planen, gibt es verschiedene Philosophien und Vorschläge für die Lichtgestaltung. Der Autor dieses Beitrags arbeitet gerne nach dem Prinzip von Richard Kelly. Richard Kelly, Lichtdesigner und Beleuchtungsmeister aus den 60er-Jahren hat als einer der ersten den Begriff „Lichtdesigner“ geprägt und ein sehr gutes Konzept für die Lichtplanung entwickelt. Zitat aus dem Handbuch der Lichtplanung (Ganslandt, 1993): „Richard Kelly richtet sich nicht mehr ausschließlich nach quantitativen Aspekten, sondern nach qualitativen Aspekten und fasst Anregungen aus der Wahrnehmungspsychologie und der Bühnenbeleuchtung zu einem einheitlichen Konzept zusammen. Kelly löst sich von der Vorgabe einer einheitlichen Beleuchtungsstärke als Zentralkriterium der Lichtplanung. Er ersetzt die Frage nach der Lichtquantität durch die Frage nach einzelnen Qualitäten des Lichts“. Aus diesem Grund definiert Richard Kelly drei Qualitätsstufen:

  • Licht zum Sehen (ambient luminescence)
  • Licht zum Hinsehen (focal glow)
  • Licht zum Ansehen (play of brilliants)

Licht zum Sehen – ambient ­luminescence

Mit diesem dreistufigen Konzept kann man aus der Vielzahl von Leuchten und Lichtquellen eine gute Lichtplanung für ganze Gebäude, für Hotels, aber auch für Privatwohnungen und vor allem für Badezimmer umsetzen. Die erste Stufe ist die Planung von Licht zum Sehen, auch ambient luminescence genannt. Dabei soll eine Grundbeleuchtung zur Verfügung gestellt werden, die für die gegebenen Sehaufgaben ausreicht. Dies können die Wahrnehmung des Raumes oder der Objekte sein oder auch nur die Orientierung in einem Raum. Dies ist die klassische Beleuchtung, die die meisten kennen und auch im Badezimmer umsetzen. Der Raum ist hell genug beleuchtet und man erkennt auf einen Blick die wichtigsten Dinge. Und hier einige Ideen für die Lichtgestaltung mit ambient luminescence:

  • Eine oder bei größeren Räumen auch mehrere schöne, großflächige Leuchten an der Decke erzeugen ein weiches Grundlicht für den Raum. Eine kleine Auswahl an Leuchten hierfür finden Sie auch in SBZ 09/2014.
  • Mehrere Downlights in der Decke, wenn möglich harmonisch angeordnet oder als Pärchen zusammengefasst. Das heißt, zwei Downlights werden durch einen Rahmen als Einheit verbunden (Bild 2).
  • Eine indirekt strahlende Lichtkante (Lichtvoute), versteckt in einer abgehängten Decke erhöht den Raum optisch und erzeugt ein weiches, schönes Grundlicht (Bild 3). Man kann in der Zwischenzeit mit LED-Bändern hier sehr viel umsetzen.

Licht zum Hinsehen – focal glow

Dieses Licht geht über die Grundbeleuchtung hinaus und berücksichtigt die Bedürfnisse des wahrnehmenden Menschen in der jeweiligen Umgebung. Durch Licht zum Hinsehen (focal glow) werden gezielt ­bestimmte Informationen aus der Allgemeinbeleuchtung herausgehoben; bedeutsame Bereiche werden betont, während Unwichtiges zurücktritt. Anders als bei einer gleichmäßigen Beleuchtung (Licht zum Sehen) wird die visuelle Umgebung strukturiert. Dieses Licht zum Hinsehen ist meist punktuell und sollte mindestens doppelt so hell sein wie das Licht zum Sehen (ambient luminescence). Und hier einige Ideen für die Lichtgestaltung mit focal glow:

  • Zum Beispiel durch eine eingebaute/eingelassene Nische an der Badewanne oder im Duschbereich mit Downlights (natürlich IP 65 und Niederspannung) oder ­einem LED-Band.
  • Dies kann auch durch eine oder mehrere schöne Wandleuchten umgesetzt werden, die den Raum strukturieren und ein wohnliches Ambiente erzeugen. Falls genügend Platz vorhanden ist, bitte zwei Wandleuchten nebeneinander verwenden. Dies erhöht die Harmonie. Wenn Sie sagen, Sie haben keinen Platz für Wandleuchten, schauen Sie sich um. Dort wo normalerweise der Heizkörper montiert wird oder die Handtuchhalter platziert sind, ist auch immer ein idealer Platz für Wandleuchten.
  • Auch eine Stehleuchte ermöglicht ein schönes Licht zum Hinsehen. Dies ist eine Lichtquelle, an dem das Auge hängen bleibt.
  • Wie wäre es mit einer indirekten Beleuchtung einer Sitzfläche durch eine Leuchtstofflampe oder ein LED-Band?
  • Auch ein indirektes Licht unterhalb der Waschtisch-Einheit, realisiert durch Leuchtstofflampen oder heutzutage durch LED-Bänder, vermittelt ein sehr schönes Lichtambiente.
  • Die auf einem kleinen Podest stehende und mit einem LED-Band oder Leuchtstofflampen indirekt oder direkt beleuchtete Badewanne ist eine Möglichkeit, die zweite Planungsstufe „Licht zum Hinsehen“ (focal glow) umzusetzen.
  • An Treppenstufen oder Kanten/Übergängen eingebaute Wallwasher, also kleine Halogen-oder LED-Leuchten, die indirekt nach unten strahlen (Bild 1), sind ebenfalls eine gute Idee für die Lichtgestaltung.
  • Wichtig: Auf jeden Fall muss das Licht zum Hinsehen mindestens doppelt so hell sein wie das Grundlicht, damit der Blick hingezogen wird.

Licht zum Ansehen – play of ­brilliants

Dieses Licht berücksichtigt die Tatsache, dass Licht nicht nur Objekte beleuchtet und Informationen hervorhebt, sondern selbst zum Objekt der Betrachtung und zur Informa­tionsquelle werden kann. In dieser Funktion trägt das Licht selbst zur ästhetischen Wirkung einer Umgebung bei. Hierbei ist der Begriff „play of brilliants“ deutlich aussagekräftiger als die deutsche Übersetzung. Dieses play of brilliants kann erreicht werden durch einen Sternenhimmel mit Halogenlampen oder Lichtfaserkabel, aber auch durch einen Kronleuchter, der funkelt.

Planungsvorschläge für die Beleuchtung

Aufbauend auf der bisher ausgeführten Lichtphilosophie von Richard Kelly hier noch einige weitere Planungsvorschläge des Autors für eine gelungene Lichtplanung:

Bezug nehmen auf die Formensprache: Der Architekt hat ja bei der Planung des Gebäudes und des Badezimmers (hoffentlich) schon eine gewisse Symmetrie eingesetzt. Diese aufnehmen und unterstützen.

Die Wertigkeit der Lichtquellen erhöhen: Dies geschieht durch Materialauswahl (Glasabdeckung statt Plexiglas, statt Floatglas echtes Weißglas verwenden). Floatglas ist wohl billiger, hat aber einen Grünstich, was die Haut unnatürlich wirken lässt.

Grundemotionen wecken: Dies kann durch die Verwendung von Wandleuchten und Kronleuchtern erreicht werden.

Nicht spiegelnder Boden: Grundsätzlich sollte der Boden nicht spiegelnd, sondern matt sein, denn der Mensch möchte festen Boden unter den Füßen haben. Ein spiegelnder Boden sieht schön aus, aber da sich in ihm das Licht spiegelt, vertieft es den Boden. Dies erzeugt das Gefühl, dass der Boden nicht stabil ist.

Farbiges Licht: Bezug nehmend auf den Begriff „play of brilliants“ sollte man eine vierte Planungsbasis einsetzen (play of color). Mit farbigen LEDs ist es möglich, die Raumwirkung eines Badezimmers zu steigern und zu verändern. Auf die Möglichkeiten, mit farbigem Licht zu arbeiten, gehen wir genauer im nächsten Artikel ein, der in der SBZ 21/2014 erscheint.

Aufgehellte vertikale Flächen vermitteln ein Gefühl der Sicherheit. Das bedeutet, dass die Beleuchtung von vertikalen Flächen wichtig ist.

Die Vertikalbeleuchtung von Gesichtern ist äußerst wichtig. Tiefe Augen- und Nasenschatten sollten vermieden werden. Das heißt kein direktes Licht von oben, sondern immer von der Seite. Am besten von beiden Seiten.

Licht sollte nicht nur aus einer Richtung kommen. Eine Mischung aus allgemeinem indirekten Licht (ähnlich wie Himmelslicht) und einem speziell gerichteten Licht (ähnlich wie Sonnenlicht) ist sinnvoll.

Direktes Licht sollte eher warm erscheinen, indirektes Licht eher kühler.

Diffuse bzw. matt reflektierende Materialien sollten mit weichem, großflächigem Licht beleuchtet werden und keinesfalls mit einem Spot.

Harte und glänzende Materialien wie Chrom oder Keramik können mit eng- und direktstrahlenden Lichtquellen ausgeleuchtet werden.

Warme Materialien wie Holz oder Stoffe sollten mit einer Lichtquelle ausgeleuchtet werden, die eine warme Lichtfarbe besitzt (das heißt Lichtquellen, die eine Farbtemperatur von 2700 K bis 3500 K besitzen), um die Materialeigenschaften und Materialreflexion zu untermalen.

Kühle Materialien wie Granit oder Chrom sollten mit einer Lichtquelle ausgeleuchtet werden, die eine kühle Lichtfarbe besitzt – das heißt Lichtquellen, mit einer Farbtemperatur ab 4000K oder höher.

Lichttechnische Berechnung ­eines Badezimmers

Nachdem wir die drei Planungsstufen von Richard Kelly und weitere Planungsvorschläge kennengelernt haben, kommen wir jetzt zur eigentlichen Lichtberechnung für ein Badezimmer. Diese nachfolgende einfache Lichtberechnung mit Lux und Lumen ist nur für die erste Planungsstufe Licht zum Sehen und eingeschränkt auch für die zweite Planungsstufe Licht zum Hinsehen geeignet. In der dritten Planungsstufe play of brilliants rechnet man nicht mehr, sondern plant dort nach ästhetischen Prinzipien.

Nun zur ersten Planungsstufe (Licht zum Sehen). Ganz allgemein: Für private Räume, insbesondere private Badezimmer, gibt es keine DIN-Normen. Das heißt, Sie können planen, was Sie wollen. Anders sieht es aus, wenn man für öffentliche Räume, Hotels etc. plant. Dann gilt die DIN EN 12464-1:2011 „Beleuchtung von Arbeitsstätten – Arbeitsstätten in Innenräumen“ und die Technischen Regeln für Arbeitsstätten ASR A3.4 „Beleuchtung“. In diesen Normen und Regeln ist genau definiert, dass in Waschräumen, Bädern, Toiletten mindestens eine horizontale Beleuchtungsstärke von 200 Lux vorhanden sein muss.

Um trotz aller Freiheit im privaten Bereich einen gewissen Anhaltspunkt für eine gute Lichtplanung zu erhalten, sollten folgende Grundwerte eingehalten werden:

  • klassische Beleuchtung 200 Lux horizontal
  • gehobene Beleuchtung 300 Lux horizontal
  • komfortable Beleuchtung 500 Lux horizontal

Das bedeutet, wenn ein klassisches Badezimmer (klassisch bedeutet dabei, ein normales Badezimmer mit üblicher Größe und Einrichtung) nach dem Prinzip von Richard Kelly beleuchtet werden soll (1. Planungsstufe: Licht zum Sehen), so sollte im Mittel in diesem Badezimmer eine Beleuchtungsstärke von 200 Lux vorhanden sein. Dieser Wert gilt für die Nachtsituation, also ohne Tageslicht. Diese 200 Lux sind definiert in einer Höhe von 72cm über dem Boden (angepasst an die DIN und Arbeitsstättenrichtlinie) und wird als horizontale Beleuchtungsstärke definiert.

Die Messung kann durch ein Messgerät (Luxmeter) nachgeprüft werden (Bild 7) . 200 Lux hört sich, je nachdem wie man es betrachtet, nach sehr wenig oder sehr viel an. Grundsätzlich kann man sagen, dass die meisten Badezimmer in Deutschland eher selten den Wert von 200 Lux erreichen (bei Nacht bzw. ohne Licht durch das Fenster). Andererseits haben wir bei einer typischen morgendlichen Beleuchtung nur durch Tageslicht (um 7.00 Uhr im März ca. 500 Lux) im Badezimmer bei sonnigem Wetter deutlich mehr.

Wichtiger Hinweis: An diese empfohlenen Werte von 200 Lux, 300 Lux bzw. 500 Lux muss man sich nicht sklavisch halten. Es sind Richtwerte, die im Mittel in einem Badezimmer erreicht werden sollten, damit man alle Gegenstände und Raumelemente gut erkennen kann. Ist es an einer Stelle etwas dunkler, ist das nicht so schlimm. Nur sollte die Beleuchtung schon gleichmäßig sein und es sollten keine zu großen Helligkeitsunterschiede vorhanden sein. Markante Helligkeitsunterschiede sind bei der zweiten oder dritten Planungsstufe erlaubt, wo wir ja Dinge extra hervorheben wollen.

Besitzt das Bad eine moderne Inneneinrichtung, ist es sehr hell eingerichtet und eventuell auch größer als 8 m², dann schlägt der Autor als Grundwert eine horizontale Beleuchtungsstärke von 300 Lux vor (gehobene Beleuchtung). Dies wäre eigentlich ein Wert, den heutige moderne Badezimmer schon haben sollten. Ist ein Bad sehr komfortabel und großzügig eingerichtet, wie in Hotels mit vier oder fünf Sternen oder großzügigen privaten Wohnungen, dann sollte dieses Badezimmer im Mittel einen Beleuchtungsstärkewert von 500 Lux erreichen.

Beleuchtungsstärke messen

Beleuchtungsstärkemesser (Luxmeter) genannt, gibt es in sehr vielen Variationen (Details dazu finden Sie auch im Artikel in SBZ 6/2014). Der Unterschied liegt darin, wie umfangreich der Messbereich ist. Entscheidend für eine gute Qualität ist die Angabe, wie genau niedrige und sehr hohe ­Beleuchtungsstärken gemessen werden können. Für eine Messung von Beleuchtungsstärkewerten im Badezimmer (200 bis 500 Lux) genügen auch einfache, kostengünstige Geräte. Es gibt fürs Smartphone auch schon einige Apps, mit denen man scheinbar Beleuchtungsstärken messen kann. Aber bisher hat der Autor noch keine wirklich korrekt messende App gefunden.

Überschlagsrechnung für 1. Planungsstufe Licht zum Sehen

Um für ein Badezimmer die entsprechende Anzahl von Leuchten und Leuchtmitteln zu berechnen, benötigt man normalerweise mathematisch sehr umfangreiche Formeln, die auch ganz genau die Materialreflexionen berücksichtigen (Stichwort Doppelintegral). Will man aber nur eine Überschlagsrechnung nach Kelly für einen Raum machen, so können die Formeln deutlich reduziert werden und man kann mit einer einfachen Formel rechnen. Für die Überschlagsrechnung genügen die Begriffe Lux und Lumen. Zur Erinnerung:

  • Beleuchtungsstärke E ist das Maß für das auf eine Fläche auftreffende Licht. Die Einheit der Beleuchtungsstärke ist Lux (Lux).
  • Lichtstrom ϕ (phi) ist die von einer Lichtquelle in den gesamten Raum abgegebene Strahlung (Strahlungsfluss). Der Lichtstrom ist in der Einheit Lumen (lm) definiert.
  • Um in einem Raum mit einer Grundfläche A (m²) eine gleichmäßige horizontale Grundbeleuchtungsstärke zu errechnen, kann man mit folgender Überschlagsformel rechnen:

E = ϕ/A – so lautet die Formel 1

E = Beleuchtungsstärke [Lux, lx]

ϕ = Lichtstrom [Lumen, lm]

A = beleuchtete Fläche [m²]

Wir können diese Formel auch umstellen, da wir ja je nach Raumtyp fordern, dass entweder 200 Lux , 300 Lux oder 500 Lux erreicht werden sollen. Dann gilt:

ϕ = E x A (Formel 2)

bzw. Lichtstrom phi (Lumen) = Beleuchtungsstärke E (Lux) x Fläche A (m²).

Beispiel-Badezimmer

Um in einem Raum von 8 m² Größe (Bild 9), eine gleichmäßige Grundbeleuchtungsstärke von 200 Lux horizontal zu erreichen, benötigen wir laut Überschlagsrechnung (Formel 2) einen Gesamtlichtstrom von 1600 Lumen (200 Lux x 8 m² = 1600 lm).

Damit weiß der Badplaner, dass dieser 8 m² grosse Raum für die Grundbeleuchtung (Licht zum Sehen) von 200 Lux rund 1600 Lumen Lichtleistung benötigt. Dies kann man dadurch erreichen, dass man folgende Leuchtmittel verwendet:

  • 2 Glühlampen à 75 W (12 lm/W) ∼ 1800 Lumen (nur zur Verdeutlichung)
  • 3 Halogenglühlampen à 35 W (15 lm/W) ∼ 1575 Lumen
  • 2 Halogenglühlampen à 50 W (18 lm/W) ∼ 1800 Lumen
  • 2 Energiesparlampen à 18 W (54 lm/W) ∼ 1944 Lumen
  • 3 LED-Spots à 7 Watt (73 lm/W) ∼ 1533 Lumen

Sie sehen, es gibt ganz unterschiedliche ­Ergebnisse, je nachdem, welche Lichtquelle und Wattage man einsetzt. Und damit hat man natürlich auch unterschiedliche Möglichkeiten der Platzierung der Lichtquellen im Raum. Da der Autor Harmonie und Pärchenbeleuchtung liebt, ist der Vorschlag, für dieses Beispiel-Badezimmer 4 x 35-Watt-Halogenlampen zu verwenden, angeordnet als 2 x 2 Pärchen (Bild 9) . Natürlich ist der eingesetzte Lichtstrom jetzt höher als geplant (4 x 35 W x 15 lm/W = 2100 lm), aber die meisten Menschen finden hellere Räume angenehmer und man kann Lichtquellen, vor allem Halogenlampen, sehr gut dimmen.

Woher wissen wir die Lumenwerte der einzelnen Lichtquellen? Im Idealfall stehen die Lumenwerte auf den Verpackungen der Leuchtmittel oder die Leuchtenfirmen geben den Lumenwert direkt an. Ansonsten noch einmal den Artikel 3/2014 oder die Check­liste aufschlagen oder downloaden, dort stehen Überschlagswerte für die Lichtausbeute verschiedener Lampentypen:

  • Glühlampen: ca. 12 lm/Watt
  • Halogenglühlampen: ca. 15–18 lm/Watt
  • Energiesparlampen: ca. 50–95 lm/Watt
  • LEDs: ca. 50–90 lm/Watt

Einschränkung der ­Überschlagsformel

Bei der Anwendung der Überschlagsformel bzw. der Überschlagsberechnung ist Folgendes zu beachten:

  • Die Werte gelten alle nur für das nackte Leuchtmittel, also ohne Glasabdeckung.
  • Die Formel gilt nur für normale Raumhöhen, das heißt 2,4m bis 3m.
  • Die Formel gilt nur für weiße Raumflächen.
  • Die Formel gilt nur für Leuchten bzw. Leuchtmittel, die nach unten strahlen.

Was macht man, wenn man eine Glasabdeckung hat, aber keine genauen Angaben vom Hersteller, wie viel Licht das Glas schluckt? Eine typische Glasabdeckung bei einer Deckenleuchte hat einen Transmissionsgrad von 70 %. Das heißt 30 % mehr Licht ist notwendig. Folglich benötigt man in dem oben ausgeführten Beispiel statt 1600 Lumen jetzt 2080 Lumen. Besteht die Glasabdeckung aus Milchglas, dann gilt die Daumenregel, dass ca. 50 % vom eintreffenden Licht geschluckt werden. Das heißt, man muss das Lumenpaket in diesem Fall um das Doppelte erhöhen, also auf 3200 Lumen.

Was macht man, wenn der Raum dunkel gefliest ist? Dunkle Oberflächen haben meist einen Reflexionsgrad von ca. 10–15 % im ­Vergleich zu hellen Materialien mit ca. 50 % Reflexionsgrad. Das heißt, in dem oben ausgeführten Beispiel sollte man den Praxisfaktor 1,5 einsetzen, also statt 1600 Lumen jetzt 2400 Lumen (oder das Doppelintergral lösen). Trotzdem kann es passieren, dass Räume mit dunklen Materialien psychologisch noch deutlich dunkler wirken, als die Messwerte es darstellen. Der Praxisvorschlag von dem Autor: Verdoppeln Sie im Notfall die Lichtmenge.

Was macht man, wenn die Leuchten (z.B. Wandleuchten) indirekt abstrahlen? Wandleuchten, die indirekt nach oben an die Decke strahlen, benötigen ca. doppelt so viel Licht wie direktstrahlende Leuchten. Also muss in diesem Fall der Faktor 2 verwendet werden.

Falls Sie jetzt völlig verwirrt sind mit den ganzen Faktoren und Berechnungen, dann können Sie solche Dingen auch mit einem Rechenprogramm genau berechnen. Dazu gibt es zwei sehr gute kostenlose Lichtsimulationsprogramme zum Downloaden: Relux und DIALux. Der Autor empfiehlt natürlich Relux, da er dieses Programm vor über 20 Jahren entwickelt hat und sozusagen der Vater von Relux ist. Aber auch das Programm DIALux ist sehr gut. Leider haben beide Programme nur eine eingeschränkte Anzahl an Bademöbeln, Fliesen etc., dafür aber von über 100 Leuchtenfirmen alle Leuchtentypen mit den korrekten lichttechnischen Angaben. Man findet sie unter: https://relux.com/ bzw. http://www.dial.de.

Meist sind höhere Luxwerte nötig

Die Überschlagsformel gilt natürlich auch für die Beleuchtungsstärkewerte von 300 Lux bzw. 500 Lux. Entsprechend erhöhen sich dann natürlich die notwendigen Lumenwerte. Bei 300 Lux Grundbeleuchtung werden dann schon 2400 Lumen benötigt. Bei 500 Lux dann 4000 Lumen, plus die oben aufgeführten Korrekturen und Praxisfaktoren. Will man aber gar nicht alle Bereiche in dem Badezimmer gleichmäßig ausleuchten, sondern nur den Hauptbereich, so muss man die Badewanne oder die Dusche nicht mit einbeziehen und diese Flächen einfach bei der Überschlagsrechnung weglassen. Das heißt in dem Beispiel-Badezimmer ist dann die Grundfläche ohne Badewanne nur noch rund 6 m² groß. Entsprechend verringert sich die notwendige Lichtleistung (Lumen) und die Anzahl der Leuchten. Sie sehen, man kann mit der Überschlagsrechnung schon sehr gut arbeiten, um einen Eindruck zu erhalten, wie viele Leuchten man benötigt.

Komplett geplantes ­Badezimmerbeispiel

Nachfolgend finden Sie eine vollständige theoretische Planung des Beispielraums mit Downlights, Wandleuchten und einer unterleuchteten Badewanne zur Veranschaulichung, jedoch in diesem Fall auf der Basis von 300 Lux (gehobene Beleuchtung). Da das 8 m² große Badezimmer mit 300 Lux Grundbeleuchtung beleuchtet werden soll, wird entsprechend der Formel 2400 Lumen benötigt (300 Lux x 8 m² = 2400 Lumen). Da das Badezimmer gleichzeitig dunkle Fliesen besitzt, wird noch der Praxisfaktor von 1,5 mit berücksichtigt. Für dieses ­Badezimmer werden also 3600 Lumen benötigt. Eingesetzt werden sollen im ersten Planungsschritt Niedervolt-Halogendownlights mit 35 Watt. Entsprechend der Formel werden aus diesem Grund mindestens sieben Downlights benötigt (3600 Lumen : 35W : 15lm/Watt = 6,87). Um eine ästhetische Grundbeleuchtung zu erhalten, können 6 oder 8 Downlights ein­gesetzt werden. Da der Autor gerne Pärchen einsetzt, werde zwei Paare im Raum und zwei Paare über der Badewanne platziert. Der Bereich über der Badewanne benötigt nicht so viel Licht, daher kann man dort auch alternativ 20-Watt-Halogenlampen einsetzen.

Um den Duschbereich komfortabel auszuleuchten, werden dort 2 x 20-Watt-Halogenlampen eingesetzt. Eine Besonderheit ist noch das Waschbecken. Für eine Extra-Beleuchtung der Hände beim Waschen wird noch eine Halogenlampe (20 Watt) direkt über dem Wasserablauf platziert. Das heißt, in der ersten Planungsstufe (Licht zum Sehen) würden für dieses Badezimmer insgesamt folgende Halogenlampen eingesetzt: 4 x 35 Watt und 7 x 20 Watt. Damit werden die geforderten 3600 Lumen auf jeden Fall erreicht bzw. in diesem Fall sogar überschritten (4 x 35W x 15lm/W = 2100 Lumen plus 7 x 20W x 15lm/W = 2100 Lumen). Als Downlights könnten zum Beispiel Downlights der Firma Delta Light verwendet werden.

Für die zweite Planungsstufe (Licht zum Hinsehen) werden in diesem Fall eine oder zwei Wandleuchten mit eingeplant (z.B. Talo Parete Halo der Firma Artemide oder Sento der Firma Occio) sowie eine indirekt beleuchtete Badewanne mit LED-Band Typ K-Linear der Firma Kiteo.

Dieser Lichtplanungsvorschlag kann natürlich jederzeit modifiziert werden. Es gibt eine ganz Reihe an Möglichkeiten, die Badezimmerbeleuchtung auch anders zu planen. Z.B. könnte man statt der zwei Pärchen für die Grundbeleuchtung auch vier Downlights im Quadrat anordnen, mit einem Rahmen umfassen und damit einen Art Kronleuchter erzeugen. Für die zweite Planungsstufe (Licht zum Ansehen) gibt es natürlich auch noch weitere Möglichkeiten wie eine indirekte Beleuchtung des Waschtischplatzes mit einem LED-Band oder den Einbau einer Nische entlang der Badewanne. Die Umsetzung der dritten Planungsstufe (play of brilliants) würde der Autor in diesem kleinen Badezimmer eher nicht verwirklichen. Dazu ist der Raum zu klein. Mit dem Einsatz einer Wandleuchte der Firma Occio hat man schon eine sehr schöne und brilliante Leuchte.

Lichtideen von Zierath

Nachfolgend sehen Sie Auszüge aus Lichtplanungsideen der Firma Zierath, wie man ein Badezimmer beleuchten kann. Die ausführliche Planung kann man downloaden (Lichtidee Nr. 4). Auch hier sieht man, dass Zierath im Prinzip die Vorgehensweise nach Richard Kelly umgesetzt hat, wenn auch Zierath dies etwas anders nennt (Grundlicht, Akzentlicht, Funktionslicht bzw. in anderen Beispielen Spiegellicht).

Als Grundlicht werden hier Einbau-Downlights im Deckensegel verwendet (Quadra mit einer 12-V-Niedervoltlampe, 35 Watt, Lichtfarbe warmweiß). Als Akzentlicht schlägt Zierath ein LED-Band im Deckensegel vor (60 SMD-LED je laufenden Meter, Lichtfarbe warmweiß), zwei Wandleuchten (Onio mit LED 2 x 3 Watt, Lichtfarbe warmweiß), eine unterleuchtete Konsole und indirekt beleuchtete Nischen mit gleichem LED-Band wie im Deckensegel. Die Lichtplanung für dieses Gäste-WC ist gut umgesetzt, wenn auch mit einem kleinen Fehler am Rande: Die mittlere Position der Downlights direkt über dem Standort der Person vor dem Spiegel ist nicht ganz glücklich, da diese Lichtposition zu tiefen Augenschatten führt.

Praxisbeispiel Stammer

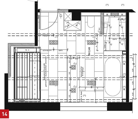
Neben diesen beiden komplett theoretisch durchgeplanten Beispiel-Badezimmern soll nachfolgend ein reales und relativ großes Badezimmer vorgestellt werden, geplant von der Innenarchitektin Nicola Stammer. Es handelt sich hier um ein Badezimmer mit 18 m² Grundfläche. Bild 13 stellt den Entwurfsplan dar, Bild 14 den Ausführungsplan. Eingeplant ist eine innenliegende Sauna (Inipi, Duravit) mit eigenem farbigen LED-Saunalicht, eine Badewanne (Sundeck, Duravit), eine geflieste Dusche, ein Waschtisch (Beyourself, Alape) mit einem Spiegel (Alape adit) mit seitlich angeordneten, dimmbaren Leuchten, ein Schrankelement (Tischlerbau) mit Downlights und eine Sitzbank mit indirekter Beleuchtung.

Für die Grundbeleuchtung hat Frau Stammer acht Downlights eingeplant, die als Pärchen ausgeführt sind (Niedervolt-Halogenlampen, Typ Shop der Firma Oligo, mit Leuchtmittel Philips Masterline QR-LP, 12V, 45W, siehe Nummerierung mit 1). Zur Objektbetonung hat Frau Stammer dann einzelne Downlights über dem Waschtisch eingesetzt: drei Downlights im Deckenbereich zur Beleuchtung des Wannenbereichs, vier Downlights im Duschbereich plus zusätzlich zwei Downlights in den Duschnischen. Außerdem sind zwei Downlights im Schrankelement eingebaut. Zur besonderen Akzentuierung wurde der Sitzbereich noch indirekt mit LED-Strips beleuchtet. Frau Stammer hat die Leuchten in vier Leuchtengruppen unterteilt, die per Bus-Lichtsteuerung unterschiedlich eingeschaltet bzw. zugeschaltet werden können (siehe auch entsprechende Nummerierung der Leuchten 1 bis 4).

Spiegelbeleuchtung

Die Spiegelbeleuchtung hat in einem Badezimmer einen besonders hohen Stellenwert. Aus diesem Grund gibt es eine große Vielfalt an Spiegelleuchten, bei denen allerdings, wie im letzten Artikel (SBZ 9/2014) schon ausgeführt, oft das Design der Spiegelleuchte wichtiger ist als eine gute, gleichmäßige Ausleuchtung des Gesichts.

Ein plakatives Beispiel, wie wichtig eine gute Beleuchtung ist und wie wichtig vor allem die Lichtrichtung ist, zeigt Bild 16 . Dort ist jeweils die gleiche Wandoberfläche beleuchtet, jedoch links mit einem sehr schräg von oben einfallenden Licht und rechts mit gleichmäßig diffusem Licht direkt von vorne. Sie können sich also entscheiden, mit welcher Lichtrichtung sie sich am Morgen im Badezimmer betrachten wollen!

Für die optimale Beleuchtung eines Gesichtes kann man sich an der Beleuchtung eines Theaterschminktisches orientieren. Dort befinden sich um einen Spiegel in ­einem Kreis angeordnete Lichtquellen, die das Gesicht sehr gleichmäßig und schattenfrei beleuchten. Das bedeutet, zum Schminken und natürlich auch zum Rasieren wäre diese Beleuchtung um einen Badezimmerspiegel das Optimale. Geht so eine Rundum-Beleuchtung nicht, dann ist die nächstbessere Variante eine vertikale Anordnung von Leuchten links und rechts des Spiegels oder in den Spiegel integriert (siehe Bild 7). Das Licht muss auf jeden Fall von der Seite kommen, so wie es die Profis im Fernsehbereich bei der Ausleuchtung von Moderatoren/innen umsetzen, Stichwort Dreipunktbeleuchtung.

Dreipunktbeleuchtung

Zur optimalen Ausleuchtung von Personen hat sich im Laufe der Jahre im Film-, Fernseh- und Fotografie-Bereich die Dreipunkt-­Ausleuchtung, auch Studio-Porträt-Ausleuchtung genannt, etabliert. Die aufzunehmende Person und die Verbindungslinie zur Kamera bilden die optische Achse. Auf diese Achse bzw. auf das Gesicht muss die Ausleuchtung bezogen werden. Entsprechend einer natürlichen Beleuchtung oder einer dramaturgisch begründeten Lichtrichtung wird zuerst das Führungslicht gesetzt. Dementsprechend folgt dann die Lichtsetzung durch das Aufhelllicht (um dunkle Partien, die das Führungslicht erzeugt, aufzuhellen) und das Hinterlicht (um die Haare aufzuhellen und die Person plastisch erscheinen zu lassen). Das Führungs- und Aufhelllicht kommt von vorne bzw. aus einem Winkel von 30 bis 45 Grad.

Wenn Sie am Spiegel auch so ausgeleuchtet werden wollen wie ein Film- oder Fernsehstar, dann sollten Sie die Grundregeln dieser Dreipunktbeleuchtung bei der Spiegelbeleuchtung einsetzen. Das heißt auf jeden Fall Licht von beiden Seiten mit einem Winkel von ca. 30 bis 45 Grad (siehe dazu auch Bild 19).

Beleuchtungsstärken am Spiegel

So wie bei der Grundbeleuchtung in der ersten Planungsstufe (Licht zum Sehen) entsprechende Beleuchtungsstärken als Richtwerte vorgeschlagen wurden, schlägt der Autor auch Richtwerte für die Beleuchtungsstärken am Spiegel vor. Achtung: Hier sprechen wir von vertikalen Beleuchtungsstärken, also halten Sie bitte das Messgerät so, dass es das Licht misst, das auf die Nase/Augen fällt.

  • Klassische Beleuchtung 200 Lux vertikal
  • Gehobene Beleuchtung 300 Lux vertikal
  • Komfortable Beleuchtung 500 Lux vertikal

Eine Beleuchtungsstärke von 500 Lux vertikal ist der typische Beleuchtungswert für eine gute Beleuchtung im Fernsehstudio. Die Firma Zierath ist in diesem Fall ein Vorreiter in der Branche und zeigt sowohl die optimale Anordnung der Leuchten als auch die gemessenen Luxwerte. Man kann bei Zierath die Leuchten sogar nach den Luxwerten aussuchen. Auch die Firma Duravit gibt mittlerweile die Luxwerte in den Prospekten an und macht detaillierte Angaben in den entsprechenden Planungsseminaren. Der Autor hofft, dass noch weitere Firmen aus der Branche diesen Beispielen folgen und die Lux­angaben von Spiegelbeleuchtungen zur Verfügung stellen. Die Beleuchtungsstärken z.B von 200 Lux, 300 Lux oder 500 Lux am Gesicht müssen von der Spiegelleuchte alleine geliefert bzw. müssen immer separat geplant werden.

In dieser Folge haben wir uns intensiv mit der Lichtplanung im Bad beschäftigt und mit den Möglichkeiten, diese umzusetzen. Man sieht, die Lichtplanung eines Badezimmers ist nicht ganz einfach. Es gibt eine ganze Menge zu berücksichtigen. Aber mit dem dreistufigen Planungskonzept von Richard Kelly hat man eine gute Basis für die Planung. Wie immer im täglichen Leben heißt es auch hier probieren, probieren. Machen Sie die ersten Lichtplanungen, schauen Sie sich die von Ihnen geplanten Bäder an und verbessern Sie beim nächsten Mal Dinge, die nicht so gut waren. Natürlich ist es auch erlaubt, sich schon gebaute Badezimmer einmal unter den lichttechnischen Gesichtspunkten anzuschauen: Welche Leuchten und Leuchtensysteme wurden verbaut und wie hätten Sie es umgesetzt? Und kaufen Sie sich einen Beleuchtungsmesser bzw. ein Luxmeter. Das sieht kompetent aus und sie können damit korrekter planen und Licht abschätzen.

Im nächsten Teil dieser SBZ-Serie werden wir uns dem Bereich der Farben, der Farbsysteme, aber auch dem Unterschied zwischen additiver und subtraktiver Farbmischung widmen und die Möglichkeiten aufzeigen, was mit Farbe und farbiger Beleuchtung alles im Badezimmer möglich ist. Doch lesen Sie selbst in der SBZ 21/2014.

Artikelserie

Licht und Beleuchtung im Bad

Im Lichtbereich hat sich in den letzten Jahren enorm viel getan. Die neuen Leuchtmittel und Steuerungsmöglichkeiten eröffnen bisher ungeahnte Lichtszenarien und Möglichkeiten. Diese sechsteilige Artikelserie stellt die Faszination guter Beleuchtung und ihre Vorteile dar und spannt den Bogen von den Grundlagen der Wahrnehmung über die Lichtquellen bis hin zur Lichtplanung. Auch Farbe und Farbwirkung sowie die dabei entstehenden Emotionen gehören dazu.

Teil 1: Einführung in das Thema Licht und Bad ; Natur und Stimmungen; Licht und ­Strahlung; Physiologie des Sehens SBZ 03/2014

Teil 2: Lichttechnische Grundgrößen und Lichtquellen ; lichttechnische Grundgrößen (Lux, Lumen, Candela); Halogenlampe, Energiesparlampe, LED; Energieausbeute (Lumen/Watt); Farbtemperatur, Farbwiedergabe SBZ 06/2014

Teil 3: Leuchten; klassische Leuchten, moderne Leuchten, dekorative Leuchten; Leuchten und Lichtwirkungen; Lichtausstrahlrichtungen SBZ 09/2014

Teil 4: Lichtplanung; Lichtphilosophien (Licht zum Sehen, focal glow, play of brilliants, play of color); Lichtplanungsgrundlagen; Spiegelbeleuchtung; Lichtplanung von Bade­zimmern mit weißem Licht SBZ 18/2014

Teil 5: Lichtfarben; Farbwahrnehmung; additive und subtraktive Farbmischung; Farbsysteme; Farbkontraste SBZ 21/2014

Teil 6: Emotionen; Grundlagen, Wirkungen, Emotionsmodelle; Lichtsteuerung für farbige Beleuchtung; Lichtplanung von Badezimmern mit farbigem Licht SBZ 24/2014

SBZ Tipp

Greules Lichtseminare bei Duravit

Was unterscheidet eine sehr gute Badplanung von einer durchschnittlichen? Der Planungsansatz. Lichtgestaltung und Farbe im Bad tragen entscheidend zum Wohlbefinden des Menschen bei. So wie die Sonne den Tag zum Leben erweckt, bekommt ein Badezimmer erst durch Licht seinen ganz besonderen Reiz. Für Duravit hält Prof. Dr.-Ing. Roland Greule drei Seminare, die das Bad ins rechte Licht rücken.

Bei „Licht und Lichtplanung im Bad“ geht es darum, das Bad optimal in Szene zu setzen und Funktions- und Stimmungslicht benutzerorientiert einzusetzen. Das Seminar „Farbe und farbige Beleuchtung“ zielt darauf ab, Emotionen und Stimmungen zu erzeugen und zu erleben. Hier steht u.a. Farbpsychologie auf dem Programm. Wer noch tiefer in die Materie eintauchen möchte, kann sein Wissen in einem Aufbau-Seminar vertiefen. Die Kostenbeteiligung liegt bei 200 Euro, beim Aufbau-Seminar bei 175 ­Euro. Und hier die aktuellen Termine:

Licht und Lichtplanung im Bad

22.09.2014, Hornberg

20.10.2014, Meißen

Farbe und farbige Beleuchtung

23.09.2014, Hornberg

21.10.2014, Meißen

Aufbau-Seminar

24.09.2014, Hornberg

22.10.2014, Meißen

Weitere Infos gibt es bei Tanja Wöhrle unter Telefon (0 78 33) 7 03 15 oder per E-Mail: tanja.woehrle@duravit.de

INFO

Lichtplanung nach Richard Kelly

Licht zum Sehen (ambient luminescence)

Bei dem Licht um Sehen soll eine Grundbeleuchtung zur Verfügung gestellt ­werden, die für die gegebenen Sehaufgaben ausreicht.

Dies kann die Wahrnehmung des Raumes oder der Objekte sein oder auch nur die Orientierung in einem Raum.

Der Raum ist hell genug beleuchtet und man erkennt auf einen Blick die wichtigsten Dinge.

Licht zum Hinsehen (focal glow)

Dieses Licht geht über die Grundbeleuchtung hinaus und berücksichtigt die ­Bedürfnisse des wahrnehmenden Menschen in der jeweiligen Umgebung.

Durch Licht zum Hinsehen werden gezielt bestimmte Informationen aus der ­Allgemeinbeleuchtung herausgehoben.

Bedeutsame Bereiche werden betont, während Unwichtiges zurücktritt.

Licht zum Ansehen (play of brilliants)

Dieses Licht berücksichtigt die Tatsache, dass Licht nicht nur Objekte beleuchtet und ­Informationen hervorhebt, sondern selbst zum Objekt der Betrachtung wird.

In dieser Funktion trägt das Licht selbst zur ästhetischen Wirkung einer Umgebung bei.

Hierbei ist der Begriff „play of brilliants“ deutlich aussagekräftiger als die deutsche Übersetzung.

Extras

Die bereits erschienenen Beiträge dieser Artikelserie finden Sie auf https://www.sbz-online.de/ im Archiv und, noch einfacher, unter SBZ Dossiers .

Als zusätzliche praxisnahe Arbeitshilfe empfiehlt unser Autor die Lektüre der vier Lichtideen-Vorschläge der ­Firma Zierath . Dort werden alle wichtigen Planungsdetails bis hin zur Stückliste aufgezeigt. Die Flyer finden Sie zum Download auf

http://www.sbz-­online.de/extras https://www.sbz-online.de/themen

SBZ Tipp

Lichtideen fürs Bad

Zum Thema „Licht und Beleuchtung im Bad“ bietet die Günther Zierath GmbH ­einen Workshop für Bäderbauer an. Es werden die Grundlagen für gutes Licht vermittelt und aufgezeigt, welche Ideen es für die richtige Helligkeit gibt. Gestaltungsansätze werden anhand von Grundrissen erstellt, daher sollten die Teilnehmer für die Praxisübungen eigene Planungen mitbringen. Sie erfahren außerdem, wie die Planungsideen am besten an den Kunden vermittelt werden und mit welchen Produkten die Umsetzung einfach klappt. Referent ist Thorsten Moortz, die Workshops finden bei Zierath in Georgsmarienhütte statt. Die nächsten Termine sind 30.09.2014, 07.10.2014 und 10.11.2014, jeweils 10:30 – 16:30 Uhr.

Die Kostenbeteiligung liegt bei 55 Euro. Weitere Seminare in den Regionen sind in Planung. Termine und Anmeldung unter Telefon (0 54 01) 86 82-0 oder per E-Mail an info@zierath.de

Autor

Dr. Roland Greule ist Professor für Beleuchtungs- und Lichttechnik an der Hochschule für Angewandte Wissenschaften Hamburg. Er leitet das Competence Center Mensch und Medien an der HAW-Hamburg und ist Geschäftsführer des Lichtplanungsbüros Greule in Henstedt-Ulzburg; https://www.haw-hamburg.de/ ; E-Mail: greule@mt.haw-hamburg.de