Springe auf Hauptinhalt Springe auf Hauptmenü Springe auf SiteSearch

Weg von der Wand

Die Ausgangssituation: Eine vierköpfige Familie wünschte sich ein Wohlfühlbad mit mehr Wellnessmöglichkeiten, das alltagstauglich den morgendlichen Stau im Bad stressfreier gestaltet. Im Haus stand ansonsten nur ein zusätzliches Gäste-Miniduschbad als Ausweichmöglichkeit eine Etage tiefer zur Verfügung. Das bot aber nicht genügend Raum, um ernsthaft als Zweitbad – zum Beispiel für die Kinder – genutzt zu werden (die ideale Vorstellung wäre ein Elternbad und ein separates Kinderbad gewesen). So blieb nur die Alternative, den vorhandenen Raum im regulären Bad neu zu gestalten.

Kommunikativ – wie die Küche

Offene Küchen im Wohnbereich sind heute gang und gäbe – am liebsten mit einem frei platzierten Funktionsblock. Dieser nimmt meist das Kochfeld auf, welches somit dem Koch nicht nur den Blick in den Raum ermöglicht, sondern ihm auch die Möglichkeit bietet, an der Kommunikation der Gäste aktiv teilzunehmen. Die Küche wurde somit vom rein funktionalen, abgetrennten Raum zum offenen Kommunikationsort erklärt. Übertragen wir diese Entwicklung ins Badezimmer, wird der freistehende oder seitlich wandgebundene Waschplatz zur Kommunikationszentrale.

Das Beispiel ( Bild 1 ) zeigt, dass der Waschplatz zum Mittelpunkt wird: sich miteinander unterhalten und vor allem dabei anschauen. Eine Unterhaltung mit dem Partner oder den Kindern findet hier nicht mehr über ein Spiegelbild statt. Gleiches gilt, wenn der Partner ein abendliches Bad nimmt. Persönlicher Blickkontakt zwischen den Nutzern ist plötzlich möglich. Ein freistehender oder wie hier seitlich wandgebundener Waschplatz fördert also die intime Kommunikation durch Blicke in einer Zeit, die von technischer Kommunikation beherrscht wird. Der Mensch als Individuum rückt in den Vordergrund.

Verschiedene Konzepte mussten zur Entscheidungsfindung her

Die Zuwegung zu dem Bad führte über die offene Wohngalerie, was schon mal zu peinlichen Situationen führen kann. Das Bestandsbad war mit rund 15 m² nicht als klein zu bezeichnen. Um allerdings zwei Badezimmer daraus zu machen – eins davon mit Wellness-Charakter in Form einer Sauna oder Dampfdusche, dafür reichte der Platz nicht aus.

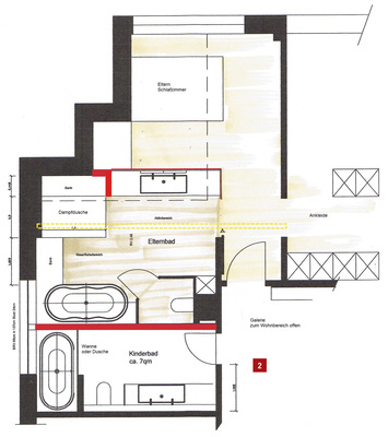
Bei dem ersten Entwurfskonzept mit zwei Bädern (Entwurf Bild 2 ) wurde vom Elternschlafzimmer einfach ein Bereich dazugenommen. So ergab sich ein großzügiges Elternbad mit internem Zugang und Wanne, Dampfdusche, separatem WC und einem großen Waschtisch mit Glaswand zum Schlafzimmer hin, für mehr Tageslicht. Außerdem führte die Teilung zu einem Kinderbad mit Wanne oder Dusche, WC und großzügigem Doppelwaschtisch. Um die neue Trennwand setzen zu können, hätte allerdings ein neues, zweigeteiltes Fenster eingebaut werden müssen. Der Vorschlag kam nicht zum Zug.

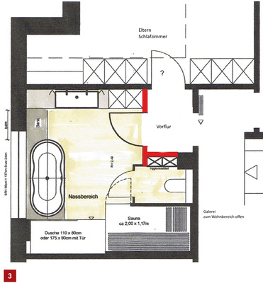
Bild 3 zeigt dagegen ein Entwurfskonzept, wo es zwar bei einem Familienbad bleibt, bei dem aber eine Art Vorflur für die Eltern geschaffen wurde, sodass sie unbemerkt vom Bad ins Schlafzimmer gelangen können. Alle Objekte finden bei diesem Entwurf eine optimale Lage im Raum: Waschtisch und WC nahe am Eingang (Trockenbereich), Wanne, kleine Sauna und große Dusche bilden den Ruhe- und Nassbereich.

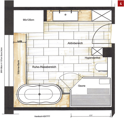
Als Vergleich ( Bild 4 ) wurde das Bad ohne den Vorflur und räumlich abgeteiltes WC geplant, sodass die Wanne nicht vor dem Fenster platziert wurde. Doch es entstand eine riesige ungenutzte Freifläche in der Raummitte. Für eine freistehende Wanne zu klein – also musste eine andere Lösung her, weg vom Standarddenken, alle Objekte an der Wand zu platzieren. Warum nicht einfach mal den Waschplatz als zentrales Element in den Raum stellen ( Bild 5 )? Dieser Entwurf überzeugte auf Anhieb. Nur der Wunsch nach einem großen Spiegel musste geopfert werden.

Zentraler Waschplatz

Vom Eingang her sichtgeschützt sind alle intimeren Objekte positioniert, lediglich der Waschplatz präsentiert sich als zentrales Objekt. Er ist Dreh- und Angelpunkt des Raumkonzeptes und fungiert wie ein Küchenblock als Kommunikationsmöbel. Ihm gegenüber befinden sich die Wanne mit Liegeabdeckung ( Bild 6 ) und seitlich eine Bank mit beleuchtetem Fach ( Bild 7 ).

So kann hier eine gemütliche Kommunikation über Eck stattfinden. An die Wanne schließt sich der Duschbereich an. Für mehr optische Großzügigkeit wurde als Spritzschutz eine Glasabtrennung gewählt. Diese geht bis zum Boden, sie wurde also nicht wie üblich auf die Wannenkante aufgesetzt. Rückseitig im Bereich der Wanne ist sie im Farbton der Fliesen lackiert ( Bild 8 ). Die Duschpendeltür erhielt einen Handtuchhalter als Griff, so ist nach dem Duschgang das Handtuch sofort parat. Zum WC hin wurde eine Wand als Sichtschutz gestellt, diese nimmt die Armaturen und Schwallbrause auf. Im 90°-Winkel dazu ist die Vorwand mit Brausenstange und beleuchteten Fächern für das Duschzeug eingerichtet ( Bild 9 ). Regale über dem WC können nicht nur Lesestoff beherbergen, sondern auch griffbereit Schachteln mit Hygieneartikeln.

Lagerfläche für Handtücher, Hygieneartikelvorrat etc. bietet ein Schrank, der zeitgleich den Schornsteinzug verdeckt. Neben den frontalen Schüben mit dem offenen Regal gibt es auch neben der Eingangstür einen Apothekerausziehschrank. Bei der Sauna fiel die Wahl auf die Sauna Inipi (Duravit), da sie bei der zur Verfügung stehenden Fläche am meisten Platz im Innenraum bot. Damit kamen einige Highlights in Form von Licht- und Musikinszenierungen ( Bild 10 ) ins Bad, die leichte Anmutung und Gestaltung passte stilistisch perfekt. Umrahmt wurde die Sauna mit einer abnehmbaren Verkleidung, die genügend Luft zirkulieren lässt.

Auch das Problem der Badzuwegung über die Galerie wurde gelöst. Durch das Versetzen des Badezimmerzuganges konnte eine Schiebetür an der Treppenhauswand angebracht werden und so entstand ein kleiner Vorflur.

Vorteile erkennen

Für ähnliche Raumkonzepte (mit halbhohen Wänden) benötigt man mehrere Gewerke, vom Maurer über den Putzer bis hin zum Fliesenleger oder Maler. Die Folge ist ein höherer Koordinierungs- und Zeitaufwand. Auch die Fehlerquellen potenzieren sich. Von Höhen, Positionen und scheinbar lotrechten Wänden über falsche Steckdosenpositionen bis zum Fliesenraster: All diese „Stolperfallen“ entfallen bei freistehenden bzw. wandgebundenen Waschtischmodulen. Ebenso entfällt der Konstruktionsaufwand bei Individuallösungen durch den Tischler. Zudem kann der Endkunde die Objekte nun vorher sehen und anfassen. Die Aussage „Das hab ich mir aber anders vorgestellt“ wird somit hinfällig. Außerdem bieten die Herstellerobjekte sämtliche Prüfzeugnisse und Garantien. Wer sich Sorgen um den Aufbau des Möbels macht, kann bei den meisten Herstellern einen Montageservice buchen, das ist fachgerechte Hilfe beim Möbelaufbau.

Fazit

Das Loslösen vom klassischen Badkonzept mit wandhängenden Waschtischen bietet also zum einen eine freiere Raumgestaltung als Antwort auf große Räume und moderne Glasarchitektur. Zum anderen aber rückt das Bewusstsein für das eigene Ich und die Kommunikation in den Vordergrund. Der Waschplatz erhält einen neuen Stellenwert in der Badplanung. Nicht mehr nur funktional – sondern dem Individuum und neuen architektonischen Vorgaben angepasst.

SBZ Checkliste

Positionierung

Auf was noch bei der Positionierung im Raum geachtet werden muss:

  • Verwendung als Raumteiler möglich?
  • Fensterausblick – ist dieser lohnend?
  • Bei Positionierung vor Glasfronten auf die Bedienbarkeit der Fenster achten
  • Kommunikativ in den Raum gerichtet
  • Möglichst in Nähe des Badzugangs
  • Sichtachsen berücksichtigen
  • Position des Spiegels überlegen
  • Über Position von Handtuchhaltern nachdenken

Argumente Kundenberatung

Ungewohnte Platzierungen benötigen gute Argumente:

  • Küchenblock als Vergleich heranziehen
  • Kommunikationsfördernd
  • Ausblick beim Waschen als Mehrwert
  • Selbstbestimmung: Wann blicke ich in den Spiegel?
  • Raumgliederung ohne Trennwände, sondern mittels Waschplatz/Möbel
  • 08/15 ade!
  • Wohnlicher durch Möbelcharakter
  • Sonst ungenutzte Freifläche in der Raummitte wird sinnvoll einbezogen und genutzt

Technische Voraussetzungen

Ein paar Dinge gilt es zu beachten:

  • Bei Waschtischen mit Natursteinablage auf die Statik der Decke achten
  • Bei abgehängten Spiegeln auf die Tragfähigkeit der Decke achten
  • Prüfen, ob die Ab- und Zuleitung bei freistehenden Waschplätzen über den Boden (Estrich) erfolgen kann
  • Bei seitlich wandgebundenen Waschplätzen und bestehender Fussbodenheizung prüfen, ob die Möbel am Boden verschraubt werden können

Zur Planung berücksichtigen

Um einen Waschplatz frei in den Raum stellen zu können, müssen die Zu- und Ableitungen im Estrich verlegt werden:

  • Genaue Position muss vor Einbringen des Estrichs festgelegt sein
  • Im Bestand Stärke des Estrichs im Vorfeld prüfen
  • Fußbodenheizung unterm Waschplatz aussparen
  • Elektrozuleitungen für integrierte Steckdosen in den Schüben müssen im Estrich verlegt werden
  • Bei Betondecken müssen die Zuleitungen für das Licht von abgehängten Spiegeln schon im Rohbau punktgenau festgelegt werden
„Das Loslösen vom klassischen Badkonzept mit wandhängenden Waschtischen bietet also eine freiere Raumgestaltung als Antwort auf große Räume und moderne Glasarchitektur.“

Tipp

Möbel statt Wände

Dank des gestiegenen Körperbewusstseins in der Gesellschaft wird dem Bad endlich mehr Raum zugesprochen. Dies gilt nicht nur bei Neubauten, sondern auch in steigendem Maße auch bei Sanierungen, wo zugunsten des Bades Räume zusammengelegt werden. Statt vorher im Schnitt 7 bis 12 m² stehen plötzlich im Schnitt 16 bis 25 m² zur Verfügung. Was passiert, wenn nun bei diesen Raumgrößen alle Objekte wie herkömmlich an den Wänden entlang montiert sind? Es entsteht eine riesige ungenutzte Freifläche in der Mitte – von Gemütlichkeit und Wohlfühlatmosphäre keine Spur. Also müssen raumgliedernde Objekte her. Freistehende Wannen gehören hier schon seit Jahrzehnten zum Standard. Alternativ werden halbhohe Wände zur Raumgliederung positioniert, die zum Beispiel den Waschtisch oder andere Objekte aufnehmen. Da haben wir es doch: Der Waschplatz wandert in den Raum – weg von den raumbegrenzenden Wänden. Wozu brauchen wir also noch die eingestellte Wand?

Autor

Nicola Stammer aus Rullstorf ist Dipl. Ing. Innenarchitektur. Sie übernimmt die Gestaltung von Hotels, Büros und Privathäusern. Obwohl ihr Repertoire bis zum Ladenbau reicht, hat sie sich das Bad als eigentliches Steckenpferd ausgesucht. Sie hält z. B. Seminare zum Thema, seit 2017 unterrichtet sie außerdem an der Hochschule für Angewandte Wissenschaften Hamburg im Department Medientechnik. Tel. (0 41 36) 3 62 06 12 innenarchitektur@nico-stammer.de www.nico-stammer.de

Tags