Springe auf Hauptinhalt Springe auf Hauptmenü Springe auf SiteSearch
...und es wurde Licht“

Es werde Licht...

Licht ist schon lange über das Stadium des reinen Beleuchtungsmittels hinaus und ist zu einem Gestaltungselement mit kreativem Potenzial geworden. Es soll in Abstimmung zur Architektur den Interessen der Nutzer gerecht werden. Dabei gibt Licht als architektoni­sches Werkzeug zur Bearbeitung von Räumen besondere Impulse. Sehr gut ist dies dem Siegerbad gelungen, aber auch viele andere Einsendungen zeigten, dass Licht bewusst maßgeblich die Raumatmosphäre beeinflusst.

Auf indirekte Beleuchtung gesetzt

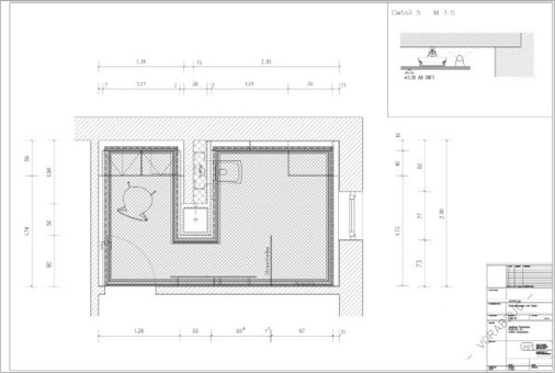
Architekt Michael Burghaus, Gründer von Architekturbüro .pg1 und die Rudi Semmelsberger GmbH überzeugten mit ihrer Einsendung und siegten in der Kategorie Lichtgestaltung. Der vorgegebene Raum von insgesamt 8 m2 war durch eine tragende Wandscheibe in zwei Bereiche geteilt und stellte eine gestalterische Herausforderung dar.

Nicht nur die Anordnung der Objekte und Zonierung in unterschiedliche Funktionsbereiche, sondern vor allem die gestalterische Ausformulierung – bei der das Licht eine wesentliche Rolle spielt – ist perfekt gelungen.

Entsprechend der bestehenden Zweiteilung des Raumes wurden die Funktionen verteilt. Der vordere Bereich, über den man das Bad betritt, wird zu einer Be- und Entkleidungs­zone. Die raumgliedernde Teiltrennwand (bei Planern auch Wandscheibe genannt) stellt die Trennung zum Nassbereich dar und nimmt das WC sowie den Waschtisch auf. Dieser ist zentral platziert und lässt sich so von allen drei Seiten bedienen. Die Materialwahl und Formreduzierung sorgen für eine ruhige Ausstrahlung.

Der durchgängige dunkelgraue Schieferboden sorgt nicht nur für einen ruhigen warmen Grund, sondern dank Fußbodenheizung und spaltrauher Oberfläche für eine angenehme Haptik beim Barfußgehen. Farblich heben sich die Wände in einem hellen Cremeton ab, den großformatigen Fliesen im Duschbereich angepasst. Diese sind 3 x 1 m und dank minimalistischer Fugen wirken sie wie eine homogene Fläche und ordnen sich optisch unter. Wichtigster Baustein ist das umlaufende Möbelband aus Corian. Es zieht sich als Mäander (umlaufender nicht vorspringender Fries), der Wand folgend durch den Raum und birgt verschiedene Nutzungen. Aus ihm entwickeln sich Kommoden, verschiedene Aufbewahrungsmöglichkeiten, der zentrale Waschplatz und eine ­Sitzbank im Duschbereich. Ergänzt wird das Materialkonzept durch eine Maha­goni-Verkleidung der raumtrennenden Wandscheibe mit teilweise integrierten großen Spiegelflächen. Sie weiten den Raum optisch und heben die trennende Wirkung der Wandscheibe auf. Um die Privatsphäre des im Erdgeschoss liegenden Bades zu gewähren, erhält das Fenster im Duschbereich eine vorgelagerte verschiebbare Rauchglasscheibe, die gleichzeitig als Spritzschutz dient.

Licht als gestalterisches Element

Das i-Tüpfelchen aber ist die Lichtgestaltung. Sie rundet das Gesamtbild ab und verleiht dem Raum erst seine besondere Ausstrahlung. Das Geheimnis liegt in der indirekten Beleuchtung über eine seitliche Fuge zur Wand hin. Die Wände werden in ein sanftes angenehmes Licht getaucht und weiten auf diese Weise optisch den Raum. Die eigentlichen Leuchtmittel sind nicht erkennbar und so ordnet sich die Lichtquelle der Gestaltung unter, beziehungsweise unterstützt diese in ihrer Wirkung. Nur über dem Waschplatz befindet sich ein Downlight zur Akzentuierung. So strahlt auch die weiß beschichtete Decke ein ruhiges Bild aus. Ein Nebeneffekt der Lichtfuge ist die gleichzeitige Nutzung zum Ansaugen der Luft für die Wärmerückgewinnung. Funktion und Gestaltung gehen hier Hand in Hand und schaffen einen Raum der Ruhe und Ausgeglichenheit.

Das Jury-Urteil

„Gott sah, dass das Licht gut war und schied das Licht von der Finsternis.“ Begeistert hat die Jury der reduzierte Umgang mit dem Thema Licht. Die Lichtquellen in Schattenfugen sind ein Teil der Raumarchitektur – sie unterstützen die Gestaltung auf eine sanfte geheimnisvolle Art. Durch die gleichmäßige Ausleuchtung der Wandflächen gewinnt der Raum optisch an Größe. Hier wurde gekonnt Licht als gestalterisches Element, zur Inszenierung und als Stimmungsträger eingesetzt.

Soweit unsere Vorstellung der prämierten Bäder und Badprofis. Eigentlich hätten noch weitaus mehr Bäder eine Auszeichnung verdient. Aber die Jury musste sich gemäß der Ausschreibung begrenzen. Weil wir Ihnen, liebe SBZ-Leser, aber noch die Gelegenheit geben möchten, weitere Superbäder und ihre Macher kennenzulernen, werden wir in den nächsten Ausgaben weitere gelungene Super-Bäder des Wettbewerbs präsentieren.

Bad-Eckdaten

Bad-Größe: ca. 8 m²

Umbaukosten: ca. 35000 Euro

Produkte und Hersteller:

Lichtsystem: Sylvania LS 200 Lichtfarbe 830 warmweiß

WC-Keramik: Duravit Vero

WC-Drücker: Vola W-Nr. A83-40

Waschtischanlage: Maßanfertigung Corian

Armaturen: Vola Edelstahl matt

Waschtisch: Corian-Maßanfertigung

Dusche: durchgefliest

Duschrinne: Tece

Bodenfliesen: Schieferplatten von Le Chianche

Wandfliesen: Cotto d’Este Kerlite 3 x 1m

Sitzbänke: Corian-Maßanfertigung

Wandputz: mineralischer Feinputz

Garderobe: Swedese

Steckbrief

Architekturbüro .pg1 und Rudi Semmelsberger GmbH

Als freischaffender Architekt gründete Michael Burghaus 2006 das Architekturbüro pg-1 in Kaiserslautern. Neben reinen Hochbauaufgaben hat Michael Burghaus sich mit seinen drei Mitarbeitern auf Innenausbau bis hin zum Möbelentwurf spezialisiert. Bei seinen Projekten ist ihm besonders eine ehrliche Architektur wichtig. „Materialgerechtigkeit und die Einbe­ziehung von Ausblicken sowie die Gestaltung des Raumes mit Licht sind dabei ein wesent­licher Aspekt,“ sagt Michael Burghaus.

Umgesetzt hat das Bad die Rudi Semmelsberger GmbH aus Weidenthal. Sie führte nicht nur alle Klempnerarbeiten aus, sondern auch die Elektrik und die Beleuchtung. Vor über 40 Jahren als Elektrofirma gegründet, übernahmen 2001 die beiden Söhne des Gründers, Dieter und Klaus Semmelsberger das Familienunternehmen. Seit 30 Jahren ist Sanitär- und Heizungsbau fester Bestandteil der Angebotspalette, der inzwischen 80 % des Umsatzes ausmacht. Das Fünf-Personen-Unternehmen realisiert ca. 20 Bäder im Jahr. Klaus Semmelsberger ist gelernter Elektroinstallateur und Gas- und Wasserinstallateurmeister.

http://www.pg-1.de

http://www.semmelsberger-weidenthal

Tags