Kleine Bäder unter 9 m² sind oft eine Herausforderung – denn allein die Unterbringung aller gewünschten Ausstattungselemente erweist sich bei dem zur Verfügung stehenden Platzangebot oft als äußerst schwierig. Dass das Ergebnis dennoch nicht nur funktional, sondern auch überraschend sein kann, zeigten nicht nur die prämierten Bäder.
Hans Jakel und die Willi Schmid GmbH siegten auf nur 2,9 m²
Architekt Hans Jakel ist Mitinhaber des Büros GJL Freie Architekten BDA und reichte ein ganz außergewöhnliches Bad ein, das weit über seine Grenzen wächst. Das wohl kleinste eingereichte Bad mit nur 2,9 m² überzeugte mit viel kreativen Ideen und ungewöhnlichen Lösungen. Jakel, Bauherr und Architekt in einer Person, hat hier seine Ideale und Lebensphilosophie verwirklicht. „Aus wenig viel machen“, war eine seiner Vorstellungen. Bäderbauer Ivica Varivoda, Firmenchef der Willi Schmid GmbH, setzte dieses außergewöhnliche Bad um. Sie siegten in der Kategorie Bäder unter 9 m² und wurden zu Deutschlands besten Badprofis gekürt.
Eine Höhle mit Ausblick
Aus wenig viel machen, so interpretiert Hans Jakel seine neue Zweitwohnung, die sich in einem 18-geschossigen Betonwohnkomplex aus den 70er-Jahren befindet. In den neun Geschossen befindet sich die knapp 40 m² große Einzimmerwohnung, die einseitig völlig verglast den Blick über die Stadt Karlsruhe und den Schwarzwald freigibt. „Einseitig offen und nach außen gerichtet wie eine Höhle“, ist die Interpretation von Hans Jakel und so findet sich eine Art Höhlenmalerei an einer der Wände und soll die Idee mit einem Lächeln transportieren.
Nach der kompletten Entkernung des Skelettbaus blieben nur ein Installationsschacht und eine Trennwand stehen, die Küche und Badbereich voneinander trennen. Alles geht ineinander über und auf abgetrennte Räume wurde verzichtet. So öffnet sich das nur 2,9 m² Bad auf seiner gesamten Breite zum Hauptraum und wirkt so einladend und großzügig.
Zusätzlich wurde auf eine abgeteilte Dusche verzichtet, stattdessen „versteckt“ diese sich in einem verspiegelten Schrankelement. Besser gesagt, der Duschbereich befindet sich in der Standfläche vor dem WC und das Schrankelement verbirgt die Duscharmaturen. Durch Öffnen der Türen entsteht so eine Art Duschkabine. Der Boden ist in diesem Bereich mit einem Gefälle und Bodenablauf versehen. So mutet das Mini-Bad bei geschlossen Schranktüren wie ein Gäste-WC an.
WC und Waschplatz als optische Einheit
WC und Waschplatz befinden sich an der Installationswand zur Küche und bilden eine optische Einheit. Um dies zu erreichen, wurde kurzerhand das Bidet der WC-Serie als Waschbecken umfunktioniert. So wird ein Bezug der beiden Objekte hergestellt, da sie die gleiche Formensprache haben.
Auf Fliesenbeläge wurde komplett verzichtet. So wird der fließende Übergang zum Wohnraum noch unterstützt. Die Wände sind wie im Rest der Wohnung Weiß gehalten mit einem Marmorputz und wasserabweisender Wachsschicht. Der Boden im Bad wurde aus wasserfesten Platten mit einer Fotodruckfolie versehen. Dargestellt wird ein abstraktes, goldgelbes Stadtmotiv, das dem Raum eine besondere Note und Ausstrahlung verleiht. Zusätzlich wurde das Ganze mit einer transparenten rutschfesten Kunststofffolie beklebt. Kaum sichtbar verbirgt sich im Boden noch eine flächenbündige Personenwaage – nichts soll von der Gestaltung ablenken. So findet sich zwischen Waschbecken und WC ein schmaler wandhängender Hochschrank für die notwendigen Utensilien. Seine verspiegelte Front sorgt für interessante Lichtspiele.
Mit Flexleuchten, Langleuchten und viel Tageslicht
Der hinterleuchtete großflächige weiße Vorhang, der das Bad zum Hauptraum bei Bedarf abteilt, fungiert als primäres Raumlicht. Die Einzelfunktionen des Bades werden über Flexleuchten mit weißem Schirm belichtet. Zusätzlich sind in den Fugen der Schränke Langleuchten zur indirekten Beleuchtung integriert. Morgens aber lebt die ganze Einzimmerwohnung vom Tageslicht durch die große Fensterfront. Der Sonnenaufgang über dem Schwarzwald und die Aussicht über die Stadt erhöhen das nur 2,9 m² kleine Bad und die insgesamt 37 m² große Wohnung um ein 1000-faches. Als Nutzer fühlt sich Hans Jakel rundum wohl: „Die Ausstattung spiegelt meine Lebensauffassung wider und es gibt nur einen Fernseher – das Fenster“.
Das Jury-Urteil
Das Kleinstbad bestach durch sein Ideenreichtum und seine außergewöhnliche Ausstrahlung: Besonders die Lösung des Duschbereiches als aufklappbares Schrankelement tat es der Jury an. Die Wahl des Bodenmaterials mit einem abstrakten goldgelben Stadtfotodruck und rutschfestem Überzug ist nicht nur außergewöhnlich, sondern gibt dem Raum eine besondere Atmosphäre. Die konsequente Formensprache durch Umfunktionieren des Bidets zum Waschtisch, genügend Stauraum und sanftes Licht runden das Ganze ab. Ein Bad, das neugierig macht!
Bäder über 9 m² lassen meist dem Badprofi mehr Freiraum in der kreativen Raumgestaltung. So wurden viele anspruchsvolle Hochglanzbäder eingereicht, die eine Augenweide für jedes Lifestyle-Magazin wären. Doch was ist, wenn die Voraussetzungen mehr als bescheiden sind? Oft stellen gerade der Schnitt des Raumes, die Bausubstanz und Dachschrägen eine planerische Herausforderung dar. Deshalb hat die Jury bewusst eine Badprofileistung prämiert, die aus der harten Realität des Alltags resultiert. Doch nicht nur das Sieger-Bad zeigte, wie man mit solchen Problemen umgehen kann – sondern dass man mit viel Know-how und „normalem“ Budget ein Wohlfühlbad zaubern kann.
H&S Bad-Atelier siegte in der Kategorie über 9 m²
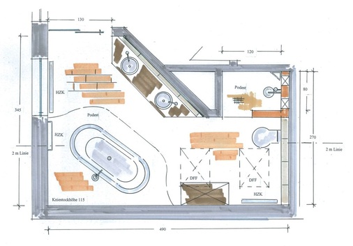
Badplanerin Elke Grünbeck leitet das H&S Bad Atelier in Regensburg. Das Badatelier ist eine Tochtergesellschaft des Handwerksunternehmens Handschuh und Silberhorn, das dieses Bad auch ausführte. Firmenchef Oliver Handschuh und Bauleiter Hubert Rath durften zusammen mit Elke Grünbeck aufs Siegertreppchen und erhielten die Auszeichnung Deutschlands beste Badprofis 2010. Die Bauherren hatten nicht nur klare Vorstellungen, welche Objekte in ihr neues Bad eingeplant werden sollten, sondern wünschten sich neben einer begehbaren Dusche ohne Glasflächen eine freistehende Wanne und einen großzügigen Doppelwaschtisch.
Dem Wunsch nach einem großzügigen Wohlfühlbad konnte nur durch Hinzunehmen benachbarter Flächen entsprochen werden. Denn das bestehende Bad mit nur ca. 3 m² bot nicht genügend Platz. Das größte Problem stellte aber die Bausubstanz des Fertighauses dar. Zudem sollte die bestehende Heizungsanlage nicht verändert werden. Umso höher ist das gelungene Bad zu bewerten.
Neues Raumkonzept – nicht nur für das Bad
Der bestehende Raum bot nicht genügend Platz für die Umsetzung der Kundenwünsche. Nachbarflächen mussten sinnvoll hinzugenommen werden. Ein völlig neues Raum-Konzept ist das gelungene Ergebnis. Statt das Bad nur räumlich zu vergrößern, wurde auch die Zuwegung geändert. So ist das Bad nicht mehr über den Treppenhausflur zugänglich, sondern über ein Ankleidezimmer. Nutzungsabläufe wurden zusammengelegt und der Mehrwert weit übers Bad gesteigert. Verbunden durch eine großzügige Schiebetürglasanlage, profitieren beide Räume von der gewonnenen optischen Erweiterung und mehr Tageslicht. Gekonnt fällt der Blick nur auf die freistehende Wanne, die sogleich zum Entspannen einlädt. Waschtischanlage, WC und Duschbereich liegen versteckt und gewähren so Intimität. Der Duschbereich entspricht dem Bauherrenwunsch nach fugenlosem Wandbelag und dem Verzicht auf Glaselemente.
Die Waschtischanlage mit zwei Schalenbecken und einem sich über die ganze Länge erstreckenden Wandspiegel ist großzügig. Sie bietet ausreichend Bewegungsfreiraum bei gleichzeitiger Benutzung und viel Ablagefläche. Die aus dunklem Holz gefertigte Konsole ist an den Enden abgeschrägt und passt sich so der Raumsituation an. Dort befinden sich auch die Handtuchhalter, so wird verhindert, dass die Nutzer beim Waschen mit den Beinen an die Handtücher geraten. Mittig unter dem Waschtisch steht ein großer Rollcontainer mit Auszug. Ein passendes Gegenstück befindet sich unter den Dachschrägen, ausgeführt als wandhängendes Sideboard für Utensilien. Das dunkle Holz der Möbel, gepaart mit den Bodenfliesen in Holzoptik sorgt für einen wohnlichen Charakter. Jeder Bereich erhält hier eine eigene Wertigkeit. Die warme Anmutung lädt zum Verweilen ein. Der komplette Umbau fand in nur drei Wochen in bewohntem Zustand statt.
Erschwerte Umstände durch schlechte Bausubstanz
Ein Problem stellte die schlechte Bausubstanz dar. Bei dem Fertighaus aus dem Jahre 1983 waren der Fußboden- und Wandaufbau und die Dachisolation dürftig. Auch durften in den Außenwänden keine Leitungen verlegt werden. Und die Bauherren bestanden darauf, dass die bestehenden Heizkörperanschlüsse wieder genutzt werden. Es durften lediglich neue Heizkörper montiert werden. Badplanerin Elke Grünbeck gelang es dann doch noch, den Bauherren ein kleines Zugeständnis abzuringen. Zusätzlich sorgt jetzt ein Handtuchheizkörper für warme Badetücher beim Verlassen der Wanne. Aufgrund der Dachschrägen blieb dafür nur eine Position – auch wenn eine Aneinanderreihung von Heizkörpern gestalterisch suboptimal ist. Ein Verzicht auf einen der Heizkörper kam wegen der schlechten Hausdämmung nicht infrage. Die Voraussetzungen in diesem Fertighaus waren sehr schlecht.
So musste auch die freistehende Wanne auf ein Podest gestellt werden, um die Zu- und Ableitung zu regeln. Aus den gleichen Gründen erhielt auch der Duschbereich ein durchgefliestes Podest. Zusätzlich engten massive Dachschrägen die planerische Freiheit ein. Dank guter Aufteilung und Materialwahl wirkt das Bad trotz dieser widrigen Begleitumstände großzügig und einladend.
Das Jury-Urteil
Die Jury wählte die Leistung von Badplaner und Bäderbauer an die Spitze, da das Bad trotz schwierigster Rahmenbedingungen funktional und besonders wohnlich in seiner Ausstrahlung wurde. Vor allem aber auch, da hier nicht einfach nur ein Bad vergrößert, sondern in ein neues Raumkonzept eingebunden wurde.
Die gestalterischen Einschränkungen durch bautechnische Gegebenheiten wurden gekonnt gemeistert und trotz des Schlauchcharakters mit massiven Dachschrägen entstand ein großzügiger Raum, der zum Verweilen einlädt. Die Kunst liegt eben darin, auch bei Problemsituationen mit geringem Budget ein harmonisches Ganzes zu schaffen – und das ist hier besonders gut gelungen.
Bad-Eckdaten
Bad-Größe: 2,9 m²
Umbaukosten: ca. 10000 Euro
Produkte und Hersteller:
WC: Philippe Starck, Duravit
Waschtisch: Philippe Starck, Duravit
Armatur: Wandarmatur von Vola
Bodenablauf: Dallmer
Duscharmatur: Vola
Wandbelag: Marmorputz mit Wachsschicht
Bodenfolie: Art-Tapeten
Schrankmaterial: wasserfest verleimte Schichtstoffplatte mit Folie bezogen
Flexleuchten: Octopus von Top Light
Steckbrief
GJL Architekt Hans Jakel und Willi Schmid GmbH
Hans Jakel ist einer von drei Gründern von GJL Architekten. Er leitet das Büro in Karlsruhe mit rund 14 Mitarbeitern. Das Leistungsspektrum umfasst vor allem den Hochbaubereich, sodass Badplanungen zum Alltag gehören, aber nicht den Schwerpunkt darstellen. Das prämierte Bad zeigt aber eindrucksvoll, mit welcher Detailschärfe und Kreativität das Büro von Hans Jakel Projekte angeht.
2002 haben Ivica Varivoda und Thomas Plümer die Willi Schmid GmbH in Karlsruhe übernommen. Seit Jahren arbeitet sie für das Architekturbüro GJL. Gas- und Wasserinstallateurmeister Ivica Varivoda ist passionierter Bäderbauer. Die Zuverlässigkeit und das Mitdenken seiner sieben Mitarbeiter sind für ihn wichtige Voraussetzungen, um ein rundum perfektes Bad abzuliefern.
Bad-Eckdaten
Bad-Größe: 10,25 m²
Umbaukosten: 45000 Euro inklusive der Umbauarbeiten
Produkte und Hersteller: WC: Philippe Starck von Duravit
WC-Drücker: Bolero von Geberit
Waschschale: Loop & Friends, Villeroy & Boch
Armatur: Philippe Starck von Axor
Dusche: Bodeneckablauf Viega Vesign
Armatur: Raindance von Hansgrohe
Duschwände: Cotec Design
Wanne: Philippe Starck Edition II, Hoesch
Möbel: Sonderanfertigung, Nussbaum funiert
Bodenfliesen: Holzoptik Roble Cognac
Wandfliesen: Modell Saturn, beige 30 x 60 cm von Cerabella
Glasschiebetür: Modell Manet Compakt, Begla
Handtuch-Heizkörper: Kermi Basic 50
Bewertung
Viele Kriterien berücksichtigt
Außer einer Einteilung in die drei Kategorien Gäste-WC, Bad kleiner 9 m2, Bad größer 9 m2 gab es keine Vorgaben. Dementsprechend sah sich die Jury verschiedensten Raumsituationen, Bauherrentypen und deren Budgetvorgaben gegenüber. Aber wie kann man das gerecht beurteilen? Ästhetik war sicher eines der Kriterien, doch dies hing ja vor allem auch vom Geschmack der Bauherren und deren Budget ab. Also hat die Jury die Rahmenbedingungen einbezogen und in Relation zum Ergebnis gesetzt. Denn gesucht wurde nicht das schönste Bad, sondern der beste Badprofi. So flossen in die Bewertung auch der Schwierigkeitsgrad des zu planenden Raumes und das Raumkonzept ein. Die Einhaltungen von Normen zum Beispiel bzgl. Steckdosen und Standhöhen unter Dachschrägen sowie Berücksichtigung von Klimazonen bei Bad-Schlafzimmer-Kombinationen wurden ebenfalls berücksichtigt.
Die Qualität der eingereichten Fotos war nicht ausschlaggebend. Budget und die Schwierigkeiten des Raumes dagegen, waren fester Bestandteil der Bewertung. Denn jeder Badplaner weiß, wie sehr bauliche Gegebenheiten und Kostenvorgaben in der Gestaltung einschränken. Die Kunst liegt darin, trotzdem ein für die Bauherren rundum zufriedenstellendes Ergebnis zu erzielen.
Steckbrief
H&S Bad Atelier und Handschuh & Silberhorn
1997 wurde die Firma für Heizung & Sanitär von Oliver Handschuh und Karl-Heinz Silberhorn in Regensburg gegründet und seit 2004 konzentriert man sich auf drei Schwerpunkte: Haustechnik, Pumpen-Service und ganzheitliche Badplanungen mit zwei Niederlassungen in Straubing und Regensburg. Um einen reibungslosen Ablauf zu gewährleisten, beschäftigt das Unternehmen eigene Fliesenleger, Elektriker und Maler. Ein Mitarbeiterstamm von rund 30 Personen sorgte für einen reibungslosen Ablauf und nur zehn Bautage. Nach eigenen Angaben fertigte das H&S Bad Atelier im letzten Jahr rund 80 Bäder und erzielte dabei einen Umsatz von rund einer Million Euro. Ein besonderer Service ist die zweidimensionale Umsetzung des Grundrisses 1:1 per Folie auf dem Boden – so kann der Bauherr ein Gefühl für die neuen Raumstrukturen und Abstände bekommen.
Hubert Rath ist seit sechs Jahren dabei und sorgt als Bauleiter und Bäderbauer für eine reibungslose und termingerechte Umsetzung vor Ort. Badplanerin Elke Grünbeck ist seit 2005 für die Planung und Baubetreuung bei der Tochterfirma, dem H&S Bad Atelier zuständig. Davor war sie, nach Abschluss zur Bauzeichnerin, in verschiedenen Bereichen – vom Hochbau über Arztpraxen bis zur Büroausstattung – tätig. Was ihr besonders wichtig ist: „Genau zuhören, hinsehen und dass die Chemie zwischen Planer und Bauherren stimmt. Denn nur dann kann den Wünschen und Bedürfnissen entsprechend etwas Neues, Stimmiges und Schönes entstehen.“
http://www.handschuh-silberhorn.de http://www.hs-badatelier.de
Extras
Zum Kreativ-Wettbewerb
Die SBZ wurde bei dem Wettbewerb von den Industriepartnern Alape, Duravit und Dornbracht unterstützt. Auf sbz-online.de haben wir unter der Rubrik Wissen/Kreativwettbewerb die Fakten zum Wettbewerb, Impressionen von Jurysitzung und Siegerehrung zusammengestellt. Dort finden Sie auch die redaktionellen Beiträge und eine Kommentierung der Entwürfe. https://www.sbz-online.de/
Autor
Nicola Stammer ist diplomierte Innenarchitektin. Schon zweimal konnte sie als Siegerin des SBZ-Bad-Kreativ-Wettbewerbs überzeugen und wurde dieses Jahr in die Jury berufen.
Nicola Stammer
21365 Adendorf
Telefon 0 41 31/18 88 19
 
     
     
     
     
     
     
     
     
     
     
     
     
     
     
     
     
     
     
     
     
    