Springe auf Hauptinhalt Springe auf Hauptmenü Springe auf SiteSearch
SBZ-Kreativ-Wettbewerb

Top-Bäder über 9 m²

Bäder über 9 m² sind statistisch gesehen in Deutschland, trotz gestiegenem Wellness­bewusstsein, leider immer noch kein Standard. Dabei bieten diese doch erst Raum für mehr Wellness und Luxus sowie Spielraum für planerische Kreativität. Mög­liche Zonierungen, großzügige Waschtischanlagen und Platz für eine Sauna sind nur einige Vorteile. Nicht nur die beiden unter Top- 10-platzierten Bäder zeigen, dass mehr m² auch mehr Wohnqualität bedeuten können.

Schreiner Architekten schafften fließende Übergänge

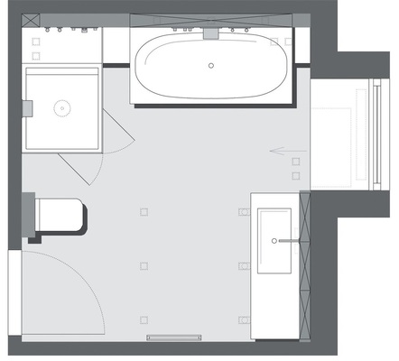
Badplanerin Katrin Härtel von den „Schreiner Architekten“ und Bäderbauer Jörg Erbe von der Erbe GmbH überzeugten mit einem Bad, das über seine Grenzen hinauswächst und erhielten damit die Auszeichnung zum „Top-10-Badplaner Deutschlands“. Dem Wunsch der Bauherren, die großzügige Gestaltung der Loftwohnung auch im Privat­bereich fortzuführen wurde mit einer großzügigen Öffnung mittels Glasschiebeanlage zwischen Schlafbereich und Bad geschaffen. So verschmelzen die Bereiche nicht nur optisch, sondern erhalten von zwei Seiten Tageslicht.

Intimität trotz großzügiger Öffnung

Fast eine komplette Seite des Badezimmers wurde zum Schlafbereich raumhoch verglast. So wird eine Großzügigkeit erreicht, die klimatische und akustische Probleme berücksichtigt. Die Wanne nimmt dabei den zentralen Mittelpunkt ein, offen zum Schlafbereich und rückwärtig mit einer halbhohen Wandscheibe als Raumteiler begrenzt. Hinter dieser verbirgt sich das WC und der Duschbereich, die auf diese Weise Intimität wahrt, aber Tageslicht und Durchblicke ermöglicht.

Funktional wurde der Raum so in Bereiche gegliedert. Auf der einen Seite befindet sich der Aktiv-Bereich mit einer sehr großzügigen Waschtischanlage von 3,50 m Länge über die gesamte Raumbreite sowie das blickgeschützte WC. Auf der anderen Seite bilden der große Duschbereich und die gegenüberliegende Sauna eine funktionale Wellness-Einheit zur Regeneration. Hinter der Sauna befindet sich das Gästebad, welches über einen kleinen Flur angeschlossen ist. Da die Loftwohnung genügend Platz bietet, kann der Schlafbereich auch als Fitnessraum umfunktioniert werden und so den Wellnessfaktor erhöhen.

Dezente Optik

Um der Großzügigkeit Ausdruck zu verleihen, wurden großformatige Fliesen (100 x 100 cm) gewählt. So wird der Fugenanteil gering gehalten und die Flächen wirken homogen. Alle Objekte und Wandelemente sind auf das Fliesenraster ausgerichtet. Der Fliesenanteil wurde auf ein Minimum reduziert, sodass der Großteil der Wandflächen glatt verspachtelt und weiß gestrichen ist, was den wohnlichen Aspekt erhöht. Als Kontrast zu den matten graumelierten Fliesen wurden bewusst Edelstahl-Kantenschutzprofile eingesetzt. Diese Optik setzt sich in der leicht glänzenden Linienstruktur der metallbeschichteten Waschtischkonsole fort. Stauraum findet man hier nicht – es sollen keine „Leichen“ angesammelt werden, nur das wirklich Nötige soll sichtbar und in direktem Zugriff sein. Die Sauna wirkt wie ein angeschlossener Raum, da sie mit GK-Platten verkleidet und ebenfalls weiß gestrichen wurde. So fügt sie sich perfekt in das Gesamtbild ein. Eine Glastür gibt den Blick auf den Innenraum frei, der mit nordischer Fichte ausgestattet ist. So harmoniert die Sauna mit dem Holzboden des Schlafbereiches, verbindet optisch und schafft einen warmen Gegensatz zu der modernen klaren Badarchitektur.

Das Jury-Urteil

Klarheit auf ganzer Linie und fallende Grenzen unter Berücksichtigung der verschiedenen Klimazonen zwischen Bad und Schlafbereich begeisterte die Jury ebenso wie die schnörkellose klare Strukturierung der Funktionsbereiche, die die Großzügigkeit nicht zerstört. Das Bad nimmt sich zurück und lässt Platz für die individuelle Entfaltung des Nutzers.

Ultramarin setzte auf Exklusivität

Badplanerin Bettina Hildebrandt von der Ultramarin GmbH und Geschäftsführer Stephan Krischer landeten mit ihrer Einsendung in der Kategorie Bäder über 9 m² unter den ersten drei Plätzen und erhielten die Auszeichnung zum „Top-10-Badplaner Deutschlands“. Der Wunsch der Bauherren nach einer hochwertigen Optik wurde durch viele Sonderanfertigungen und besondere Materialwahl umgesetzt. So entstand ein unverwechselbares individuelles Bad. Eingereicht und angemeldet war das Bad eigentlich für die Kategorie unter 9 m². Die aufmerksame Jury stellte jedoch fest, dass die Grundfläche über 12,5 m² betrug. Statt Bad und Einsender zu disqualifizieren, gruppierte sie es kurzerhand in die „offene Klasse“ um.

Optik und Haptik sorgen für Emotionalität

Die Reduzierung auf wenige Farben und Materialien sorgt für eine harmonische Ausstrahlung, die Abstufungen in Grau kombiniert mit Weiß für eine edle und dezente Optik. Die außergewöhnlichen Wandfliesen aus Feinsteinzeug bringen Emotionalität in die puristische Architektur. Ihre individuelle werkseitig horizontal gefräste Oberfläche verleiht dem Raum eine samtige Note, die durch gekonnte Lichtinszenierungen noch verstärkt wird. Im Nassbereich wurden die horizontalen Fugen ausgefüllt, um einen geringeren Pflege­aufwand zu erreichen. Raumhoch angewendet wirken sie wie ein textiler Wandbelag und erinnern in keiner Weise an eine Nasszelle. Die gleiche Fliese wurde auch für den Boden verwendet, nur hier ohne Fräsung und in einem Großformat. Die restlichen Wandflächen sind verputzt und mit einem passenden warmen Grau gestrichen. Abgerundet wird das Ganze durch angefertigte Objekte aus weißem Corian.

Wie aus einem Guss

Die klare Gliederung und kubistische Formensprache sorgt für ein ruhiges Erscheinungsbild. Wie aus einem Guss wirkt die Dusch- und Badeanlage durch eine optisch fortlaufende Sitzbank. Verstärkt wird dieser Effekt durch die Verwendung des gleichen Materials für alle Objekte – bis auf das WC. Das Material Mineralwerkstoff bietet eine sanft matte Optik und warme Haptik.

Für Komfort im Duschbereich sorgt neben der Sitzbank eine in die Decke eingelassene Regenbrause, eine Schwallbrause sowie eine Handbrause. Beleuchtete Nischen über der Wanne und in der Dusche sorgen für Stimmungslicht und halten Shampoo und Duschgel bereit. Sowohl beim Duschen wie beim Baden genießt man den Blick ins Grüne. Nichts lenkt hierbei ab, denn die Fensternische wurde gestalterisch einbezogen und beherbergt neben einem Heizkörper noch Stauraum für angewärmte Handtücher. Die Waschtischanlage aus einem Guss ist pflegeleicht und bietet viel Ablagefläche. Ein darunter wandhängendes Möbel bietet genügend Stauraum für große Utensilien. Ein großzügiger Wand-Einbauspiegelschrank hält alle kleinen Dinge des Alltags bereit. Handtücher finden seitlich an einem Handtuchheizkörper Platz, so wird für eine klare aufgeräumte Optik gesorgt. Die Mineralwerkstoff-Wanne mit einem Gewicht von 200 kg musste per Autokran durch das Badezimmerfenster angeliefert werden.

Das Jury-Urteil

Die Jury lobte das Bad der Ultramarin GmbH, da hier eine Versinnlichung der puristischen Innenarchitektur durch die besonderen Wandfliesen erreicht wurde. Ihre Struktur bringt eine sinnliche Note und schafft trotz minimalistischer Anmutung ein Wohlfühlambiente. Schön, dass es Bauherren gibt, bei ­denen das Budget mitspielt.

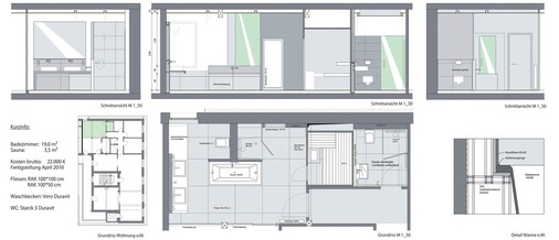
Bad-Eckdaten

Bad-Größe: ca. 22,5 m²

Umbaukosten: ca. 22000 Euro

Produkte + Hersteller: WC-Keramik: Duravit Starck 3

Waschbecken: Duravit Vero

Waschtischanlage: Deco Metal Alu Veil

Alle Armaturen: Steinberg Serie 160

Dusche: durchgefliest

Bodenablauf: Tece

Wanne: Großhandel/Hausmarke

Sauna: Tischleranfertigung

Fliesen: Rak/Gent

Extras

Zum Kreativ-Wettbewerb

Die SBZ wurde bei dem Wettbewerb von den Industriepartnern Alape, ­Duravit und Dornbracht unterstützt. Auf sbz-online.de haben wir unter der Rubrik Wissen/Kreativ­wettbewerb die Fakten zum Wettbewerb, Impres­sionen von Jurysitzung und Sieger­ehrung zusammengestellt. Dort finden Sie auch die redaktionellen Bei­träge und eine Kommentierung der Entwürfe.

https://www.sbz-online.de/

Steckbrief

Schreiner Architekten und Peter Erbe GmbH

Katrin Härtel ist als Diplom-Ingenieurin der Architektur bei Schreiner Architekten für die Planung und Koordinierung vor Ort zuständig. Badezimmer sind dabei nur ein Part bei ganzen Wohnungs- oder Hausprojekten. Was ihr aber besonders Spaß am Bad macht: „Hier hat man auf begrenztem Raum eine hohe Gestaltungsmöglichkeit. Die Herausforderung besteht darin, das Maximum herauszuholen.“ Hannes Schreiner gründete 1994 das Architekturbüro und ist Lehrbeauftragter an einigen Universitäten und Fachhochschulen.

Ausgeführt hat das Bad die Peter Erbe GmbH aus Heilbronn. Gegründet wurde der Betrieb vor rund 35 Jahren und beschäftigt inzwischen 25 Mitarbeiter. Bäder haben sich zum Kerngeschäft mit etwa 70 Prozent des Jahresumsatzes entwickelt. Junior Jörg Erbe war Projektleiter bei diesem Bad. Dem Gas- und Wasserinstallateurmeister ist die gesamtheitliche Gestaltung und besonders das Lichtkonzept wichtig.

http://www.schreiner-architekten.de

http://www.erbe-gmbh.com

Bad-Eckdaten

Bad-Größe: ca. 12,5 m²

Umbaukosten: ca. 80000 Euro

Produkte + Hersteller: WC-Keramik: Flaminia Terra matt

WC-Drücker: Vola

Waschtischanlage: Antonio Lupi

Armatur: Dornbracht Symetrics

Dusche: Corian Maßanfertigung

Armaturen: Dornbracht ­Symetrics mit xtool

Regenbrause: Aron von Aqua Concept

Wanne: Antonio Lupi

Bodenfliesen: Brix Junit Square

Wandfliesen: Brix Junit Home

Sitzbänke: Corian-Maßanfertigung

Wandputz: mineralischer Feinputz

Einbauspiegelschrank: Maßanfertigung

Steckbrief

Ultramarin GmbH aus Köln

Bettina Hildebrandt ist Diplom-Ingenieurin der Innenarchitektur und arbeitet seit zwei Jahren bei Ultramarin. Sie ist für die Planung und Baubetreuung der Bäder zuständig. Was ihr dabei ganz wichtig ist: „Dass das Bad eine Atmosphäre der Entspannung ausstrahlt und dem Nutzer die Besinnung auf sich selbst ermöglicht.“

Geschäftsführer Dipl.-Ing. Stephan Krischer leitet das Unternehmen, das den Aqua-Cultura-Badeinrichtern angehört. Aqua Cultura steht für Qualität und Design und versteht das Bad als Wohnraum. Mit seinen vier Mitarbeitern realisiert Krischer vor allem Bäder der Premiumklasse.

http://www.ultramarin.de

Bewertung

Viele Kriterien berücksichtigt

Außer einer Einteilung in die drei Kategorien Gäste-WC, Bad kleiner 9 m², Bad größer 9 m² gab es keine Vorgaben. Dementsprechend sah sich die Jury verschiedensten Raumsituationen, Bauherrentypen und deren Budgetvorgaben gegenüber. Aber wie kann man das gerecht beurteilen? Ästhetik war sicher eines der Kriterien, doch dies hing ja vor allem auch vom Geschmack der Bauherren und deren Budget ab. Also hat die Jury die Rahmenbedingungen einbezogen und in Relation zum Ergebnis gesetzt. Denn gesucht wurde nicht das schönste Bad, sondern der beste Badprofi. So flossen in die Bewertung auch der Schwierigkeitsgrad des zu planenden Raumes und das Raumkonzept ein. Die Einhaltungen von Normen zum Beispiel bezüglich Steckdosen und Standhöhen unter Dachschrägen sowie Berücksichtigung von Klimazonen bei Bad-Schlafzimmer-Kombinationen wurden ebenfalls berücksichtigt.

Die Qualität der eingereichten Fotos war nicht ausschlaggebend. Budget und die Schwierigkeiten des Raumes dagegen, waren fester Bestandteil der Bewertung. Denn jeder Badplaner weiß, wie sehr bauliche Gegebenheiten und Kostenvorgaben in der Gestaltung einschränken. Die Kunst liegt darin, trotzdem ein für die Bauherren rundum zufriedenstellendes Ergebnis zu erzielen.

Autor

Nicola Stammer ist diplomierte Innen­architektin. Schon zweimal konnte sie als Siegerin des SBZ-Bad-Kreativ-Wettbewerbs überzeugen und wurde dieses Jahr in die Jury berufen.

Nicola Stammer

21365 Adendorf

Telefon 0 41 31/18 88 19

innenarchitektur@nico-stammer.de

https://www.nico-stammer.de/

Der SBZ-Kreativ Wettbewerb wurde unterst��tzt von

Tags