Springe auf Hauptinhalt Springe auf Hauptmenü Springe auf SiteSearch

Raster beeinflussen Proportionen

Die alte Regel „Kleine Bäder – kleine Fliesen. Große Bäder – große Fliesen“ hat schon lange ausgedient. Der Trend geht immer mehr zu großformatigen Fliesen, da ein geringer Fugenanteil die Homogenität eines Raumes steigert. Dadurch wirkt eine Fläche ruhiger und großzügiger.

Ein Badezimmer in einer typischen Größe von 2,50 m × 3,50 m wirkt bei einer gleichbleibenden Platzierung der Sanitärobjekte durch die Wahl unterschiedlich großer Fliesen vollkommen anders. Die auf den folgenden Seiten skizzierten Grundrisse verdeutlichen, wie das Fliesenraster den proportionalen Raumeindruck beeinflusst. Daher ist es wichtig, das Fliesenformat auf den jeweiligen Raumzuschnitt anzupassen.

Eine Raumgestaltung mit Fliesen im Format 30 cm × 30 cm wirkt zwar aufgeräumt, aber eben auch kleinteilig und etwas langweilig ( Bild 1 ). Eine Raumgestaltung mit Fliesen im Format 60 cm × 30 cm wirkt etwas großzügiger. Durch das rechteckige Format – quer verlegt – wird die horizontale Linienführung betont und der Raum wirkt breiter ( Bild 2 ).

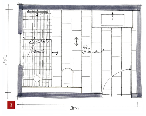
Eine Raumgestaltung mit Fliesen im gleichen Format (60 cm × 30 cm), aber längs verlegt (um 90° gedreht), hat eine andere Aussage. Es verbreitert den Raum optisch in der Verlegerichtung. Der Drittelverband lockert die Fläche auf und lässt sie unruhiger erscheinen. Die Betonung der Duschzone durch rechteckige Mosaike trägt zu einer optischen Raumverkürzung bei ( Bild 3 ).

Eine Raumgestaltung mit Fliesen im Format 60 cm × 60 cm lässt den Raum sehr großzügig wirken. Hier fällt auf ( Bild 4 ), dass es wichtig ist, auf die Bezugslinien zu achten. Der Fugenschnitt sollte an der Vorwandinstallation enden, andernfalls würde ein unschönes Schnittstück entstehen. Zusammen mit den Mosaiken in der Duschzone ergibt sich eine ästhetisch ansprechende Gestaltung von kleinen und großen Quadraten.

Eine Raumgestaltung mit Fliesen im Format 90 cm × 45 cm vergrößert den Raum optisch stärker ( Bild 5 ). Durch die Verlegerichtung – quer – ist die Horizontale betont. Die Breite der Duschzone entspricht der Fliesenbreite. Dies vermittelt ein aufgeräumtes Gestaltungskonzept. Die Tiefe der Vorwandschale sollte um 10 cm erhöht und damit an den Fugenschnitt angepasst werden.

Eine Raumgestaltung mit Fliesen im Großformat von 120 cm × 60 cm zeigt, wie die Fliesen nicht verlegt werden sollten ( Bild 6 ). Links und rechts neben dem Eingangsbereich sind schmale Fliesenstreifen ausgebildet, die den Gesamteindruck stören. Eine Faustregel lautet, dass Schnittstücke nicht weniger als ein Drittel der Fliesengröße umfassen dürfen. Dies ist zu beachten.

Um der großformatigen Fliese (120 cm × 60 cm) in einer Raumgestaltung einen angemessenen Rahmen zu geben, ist die Duschzone auf das Fliesenformat verbreitert. Ein Richtungswechsel zwischen Duschzone und Raum – quer und längs verlegt – ermöglicht einen sauberen Fugenplan, in dem keine unvorteilhaften Schnittkanten entstehen ( Bild 7 ). Die erste Querfliese in der Dusche an der Waschtischwand bildet eine Bezugskante (Markierung 1) für die Fliesenverlegung und die Kante der Vorwandinstallation (Markierung 2) die nächste Bezugskante. Der Waschtisch wurde ein wenig verrückt, damit er mittig auf der Fliese sitzt.

Verlegerichtungen und ihre Wirkung

Bei Fliesen in rechteckigen Formaten ist entscheidend, ob die Fliesen in einer Längs- oder Querrichtung verlegt werden. Dies beeinflusst die Raumproportionen. Vom Blickwinkel des Nutzers aus gesehen, kann die im Beispiel abgebildete Verlegerichtung eine optische Verlängerung des Raumes bewirken, die untere hingegen eine Raumverbreiterung ( Bild 8 ).

Ein schöner Nebeneffekt: Diese optische Raumwirkung wird ebenso durch verflieste Wände hervorgerufen ( Bild 9 ). Eine stehende Verlegung zieht eine optische Erhöhung des Raumes nach sich. Eine liegende Verlegung wirkt durch die horizontale Betonung verbreiternd. Die horizontale Verlegung wird häufig angewendet, um großzügige Duschzonen zu betonen.

Meist ist es möglich, die Wände einer Duschzone mit nur einer liegenden Fliese zu gestalten. Es entstehen dabei nur horizontale Fugen, was optisch eine Beruhigung bewirkt und die Wandfläche vergrößert.

Teilverflieste Wände

Der wohnliche Charakter eines Badezimmers rückt heutzutage bei der Gestaltung in den Vordergrund. Früher hatte die – auch vollflächige – Fliesenverlegung auf den Wänden meist funktionale und pflegefreundliche Gründe und sollte seltener auch eine optisch reizvolle Gestaltung sein. Der Gestaltungstrend korrigierte dann die Fliesengrenzen nach unten und reduzierte sie auf ein Minimum. Die Fliese wurde nur auf wasserbeanspruchten Wänden eingesetzt. Das Resultat waren hohe Verfliesungen im Duschbereich und ein kantiges Absenken der Verfliesungen der verbleibenden Wände auf eine Höhe von 120 cm, die sich aufgrund der Vorwandinstallationen in den letzten Jahren in der Badgestaltung durchgesetzt hat ( Bild 10 ). Diese Gestaltung trägt nicht zu einer ganzheitlichen Wirkung im Raum bei. Es entsteht ein „Zackenspiel“ – die Wandstrukturen sind in der Horizontalen auseinandergerissen. Häufig ist dieses Gestaltungskonzept außerdem mit einer wilden Farbgebung kombiniert, da die obere Wandfläche durch einen Anstrich verändert werden kann. Die Wirkung kann insofern unglücklich sein, da die obere Hälfte der Wandfläche quasi auf den Betrachter herunterkippt. Dies vermittelt kein gutes Gefühl.

Eine gelungene Raumgestaltung ist hingegen durch eine bewusste Teilverfliesung der Wandflächen zu erreichen. Das bedeutet, dass einzelne Wände oder Wandabschnitte komplett ohne Fliese gestaltet sind ( Bilder 11 und 12 ). Andere Wände hingegen sind vollständig verfliest – im Fugenschnitt. Eine durchlaufende Wischleiste ist in einem Badezimmer aus pflegetechnischen Gründen sinnvoll. Die alternativen Wandbeläge müssen deshalb dem feuchten und wasserbeanspruchten Bereich jeweils angepasst sein. Je nachdem, wo welches Material eingesetzt wird, sollte es spritzwasserfest oder aber strahlwasserresistent sein. Mittlerweile stehen dafür verschiedene Produkte in unterschiedlichen Ausführungen zur Verfügung.

TIPP

Bäder neu gestalten

Das Buch „Bäder neu gestalten“ beinhaltet eine umfangreiche Kollektion an Beispielen aus der Praxis unserer Fachautorin Andrea Stark. Es bietet Anregungen für den Umbau und die Modernisierung von Badezimmern im mittleren Preissegment. Die Neuerscheinung der Verlagsgesellschaft Rudolf Müller (Köln) liefert Gestaltungskonzepte für unterschiedliche Raumsituationen. Alle Beispiele sind Komplettlösungen, die das Zusammenwirken von Raumaufteilung, Wand- und Bodengestaltung, Möblierung, Farbe und Beleuchtung zeigen.

Theoretische Grundlagen zur Raum-, Fliesen-, Farb- und Lichtplanung ergänzen die Beispielsammlung. Einen Schwerpunkt bilden altersgerechte und barrierefreie Bäder. Der vorliegende Beitrag ist dem Buch entnommen.

„Bäder neu gestalten“ verfügt über 248 Seiten mit 428 farbigen Abbildungen. Als Buch kostet es 59 €, das E-Book-PDF gibt es für 47,20 €. Die ISBN lautet 978-3-481-03464-1.

www.baufachmedien.de

Autor

Die Innenarchitektin Andrea Stark ist seit mehr als 25 Jahren im Bäderbau tätig. Für den sanitären Fachgroßhandel setzt sie ihr Know-how ebenso ein wie im eigenen Unternehmen mit dem Namen „starkberaten“. Sie gibt Seminare und hält Vorträge zur Ausstattung von Badezimmern und ist als Autorin tätig. info@starkberaten.de www.starkberaten.de

Tags