Springe auf Hauptinhalt Springe auf Hauptmenü Springe auf SiteSearch

Querdenker mit Weitblick

Ein Schlauchbad – besonders wenn es nur ca. 1,50 m breit ist – stellt eine gestalterische Herausforderung dar. Um dennoch zu einem Top-Ergebnis zu gelangen, empfiehlt es sich, sich von traditionellen Konzepten zu lösen. Das folgende Beispiel zeigt exemplarisch, wie das gelingen kann.

Die Ausgangssituation: Ein exklusiver Neubau an der Elbe in Hamburg war genau eine solche Herausforderung, denn es handelte sich um ein in eine schmale Baulücke platziertes Gebäude. Die gesamte Breite des Hauses beträgt 9,60 m. Das Erdgeschoss beherbergt nur Nebenräume und Parkplätze. Das erste Obergeschoss wird als Bürofläche vermietet, zum Wohnen sind das zweite und dritte Obergeschoss vorgesehen.

Die Bauherrin (und Bewohnerin) des Objektes lebt die meiste Zeit alleine dort, für den Besuch der schon volljährigen Kinder wurde zusätzlich ein Gästetrakt angebaut. Minimalistisch-puristisch sollte die Gestaltung des Hauses sein, mit viel Glas an den Fensterfronten ( Bild 1 ). Das hatte zusätzliche Auswirkungen auf die Planung der Innenräume und des Bades.

Schritt 1: Raumanalyse und Ausgangssituation

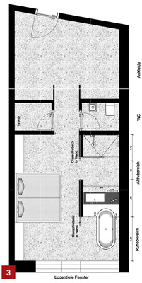
Schauen wir uns erst einmal den Grundriss im Ganzen an ( Bild 2 ): Das Schlafzimmer mit Bad befindet sich in der dritten Etage. Über eine großzügige Ankleide betritt man (bzw. Frau) das Schlafzimmer vom angrenzenden Bad aus. Ein Hauswirtschaftsraum und ein separates WC befinden sich zwischen Ankleide und Schlafzimmer/Bad. Für Schlafzimmer und Bad stand insgesamt nur eine Raumbreite von 4,65 m zur Verfügung. Alles in allem blieb für das Bad somit nur noch eine Breite von 1,55 m übrig! Des Weiteren war eine Raumseite als eine komplette bodentiefe Glasfront vorgesehen. Im Ergebnis bedeutete das: ein Schlauchbad, „wie es im Buche steht“, mit der Abmessung 5,48 x 1,60 m.

In einem ersten Grobkonzept des Architekten war vorgesehen, die Wanne vor der Fensterfront zu platzieren, den Waschplatz an der langen Außenwand auszurichten und die Dusche in Richtung Ankleide zu platzieren. Ein naheliegendes Vorgehen, aber das „gewisse Etwas“ fehlte. Problematisch war zudem die Platzierung der Wanne vorm Fenster. Denn das Glas sollte sich bodentief an die Fassadengestaltung des Gebäudes anpassen. Ein neuer Plan musste her.

Schritt 2: Waschtisch „um die Ecke“ denken

Es hilft, sich erst einmal die Abläufe im Bad genauer anzuschauen: Die am häufigsten genutzten Objekte sind die Dusche und der Waschtisch. Die Wanne wird in den meisten Fällen eher selten benutzt, meist nur für ein Entspannungs- oder Erkältungsbad (wir sind in Hamburg!). Also kann die Wanne auch vom eigentlichen Bad losgelöst betrachtet werden, ist doch der Ablauf für ein Entspannungs- oder Erkältungsbad unabhängig von den anderen Objekten zu sehen. Warum also den Schlauchraum nicht in zwei „Räume“ gliedern? Damit war ein neuer Gestaltungsansatz geboren ( Bild 3 ).

Die Idee: Der Waschtisch fungiert als Raumteiler, eingespannt zwischen Außenwand und Raumtrennwand zum Schlafzimmer. So kann die Bauherrin ihren Wunsch nach viel Ausblick und Kommunikation mit der Umwelt verwirklichen. Statt gezwungenermaßen in den Spiegel zu schauen, kann sie nun den Blick ins Grüne schweifen lassen – und zwar von allen Badobjekten aus, nicht nur von der Badewanne!

Abteilbar sind beide Bereiche vom Schlafbereich mittels satinierter raumhoher Glasschiebetüren. So kann zum einen Intimität geschaffen werden – wenn nötig. Zum anderen können Schlaf- und Badbereiche unterschiedlich temperiert werden ( Bild 4 ). Das WC befindet sich dabei räumlich abgetrennt im Zugangsbereich und bietet ebenfalls genug Intimität. Anfänglich war außerdem angedacht, hinter dem Waschtisch eine Glasscheibe als Raumtrennung einzubauen. Dies wurde aus gestalterischen Gründen verworfen, da die Scheibe nach dem Duschen beschlagen gewesen wäre und somit der Durchblick in den Hof zunichte gemacht worden wäre.

Schritt 3: Spiegel an anderer Position platziert

Mit der außergewöhnlichen Platzierung des Waschtischs geht zudem ein weiterer interessanter Effekt einher. Der Spiegel befindet sich an einer anderen Position. In der Regel ist es doch so: Jedes Mal, wenn man an einen wandhängenden Waschtisch tritt, wird man gezwungen, sich den eigenen Alterungsprozess vor Augen zu führen. Was nicht unbedingt eine positive Wirkung auf das Gemüt hat. Wo bleibt die Selbstbestimmung zu entscheiden, wann man sich den Falten, Pickeln oder Augenringen stellen will? Wohl nur, wenn kein großer Spiegel direkt über dem Waschplatz angeordnet ist. Was wandgebundene Waschplätze unweigerlich zur Folge haben. Das Beispiel ( Bild 5 ) zeigt, dass dank eines mittig abgehängten Spiegels der Nutzer entscheiden kann, wann und ob er in den Spiegel schauen will. Denn bei dem mittig platzierten Objekt kann der Blick ungehindert über das Waschbecken in den Raum und den Garten schweifen. Statt ständiger Selbstkonfrontation im Spiegel stimmt hier der Ausblick positiv. Kann es etwas Schöneres geben? Da wird selbst das Zähneputzen plötzlich zum Erlebnis und ist nicht mehr nur langweilige Pflicht.

Das Loslösen vom klassischen Badkonzept mit wandhängenden Waschtischen bietet also zum einen eine freiere Raumgestaltung als Antwort auf Schlauchräume und moderne Glasarchitektur, zum anderen aber rückt das Bewusstsein für das eigene Ich und die Kommunikation in den Vordergrund. Der Waschplatz erhält einen neuen Stellenwert in der Badplanung. Nicht mehr nur funktional – sondern dem Individuum und neuen architektonischen Vorgaben angepasst.

Tipp

Mit Glasarchitektur umgehen

Viele moderne, puristische Neubauten bestehen überwiegend aus Glas. Daraus ergibt sich ein Innenraum, den größtenteils keine geschlossenen Außenwände umgeben, sondern endlose Fensterfronten. Plötzlich scheint seine Größe sich relativiert zu haben, denn im „schlimmsten“ Fall steht nur eine Wand zum angrenzenden Raum zur Verfügung. Wohin also mit den wandhängenden Objekten und den notwendigen Installationen? Neue Wände würden den Grundgedanken dieser transparenten Architektur, die Einbeziehung der Außenwelt, zerstören. Vorausgesetzt, sie gewährleistet genügend Intimität trotz Glasfronten, denn gewünscht ist der Ausblick und nicht der Einblick durch Fremde. Eine freistehende Wanne scheint selbstverständlich – denn was kann es Schöneres geben, als beim abendlichen Entspannungsbad den Ausblick zu genießen. Auch beim morgendlichen Duschen soll der Blick in die Ferne schweifen können. Warum soll nicht das Gleiche für den Waschplatz zutreffen? Empfohlen wird auch hier, den Bereich einfach mal mutig in den Raum zu stellen.

Autor

Nicola Stammer aus Rullstorf ist Dipl.-Ing. Innenarchitektur. Sie übernimmt die Gestaltung von Hotels, Büros und Privathäusern. Obwohl ihr Repertoire bis zum Ladenbau reicht, hat sie sich das Bad als eigentliches Steckenpferd ausgesucht. Sie hält z. B. Seminare zum Thema, seit 2017 unterrichtet sie außerdem an der Hochschule für Angewandte Wissenschaften Hamburg im Department Medientechnik. Tel. (0 41 36) 3 62 06 12 innenarchitektur@nico-stammer.de www.nico-stammer.de

Tags