Springe auf Hauptinhalt Springe auf Hauptmenü Springe auf SiteSearch

Komfortabel und für alle Generationen geeignet

Diese Aussage betrifft auch und gerade das Badezimmer: Die Wohneinrichtung ist Ausdruck der individuellen Persönlichkeit. Sie soll Wohlgefühl beim Betreten der Räume vermitteln, zur jeweiligen Lebenssituation passen, meist Großzügigkeit vermitteln und einfach schön sein. Aber: Die jeweilige Lebenssituation verändert sich naturgemäß über die Jahre – das Wohnumfeld verändert sich am besten mit. Dabei dürfen und sollen keine Einbußen im optischen Erscheinungsbild eingegangen werden. Die Menschen gestalten den Raum – aber der Raum gestaltet auch den Menschen. Vor dem Hintergrund wird sehr deutlich, welche hohe Bedeutung eine passende Raumeinrichtung zum täglichen, erfüllten und glücklichen Leben beiträgt.

Komfort als „zufälliger“ Zusatznutzen

Gerade im Themengebiet des demographischen Wandels befassen sich immer mehr Menschen mit einem entsprechend angepassten bzw. anpassbaren Lebensumfeld, vor allem im Bad. Wer das Glück hat, älter werden zu dürfen, tut gut daran, seinen Lebensraum darauf abzustimmen. Das heißt aber nicht, wahllos Griffsysteme zu montieren. Das vermittelt bloß den Eindruck: „Jetzt bist Du alt und brauchst einen Griff – Funktion erfüllt“. Die Kunst besteht vielmehr darin, den Menschen und seinen Wunsch nach gelungener Raumgestaltung nicht zu vergessen. Praktische Dinge schön zu gestalten und den Komfort in der Nutzung als zufälligen Zusatznutzen zu erhalten – das ist die Aufgabe, egal für welche Generation von Kunden.

Das Badezimmer gehört zu dieser Einrichtungsmaxime unbedingt und sogar als Erstes dazu. Neben der Funktion für die Ausführung der täglichen Reinigungsrituale ist das Bad maßgeblich an der Wohlfühlsituation der Bewohner beteiligt. Es ist der zumeist erste und der letzte Raum, den man im Tagesablauf nutzt, der einen empfängt. Fühlt man beim Betreten schon ein Wohlgefühl und erlebt bei der Nutzung einfache Funktionen, die unterstützen und nicht überfordern, so erlebt man eine passende Unterstützung bei den individuellen Ritualen. Und das in einem Umfeld, das dem Nutzer persönlich entspricht – der Tag kann nur gut anfangen.

Generationenübergreifend planen

Die Schwierigkeit bei der Planung eines neuen Badezimmers liegt nun einmal darin, dass man sich frühzeitig um alle Details Gedanken machen muss – denn ein Nachrüsten ist nicht so einfach möglich wie zum Beispiel bei der Möblierung eines Wohnzimmers. Technische Gegebenheiten müssen beachtet und gelöst, viele Gewerke miteinander kombiniert und koordiniert werden – und der Kostenrahmen ist auch zu beachten.

In der Betrachtung der generationenübergreifenden Planung kommt hinzu, dass man sich Gedanken machen muss, wie die Nutzung für Groß und Klein heute und auch in den nächsten Jahren sein könnte. Die selbstständige Ausführung aller Verrichtungen im Badezimmer ist für den Stolz und Respekt aller Menschen sehr wichtig – egal, welchen Alters. Das kleine Kind freut sich, so schnell wie möglich das Zähneputzen „selber machen“ zu können, der ältere Mensch möchte so lange wie möglich seine intimsten Rituale selber erledigen – ohne Hilfe und Zuschauer. Auch ein Unfall kann einen sehr aktiven Menschen zeitweise in eine Position bringen, in der er Hilfe braucht beim Duschen oder dem Toilettengang – schön wenn eine gelungene Bad-Einrichtung das erleichtert und sich eine fremde Hilfe sogar erübrigt.

Zweckmäßigkeit und Optik kombinieren

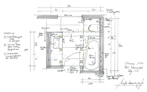
Das ist das Ziel: Komfortabel und gleichzeitig generationenübergreifend planen. Mit diesen Gedanken im Hinterkopf hat ein Bauherrenehepaar in Bensberg bei Köln ein Bauprojekt ins Leben gerufen. Ganz klar für die Generation 50+ wurde in sehr schöner Lage ein Mehrfamilienhaus der Extraklasse errichtet. Auf drei Etagen entstehen drei großzügige Wohnungen in der Größe von ca. 120 m². Die Aufteilung der Wohnungen zeichnet sich durch eine durchdachte und flexible Wohnungsnutzung aus.

Natürlich sind die Wohnungen barrierefrei – also sehr großzügig geschnitten, schwellenlos und immer mit einer ausreichenden Bewegungsfläche versehen. Ein Aufzug führt in alle Geschosse. Ein Gästezimmer mit angrenzendem Bad kann als Büro, Zweitschlafzimmer oder für Freundes- und Familienbesuch genutzt werden. Es ist aber auch perfekt geschnitten um evtl. eine Pflegekraft zu beherbergen – wenn sie denn mal nötig sein sollte. Neben den drei Großraumwohnungen existiert im Parterre noch eine kleinere Wohneinheit – auch barrierefrei – ebenfalls geeignet als Wohnraum für eine Pflegekraft oder einen Hausmeister.

Die Bäder sind mit Feinsteinzeugfliesen in warmen Sandfarben bewusst teilverfliest. Großformate in 120 x 60 cm – perfekt an die Raumaufteilung angepasst – wechseln sich mit Formaten im Größenmix als Dekoration im Raum ab und passen hervorragend zu dem angrenzenden Parkettboden. Die Bewegungsflächen von 120 x 120 cm sind für eine Rollstuhlnutzung im Privatbereich geeignet.

Mit einplanen:Duschbereich extra entlüften

Die Duschzone ist natürlich bodenbündig ausgearbeitet. Mit einer Rinne zur Kopfwand hin ist eine Entwässerung ohne große Gefälleschnitte, die die großformatigen Fliesen unterteilen, möglich. Ganz ohne Fugen geht es allerdings auch. Diverse Hersteller bieten Systeme mit fast unsichtbaren Ablaufsystemen an. Als fertig verfliesbares Bord stellt Poresta ein Slot S zur Verfügung und bindet sogar Großformatplatten von 120 x 120 cm ein. Mit der Rinne in immer größeren Abmessungen (mittlerweile bis zu 200 cm) kann über die gesamte Breite und damit gänzlich ohne Gefälleschnitte gearbeitet werden. Hier bietet zum Beispiel Dallmer mit CeraWall oder Cerafloor mit Edelstahlabdeckung oder aber auch individuell verfliesbar passende Produkte. Besonders hervorzuheben ist die einfache Reinigung – gerade zum Thema Komfortbad ein unverzichtbarer Punkt.

Im angesprochenen Projekt ist eine Duschrinne vom Fliesenhersteller Mosa eingesetzt worden – optisch angepasst. Neben der üblichen Handbrause sorgt auch eine Kopfbrause für erfrischendes Duschvergnügen. Die Besonderheit besteht darin, dass die Kopfbrause bündig in die Decke eingelassen wurde. Technisch bedingt musste sowieso eine abgehängte Decke vorgesehen werden. Kurzerhand wird sie auch zum Einbau des flächenbündigen Brauseregenmoduls genutzt, für den Einbau von Deckenspots und auch ein Ventilator findet darin seinen Platz.

Ein Ventilator wäre zwar nicht notwendig gewesen, weil Fenster zum Öffnen und Lüften vorhanden sind. Dennoch ist der Einbau sinnvoll – denn das Fenster wird nicht immer und meist nicht lange genug geöffnet, um dem Wasserdampf Zeit zum Abzug zu geben. Zudem ist der Einsatz im Bereich der Duschzone extrem sinnvoll – so schweben die Mini- Wassertropfen nicht erst noch durch den gesamten Raum, bevor sie abziehen können.

Nischenaufbau an der Wand gegenüber wiederholen

Die Wahl der Armaturen ist individuell – aber die leichte Bedienbarkeit ist eine sinnvolle Eigenschaft im Komfortbad. Intuitive und unkomplizierte Handhabung erleichtern den Alltag. Besonders hervorzuheben bei einer Dusche mit Doppelausgang ist das Zweiwegethermostat von Dornbracht, das nicht mit einer Zugknopfbedienung auf den zweiten Ausgang umzustellen ist, sondern sich einfach an einem Hebel von rechts nach links drehen lässt. Sollten sogar drei Wasserquellen vorhanden sein, so hat sich das x-Tool (Dornbracht) bewährt, das für jeden Wasserausgang einen Extrahebel bestimmt. Von oben nach unten sinnvoll belegt, kommt jeder Nutzer sehr schnell damit zurecht.

In der Dusche sorgt eine beleuchtete Shampoo-Nische dafür, dass die Kosmetik am richtigen Platz zur Verfügung steht. Wird hierfür nichts vorgesehen, stehen die Flaschen zumeist auf dem Boden herum oder man muss mit einem vor der Wand hängenden Korb vorlieb nehmen – und davon gibt es nicht viele wirklich schöne Modelle. Diese Nische kann zum Beispiel mit dem gegenüberliegenden WC-Bereich gespiegelt sein. In Breite und Ausführung identisch, vermittelt dieses Detail ein schönes Ambiente im Bad.

Sitzbereiche vielfältig nutzbar gestalten

Der Komfort in der Duschzone kann noch erhöht werden, indem man eine Sitzgelegenheit vorsieht. Ob man sich altersübergreifend nun darauf setzt und die Dusche im Sitzen genießen möchte (oder muss), das Element zum Abstellen der Füße bei der Reinigung oder beim Rasieren der Beine nutzt – die Möglichkeiten sind recht vielfältig. Auch kann so entspannt ein Fußbad vorgenommen werden, ohne lange eine mit Wasser gefüllte Schüssel durch die Wohnung tragen zu müssen. Je nach Ausarbeitung können sich kleine Kinder auf die Sitzbank stellen um abgeduscht zu werden, ohne dass sich der Erwachsene bücken muss. Sitzbereiche in der Dusche sind nicht nur ein Attribut des fortschreitenden Alters.

So wie die Gestaltungsmöglichkeiten des Badezimmers sehr mannigfaltig sind, so vielfältig sind auch die Gestaltungsmöglichkeiten von Sitzgelegenheiten. Ganz einfach ist die Montage eines sinnvollen Reling-Systems diverser Hersteller. Wichtig ist die optische Akzeptanz – also in Material und Farbe zur Einrichtung passend und formal adäquat. Hier wird nicht nur eine Griff- und Stützmöglichkeit in waagerechter und senkrechter Form angeboten, sondern die Brausestange direkt integriert. Es ist ein Irrglauben, dass man sich an „herkömmlichen“ Brausestangen auch gut festhalten kann – das führt häufig zu unschönen Zwischenfällen.

Kontraste sorgen für Sicherheit

Auf Wunsch kann ein Sitz einfach eingehängt oder aber auch später nachgerüstet werden. Reling-Stangen in variablen Größen können passend kombiniert werden, um als Griff oder Handtuchhalterung zu dienen – oder eben beides. Wenn gemauerte Sitze als Block ausgearbeitet und mit dem Bodenmaterial bekleidet werden, dann sollte auf jeden Fall eine Unterleuchte integriert werden. Es sieht nicht nur schick aus, sondern es ist für den ein oder anderen auch eine notwendige optische Maßnahme, um die Konturen von Sitz und Boden zu erkennen. Kontraste sind nicht nur eine Belebung der Raumgestaltung – bei der Komfortbadplanung ist es eine wichtige Zutat, um Menschen mit Sehschwäche eine sicherere Nutzung zu ermöglichen.

Das trifft ebenso auf das Thema Duschabtrennung zu. Die räumliche Großzügigkeit der Komfortbäder ermöglicht es meistens, eine komfortable, offene Walk-In-Lösung zu integrieren. Zumeist sind das angefertigte Glasscheiben in gerader oder auch gerundeter Form oder mit einem kleinen Frontteil über Eck – das erübrigt die sonst notwendige Haltestange im oberen Bereich. Sehr komfortabel ist die Dekoration des Glases mit einem sinnvollen Siebdruck. Im unteren Bereich vollflächig bedruckt und darüber mit zwei Streifen dekoriert, sieht es hübsch aus und ersetzt die tägliche Reinigung der Glasflächen. Nach dem Duschen verbleiben einzelne Wassertropfen auf der Glasfläche, die dann später zu weißen Rückständen führen. Um das zu verhindern, wird meistens von allen Badnutzern verlangt, nach dem Duschen die große Glasfläche abzuwischen. Für den einen ist das Frühsport – für den anderen ist das lästig. Wer es nicht mag, wählt eine Glasgestaltung, an der die unten vorkommenden Wasserflecken nicht mehr sichtbar sind und bei der Grundreinigung des Bades mit weggewischt werden. Auch das ist täglicher Komfort.

WC-Bereich seitlich anfahrbar halten

Die Position des WCs im Raum hängt häufig von den technischen Gegebenheiten ab. Dennoch sollte im Sinne von allen Nutzern darauf geachtet werden, dass der Name „Das stille Örtchen“ ernsthaft vergeben werden kann. Es ist häufig eine Aufgabe für die Innenarchitektur, den Intimbereich des WC-Nutzers zu schützen – das lässt sich auf vielfältige Weise realisieren. Ob nun hinter einem Möbel versteckt, einer kleinen Mauer oder einem farbigen Glaselement – hier ist die Kreativität gefragt.

Im Beispiel von Bensberg ist in einem Bad der Sichtschutz der WC-Einheit durch eine satinierte oder teilsatinierte Glasscheibe angedacht worden. Notwendig geworden gerade durch die offene Gestaltung der Raumfluchten und dem direkten Zugang vom Schlafzimmer zum Bad. In gleicher Flucht mit der Duschabtrennung passt das sehr schön zur Gestaltung und dem Fugenschnitt. Zudem könnte die Glaswand zur Dusche mit einer Schiebetür ergänzt werden und mit der feststehenden Wand am WC zusammen den gesamten rechten Bereich schließen.

Für den Fall, dass eine seitliche Anfahrbarkeit notwendig werden sollte, kann diese Glaswand einfach – und auch zeitweise – entfernt werden. Vorausschauend ist die Rückwand neben dem WC stabil ausgearbeitet und mit Verstärkungen versehen worden, um ein späteres Anbringen von Stützklappgriffen zu ermöglichen.

Höhenverstellbare Sitzposition empfohlen

Die richtige Höhe der WC-Einheit gibt es nicht! Unterschiedliche Lebenssituationen bedingen eine jeweils unterschiedliche Sitzhöhe. Nicht umsonst empfiehlt die KfW-Förderung eine höhenverstellbare Sitzposition. Die meisten Hersteller haben so ein Modul mittlerweile im Programm. Im Bereich der Komfortbäder ist neben der praktischen Seite die optische Lösung entscheidend – wie zum Beispiel ein Glaselement (etwa von Tece). Damit lassen sich Bauherren optisch begeistern. Die Glasplatte ist in unterschiedlichen Farben erhältlich und somit immer an das jeweilige Badambiente anpassbar. Es wurde in Bensberg die elektronische Ausführung gewählt, weil zudem die Bedienung einfach über einen Touchsensor erfolgt, ein Einwurfschacht für Reinungswürfel vorgesehen ist und – ein ganz wichtiges Detail auch durch die Nähe zum Schafzimmer– eine direkte Geruchsabsaugung integriert ist.

Die funktioniert wie die Dunstabzugshaube in der Küche – die Gerüche gelangen erst gar nicht in den Raum, sondern werden direkt über einen Aktivkohlefilter geleitet und die saubere Luft wird dann erst in den Raum abgegeben. Auch in den Wannenbädern ist ein Element mit Geruchsabsaugung verwendet worden.

Schon jetzt ist neben dem WC an der Wand ein Griff angebracht worden, der eine sinnvolle Halte-und Stützfunktion anbietet, aber auch zusätzlich als Papierhalter funktioniert. Durch diese Doppelfunktion tritt die „Unterstützungsfunktion“ in den Hintergrund.

Nachtlicht und andere „Helferlein“

Zuweilen werden die Stützklappgriffe nicht nur vorgerüstet, sondern schon eingebaut – ohne, dass eine wirkliche Notwendigkeit besteht. Sie dienen als Papierhalter und können zweckentfremdet werden. In einem Beispiel werden sie als Halterung für den Bademantel verwendet (etwa für den Zeitraum des Duschens). Aber nicht zu vergessen: Auch wenn der Rücken mal schmerzt, ist es eine komfortable Aufstehhilfe. Wichtig ist hier die optische Eingliederung in das Badambiente. Die Auflagen sind in unterschiedlichen Farben erhältlich.

Zu jedem WC gehört ein Nachtlicht, das ist zwingend notwendig im Komfortbad. Um den nächtlichen WC-Gang zu vereinfachen wird ein bodennahes LED-Licht im Bereich des WCs angeordnet, das nachts durch die Lichtreflektion am Boden den Weg zum WC leitet. Es funktioniert, ohne einen Lichtschalter suchen zu müssen und ohne Gefahr zu laufen, durch die helle Raumbeleuchtung unnötig wach zu werden – denn das Nachtlicht wird automatisch durch einen bauseits gestellten Bewegungsmelder gesteuert.

Die Krönung der Komfortbadplanung zum Thema WC ist der Einsatz eines Dusch-WCs. Auch wenn zum Zeitpunkt der Badgestaltung noch keines gewünscht wird, so besteht die vorausschauende Planung darin, zumindest einen Stromanschluss hinter dem WC vorzusehen, um jederzeit ein Modell nachrüsten zu können. Bei allen WCs des Bauprojektes wurde das beachtet.

Ein Dusch-WC wurde tatsächlich schon installiert (Tece One). Bei dem spülrandlosen WC mit einem Sitz mit Softclose-Funktion kann einfach Wasserstärke, Menge und Temperatur reguliert werden. Wichtig ist der Umstand, dass die Intimhygiene sehr gut mit Wasser und nicht nur mit Papier gehandhabt werden kann. Ein sinnvoller Ersatz für den Haupteinsatz eines Bidets. Dusch-WCs gibt es zwar schon seit vielen Jahren – aber erst jetzt werden sie neben der ausgereiften Technik auch optisch schön – und damit ein großes Thema in der Komfortbadplanung.

Den Waschplatz als „Diva“ im Raum inszenieren

Auch in generationenübergreifenden Bädern steht der optische Gestaltungsansatz im Vordergrund. Eine besondere Rolle spielt hier der Waschplatz. Durch die zumeist herausragende Position im Raum und die Wichtigkeit im Ansehen der Nutzer ist hier die individuelle Ausprägung maßgeblich. Für die Bewegungsflächen vor dem Waschtisch sind mindestens 80 cm Tiefe einzuhalten, am besten sogar die KfW-geförderten 120 cm. Ablageflächen und Stauraum sind außerdem wichtige Zutaten für einen täglich sinnvoll zu nutzenden Waschplatz.

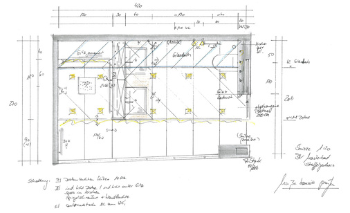
Beides wird in den Wohnungen in Bensberg durch einen wandgebundenen Aufsatzwaschtisch auf einer Konsolenplatte erreicht. Der Porzellanwaschtisch bietet ausreichend Innenraum. Die optisch zu der kubischen Formensprache passende Wand-Waschtischbatterie spendet einen breiten, weichen Wasserfluss und ist zudem pflegeleicht. Die vom Schreiner angepasste Konsolenplatte sorgt für ausreichend Abstellfläche und der ebenso angepasste Unterschrank bietet neben Stauraum für größere Dinge auch Stromquellen für Ladegeräte und ähnliches.

Waschtisch ist bei Bedarf unterfahrbar

Sollte es nun nötig sein, den Waschtisch unterfahrbar nutzen zu müssen, so kann der Unterschrank entfernt werden – auch zeitlich begrenzt. Vorausschauend geplant ist hier der sofortige Einsatz eines optisch schönen und sinnvollen Raumspar-Siphons. Heute spart er Platz im Schrank und morgen ermöglicht er die einfache Unterfahrbarkeit des Waschtisches.

Weiterer Stauraum befindet sich im Spiegelschrank. Die wenigsten Konsumenten von heute möchten eine „Kiste auf der Wand“ haben. Aber Stauraum ist nötig um ein aufgeräumtes, pflegeleichtes und ordentliches Badambiente zu ermöglichen. Die Lösung ist ein in der Wand integrierter Spiegelschrank. In diesem Fall vom Schreiner angefertigt, strahlt er mit LED-Leuchtbändern nach oben und unten und spiegelt das indirekte Licht unter dem Waschtischunterschrank. Eine blendfreie und komfortable Sicht zur Kosmetik wird über den beleuchteten Kosmetikspiegel gewährleistet, der leicht erreichbar im Bereich des Waschtisches angebracht ist.

Das ist Komfort: Badewanne zur Entspannung

Dem vermehrten Platzbedarf von Komfortbädern fällt häufig die Badewanne zum Opfer. Dabei ist es für viele Menschen der perfekte Platz zum Abtauchen und Entspannen. Generationenübergreifend betrachtet ist das zudem für Kinder ein beliebter Ort zum Spielen.

Im Komfortbad ist bei der Einbauhöhe darauf zu achten, dass der Wannenboden möglichst auf dem Niveau des Badezimmers liegt – das ermöglicht ein einfaches Ein- und Aussteigen. Ein Untertritt unter der Wanne ist überaus praktisch, um nahe an die Wanne herantreten zu können – für unterschiedliche Verrichtungen sehr hilfreich. Da liegt die Möglichkeit sehr nahe, ein LED-Band in dem Untertritt zu verbauen und einen indirekten Lichtschein unter der Wanne hervortreten und über den Boden gleiten zu lassen. Das ist übrigens auch perfekt als Nachtlicht zu nutzen. Ein gutes Beispiel, wie man praktischen Nutzen mit einer optischen Hilfe verbindet.

Vielfältige Ablageflächen schaffen

Sitz- und Ablagemöglichkeiten im Bereich der Badewanne sind nicht nur hübsch, sondern auch sehr praktisch. Ein Hinsetzen nach einem warmen Bad, Füße abstellen zur Kosmetik, kleine Kinder hinstellen um ein rückenschonendes Abtrocknen zu ermöglichen, Abstellmöglichkeiten für Bade-Utensilien oder auch ein entspanntes Verweilen im Gespräch mit dem Badenden – das sind nur einige Beispiele dafür, wie ein solcher Platz genutzt werden kann. Sollte sich dafür kein Platz finden lassen, so können auf gängige Wannengrößen auch Ablagen kombiniert werden. Dann kann die Wanne selber auch als Ablage-, Sitz- und Liegefläche genutzt werden.

Im Beispiel Bensberg ist die Badewanne heute für die Entspannung aller Bewohner gedacht – für eine Nutzungsänderung lässt sie sich mit einer Duschabtrennung zu einem Duschplatz umrüsten. Eine kleine Mauer hinter der Wanne dient als Sichtschutz zum Wand-WC, vom Haupteingang zum Wannenbad hin. Auch so kann man ein „stilles Örtchen“ schaffen. Zusätzlicher Komfort: eine Geruchsabsaugung in der Drückerplatte (Geberit Sigma 40).

Lichtinszenierung im Komfortbad ist Detailarbeit

In allen Räumen ist Licht ein wichtiges Mittel, um den Raum zu gestalten und zum Strahlen zu bringen. Generationenübergreifend nimmt der Bedarf daran weiter zu. Mit zunehmendem Alter nimmt die Lichtsensitivität von Menschen erwiesenermaßen ab, man benötigt mehr Licht, um ausreichend sehen zu können.

Zu achten ist auf gutes Licht – das heißt LEDs – möglichst in Tageslichtqualität. Unbedingt notwendig ist die Dimmbarkeit der Hauptlichtquelle, um das Licht allen Nutzern und für alle Rituale im Bad anpassen zu können. Sehr zu empfehlen ist auch die Wahl der Lichttemperatur oder sogar die automatische Steuerung – Stichwort: biodynamisches Licht. Das bedeutet, dass der Nutzer zu jeder Zeit die richtige Lichttemperatur – etwa passend zur Tageszeit zur Aktivität oder zur Ruhe – im Raum erleben darf. Licht im Raum zum Sehen, etwa Funktionslicht am Spiegel und Effektlicht wie Nischenbeleuchtung, beleuchteter Untertritt und Nachtlicht oder auch indirektes Licht an der Abhangdecke – das sind die Zutaten, um ein gelungenes Raumkonzept zu untermalen und abzurunden.

KfW-Förderung und Bedingungen beachten

Eine gute Orientierung bei der Komfortbadplanung ist das Regelwerk der KfW-Förderbank. Nicht nur, weil der Bauherr die Möglichkeit hat, einen Teil seiner Investition zurückerstattet zu bekommen. Sondern auch, weil hier sinnvolle Regeln aufgestellt wurden, die eine generationengerechte und selbstbestimmte Nutzung der Badezimmer ermöglichen.