So geschehen bei einem Bauvorhaben im Bergischen Land, bei dem unkonventionelle Wege gegangen wurden. Der Flur wurde aus Platzmangel integraler Bestandteil des Bades. In der Schlauchwohnung wurden Mauern eingerissen und die gewohnten Verhaltensweisen überdacht. Nur so ließ sich der Wunsch nach einem schönen Bad erfüllen.
Moderne Badplanung trifft Wohnungsbau der 70er
Eine 100 m 2 große Wohnung mit einem atemberaubenden Blick und umlaufenden Balkon ging in das Eigentum eines Bauherrenpaares über. Die Lage ist ausgezeichnet und ist auch der Grund für den Kauf des Objektes. Eine großzügige Sanierung des Objektes ist einkalkuliert – aber die Frage nach dem Wie stellt sich zunächst als schwierig dar. Die klare und doch kleinräumige Wohnungsaufteilung kollidiert mit dem Wunsch nach Großzügigkeit. Es ist nicht damit getan, die bestehenden Räume nett herzurichten – hier müssen grundlegende Änderungen vorgenommen werden.
Flur seiner Aufgabe enthoben
Zwei Rohrschächte und drei tragende Wände treten als Grenzen im Raum auf (Bild 2). Alles andere wurde infrage gestellt, die meisten Wände fielen der Sanierung zum Opfer. Die starre, funktionale Gliederung in kleine Räume wurde aufgehoben. Aus dem 4 m 2 großen Bad, der Abstellkammer und der Dusche wurde unter Einbeziehung des Flures ein kompletter Raumverbund gestaltet. Auf das zweite WC im vorderen Bereich verzichten die Bauherren, um mehr Freiraum zum Eingang zu erhalten.
Auffallend an der Wohnung war der endlos lange Flur, der die tageslichtdurchfluteten Räume auf der rechten Seite von den dunklen Kammern auf der linken Seite trennt. Seiner Aufgabe, die einzelnen Räume zu verbinden, wird er enthoben, weil es keine Grenzen mehr gibt. Die Wände zum Flur hin werden auf der linken Seite alle eingerissen und auf der rechten Seite so weit wie möglich geöffnet. Es gibt keine Türöffnungen mehr, sondern nur noch maximale deckenhohe Wanddurchbrüche, die auf Wunsch mit Schiebetüren verschlossen werden können. Die einzige Ausnahme bildet das WC – hier gibt es noch Wände und eine satinierte Glastür, um die benötigte Intimität zu gewährleisten.
Wohnküche – Wohnbad
Das offene Raumkonzept bedingt auch die Öffnung der Küche in Flucht. Auch hier fallen die Wände und die Küche öffnet sich zum Wohnraum. Die Gestaltung der Küche fiel recht wohnlich aus – nichts erinnert an eine herkömmliche Küchenzeile. Sie ist ein Wohnmöbel in Gestaltung, Farbe, Form und Funktion. Diese Anmutung wird schon seit Längerem auch von den Badmöbeln erfüllt.
Verbindende Elemente schaffen eine ganzheitliche Wohlfühl-Atmosphäre. Die Durchgängigkeit eines Bodenbelages unterstützt die ganzheitliche Wirkung. Das vordere Band Küche – WC – Bad hätte mit Fliesen belegt werden können. Das war auch anfänglich geplant, um den Belastungen von Küche und Eingangsbereich Genüge zu tun – und natürlich auch den Wasserpfützen vor der Badewanne. Letztendlich wurde dann ein Parkett gefunden, das auch in Küche und Bad verlegt werden kann – wenn man ein wenig vorsichtig ist. Das heißt nichts anderes als Wasserpfützen aufzuwischen oder einen Badvorleger zu nutzen und auch in der Küche sollten Fettspritzer aufgewischt werden. Ein Umstand, den die Bauherren nach reiflicher Überlegung akzeptieren, um die unschlagbare Wirkung eines komplett durchgehenden Bodenbelages zu erhalten (Bild 4) .
Deckengestaltung und Licht
Das ist das zweite verbindende Element. Der gesamte vordere Riegel wird mit einer Abhangdecke von 14cm Höhe versehen, um durchgehend ein LED-Lichtkonzept mit Tageslichtqualität einzubauen. Die quadratischen Einbauspots der Firma Kiteo versorgen den bisher eher dunkleren Teil der Wohnung mit einem angenehmen und sparsamen LED-Licht, das in der Wirkung dem Sonnenlicht sehr nahe kommt. Nicht nur die Lichtstärke ist zu bestimmen, sondern auch die Lichttemperatur. So kann mit einem Drehregler das Licht nicht nur mehr oder weniger hell gestellt werden, sondern auch sonnig warm oder klar und kühl. So wie die Sonne uns auch zu unterschiedlichen Tages- und Jahreszeiten mit unterschiedlichen Lichttemperaturen versorgt.
Diese Einbauleuchten werden im Raster vom Bad aus bis hin zur Küche verbaut und verbinden den gesamten Raumzuschnitt zu einem Ganzen. Natürlich sind die Leuchten in den jeweiligen Abschnitten getrennt zu schalten, zur Bildbeleuchtung auch schwenkbar und in der Küche noch zusätzlich als Aufbauleuchten eingesetzt.
Die Schiebetür im Flur ist aus satiniertem Glas. Sie läuft auf der Abhangdecke und verschwindet fast komplett in einem Wandausschnitt zwischen WC und Waschmaschinenraum. Bei Bedarf sorgt sie für etwas Intimität bei den üblichen Badverrichtungen. Eine gewisse Leichtigkeit sollte aber immer gegeben sein. Ebenso die Tür zum WC und zur Waschmaschine. Sie schützen vor ungewollten Blicken, aber schirmen nicht ab. Vielmehr unterstützen sie mit ihrer Materialität die natürliche Grundaussage des Einrichtungsstils.
Nur den WC-Raum separiert
Mit 1,5 m 2 Grundfläche ist er der kleinste Raumzuschnitt der Wohnung. Und auch der einzige Raum, der mit einer Drehtür permanent verschlossen ist. Doch mit dem durchlaufenden Parkettboden und den gestrichenen Wänden strahlt er optische Größe und die notwendige Ruhe aus. Über dem WC vermittelt der Einbau eines baugleichen Deckenkastens die Wirkung einer raumbreiten Nische. Die integrierten Lichtspots sind per Präsenzmelder geschaltet und versorgen den Nutzer bei Tag und bei Nacht automatisch mit ausreichend Helligkeit. Im Maß der Nische erstreckt sich ein Spiegel auf die gesamte Breite über dem WC und der angrenzenden Längswand. Das hat eine extrem raumvergrößernde Wirkung und der Eintretende schaut direkt in sein Spiegelbild (Bild 5) .
Das Geberit Aquaclean 8000plus konnte auch diese Bauherren davon überzeugen, dass ein sauberes Gefühl nach der Waschung mit Wasser anstatt nur Toilettenpapier dem Hygieneanspruch der heutigen Zeit entspricht. (Bild 6) . Minimalistisch versteckt sich in dem angrenzenden Wandstück der „Einbauschrank“ für Toilettenpapier und WC-Bürste (Keuco Integral) – notwendige Accessoires, die aber nicht gerne offen gesehen werden.
Organische Natur und klare Geometrie
Die Aufmerksamkeit zieht sicherlich der Waschplatz auf sich. vis-à-vis dem WC sind zwei Stahlträger in den Seitenwänden verankert und tragen einen polierten Kieselstein. Der Bezug zur Natur im Kontrast zu einem geradlinigen Grundkonzept in Form und Material sind die Grundelemente der Wohnungssanierung. Bewusst fließt das Wasser aus einem schlichten Wandauslauf, der mit seiner archaischen Wirkung und puristischen Formensprache (Dornbracht Tara) einen klaren Kontrast zum ausgesprochen natürlichen Steinbecken bildet. Dafür verzichten die Bauherren auf den Komfort von warmem Wasser (Bild 7) .
Der Weg führt durch das Bad
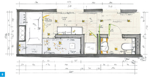
Das eigentliche Bad nimmt den Raum des vorherigen Bades und der Abstellkammer ein – da die Wände aber entfernt worden sind, erscheint es als offenes Kontinuum im Flur. So erreichen wir die gewünschte Großzügigkeit, die bei der herkömmlichen kleinräumigen Raumaufteilung nicht zu erreichen gewesen wäre. Der Weg zum Schlafzimmer führt nun immer durch das Bad – eigentlich naheliegend. Der erste Weg morgens und der letzte Weg abends, bevor man sich zur Ruhe begibt, führen in der Regel in das Bad. Damit konnten sich die Bauherren gut anfreunden. Das WC ist abgeschlossen im vorderen Bereich und auch von Gästen zu nutzen – das Bad und das Schlafzimmer dagegen befinden sich im hinteren Bereich als Intimzone. Um diese zu schützen, schließen wir den Bereich mit der im Flur eingesetzten satinierten Glastür. Wichtig war dabei, dass die Glastür auch verschwinden kann. Sind die Bauherren unter sich, soll sich der gesamte Bereich öffnen und die großzügige Wirkung einer Gesamtkomposition verbreiten dürfen. Bei eintretendem Besuch allerdings kommt die Schiebetür zum Einsatz und sichert den intimen Bereich (Bild 8) .
Bad und Schlafzimmer verschmelzen
Um dem mehr Raum zu geben, wurden die Türen entfernt und durch raumhohe Öffnungen ersetzt, die eine maximale Breite aufweisen. Die Holzschiebetüren werden im Flur laufend von der Badewanne und der satinierten Glasschiebetür begrenzt. Ganz zur Seite verschoben integrieren sie sich in die Raumeinrichtung und lassen so eine sinnvolle Kombination von Schlafen und Bad zu. Alles zusammen erscheint als ein Raumkontinuum. Die kritischen Randdaten einer Bad-Schlafen-Kombination wie Lichtschein, Luftfeuchtigkeit und Klimaunterschiede sind hier allerdings ausgeschlossen. Um die Einheit der Räume auch optisch zu unterstützen, wurde der Beschluss gefasst, das Parkett durchgängig zu verlegen. Eine Unterteilung in Fliese und Holz – die aus technischen Gründen in Betracht gezogen wurde – passte nicht mehr in das Gesamtraumkonzept.
Das Bad im Raum
Um die Längsstreckung aufzuheben, ist die großzügige Badewanne quer im Flur aufgestellt. Der Bereich hinter und neben der Wanne wird als Ablage, Armaturenhalterung und Sitz genutzt. Optisch verkürzt sie so den Raum. Der Untertritt erleichtert ein Greifen zur Armatur über die Badewanne hinweg und bietet die Möglichkeit, ein indirektes Licht per LED-Band über das dunkle Parkett gleiten zu lassen. Das unterstützt die Architektur und ist zugleich ein optisch schönes Element (Bild 9) .
Die besondere Anordnung der Objekte ist auch bei dieser Badplanung die Lösung, um alle Wünsche zu erfüllen und zudem noch eine optisch ansprechende Lösung zu schaffen. Die großzügige Go-in Dusche war Wunsch des Bauherrn. Durch eine eingezogene Trockenbauwand in L-Form lässt sich das auch realisieren. Eine Bodenbündigkeit ist aus bautechnischen Gründen nicht möglich. Also schaffen wir eine komplette Ebene mit einer Auftritthöhe von 15cm im rechten Winkel zur Wanne. Gegenüber dem Eintritt sorgt ein Badheizkörper für ausreichend Wärme und hält die Duschtücher am richtigen Ort bereit. Von hier aus gelangt man ebenerdig zum Duschbereich mit Kopf- und Handbrause, die per Thermostat sinnvoll gesteuert werden. Der gesamte Bereich ist mit Kieselsteinen belegt und vermittelt eine wohltuende Fußmassage beim Betreten der Dusche. Um das morgendliche Szenario noch angenehmer zu gestalten, ist der Bereich mit einer Fußbodentemperierheizung ausgestattet. Eine nach Fugenschnitt eingepasste und beleuchtete Shampoonische rundet das Vergnügen ab (Bild 10) .
Waschtisch als Wohnraummöbel
Zur Flurseite hin trägt die Trockenbauwand das Waschtischmöbel. So opulent im Raum thronend ist eine wohnliche Ausstrahlung unabdingbar. Einen herkömmlichen Porzellanwaschtisch empfanden wir als nicht passend. Die Wahl fiel auf Möbel und Waschtisch mit Sideboardcharakter (Burgbad Uomo). Die extrem geringe Tiefe unterstützt die Architektur des Raumes und lässt einen Durchgang von über 70cm im Waschtischbereich zu. Die minimalistische Formensprache findet sich sowohl im Möbel wie auch in den Wandarmaturen wieder. Der Spiegelschrank wirkt mit seinem umlaufenden Rahmen wie ein Bild und wird teilweise in der Wand versenkt. Für ein perfektes Funktionslicht sorgt der beleuchtete Rasier- und Kosmetikspiegel.
Schönheit und Funktion
Der Badraumverbund wird von den beiden Rohrschächten begrenzt. Der WC-Raum von der einen Seite, Wanne und Dusche von der anderen Seite wachsen aufeinander zu. Trotzdem bleibt gerade noch ausreichend Platz für den Einbau eines kleinen Hauswirtschaftsraumes für die Waschmaschine. Während der Bauphase stand dieser mehrmals unter Beschuss, weil technische Gegebenheiten ihren Tribut und damit Raum forderten. Letztendlich findet er doch seinen Platz und erspart den Bauherren für jeden Waschgang den Weg über den Flur oder in den Keller. Auch das ist Wellness im täglichen Leben. Optisch natürlich mit einer satinierten Glastür getrennt.
Wandverkleidung wasserfest
Unterstützend zur Architektur des Raumes wurde die Wandverkleidung gewählt. Die eingestellte Trockenbauwand wird als L mit großformatigen Feinsteinzeugfliesen belegt. Sie sind in ihrer graubraunen Farbe Bindeglied zwischen dem warmen, natürlichen Holzboden und der strengen Formensprache der Einrichtung. Um die Geradlinigkeit zu unterstützen, versteht es sich von selber, dass ein passender Fugenschnitt eingehalten werden muss. Durch die komplette Verfliesung erscheint das notwendige Funktionselement nun doch als optisch wertvolles Gestaltungselement. Im Wannenblock wird die Fliese wieder aufgenommen. In der Dusche selbst haben wir uns allerdings komplett von der Fliese gelöst, um jegliche Fugen zu umgehen, und uns für eine wasserfeste Wandverkleidung entschieden. Die Spachteltechnik Resina haben wir in einem gebrochenen Weiß einfärben lassen und in der Duschzone in L-Form aufbringen lassen. Auch über der Badewanne erstreckt sich die schlichte Wandgestaltung, um Großzügigkeit zu vermitteln.
Buntfarbe nach Wunsch
Buntfarblicht können sich die Bauherren jeden Tag und für jede Badnutzung in einer anderen Farbnuance gönnen. Das eingebaute Deckenlicht von Kiteo ist im Badbereich nicht nur in der Intensität und -temperatur einstellbar, sondern auch in der Lichtfarbe.
Durch die Raumaufteilung bedingt hat man sich für die Zweizonentechnik entschieden. Die beiden wassergeschützten Leuchten in der Dusche können in einer anderen Farbe erstrahlen als der übrige Gesamtraum. So ergeben sich mannigfaltige Lichtszenarien, die eine aufregende oder beruhigende, aber immer wieder neue Atmosphäre im Raum schaffen.
Licht ist die Krönung der Raumeinrichtung und für eine perfekte Planung unabdingbar. Alle Mühe um Gestaltung, Form und Farbe macht keinen Sinn, wenn sie nicht richtig in Szene gesetzt, beleuchtet wird und man sie nicht sieht. Damit ist nicht eine punktuelle Beleuchtung gemeint, die ein Produkt zur Geltung bringt, sondern eine ganzheitliche Beleuchtung, die den gesamten Raum für den Menschen in der Mitte erlebbar macht (siehe Spotlight).
Dieser Weg wird kein leichter sein...
Nein, es war kein leichter Weg, diesen Radikalumbau zu bewältigen. Er war oft steinig und schwer. Die Qual der Wahl, das riesige Angebot, die Befürchtung, etwas Falsches auszusuchen und ob das Zusammenspiel auch passt, zeitlos und stilsicher ist, verunsichert die meisten Bauherren. Aus dem eigentlich schönen Umstand, sich etwas Neues schaffen zu können, entsteht dann schnell Frust und Stress.
Hilfreich dabei ist eine Festlegung von grundlegenden Wünschen und Einrichtungskriterien. Im Dialog sollte man diese immer wieder überprüfen. Eine Kernsanierung in diesem Stil ist ein Weg, den man beschreitet. Manchmal sind Wege verschlungen, weisen Sackgassen auf oder Abzweigungen. Entscheidungen werden dabei verworfen, überdacht, geändert oder wieder aktiviert. Letztlich geht es hier neben den technischen Notwendigkeiten um Gefühle – und die zu greifen ist nicht so einfach. Wenn das jedoch gelingt, gibt es ein tolles Gesamtkonzept, inklusive sehr zufriedener Bauherren.
Spotlight
Licht fast wie Tageslicht
LED-Farblichtspiel per Fingerdruck. Die quadratischen Einbauspots der Firma Kiteo versorgen den bisher eher dunkleren Teil der Wohnung mit einem angenehmen und sparsamen LED-Licht, das in der Wirkung dem Sonnenlicht sehr nahe kommt.
Nicht nur die Lichtstärke ist zu bestimmen, sondern auch die Lichttemperatur. So kann mit einem Drehregler das Licht nicht nur mehr oder weniger hell gestellt werden, sondern auch sonnig warm oder klar und kühl. So wie die Sonne uns auch zu unterschiedlichen Tages- und Jahreszeiten mit unterschiedlichen Lichttemperaturen versorgt.
Materialsteckbrief
Waschtisch/Möbel Burgbad Serie Uomo
WC Geberit Aquaclean 8000plus
Wanne Duravit Starck X 180 x 90 cm
Armaturen Dornbracht Serien Mem und Tara
Duschebene Illbruck-Rinnenbord, Tece-Rinne mit Edelstahlabdeckung
Accessoires Keuco Integral WC-Modul, sam miro-Kosmetikspiegel
Badbeheizung Irsap Sequence, ELKE bamaheat-Fußbodentemperierung
Licht LED-Band im Untertritt Zierath, LED-Einbauspots Kiteo, K12 in Tageslichtqualität
Autor
Innenarchitektin  Andrea Stark ist Badcenter-Leiterin des Großhandelshauses Richter + Frenzel in Köln. Mit ihren planerischen Fähigkeiten konnte sie als Siegerin beim SBZ-Bad-Kreativwettbewerb überzeugen. Richter + Frenzel, 50825 Köln, Telefon (02 21) 54 04-2 41, E-Mail: andrea.stark@r-f.de , https://www.richter-frenzel.de/
 
     
     
     
     
     
     
     
     
     
     
     
     
     
     
     
     
    