Springe auf Hauptinhalt Springe auf Hauptmenü Springe auf SiteSearch
Alternative mit Umsatzpotenzial

Freistehende Waschplätze

Ein freistehender Waschplatz mag manch einem völlig idiotisch vorkommen – denn auf den ersten Blick stellt sich die Frage nach dem Mehrwert oder Sinn? Fehlt doch die Wand für große Spiegel oder Spiegelschränke. Was ist mit Steckdosen und seitlicher Beleuchtung? Viele Fragen, die manch einem sofort durch den Kopf schießen – doch technische Details sind lösbar. Vielmehr geht es um die Auseinandersetzung mit heutigen Anforderungen an Wohlfühlbäder, den zur Verfügung stehenden Räumen und dem gesellschaftlichen Wandel.

Möbel statt Wände

Generell stagniert die Durchschnittsgröße der deutschen Bäder laut der Vereinigung Deutsche Sanitärwirtschaft bei 7,8 m 2 . Doch dank des gestiegenen Körperbewusstseins in der Gesellschaft wird dem Bad immer häufiger in ambitionierten Einzelfällen wesentlich mehr Raum zugesprochen. Dies gilt nicht nur bei Neubauten, sondern auch im gestiegenen Maße bei Sanierungen, wo immer öfter zugunsten des Bades Räume zusammengelegt werden. Statt 7 m 2 stehen plötzlich 12 oder gar 25 m 2 zur Verfügung. Doch was passiert, wenn nun bei diesen Raumgrößen alle Objekte wie herkömmlich an den Wänden entlang montiert sind?

Es bleibt eine riesige, ungenutzte Freifläche in der Mitte – von Gemütlichkeit und Wohlfühlatmosphäre keine Spur. Also müssen raumgliedernde Objekte her. Freistehende Wannen gehören hier schon seit Jahrzehnten zum Standard. Alternativ werden halbhohe Wände zur Raumgliederung positioniert, die zum Beispiel den Waschtisch oder andere Objekte aufnehmen. So wandert der Waschplatz in den Raum – weg von den raumbegrenzenden Wänden.

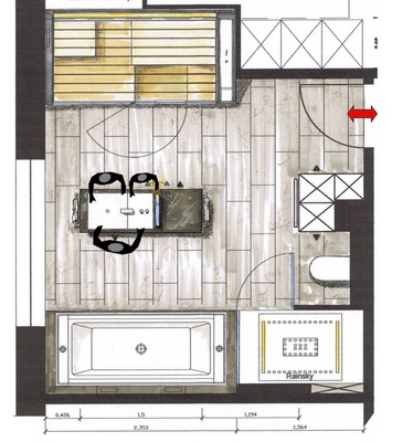
Antwort auf Glasarchitektur

Viele moderne, puristische Neubauten bestehen überwiegend aus Glas. Daraus ergibt sich ein Innenraum, der größtenteils keine Außenwände, sondern endlose Fensterfronten bietet. (Bild 1) Plötzlich scheint seine Größe sich relativiert zu haben, denn im ungünstigsten Fall steht nur eine Wand zum angrenzenden Raum zur Verfügung. Wohin also mit den wandhängenden Objekten und den notwendigen Installationen? Neue Wände würden den Grundgedanken dieser transparenten Architektur, die Einbeziehung der Außenwelt, zerstören – vorausgesetzt, sie gewährleistet genügend Intimität trotz Glasfronten. Denn gewünscht ist der Ausblick und nicht der Einblick durch Fremde. Eine freistehende Wanne scheint selbstverständlich – denn was kann es Schöneres geben, als beim abendlichen Entspannungsbad den Ausblick zu genießen? Auch beim morgendlichen Duschen soll der Blick in die Ferne schweifen können. Warum soll nicht Gleiches für den Waschplatz zutreffen? Das Beispiel (Bild 2) zeigt eine freistehende Wannen-Waschtischkombination. Hier ist auch der Blick beim Waschen frei und durch das Zusammenfassen zu einem zentralen Objekt bleibt ein großzügiger Raum erhalten.

Schöne Aussicht oder Faltenkontrolle?

Jedes Mal, wenn wir an den wandhängenden Waschtisch treten, werden wir automatisch gezwungen, uns den Alterungsprozessen zu stellen – was nicht unbedingt eine positive Auswirkung auf unser Gemüt hat. Wo bleibt die Selbstbestimmung, zu entscheiden, wann wir uns den Falten, Pickeln oder Augenringen stellen wollen? Wohl nur, wenn kein großer Spiegel direkt über dem Waschplatz angeordnet ist, was aber bei wandgebundenen Waschplätzen ein Starren gegen eine Wand zur Folge hätte. Das Beispiel (Bild 3) zeigt, dass dank eines mittig abgehängten Spiegels der Nutzer entscheiden kann, ob und wann er in den Spiegel schauen will. Hier kann der Blick ungehindert über das Waschbecken in den Raum und Garten schweifen. Statt ständiger Selbstkonfrontation im Spiegel stimmt der Ausblick uns hier positiv. Ob es der Sonnenaufgang über dem Meer, das Lichtermeer des Hamburger Hafens oder eine nebelverhangene Wiese ist – kann es etwas Schöneres geben?

Da wird selbst das Zähneputzen plötzlich zum Erlebnis und ist nicht mehr nur langweilige Pflicht. Ist kein (lohnender) Ausblick vorhanden, kann aber auch eine Ausrichtung in den Raum gewählt werden. Dann wird der Waschplatz zum zentralen, kommunikativen Objekt.

Kommunikativ wie die Küche

Offene Küchen im Wohnbereich sind heute gang und gäbe – am liebsten mit einem frei platzierten Funktionsblock. Dieser nimmt meist das Kochfeld auf, was dem Koch nicht nur den Blick in den Raum bietet, sondern ihm auch die Möglichkeit gibt, an der Kommunikation der Gäste aktiv teilzunehmen. Die Küche wurde somit vom rein funktionalen, abgetrennten Raum zum Kommunika­tionsort erklärt. Übertragen wir diese Entwicklung ins Badezimmer, wird der freistehende Waschplatz zur Kommunikationszentrale. Das im Bild 4 zu sehende Beispiel zeigt, dass der Waschplatz zum Mittelpunkt wird. Dank eines Waschbeckens, das von beiden Seiten zugänglich ist, können hier mehrere Personen gleichzeitig agieren, sich miteinander unterhalten und vor allem dabei anschauen. Eine Unterhaltung mit dem Partner oder den Kindern findet hier nicht mehr über ein Spiegelbild statt. Gleiches gilt, wenn der Partner ein abendliches Bad nimmt. Persönlicher Blickkontakt zwischen den Nutzern ist plötzlich möglich. Ein freistehender Waschplatz fördert also die intime Kommunikation durch Blicke in einer Zeit, die von technischer Kommunikation beherrscht wird. Der Mensch als Individuum rückt in den Vordergrund.

Vorteile erkennen

Für ähnliche Raumkonzepte (mit halbhohen Wänden) benötigte man bisher mehrere Gewerke – vom Maurer über Putzer bis hin zum Fliesenleger oder Maler. Die Folge war ein höherer Koordinierungs- und Zeitaufwand. Auch die Fehlerquellen potenzierten sich: Höhe, Position und Lotrechte der Wand oder falsche Steckdosenpositionen bis zum Fliesenraster. All das entfällt bei den freistehenden Waschtischmodulen. Ebenso entfällt der Konstruktionsaufwand bei Individuallösungen durch den Tischler. Zudem kann der Endkunde die Objekte nun vorher sehen und anfassen. Die Aussage „Das hab ich mir aber anders vorgestellt“ wird somit hinfällig. Außerdem bieten die Herstellerobjekte sämtliche Prüfzeugnisse und Garantien. Wer sich Sorgen um den Aufbau des Möbels macht, kann bei den meisten Herstellern einen Montageservice buchen – auf diese Weise erhält der Installateur fachgerechte Hilfe beim ­Möbelaufbau.

Waschplatz in der Ankleide?

Analysiert man die Abläufe über das Bad hinaus, wird schnell klar, dass im idealen Raumkonzept die Ankleide das Bindeglied zwischen Bad und Schlafzimmer darstellt. Nach der Morgentoilette will man sich anziehen – abends nach dem Entkleiden sich bettfein machen. So führt der optimierte Weg vom Bett ins Bad immer über den Schrankbereich. Geht man nun noch weiter ins Detail, stellt man fest, dass der Waschtisch funktional eigentlich zwischen Ankleide und Bad gehört. Zähne putzen und Gesicht waschen ordnet man dem Badbereich zu.

Doch viel häufiger wäscht man sich mehrmals am Tag die Hände, etwa nach dem Gang zum stillen Örtchen oder dem Wechseln der Kleidung. So zieht zum Beispiel frau sich erst an, bevor sie sich schminkt, und wäscht sich dann die Hände. Was spricht also dagegen, den Waschplatz (Bild 5) in die dem Bad vorgelagerte Ankleide zu platzieren? Da hier die Wände meist für den benötigten Schrankraum verplant sind, bietet auch hier ein freistehender Waschplatz neue Möglichkeiten.

Das Loslösen vom klassischen Badkonzept mit wandgebundenen Waschtischen bietet also zum einen eine freiere Raumgestaltung als Antwort auf große Räume und moderne Glasarchitektur. Zum anderen aber rückt das Bewusstsein für das eigene Ich und die Kommunikation in den Vordergrund. Der Waschplatz erhält einen neuen Stellenwert in der Badplanung. Nicht mehr nur funktional, sondern dem Individuum und neuen architektonischen Vorgaben angepasst.

sbz-Checkliste

Die richtige Positionierung

Sie entscheidet über die Raumwirkung. Darauf muss bei der Positionierung im Raum geachtet werden:

Verwendung als Raumteiler möglich?

Fensterausblick – ist dieser lohnend?

Bei Positionen vor Glasfronten auf die Bedienbarkeit der Fenster achten

Kann der Waschplatz kommunikativ in den Raum gerichtet werden?

Möglichst in der Nähe des Badzugangs

Sichtachsen berücksichtigen

Spiegel freischwebend an der Decke montieren oder seitlich anbringen

Handtuchhalter eventuell in Form einer Reeling vorsehen

Argumente für die Kundenberatung

Ungewohnte Platzierungen benötigten gute Argumente:

Den Küchenblock als Vergleich heranziehen

Ein freistehender Waschplatz fördert die Kommunikation

Ausblick beim Waschen als emotionaler Mehrwert

Ich kann selbst bestimmen, wann ich in den Spiegel schauen will

Raumgliederung ohne Trennwände, sondern mittels Waschplatz

Wohnlicher durch harmonische Einbindung ins Raumkonzept

Die technischen Voraussetzungen

Ein paar Dinge sind zu beachten:

Bei Waschtischen mit Natursteinablage auf die Statik der Decke achten

Bei abgehängten Spiegeln auf die Tragfähigkeit der Decke achten

Prüfen, ob die Ab- und Zuleitungen bei freistehenden Waschplätzen über den Boden (Estrich) erfolgen kann

Bei Waschplätzen prüfen, ob die Möbel am ­Boden verschraubt werden können (evtl. Fußboden­heizung)

Stets die Herstelleranweisungen beachten

Für die Planung wichtig

Um einen Waschplatz frei in den Raum stellen zu können, müssen die Zu- und Ableitungen im Estrich verlegt werden

Genaue Position muss vor Einbringen des Estrichs festgelegt sein

Im Bestand Stärke des Estrichs im Vorfeld prüfen

Fußbodenheizung unterm Waschplatz aussparen

Elektrozuleitungen für integrierte Steckdosen in den Schüben müssen im Estrich verlegt werden

Bei Betondecken müssen die Zuleitungen für das Licht von abgehängten Spiegeln schon im Rohbau punktgenau festgelegt werden

Extras

Auf der SBZ-Homepage finden Sie spe­zielle Herstellerinformationen rund um das Thema freistehende Waschplätze.

https://www.sbz-online.de/tags/extras-zum-heft

Autor

Nicola Stammer ist diplomierte Innen­architektin. Schon zweimal konnte sie als ­Siegerin des SBZ-Bad-Kreativ-Wettbewerbs überzeugen und wurde 2010 in die Jury berufen.

Nicola Stammer 21365 Adendorf Telefon (0 41 31) 18 88 19 innenarchitektur@nico-stammer.de https://www.nico-stammer.de/

Tags