Springe auf Hauptinhalt Springe auf Hauptmenü Springe auf SiteSearch
Deutschlands beste Badplaner (Teil 2/6)

Die Besten der Besten

Das Wettbewerbsobjekt (siehe 13/2013) ist ein Haus, das am Stadtrand in ruhiger Lage steht und Anfang des letzten Jahrhunderts gebaut wurde. Eine Totalsanierung, die mit der Aktualisierung der Wohnstruktur einhergehen kann, war unablässig. Diese und viele weitere Infos rund um den Wettbewerb finden Sie auch auf https://www.sbz-online.de//kreativ . Nachfolgend stellen wir Ihnen die Zielgruppe des jungen Paares und zwei Sieger­entwürfe, die dafür geplant wurden, vor.

Finn und Julia, das junge Paar

Julia (28), Architekturstudentin und Finn (31), Immobilienmakler (siehe Collage oben), wollen noch in diesem Jahr heiraten und ins gemeinsame neue Heim ziehen. Finn hat das Haus und ein kleines Vermögen von seiner Großmutter geerbt. So kann sich das Paar trotz des jungen Alters eine extravagante Modernisierung erlauben. Sie sind kulturell vielseitig interessiert und stehen neuen Entwicklungen offen gegenüber. Sie sind abends oft unterwegs. Deshalb ist es am nächsten Morgen wichtig, dass im Bad alles reibungslos funktioniert. Sie wollen das Bad gleichzeitig benutzen können, ohne auf den Anderen Rücksicht nehmen zu müssen. Am Wochenende lassen sie es gern etwas ruhiger angehen und frühstücken auch schon mal im Bett.

Julia wünscht sich, dass Schminken und Ankleiden räumlich miteinander verknüpft, aber von den normalen Badhandlungen getrennt sind. Dabei ist ihr besonders wichtig, dass sie ausreichend Ablagefläche für ihre Kleidung hat. Sie wünscht sich einen eigenen Waschplatz, an dem sie sich schminken kann. Wenn es schnell gehen muss wäscht sie sich dort auch mal die Haare. Für das Tönen der Haare wünscht sie sich eine bequeme Lösung. Beim Duschen würde sie gern auch mal sitzen, um nach ausgiebigem Sport zu entspannen. Und wenn es der Platz erlaubt, möchte sie gern gemeinsam mit ihrem Partner duschen. Eine Badewanne kann sein, ist aber kein unbedingtes Muss. Julia kann sich an dieser Stelle auch eine Art Loungebereich als Rückzugsort vorstellen. Sie ist an einer klaren Gliederung des Bades interessiert und die Anordnung der Badobjekte soll sich an der Reihenfolge ihrer Nutzung orientieren. Sie bevorzugt natürliche Materialien. Ihre Naturverbundenheit kann sich gerne im Bad spiegeln – sollte aber stilistisch in die Architektur integriert werden und nicht in einer Verteilung einzelner Grünpflanzenkübel ausarten.

Finn liebt es morgens zu joggen. Wenn er vom Laufen zurückkehrt, springt er gern gleich in die ersehnte Dusche. Er träumt von einer großzügigen Dusche, die ihn fit für den Tag macht. Der TV-affine Finn wünscht sich auch auf dem WC multimediale Unterhaltung, einen eigenen Waschtisch – an dem er sich ungestört rasieren und frisieren kann. Das Bad sollte hell und wohnlich sein und zum Verweilen einladen. Finn schätzt Bäder mit vorausschauender (Familien-)Planung und gewisser Variabilität.

Auf den folgenden Seiten stellen wir zwei weitere prämierte Entwürfe des von den Industriepartnern Alape , Dornbracht und Duravit unterstützen Wettbewerbs vor. Die einzelnen Arbeiten werden von Jurymitglied und Innenarchitektin Nicola Stammer detailliert beschrieben.

Top-Liste

Die besten Kreativ-Badplaner

1. Sieger Profiplaner in Installationsbetrieben und Badstudios Dagmar Fröhlich und Andreas Rawe, Rawe GmbH in Recklinghausen (SBZ 13/2013) Sabine Dorner, Dorner GmbH in Oberteuringen-Bitzenhofen (SBZ 13/2013)

1. Sieger Architekten, Innenarchitekten und Bauingenieure Britta Barteit, Raumkonfekt Innenarchitekur in Krempe Stephan Pöppelmann, Interior Design in Emsdetten

1. Sieger Juniorplaner in Installationsbetrieben und Badstudios Jürgen Beßler, Baqua Badkonzepte in Münster (SBZ 14/15-2013) Juliane Boddenberg, Boddenberg – Die Badgestalter in Köln

1. Sieger Juniorplaner im Großhandel Eric Betz, Sanitär Wahl GmbH in Stuttgart (SBZ 14/15-2013)

2. Sieger Profiplaner im Großhandel Gisela Peikert, J. N. Kreiller KG in Traunstein

2. Sieger Juniorplaner in Installationsbetrieben und Badstudios Patrick Weiß, Nabenhauer GmbH in Messkirch

2. Sieger Architekten, Innenarchitekten und Bauingenieure Dirk und Melanie Meuleneers, Studio Meuleneers in Krefeld Katrin Härtel und Christoph Pontzen in Greifenberg

Außerordentliche Anerkennung Thomas Lammering, Achitekturbüro in Düsseldorf Antonie Specht, Ruppert Immobilien in Hamburg Gesa Skowranek-Dröscher, Dröscher Haustechnik GmbH in Walsrode

Dusche der Vierjahreszeiten

#NB_BILD[N=3;A=C;Z=Y;B=CLIENT]#

Sieger in der Juniorkategorie Handwerk und Badstudios ▪ Jürgen Beßler arbeitet seit letztem Jahr für die Klaus Klein GmbH und hat sich zusätzlich mit dem Start-up-Unternehmen Baqua Badkonzepte selbstständig gemacht. Der Planer aus Münster lieferte einen kreativen Entwurf, bei dem das Bad zum Kommunikations- und Erlebnisort wird. In diesem außergewöhnlichen Konzept stecken viele interessante Details.

Die besondere Aufgabenstellung und die Möglichkeit, sich kreativ austoben zu können, machte den Reiz dieses Wettbewerbs aus. Da Julia und Finn vielseitig kulturell interessiert sind und offen gegenüber Neuem, stellten sie das optimale Paar für meine Vorstellung einer zukunftsorientierten und wegweisenden Grundrissaufteilung dar“, erläutert Beßler seine Wahl des jungen Paares. So stand für ihn an erster Stelle, das Bad als Kommunikations- und Erlebnisort zu gestalten. Dabei war ihm wichtig, dass die verschiedenen Bereiche ineinander fließen. Der bestehende Grundriss wurde bis auf kleine Änderungen weitgehend beibehalten.

Kommunikativer Waschbrunnen

So öffnet sich das Bad zum internen Flur mit einem zentralen sogenannten „Waschbrunnen“, der in einer Achse zum Rundbogenfenster liegt. Er ist als zentraler Ort täglicher Reinigungsrituale und des Austausches gedacht. „Ein Treffpunkt in der heutzutage hektischen Zeit“, kommentiert Beßler, „hier kann morgens der Tagesablauf ungezwungen besprochen werden“. Auf ein zweites gewünschtes Waschbecken wurde bewusst verzichtet, da es zum einem dem Kommunikationsgedanken entgegen wirken würde und zum anderen für Julia in der Ankleide ein separierter Schminkplatz vorgesehen ist. Utensilien und innenliegende Spiegel finden personenbezogen in den seitlichen Wandschränken Platz, die architektonisch gestaltet sind und in keiner Weise an herkömmliche Schränke erinnern sollen. Eingefasst wird dieser Bereich von zwei separierten Räumen, der eine mit Dampfdusche zum Entspannen und zum täglichen Reinigen, im anderen befindet sich das WC.

Quadratur des Kreises

Die immer wiederkehrende Form des Kreises lockert den klaren Schnitt des Grundrisses auf und steht als Symbol für Kommunika­tion. Denn bekanntlich hat ein Kreis keine Ecken und ermöglicht so eine flexible Posi­tion bei der Nutzung, auch durch mehrere Personen. So gelangt man vom runden Waschbrunnen zur Spa-Landschaft mit runder Whirlwanne vor dem Rundbogenfenster. Eingebaut in Podeste, die zeitgleich Stauraum bieten und später als Wickeltisch genutzt werden können. Die dadurch entstehenden großen Ablageflächen können auch als unkonventionelle Liegefläche dienen. Auch hier wird der Austausch gefördert: So bietet die große runde Wanne nicht nur Platz für Zwei, sondern auch für zukünftigen Familienzuwachs.

Davor befindet sich ein zusätzliches Highlight: das rechteckige Kneippbecken. Neben wohltuenden Kaltgüssen oder Wassertreten kann es dank herausziehbarer Handbrause auch zum Haarewaschen oder Ausspülen des Haarfärbemittels genutzt werden. Gegenüber der Dampfdusche gelegen, eine gelungene Ergänzung und ressourcenschonend, kann das Badewasser ins Kneippbecken eingelassen werden.

Im Einklang mit der Natur ­duschen

Von der Spa-Landschaft gelangt man in den ehemaligen Wintergarten, der zur „Dusche der vier Jahreszeiten“ erkoren wurde. Diese zweite Duschmöglichkeit im Badbereich ist ein Highlight für ganz besondere Stunden. „Am Wochenende schlafen die beiden auch mal länger, nicht selten wird Finn dann sanft von prasselndem Wasser geweckt, was er zum Anlass nimmt, mit Julia gemeinsam zu duschen“, stellt sich Beßler vor. Eine mittig platzierte runde Duschfläche ermöglicht nicht nur das Duschen zu zweit, sondern vermittelt das Gefühl einer Regendusche im Freien. „Der Raum suggeriert das Gefühl, als würde man in der freien Natur duschen“, so Beßler. „Die Brause ist für die offene Dusche entwickelt worden. Sie ist durch einen Teleskoparm und Kugelgelenk variabel auf die Bedürfnisse der Nutzer abgestimmt. Eine mobile, wasserfeste Sitzgelegenheit und ein Eichen­block als Ablage für die Badutensilien, bieten auf unkonventionelle Art Komfort. Ein Sideboard beherbergt Utensilien und Sitzkissen und fungiert zeitgleich als Bank.

Außergewöhnliche Materialien

Die einzelnen Bereiche sind dezent und minimalistisch eingerichtet. Die handgehobelte Eichenflächen des Bodens und der Möbel unterstreichen die Naturverbundenheit Julias und bieten eine reizvolle Haptik bei der Nutzung. Der Nassbereich erhält einen durchgehenden Estrich auf Zement-Sand-Basis. Dieser kann der jeweils gewünschten Trittsicherheit und Haptik durch Variieren des Sand­anteils angepasst werde. Partiell kommt Kupfer und Chrom als reizvoller Kontrast dazu. Das Lichtkonzept setzt in erster Linie auf die natürlichen Lichtspender durch die vielen großen Fensterflächen. Dazu indirekte Beleuchtung über dem Waschbrunnen und der runden Dusche. Punktuell gesetzte Strahler und Leuchten sorgen für direktes Licht.

Kommentar der Jury

Die Jury begeisterte die kreative Herangehensweise des Junior-Badplaners, bei der die Berücksichtigung der Wünsche erst auf zweiten Blick sichtbar wird. Die Offenheit des jungen Paares Neuem gegenüber, wurde mutig in ein außergewöhnliches Raumkonzept umgesetzt. Gelobt wurde die Auseinandersetzung mit der kulturellen Entwicklung und deren Berücksichtigung in der Badgestaltung. Das Bad als Treffpunkt, Kommunikations- und Entschleunigungsort in der heutzutage hektischen Zeit wurde zum Thema erkoren und gestalterisch im Konzept als auch in der Formensprache perfekt umgesetzt. Besonders die zusätzliche Dusche der Vierjahreszeiten im Wintergarten und der Waschbrunnen als Treffpunkt überzeugte im Konzept. Die ansprechende und gelungene Präsentation runden das Ganze ab.

Steckbrief

KleinDesign und Baqua aus Münster

Jürgen Beßler (29) ist gelernter Fliesen-, Platten- und Mosaikleger und hat 2011 ein Studium als Projektgestalter an der Handwerkskammer Münster absolviert. Seit 2012 unterstützt er KleinDesign (Klaus Klein GmbH) im Bereich Produktentwicklung, Baddesign und Marketing. Geschäftsführer Jürgen Klein realisiert mit rund 25 Mitarbeitern exklusive individuelle Bäder – mit Liebe zum Detail, viel Ideenreichtum und eigens designten Sanitärprodukten. Jürgen Beßler teilt diese Leidenschaft und gründete Anfang des Jahres, in Abstimmung mit Jürgen Klein, die Baqua Badkonzepte als zweites Standbein.

http://www.kleindesign-muenster.de http://www.baqua.ms

Ein echter Ankleide(t)raum

#NB_BILD[N=10;A=C;Z=Y;B=CLIENT]#

Sieger in der Kategorie Junior/Großhandel ▪ Eric Betz absolviert derzeit noch ein betriebswirtschaftliches duales Studium beim Stuttgarter Großhandelshaus Sanitär Wahl. Er plante einen ganzheitlichen Entwurf, der sich detailliert mit den Wünschen des ­jungen Bauherrenpaares auseinandersetzt und mit frischen Ideen gespickt ist. Auch mit der ­ablauf­orientierten Anordnung überzeugte Betz die Jury.

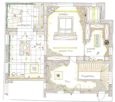
Durch den Treppenhausflur gelangen Finn und Julia über eine in die Schrankwand integrierte, rahmenlose Tür in ihren Wohlfühlbereich. Die wandhohen Schränke verfügen zum einen über Platz für Finns Hab und Gut, zum anderen fungiert der Schrank hinter dem Bett als Trennelement zum Schlafbereich. Alle Einbauten sind aus Walnussholz, lichtdurchlässige Schiebetüren sorgen für Transparenz und Helligkeit.

Ankleide der Superlative

Wunsch der Beiden ist es, ungeachtet der offenen Architektur, nicht die Behaglichkeit eines Schlafzimmers zu verlieren. Zeitgleich fungiert Finns Ankleide als Schleuse, sowohl akustisch als auch funktional. Denn von hier gelangt man nicht nur ins Schlafzimmer und Bad, sondern rechts in Julias Traum einer Ankleide: endlose Schrankfläche bietet genügend Stauraum für Kleidung, Accessoires und Beiwerk. Eine kleine Multifunktionsbank in der Mitte erleichtert das Anziehen und beherbergt die Schuhsammlung. „Zudem bietet sie die Möglichkeit der Ablage, sollte mal ­wieder eine schwierige klamottentechnische Entscheidung bevorstehen“, äußert sich Eric Betz lächelnd. Oberhalb der Schränke befindet sich ein Glasband und lässt so zusätzlich zum kleinen Fenster mehr Tageslicht herein. Ein Schminkplatz mit Waschbecken sorgt für ein einwandfreies Makeup. Die ausziehbare Armatur ermöglicht Julia ein bequemes Haarewaschen und Tönen in sitzender Position. In einem kleinen Apothekerschrank, gesichert über Fingerprint, findet Julias Schmuck griffbereit seinen Platz.

Zweisamkeit mit Privatsphäre

Die Vorstellungen der beiden über ihr gemeinsames Bad sind klar: hell, wohnlich und strukturiert soll es sein. Besonders wichtig ist den beiden, dabei ausreichend Platz für sich selbst zu haben, ohne sich aus den Augen zu verlieren. Der großzügige, doppelseitige Waschtischblock mit versetzt eingebauten Waschbecken und beleuchteten Spiegeln bietet beiden genug Platz für ihre täglichen Waschrituale.

Im Duschraum können Julia und Finn im Sitzen, Liegen und Stehen duschen. Die Natursteinwand, in die der „Water Fall“, die Duschgarnituren sowie kleine Lichter eingebaut sind, machen das Duschen zu einem Erlebnis. Der „Sensory Sky“ und die anderen Wasserquellen können separat voneinander bedient werden, sodass Julia und Finn sich je nach Bedürfnis gemeinsam, aber auch individuell duschen können. Eine Glaswand, die für mehr Intimität lichtilluminiert werden kann, trennt den Duschbereich vom WC/Bidet ab. Diese bilden gestalterisch eine Einheit. Über eine Glasschiebetür mit beidseitig integrierten Bildschirmen kann der TV-affine Finn sowohl auf der Toilette, im Duschraum als auch vom Waschtisch aus seine multimedialen Bedürfnisse befriedigen. Auf einem freistehenden Accessoire im WC-Raum liegt Finns TV-Fernbedienung neben Zeitschriften, sodass er sich nicht nur auf dem Touchbildschirm durch die Kanäle zappen kann. Ein Bidet in diesem Bereich ergänzt den Komfort sowie ein Fenster für Licht und Frischluft. Zwei große Badezimmerschränke sorgen für eine aufgeräumte Atmosphäre.

Wintergarten mit Sternenhimmel

Finn freut sich besonders auf die verglaste Sauna im neuen Wintergarten, vor allem nach einem Power Walk zum Regenerieren. Oder gemeinsam mit Julia beim Schwitzen die Seele baumeln zu lassen und den Blick in eine unverbaute Baumlandschaft zu genießen. Der Wintergarten hat eine komplett verspiegelte Glasfassade zum ungestörten Relaxen. Halbhohe Ziergräser entlang der Glasfront und fortführend an der Wand des Badezimmers werden im Boden integriert und mit einem automatischen Bewässerungssystem versehen. So wird Julias Naturverbundenheit modern umgesetzt und sorgt auch an grauen Tagen für positive Energie. Zwischen den Ruhe­liegen steht eine „Cool bar“ für Erfrischungen. Ein besonderes Highlight ist das elektrische Schiebedach des Wintergartens, das bis auf den Saunabereich geöffnet werden kann, um Wind, Sonne, Regen und Schnee hautnah nach dem Saunieren zu erleben. So hat sich Finn seinen Traum einer Sauna wohl vorgestellt.

Wanne oder Loungebereich?

Ein Highlight des Schlafbereichs ist die Bade­oase mit großzügiger Badewanne, die kurzerhand zu einem Loungebereich umgebaut werden kann. So muss Julia nicht auf eine Wanne zugunsten des Loungebereiches verzichten. Da sie selten badet, ist eine Beeinträchtigung durch Feuchtigkeit im Schlafbereich und auch die unterschiedlichen Tem­peraturansprüche beider Nutzungen zu vernachlässigen. „Von dieser Relax-Zone haben beide einen schönen Ausblick ins Grüne und ein Gefühl wie in der freien Natur. Für ein ­gutes Raumklima ist hinter der Wanne eine ,Living Wall‘ eingeplant.“ Eine antike Stammesmaske, die die beiden von einer Welt­reise mitgebracht haben, dient als weiterer Blickfang inmitten der bepflanzten Wand.

In die Decke ist ein Lichtelement mit Farbwechsler integriert, um verschiedene Stimmungen zu erzeugen. Abgerundet wird das Ganze mit einem Kamin für gemütliche Stunden und einem Bücherregal mit integriertem und schwenkbarem TV, eingebaut im Rahmen der ehemaligen Wintergartentür. Die Beistelltische am Bett haben eine schwenkbare Platte, um bequem das Frühstückstablett abzustellen. Damit steht einem gemütlichen Frühstück am Wochenende nichts im Wege. Die gesamte Beleuchtungseinrichtung ist meist indirekt, es können jedoch verschiedene Lichtszenarien geschaltet werden.

Weitere herausragende Planungen gibt es in der nächsten SBZ. Alles Wissenswerte rund um den Wettbewerb, die Geschichten, Pläne und Präsentationen sowie Filme von Preisverleihung und Jurysitzung finden Sie auf

https://www.sbz-online.de/

Kommentar der Jury

Eine außergewöhnliche Leistung eines Junior-Badplaners – mit viel Feingefühl für die Bauherrenwünsche, einem funktionalem Gesamtkonzept mit wegeorientiertem Bad und gepaart mit viel Ideenreichtum. Besonders gefiel der Jury die Ankleide mit Schleusenfunktion und eine zusätzliche großzügige eigene Ankleide für Julia mit Waschbecken. Lobenswert auch die Darstellung mittels Handzeichnungen, insbesondere der Perspektiven. Ein Talent, das besonders in zukünftigen Kundengesprächen eine spontane, individuelle Visualisierung der Planung ermöglicht und so schnell zum Abschluss führen kann.

Steckbrief

Sanitär Wahl in Stuttgart

Eric Betz (22) absolviert seit Oktober 2011 ein Duales Studium Fachrichtung BWL Handel bei der Sanitär Wahl GmbH in Stuttgart. Seit 1977 setzt Wahl auf komplette Design- und Raumlösungen und plant hochwertige Bäder. Ganz gleich, ob preisgünstiges oder exklusives Kreativbad: Die Badezimmer-Ausstellungen inspirieren und überzeugen. Angegliedert ist zudem die Livinghouse GmbH, ein Verbund von ambitionierten Einrichtern und Handwerksbetrieben. Heute sind rund 40 Mitarbeiter (davon vier Auszubildende) an zwei Standorten, Stuttgart-West und Böblingen-Hulb, beschäftigt. Eric Betz durchläuft im Rahmen seiner Ausbildung die verschiedenen Abteilungen und hat im Rahmen des Wettbewerbs seine erste ­eigene Badplanung erstellt – und damit gewonnen.

http://sanitaer-wahl.de/