Springe auf Hauptinhalt Springe auf Hauptmenü Springe auf SiteSearch
Rückstausicherung in der Gebäudetechnik

Damit der Keller trocken bleibt

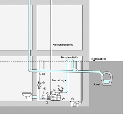
Starke Niederschläge, wie sie mittlerweile in Deutschland immer häufiger vorkommen, können Kanalnetze überlasten. Ist die Aufnahmefähigkeit der Kanalisation überschritten, kann das Wasser nicht mehr über die bestehenden Abwasserrohre abgeleitet werden und die Kanäle laufen voll. Steigt der Wasserpegel dann über die Straßenoberkante – die sogenannte Rückstauebene – drückt das Wasser über offene Abwasserstellen, die unterhalb der Ebene liegen, zurück ins Haus. Das kann der Bodenablauf im Waschkeller, der Waschmaschinenablauf, eine Toilette, ­eine Dusche oder das Waschbecken sein. Um Schäden durch zurückstauendes Abwasser aus der Kanalisation zu vermeiden, sind Ablaufstellen unterhalb der Rückstauebene durch automatisch arbeitende Abwasser-­Hebeanlagen oder unter bestimmten Voraussetzungen durch Rückstauverschlüsse gegen Rückstau aus dem Kanal zu sichern. Laut DIN EN 12056 Teil 4 sind europaweit Abwasser-Hebeanlagen mit Rückstauschleife vorgeschrieben wenn

  • die Räume, die durch die Abwasserhebeanlage entsorgt werden, nicht von untergeordneter Bedeutung sind,
  • die Zahl der Benutzer nicht klein ist,
  • den Benutzern kein WC oberhalb der Rücklaufschleife zur Verfügung steht.

Anlage ordnungsgemäß aufstellen und einbauen

Hebeanlagen für fäkalienhaltiges Abwasser nach DIN EN 12050-1 unterliegen hinsichtlich der Anwendung keinerlei Einschränkungen. Sie sind mit einem Sammelbehälter ausgestattet, der ein Nutzvolumen von mindestens 20l aufweisen muss. Da der Behälter gemäß Norm als explosionsgeschützter Raum definiert ist, befinden sich alle elektrischen Anschlüsse und Bauteile außerhalb dieses Behälters. Ein offener Behälter oder Abwasser-Sammelschacht in Gebäuden ist nicht zulässig.

Abwasser-Hebeanlagen sind nach den allgemein anerkannten Regeln der Technik (kurz: a.a.R.d.T.) zu planen und zu errichten. Insbesondere die Vorschriften nach DIN 1986/100, EN 12050 und 12056 müssen eingehalten werden. Teil 4 der DIN EN 12056 beschreibt recht detailliert, wie und wo Hebeanlagen aufzustellen und zu montieren sind. Demnach ist die Hebeanlage innerhalb eines Gebäudes in einem ausreichend beleuchteten und belüfteten Raum zu installieren. Der Aufstellort der Anlage darf zwar überflutungsgefährdet sein (z.B. in einem Schacht), die Steuerung muss aber an einem gut belüfteten überflutungssicheren Ort angebracht werden. Der Schacht für die Hebeanlage muss ausreichend groß bemessen sein (60cm Freiraum für alle zu bedienenden und wartenden Teile). Im Falle einer Schachtmontage ist die Anlage nach DIN EN 12056-4 Abs. 5.1 durch einen Pumpensumpf gegen Überflutung zu sichern. Alle Rohranschlüsse müssen schalldämmend und flexibel ausgeführt werden. Der Sammelbehälter muss gegen Auftrieb gesichert werden, darf aber nicht baulich mit dem Gebäude verbunden – also nicht einbetoniert – sein.

Was häufig missachtet wird: Ablaufstellen oberhalb der Rückstauebene dürfen nicht über die Hebeanlage im Keller entwässert werden, da der Hebeanlage sonst mehr Wasser zugeführt wird, als sie bewältigen kann. Hohe Betriebskosten und Überschwemmungen sind die Folge. Aus demselben Grund ist auch das Einleiten von Regenwasser zu vermeiden.

Druckleitung über die ­Rückstauebene führen

Die Druckleitung einer Hebeanlage, über die das Wasser in den Kanal gepumpt wird, muss gemäß DIN EN 12056-4 mit einer Rückstauschleife über die Rückstauebene ­geführt werden. Nur so ist ein effektiver Schutz vor Rückstau aus der Kanalisation ­garantiert. Als Druckleitungen können alle zugelassenen Materialien/Rohrleitungen nach DIN 1986-4 eingesetzt werden, sofern die Rohrleitungen und deren Verbindungen druck- und zugfest ausgelegt sind. Druckleitungen von Hebeanlagen dürfen nicht an Abwasserfallleitungen angeschlossen werden, sondern immer nur an die belüftete Grundleitung oder Sammelleitung. Die Norm schreibt vor, dass die Druckleitung mindestens dem 1,5-Fachen des maximalen Pumpendrucks der Anlage standhalten muss. Mindestnennweiten für Druckleitungen sind in Tabelle 2 der DIN EN 12056-4 festgelegt. Für Fäkalienhebeanlagen ohne Fäkalien­zerteilung ist eine Mindestnennweite von DN 80 vorgesehen, bei Anlagen mit Zerteilung DN 32. Zur Abwasser-Hebeanlage gehört druckseitig ein Rückflussverhinderer, ­eine Absperrung in der Druckleitung ist hinter diesem anzuordnen. Bei Abwasserhebeanlagen nach DIN EN 12050-2 oder Hebeanlagen zur begrenzten Verwendung mit ­einer Druckleitung kleiner als DN 80 wird dies nicht vorgeschrieben, sollte aber zwecks Reparatur oder Wartung eingeplant werden. Auf der gesamten Länge sollte eine Mindestfließgeschwindigkeit von 0,7 m/s erreicht werden, um Ablagerungen vorzubeugen und ein daraus resultierendes Zusetzen der Druckleitung zu vermeiden.

Gase im Sammelbehälter sicher über Dach abführen

Durch Gärprozesse entstehen in den Behältern der Hebeanlage Gase. Um diese sicher abzuführen, sind Hebeanlagen nach DIN EN 12050-1 grundsätzlich über Dach zu be- und entlüften. Die Lüftungsleitung darf sowohl in die Haupt- als auch in die Sekundärlüftung eingeführt werden. Bei Fäkalienhebeanlagen nach Teil 1 ist ein Mindestdurchmesser der Lüftungsleitung von DN 50 bei einer Förderleistung bis 12l/s vorgeschrieben. Bei Anlagen für fäkalienfreies Abwasser nach Teil 2 muss der Sammelbehälter ausreichend belüftet sein. Hebeanlagen nach Teil 3 müssen nur mit einer „ausreichenden“ Lüftung versehen werden, wobei für die Kleinhebeanlagen zur begrenzten Verwendung auch die geruchsfreie Lüftung in den Aufstellraum erlaubt ist, zum Beispiel: durch Aktivkohlefilter oder andere Methoden.

Die Rolle einer Lüftungsleitung wird häufig unterschätzt, weil man meint, dass auch dünne Lüftungsleitungen ausreichen. Allerdings wird eine zu kleine Lüftungsleitung beim Abpumpen mit durchaus leistungsstarken Pumpen zu einem Unterdruck im Behälter führen. Die Folgen sind Absaugen des Sperrwassers in Geruchsverschlüssen und somit Geruchsbelästigung und störende Gurgelgeräusche. Zur Belüftung von Abwasserhebeanlagen dürfen keine Belüftungsventile eingesetzt werden, da sowohl Be- wie auch Entlüftung jederzeit sichergestellt sein müssen.

Fachgerecht warten

Nach DIN EN 12056-4 sollten Hebeanlagen regelmäßig von einem Fachkundigen gewartet werden. Für Einfamilienhäuser mit privater Nutzung ist mindestens eine Wartung pro Jahr vorgesehen, bei Mehrfamilienhäusern zwei und bei gewerblicher Nutzung vier.

Bei einer vorschriftsmäßigen Wartung sind unter anderem die folgenden Arbeiten durchzuführen:

  • Verbindungsstellen auf Dichtheit überprüfen,
  • Schieber betätigen und auf leichten Gang und Dichtheit prüfen. Gegebenenfalls den Schieber nachfetten und einstellen,
  • Rückflussverhinderer öffnen, reinigen und Funktion überprüfen,
  • Fördereinrichtung und unmittelbar angeschlossenen Leistungsbereich reinigen,
  • Behälter innen reinigen,
  • elektrischen Teil der Anlage und den Zustand des Sammelbehälters visuell kontrollieren,
  • alle zwei Jahre die Anlage mit Wasser durchspülen.

Nach den Wartungsarbeiten sollte der Fachkundige einen Probelauf durchführen und die Anlage erst danach wieder in Betrieb nehmen. Darüber hinaus muss er ein Protokoll über die Wartung anfertigen, in dem alle durchgeführten Arbeiten und die wesentlichen Daten protokolliert werden.

Fazit

Das öffentliche Kanalnetz ist nur für eine bestimmte Wassermenge ausgelegt. Wenn es länger stark regnet, kann es die Wassermassen nicht schnell genug ableiten. Der Wasserspiegel steigt dann bis zur Rückstauebene an. Bei Gebäudeteilen, die unterhalb dieser Ebene liegen, drückt dann das Wasser durch Bodenabläufe, Toiletten, Waschmaschinen usw. zurück ins Haus. Eine solche Überflutung durch Rückstau im Keller verursacht schwere Schäden. Moderne Rückstausysteme können hier Abhilfe schaffen. Mit einer Hebeanlage sind Installateur und Hausbesitzer auf der sicheren Seite.