Springe auf Hauptinhalt Springe auf Hauptmenü Springe auf SiteSearch
Spitzenleistungen vom Bad-Kreativ-Wettbewerb

Black and White unterm Dach

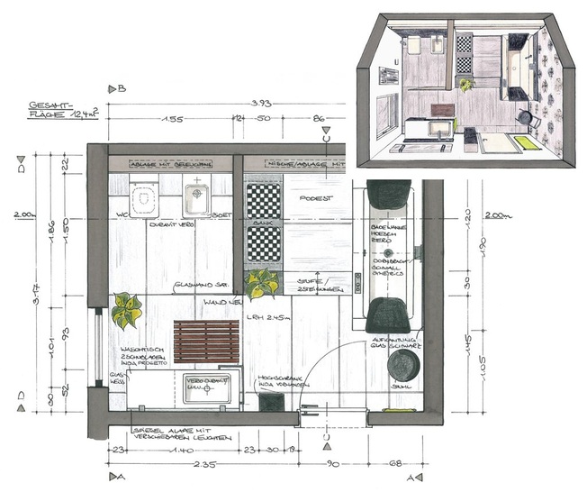
Es entstand ein Traum in Schwarz und Weiß – trotz der kühlen Farbkombina­tion ein Rückzugsort der Entspannung mit gehobenem Flair. Die Neugestaltung des bisher von der ganzen Familie genutzten Bades stellte eine Herausforderung dar, denn die bestehende Fußbodenheizung sollte nicht verändert werden und auch die Abwasserführung durfte nicht verlegt werden. Erschwerend kam hinzu, dass etwa ein Drittel der Fläche unter der Dachschräge liegt. Mit viel Feingefühl kreierte Andrea Werdermann ein Bad mit wohnlicher Atmosphäre und entsprach so dem Wunsch der Bauherren, sich nach einem anstrengenden Arbeitstag der Regenerierung des Körpers und der Seele widmen zu können.

Schwierige Rahmenbedingungen gemeistert

Schaut man sich das fertige Bad an, kommt vielleicht die eine oder andere Frage bezüglich der Raumaufteilung auf: „Hätten zum Beispiel der Wannen- und WC-Bereich nicht getauscht werden müssen?“ Theoretisch ja, aber die Praxis lässt uns eben nicht immer so planen, wie wir wollen. Denn bekanntlich fließt Wasser immer noch nicht bergauf. Aber genau das ist ja die Herausforderung: trotz schwieriger Bestandsvorgaben ein gelungenes, funktionsoptimiertes Bad zu schaffen. Und dies ist hier stilvoll gelungen. Denn trotz der vorgegebenen Objektpositionierung, Dachschräge und der Bestandsfußbodenheizung wurden Intimitäts- und Ruhebereiche geschaffen.

Wanne mit Ruhezone

Entspannung stand ganz oben auf der Wunschliste der Bauherren. Da es noch ein separiertes Duschbad für den Alltag gibt, sollte dieses Bad vor allem zur Regenerierung nach Feierabend dienen. So stand bei der Planung die Wanne im Vordergrund. Durch die vorgegebene räumliche Positionierung der Objekte musste die Wanne gegenüber dem Eingang platziert werden. Um dennoch eine Ruhezone zu erhalten, wurde eine ­Nische durch Setzen einer raumhohen Wand zum WC/Bidet-Bereich geschaffen. Zusätzlich wurde ein Podest eingezogen, das für eine optische Separierung sorgt. Dabei wurde auf ausreichend Kopffreiheit beim Ein- und Ausstieg in die Wanne geachtet. Durch das Betreten über zwei Stufen wird der Wechsel in die Ruhezone psychologisch verstärkt. Eine halbhohe Mauer als seitliche Begrenzung fasst das Ensemble räumlich ein und bildet den Abschluss für eine kleine Bank zum Ausruhen. Stilvoll abgerundet wird das Konzept durch die dunklen Materialien, die Ruhe, Geborgenheit und Wärme ausstrahlen. So sorgt eine schwarze Mustertapete mit Ornamenten hinter der Wanne für gedämpfte Atmosphäre und wohnliches Flair. Dazu eine mit schwarzem Glas ausgekleidete und beleuchtete Nische und dem Entspannen nach einem anstrengenden Tag steht nichts mehr im Wege.

Starker Farbkontrast

Die Vorliebe der Bauherren für Schwarz und Weiß wurde mit viel Gefühl umgesetzt. Trotz des starken und eher harten Kontrastes gelang es, eine harmonische, warme Atmosphäre zu schaffen. Die großformatigen mattschwarzen Bodenfliesen sorgen für eine ruhige Ausstrahlung, kombiniert mit schwarzem Glasmosaik an wenigen Wänden entsteht eine wohlige Spannung. Dazu die weißen Sanitärobjekte und Accessoires in Schwarz, sowie die mit schwarzem Glas ausgekleideten, beleuchteten Nischen runden das Konzept ab. Ein Highlight ist sicher die mattschwarze Tapete mit glänzenden grafischen Ornamenten in Weiß und Schwarz. Gekonnt wurde hier mit der Farbe Schwarz gespielt, indem unterschiedliche Materialien flächig verwendet wurden.

BAD-ECKDATEN

Badgröße: ca. 12,6 m²

Umbaukosten: ca. 40000 Euro

Produkte und Hersteller:

WC- und Bidet-Keramik: Duravit Vero

Waschtischunterschrank: Inda Progretto

Aufsatzbecken: Duravit Vero

Spiegel und Leuchten: Alape

Armatur: Dornbracht Lulu

Wanne: Hoesch Zero

Wannenarmatur: Dornbracht Symetrics

Tapete: Bazaar

Wände: Spachteltechnik weiß

Bodenfliese: New York Harlem

Glasmosaik: Los Angeles

Glaspaneele: Weißglas Unterseite schwarz

STECKBRIEF

Werdermann + Kreyer

Andrea Werdermann hat das Bad als Mitarbeiterin des Badstudios Bad + Raum geplant. Die Diplom-Designerin der Innenarchitektur ist Feng-Shui-Beraterin und hat sich auf Bäder spezialisiert. Die Ausführung erfolgte durch die H.I.S. Kreyer GmbH, die Mutterfirma von Bad + Raum, die 1951 von Walter Kreyer als Spenglerei Kreyer gegründet wurde. Heute wird das Unternehmen mit rund 13 Mitarbeitern von der Tochter Petra Kreyer geführt. Über vier Jahre arbeiteten Werdermann und Kreyer eng zusammen und gewannen 2006 den SBZ-Kreativ-Wettbewerb. Seit 2010 ist Andrea Werdermann bei der Firma Jost GmbH Schöne Bäder in Hattersheim bei Frankfurt angestellt.

http://www.bad-und-raum.com

http://www.jost-baeder.de