Springe auf Hauptinhalt Springe auf Hauptmenü Springe auf SiteSearch
Die beste multimediale Einbindung: Sabine Dorner

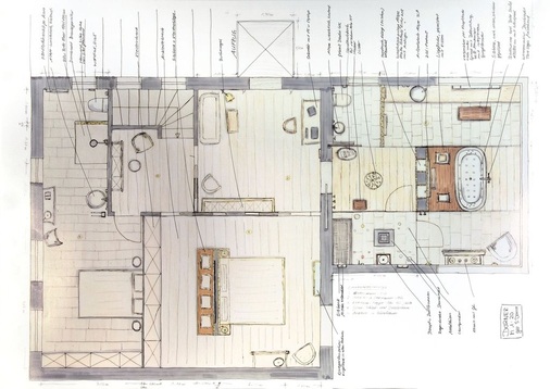
Alles geht automatisch

Sabine Dorner (39) absolvierte eine kaufmännische Ausbildung bei der Polizei. Bereits mit 14 lernte sie ihren jetzigen Mann kennen und arbeitet nun schon seit 20 Jahren als Badplanerin im Betrieb der Schwiegereltern. Ein kurzer Stopp beim Sanitärgroßhändler Bauer rundet das Wissen um die Badprodukte vor und hinter der Wand ab. Die Aufgabenteilung beim Unternehmer-Ehepaar Dorner ist klar: Gisbert ist für die Technik und Sabine für alles Schöne verantwortlich. Dass Sabine Dorner dafür über ausreichend Phantasie und Einfühlungsvermögen verfügt, spiegelt auch ihre Entwurfskommentierung, die wir an dieser Stelle wiedergeben:

Inge und Jochen verabschieden sich von ihren Freunden. Sie beide freuen sich jetzt auch auf einen ausklingenden Abend zu zweit. Durch die Schiebetüre betreten beide das Ankleidezimmer mit angrenzendem Schlafzimmer. Hier inszenieren sich beim Tippen der Taste „Licht und Musik“ sofort die gewünschte Lichtszene und die Musik. Beide kleiden sich gemütlich aus und legen ihre Kleidung auf die Bank, die genügend Platz für zwei bietet. Vom Bett aus gesehen steht ein großer Spiegel mit integriertem Spiegelfernseher, eingefasst in einen alten Rahmen. Jochen schaltet vor Betreten des Bades die Jalousien-Taste „schließen“ und betritt dann mit seiner Frau gemeinsam das Bad. Es riecht im ganzen Bad nach Rosenduft. Jochen läuft barfuß auf dem Holzboden und als er auf die Fliesen übergeht, bemerkt er keine Kälte, denn es wurde überall im ganzen Haus eine Fußbodenheizung eingebaut, die eine angenehme Wärme abgibt. An der Badewanne angekommen, bewegt er den Griff der freistehenden Wannenarmatur und lässt Wasser in die Whirlwanne fließen.

Versenkbarer TV-Spiegel gibt Blick auf das Fenster frei

Er liebt es, gemütlich in der Wanne zu liegen, genügend Platz zu haben um die Liegeposition frei zu wählen. Denn er kann zum einen auf das flackernde Feuer im Kamin schauen oder auf der anderen Seite am Kosmetikspiegel gemütlich eine DVD anschauen. Denn Inge wollte einen Platz zum Schminken und Frisieren haben, an dem sie sich hinsetzen und von allen Seiten sehen kann. Dabei sollte genügend Platz vorhanden sein, um Kosmetika hinzustellen. Daraufhin wurde ein Spiegel entworfen und im mittleren Bereich ein Fernseher in den Spiegel integriert. Der Fernseher verschwindet nach dem Abschalten aus dem Spiegel. Per Knopfdruck versenkt sich die komplette TV-Spiegel-Kombination nach unten, so dass bei Nichtverwendung das Fenster frei ist.

Wunderbare Ordnung

Inge ist über ihre Waschtischanlage sehr glücklich. Endlich hat sie genügend Stauraum mit bequemen Auszügen und hat eine wunderbare Ordnung. Die Anlage bietet für beide gleichzeitig Platz und Ausweichmöglichkeit. Im rechten Auszug befinden sich Steckdosen, an denen der Föhn und ihr Kletteisen fest angeschlossen wurde. Über dem Waschtisch befindet sich ein breiter Spiegel mit seitlich beweglichen Leuchten. Besonders wohnlich findet sie dabei den Materialmix: Waschtischplatte und Ablage in Echtholz Eiche und Auszüge in Lack weiß. Die Waschtischarmatur sowie die Zubehörteile haben für sie eine klassische moderne Form, die mit dem Landhausstil und ihren hellen Farben und Accessoires übereinstimmen. Da beide nicht viel Zeit haben, sollten auch die Handtücher schnell zu verstauen sein. Hier bat sich die Natursteinwand wunderbar als Platzierung an. Durch die unebenen Natursteine und der integrierten Beleuchtung strahlt die Wand Wärme und Behaglichkeit aus.

Inge nimmt sich ein Handtuch bewegt sich in ihre bodenebene 2,60 m x 1,60 m große Dampfdusche. Sie atmet tief den Rosenduft ein, legt ihr Handtuch auf die Sitz- und Liegefläche und setzt sich bequem darauf. Der Dampf berührt sie. Winzig kleine Wassertropfen bilden sich auf ihrer Haut und sie merkt, wie ihre Poren sich offnen. Peeling und Kur­packung liegen griffbereit in der beleuchteten Ablage. Inge schaut nach oben. Der Sternenhimmel von Swarovski funkelt und der Licht­kegel dringt durch den Dampf nach unten. Im Hintergrund hört sie leise Musik mit Meeresrauschen. Nach draußen schauend sieht Inge, wie sich die Bäume im Wind bewegen. Sie spürt die Entspannung. Toll finden beide die große Dusche, da sie Platz für beide bietet. Wichtig auch der Sitz- und Liegeplatz, viel feiner Regen von oben, der Thermostat, um die Temperatur einzustellen und der Wellnesskomfort des Dampfbades.

Alles via Touchpanel zu bedienen

Sie wickelt das Handtuch um ihren Körper und öffnet die Glastüre mit direktem Zugang zum Kamin und legt sich auf die gepolsterte Liege neben Jochen. Vom Whirlpool spritzen einige Wassertropfen zu ihr herüber. Inge lächelt. Da die Liege mit einem wassergeeigneten Polster überzogen wurde, spielt dies keine Rolle. Das Kunstleder mit Prägung sieht täuschend echt aus. Die vielen Kissen bieten Gelegenheit zum Kuscheln, Lesen oder Schlafen. Die Toilette im Bad wurde mit einer abgetrennten Natursteinwand und einer Schiebetüre ausgestattet. Bewusst wurde das Wand-WC von Geberit ausgewählt, denn es verwöhnt mit einem Duschstrahl sowie einem Föhn, dessen Temperatur und Intensität stufenlos reguliert werden kann. Durch die Geruchabsaugung kann die Schiebetüre offen bleiben. Im unteren Wandbereich wurde umlaufend eine indirekte LED-Beleuchtung eingebaut, welche den Raum durch dezentes Licht inszeniert und dies bei wenig Stromverbrauch und langer Lebensdauer. Die Toilette mit Waschtisch wurde gleich zu Beginn des Bades geplant, da Zugang aus dem Schlafzimmer und des Lese- und Arbeitszimmers direkt besteht und auch im hohen Alter einfach und bequem anzuwenden ist.

Alle Lichtverhältnisse, Musik, Fernseher, Heizung und Jalousien sind wie im Erdgeschoss mit dem Touchpanel zu bedienen (man kann es nun auch auf PC und Laptop bedienen). Die in allen Räumen eingebauten Halogendecken und Wandleuchten von Swarovski sind dimmbar und lassen sich einfach in Lichtszenen integrieren. Die Decken wurden mit Rigips abgehängt, verkleidet, glatt verspachtelt und hell gestrichen, um die Lichtreflektierungen abzubilden. Der Wandputz ist feuchtigkeitsregulierend und diffusionsoffen, bestehend aus rein pflanzlichen und mineralischen Inhaltsstoffen. Er sorgt für ein zeitgemäßes, gesundes Raumklima und erschafft eine dauerhafte, natürliche und authentische Wandgestaltung – Tag für Tag.

Rund 350000 Euro kostet die Renovierung. Dies entspricht in etwa dem aktuellen Marktwert des in guter Wohnlage stehenden Hauses. Mit rund 111000 ­Euro nimmt die Ausstattung in Sachen Multimedia die größte Position ein. Der Anteil aus dem Produkt- und Dienstleistungsbereich Bad und Heizung veranschlagt Sabine Dorner mit 80000 Euro. Fliesen- und Malerarbeiten sollen in Höhe von 40000 Euro anfallen. Die speziell ausgewählte Swarovski-Beleuchtung schlägt mit 15000 Euro zu Buche. Der nachträglich einzubauende Aufzug kostet noch einmal 100000 Euro. Die Jury würdigt mit der Preisvergabe die Integration der ausgefeilten multimedialen Planung, die für einen Enthusiasten, wie es die Zielgruppenfigur Jochen sein soll, keine Wünsche mehr offen lässt. Dabei bleibt die Technik immer im Hintergrund.

Home-Automation auf höchstem Niveau

Aveo als Partner

Um auch sehr anspruchsvolle Multimedia-Leistungen umsetzen zu können arbeitet das Unternehmer-Ehepaar Dorner in der täglichen Praxis mit der Aveo GmbH zusammen. Sie beschäftigt sich mit der Konzeption und dem Vertrieb elektronischer Systeme zur Realisierung des sogenannten „Intelligenten Hauses“, bekannt auch unter dem Schlagwort „Home-Automation“ oder „Smart Home“.

Ziel ist die Integration sämtlicher haustechnischen Systeme wie Heizung/Klimaanlage, Alarmanlage, Licht, Musik, Fernsehen, Jalousien. All diese Gewerke werden gewöhnlich mit eigenen (Fern)Bedienungselementen gesteuert, die zugunsten einer gemeinsamen Bedienoberfläche überflüssig werden. Das wesentliche Bedienmedium sind berührungsempfindliche Bildschirme, auch Touchpanels genannt. Deren logische Menüführung gewährleistet Übersichtlichkeit und einfache Bedienbarkeit aller Systeme.

Neben der Haussteuerung hat sich Aveo auf High-End-Unterhaltungselektronik spezialisiert, die sich komplett in das Steuerungssystem integriert. Besonderes Augenmerk wird auf die ästhetische Integration aller technischen Gewerke gelegt. Lästiger Kabelsalat und unansehnliche Gerätetürme verschwinden so aus dem privaten Lebensraum. Sichtbare Technik wird der Architektur des Wohnraumes angepasst.

Der Vertrieb der Aveo-Produkte erfolgt über die lokalen Handwerksunternehmen. Aveo liefert den Elektroinstallations- und Projektabwicklungsfirmen Lösungs-Know-how bzw. Planungsunterstützung, Sales Support beim Endkunden, alle erforderliche Hard- und Software, Inbetriebnahme, After-Sales-Support sowie Servicepersonal und Wartungsverträge. Weitere Informationen: http://www.aveo-home.de

Dorner GmbH

Im Mai 1961 gründete Edmund Dorner zusammen mit seiner Frau Maria in Bitzenhofen am Bodensee einen SHK-Betrieb. Heute sorgen ca. 20 Mitarbeiter für den reibungslosen Ablauf rund um Sanitär, Heizung, Klima und Flaschnerei. Nach einigen Jahren als zweite Hand des Firmengründers haben heute die Eheleute Gisbert und Sabine Dorner das Geschäft übernommen. Sabine arbeitet und plant nun schon seit 20 Jahren die Bäder, die Gisbert und Team dann umsetzen.

https://dorner-www.de/