Springe auf Hauptinhalt Springe auf Hauptmenü Springe auf SiteSearch
Rückstauschutz von Beginn an berücksichtigen.

Fachgerechte Entwässerungsplanung

Bevor mit der Entwässerungsplanung begonnen werden kann, sollte zunächst der konkrete Entwässerungsbedarf des Bauherren ermittelt werden. Hierzu muss dieser seine Wünsche und Vorstellungen mit dem Architekten, Fachplaner und Installateur gemeinsam durchsprechen. Denn der Einbau von Entwässerungspro­dukten in den verschiedenen Wohn- und Kellerräumen sowie Außenflächen ist stark nutzungs- und bedarfsabhängig. In dieser Phase hat der Installateur auch die Chance, den Bauherren frühzeitig über den neuesten Stand in der Entwässerungstechnik und Trends zu informieren. Denn oftmals kennt der Bauherr aktuelle Möglichkeiten gar nicht. Zum Beispiel, dass Entwässerungslösungen wie Rückstauverschlüsse und Hebeanlagen auch in einem Schacht vor dem Haus untergebracht werden können. Bei der Bedarfsermittlung sollten darüber hinaus zukünftige Ausbauten oder Nutzungsveränderungen berücksichtigt werden, um spätere Umbaukosten zu reduzieren. Ist beispielsweise später der Einbau einer Sauna mit Duschbereich geplant, sollte unbedingt ein Bodenablauf vorgesehen werden.

Basis für eine funktionssichere Entwässerung

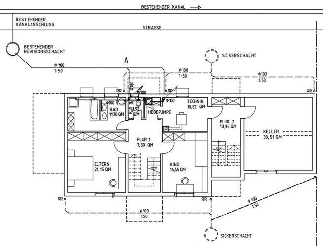
Ist der Entwässerungsbedarf geklärt, geht es an die Detailplanung. Das Herzstück dieser Planung ist der Entwässerungsplan (Bilder 1 und 2). Ohne ihn ist eine nachträgliche Rekonstruktion des Entwässerungssystems kaum möglich – und das führt besonders bei späteren Sanierungsarbeiten zu unnötigen Komplikationen und Kosten.

Bilder 1 und 2: Im Entwässerungsplan sind alle wichtigen Details für die Entwässerung von Grundstücken und Gebäuden festgeschrieben.

Zunächst reicht der Architekt zur behördlichen Genehmigung des geplanten Bauvorhabens einen in der Regel noch groben Entwässerungsplan mit Antragsformular ein. Wird die Genehmigung für die Grundstücks- und Gebäudeentwässerung sowie der Anschluss an den öffentlichen Kanal erteilt, kann der Fachplaner oder Sanitärinstallateur mit der Erstellung eines detaillierten Entwässerungsplanes auf Basis des Genehmigungsplanes beginnen. Beispielsweise werden in diesem Ausführungsplan alle Rohrleitungen dimensioniert, Werkstoffe festgelegt und Detailzeichnungen für Entwässerungsprodukte integriert. Dabei sind vor allem folgende Planungsgrundlagen zu berücksichtigen:

  • DIN 1986 Teil 1, 2 und 4 (Entwässerungsanlagen für Gebäude und Grundstücke)
  • DIN 1986 Teil 1, Abs. 7 (Schutz vor Rückstau), DIN 19578, DIN EN 1997
  • Be- und Entlüftung nach DIN 1986
  • Versickerung auf dem Grundstück nach ATV A138
  • Kommunale Entwässerungssatzung
  • Anschluss an den städtischen Kanal (Anschluss- und Benutzerzwang)

Gewerke müssen Hand in Hand arbeiten

Wichtig bei der anschließenden Umsetzung der Entwässerungstechnik ist, dass alle beteiligten Gewerke wie Rohbauunternehmer, Sanitärinstallateur, Fliesen- und Estrichleger, Elektriker sowie Garten- und Landschaftsbauer mit dem Architekten und Fachplaner Hand in Hand arbeiten. Nur so ist eine reibungslose Abstimmung und Umsetzung möglich. Aufgrund ihrer Kompetenz sollte das beteiligte Sanitärunternehmen die gesamte Abwasserinstallation während der unterschiedlichen Bauphasen überwachen oder sogar in Zusammenarbeit mit dem Rohbauunternehmen selbst ausführen. Damit können nachträgliche und kostenintensive Arbeiten vermieden werden, wie zum Beispiel das Aufbrechen des Kellerbodens für die Verlegung einer Druckleitung und des Leerrohrs für eine Hebeanlage.

Problemzone Keller

Ein wichtiges Thema bei der Entwässerungsplanung ist der Rückstauschutz. Denn immer häufiger stößt die Kanalisation bei starken Regenereignissen an ihre Grenzen – der Wasserpegel steigt über die sogenannte Rückstau­ebene (die Höhe der Straßenoberkante) und überflutet tiefer liegende Räume im Souterrain oder Keller. Die Folgen: Schäden an Möbeln, Bodenbelägen und Hausrat sowie jede Menge Ärger und Kosten für den Hausbesitzer (Bild 3). Städte und Gemeinden müssen für Schäden, die durch eine überlaufende Kanalisation verursacht werden, nicht einstehen. In der Regel schreiben Kommunen den Grundstücksbesitzern sogar vor, sich gegen Rückstau selbst zu schützen.

3 Es geht schneller, als man denkt: Ohne Rückstauschutz drückt Wasser aus der Kanalisation ungehindert zurück in den Keller und sorgt für Überschwemmungen.
3 Es geht schneller, als man denkt: Ohne Rückstauschutz drückt Wasser aus der Kanalisation ungehindert zurück in den Keller und sorgt für Überschwemmungen.

Mit einer sogenannten Elementarversicherung, die zusätzlich zur Hausrats- und Gebäudeversicherung abgeschlossen werden muss, kann man sich in der Regel gegen Rückstau versichern. Allerdings müssen dann Rückstauverschlüsse eingebaut sein, die den einschlägigen Vorschriften und Regeln der Technik entsprechen. Sonst drohen eingeschränkte Entschädigungen oder gar die Ablehnung von Ansprüchen. Darauf sollten Planer und Handwerker den Bauherren unbedingt hinweisen.
Liegt die Ablaufstelle allerdings unterhalb des Kanalniveaus, muss auf eine Hebeanlage zurückgegriffen werden, die das Wasser zum Kanal pumpt. Nur wenn das Wasser mit Gefälle zum Kanal entsorgt werden kann, reicht ein einfacher Rückstauverschluss. Bei der Auswahl des geeigneten Rückstauschutzes kommt es neben den baulichen Gegebenheiten auch darauf an, ob über die abzusichernde Leitung nur Schmutzwasser, sogenanntes Grauwasser, oder Schwarzwasser mit Fäkalien abgeleitet werden. Sobald das Wasser Fäkalien beinhaltet, muss ein Fäkalien-Rückstauautomat beziehungsweise eine Fäkalien-Rückstaupumpanlage eingebaut werden (Bild 4).

4 Wird fäkalienhaltiges Abwasser abgeleitet, muss ein Fäkalien-Rückstauautomat bzw. eine Fäkalien-Rückstaupumpanlage wie der Pump­fix F von Kessel eingebaut werden.

4 Wird fäkalienhaltiges Abwasser abgeleitet, muss ein Fäkalien-Rückstauautomat bzw. eine Fäkalien-Rückstaupumpanlage wie der Pump­fix F von Kessel eingebaut werden.

Ablaufstellen bedarfsgerecht ­absichern

Zu guter Letzt bleibt vor dem Einbau dann nur noch die Frage offen, wo die Entwässerungsgegenstände abgesichert werden sollen – zentral, einzeln oder vor dem Haus. Gibt es mehrere abzusichernde Ablaufstellen, kann der Verschluss zentral in die Hauptleitung eingebaut werden – das spart Kosten, da nicht jede einzelne Ablaufstelle separat geschützt werden muss (Bild 5). Muss jede Ablaufstelle einzeln abgesichert werden, wird der Rückstauverschluss entweder direkt in den Ablauf an der jeweiligen Ablaufstelle (Bild 6) eingebaut oder einzeln in die Leitung des zu schützenden Entwässerungsgegenstandes integriert (Bild 7). Diese Lösung bietet sich beispielsweise an, wenn es im gesamten Keller nur einen Ablauf gibt. Eine dritte Möglichkeit ist, den Verschluss in einem speziellen Hausanschlussschacht vor dem Gebäude unterzubringen (Bild 8). Die Grundleitung, über die ausschließlich rück­staugefährdete Ablaufstellen entwässert werden, wird dann über diesen Rückstauverschluss gesichert. Üblicherweise bietet so ein Schacht auch noch weitere Leitungsanschlussmöglichkeiten, die nicht über den Rückstauverschluss führen. An diese kann der Installateur die Grundleitungen anschließen, die die nicht rückstaugefährdeten Abläufe entwässern. Besonders praktisch: Bei bestimmten Kesselfabrikaten können Rückstauverschlüsse jederzeit nachgerüstet werden. Alternativ kann aber auch jeder Schacht mit bereits vorinstalliertem Rückstauverschluss bestellt werden. Auch Pumpen und Fäkalienhebeanlagen können im Schacht montiert werden.

5 Die zentrale Absicherung erfolgt durch Einbau eines Rückstauverschlusses in die Hauptleitung.
 

5 Die zentrale Absicherung erfolgt durch Einbau eines Rückstauverschlusses in die Hauptleitung.
 

7 Eine weitere Möglichkeit zur Einzelabsicherung: Verschlüsse direkt in die Leitung der zu schützenden Entwässerungsgegenstände integrieren.
 

7 Eine weitere Möglichkeit zur Einzelabsicherung: Verschlüsse direkt in die Leitung der zu schützenden Entwässerungsgegenstände integrieren.
 

6 Zur Einzelabsicherung kann der Rückstauverschluss direkt in den Ablauf eingebaut werden.
 

6 Zur Einzelabsicherung kann der Rückstauverschluss direkt in den Ablauf eingebaut werden.
 

8 Rückstauverschlüsse können in einem Hausanschluss-Schacht vor dem Haus untergebracht werden.

8 Rückstauverschlüsse können in einem Hausanschluss-Schacht vor dem Haus untergebracht werden.

Kundenbindung durch Wartung

Höchste und dauerhafte Sicherheit aller Entwässerungsanlagen kann nur durch eine regelmäßige Inspektion und Wartung sichergestellt werden. Und Wartung bedeutet nicht, nur die Funktion der Anlage sicherzustellen. Wartung bedeutet weit mehr: nämlich die Sicherheit und den Werterhalt einer haustechnischen Einrichtung zu garantieren, den Versicherungsschutz zu erhalten und – in einigen Fällen – die gesetzlichen Verpflichtungen zu erfüllen. Es steckt also viel drin im Tätigkeitsfeld der „Anlagenpflege“.

Damit beispielsweise Rückstauverschlüsse zuverlässig funktionieren, ist alle sechs Monate eine Wartung erforderlich. Ein guter Zeitpunkt ist vor den intensiven Herbstregenschauern, damit die Anlage im Ernstfall auch einsatzfähig ist. Zur Pflege des Verschlusses werden zunächst die Rückstauklappen ausgebaut und gereinigt und der Zustand der Dichtung überprüft. Wenn erforderlich, müssen die Dichtungen erneuert werden. Hebeanlagen in Einfamilienhäusern müssen einmal jährlich einer Wartung unterzogen werden, in Mehrfamilienhäusern ist alle sechs Monate eine Prüfung fällig und in einem Gewerbebetrieb sogar alle drei Monate. Dabei werden alle dichtenden und beweglichen Teile gereinigt und die Funktion der Absperrorgane kontrolliert.
Darüber hinaus werden Pumpe, Sammelbehälter und Rückflussverhinderer gereinigt und die Funktion der elektrischen Schalter überprüft. Anschließend muss der Fachmann sicherstellen, dass die integrierte Warneinrichtung verlässlich einen Funktionsausfall anzeigt. 

Checkliste

Auswahl Rückstauschutz

SBZ-Tipp

Für den fachgerechten Einbau

Entwässerungsleitungen oberhalb der Rückstauebene dürfen nie über einen Rückstauverschluss in der Hauptgrundleitung entwässert werden. Ist das der Fall, dann schließt das Rückstauaggregat bei drückendem Wasser und verhindert die Überflutung „von außen“, also aus der Kanalisation. Nutzen die Bewohner aber während des Rückstaus die Ablaufstellen oberhalb der Rückstauebene, füllt sich die Grundleitung. Dann tritt das Abwasser über die Anschlüsse im Keller aus. In diesem Fall überflutet der Raum „von innen“. Damit das nicht passiert, dürfen nur solche Ablaufstellen über einen Rückstauverschluss entwässert werden, die tatsächlich rückstaugefährdet sind. Alle anderen Ablaufstellen werden getrennt davon entwässert.

Strömungsarten der Dachentwässerung

Vollgefüllt und ohne Gefälle

-

Grundsätzlich kann eine Dachfläche auf zwei Arten entwässert werden. Der Beitrag beleuchtet die unterschiedlichen Ausführungsvarianten und zeigt, welche Normen und Regelwerke bei der Planung und Ausführung von Entwässerungs­anlagen zu berücksichtigen sind. Bernd Ishorst