Springe auf Hauptinhalt Springe auf Hauptmenü Springe auf SiteSearch
Kleinhebeanlagen richtig auswählen und einsetzen

Bad und Klo — egal wo

Entwässerungsanlagen sind nach DIN EN 12056 für alle über der Rückstauebene liegenden Entwässerungsgegenstände mit natürlichem Gefälle und nach dem Prinzip der Schwerkraftentwässerung auszuführen. Abwasser welches unterhalb der Rückstauebene anfällt, ist nach DIN EN 12050 über automatisch arbeitende Abwasserhebeanlagen der öffentlichen Kanalisation zuzuführen (Bild 1). Das gilt auch für Kleinhebeanlagen, die nach DIN EN 12050-3 als Fäkalienhebeanlagen zur begrenzten Verwendung genormt sind. Abweichend von dem geforderten Einbau von Abwasserhebeanlagen können nach DIN EN 12056-4 bei Räumen mit untergeordneter Nutzung aber auch Rückstauverschlüsse eingesetzt werden.

Gesetze, Verordnungen und ­Bestimmungen

Nach den Bauordnungen der Länder dürfen bauliche Anlagen nur errichtet werden, wenn die einwandfreie Beseitigung der Abwässer und Niederschlagwässer gesichert ist. Grundstücke an betriebsfertig kanalisierten Straßen müssen an die öffentliche Entwässerung angeschlossen werden. Die Einleitung von Abwässern in Kläranlagen, Sammelgruben oder Sickeranlagen wird nur zugelassen, wenn keine Anschlussmöglichkeit an die öffentliche Entwässerung vorhanden ist. Entwässerungsgegenstände oberhalb der Rückstauebene sind entsprechend den allgemeinen Anforderungen in der DIN EN 12056-1 mittels Schwerkraft zu entwässern. Die Verwendung von Abwasserhebeanlagen oberhalb der Rückstauebene ist nur in außergewöhnlichen Fällen, beispielsweise bei einer Sanierung, zulässig. Sanitäre Entwässerungsgegenstände und Bodenabläufe unterhalb der Rückstauebene sind mittels Abwasserhebeanlagen zu entwässern. Nur im Falle einer untergeordneten Nutzung dieser Entwässerungsgegenstände ist es nach DIN EN 12056-4 zulässig, sie über Rückstauverschlüsse zu entwässern. Ein Rückstauverschluss (Bild 2) kann z.B eingesetzt werden, wenn:

  • Gefälle zum Straßenkanal besteht
  • die Räume von untergeordneter Nutzung sind, also keine wesentlichen Sachwerte oder die Gesundheit der Bewohner bei Überflutung der Räume beeinträchtigt werden
  • der Benutzerkreis klein ist und diesem ein WC oberhalb der Rückstauebene zur Verfügung steht.

Tief liegende Räume im Sinne der Abwasserbeseitigung sind solche, bei denen der Wasserspiegel im Geruchverschluss der an­zuschließenden Entwässerungsgegenstände unterhalb der örtlich festgelegten Rückstauebene liegt. Beispielsweise befindet sich der Wasserspiegel im Geruchverschluss bodenstehender Klosetts etwa 250 mm unter Oberkante Becken, das heißt etwa 150 mm über Oberkante Fußboden. Eindeutig ist nicht die Oberkante Fußboden des Aufstellungsraumes, sondern die Oberkante des Wasserspiegels im Geruchverschluss der einzubauenden Entwässerungsgegenstände maßgebend.

Kleinhebeanlagen zur begrenzten Verwendung

Nach der Europanorm DIN EN 12050-3 können die unter der Bezeichnung Fäkalienhebeanlagen zur begrenzten Verwendung geführten Anlagen sowohl Über- wie auch Unterflur für fäkalienhaltiges, aber auch für fäkalienfreies Abwasser von Handwaschbecken, Duschen, Bidets und Spülbecken eingesetzt werden (Bild 3). Der mögliche Anschluss einer Badewanne oder von Küchenablaufstellen kann unter die Zulassung in Sonderfällen oder als Ermessensfrage eingestuft werden und müsste von der örtlichen Zulassungsbehörde entschieden werden. Das gilt auch für einen Einbau oberhalb der Rückstauebene, der außerhalb des Anwendungsbereiches der DIN EN 12050-3 liegt. Gegebenenfalls sind entsprechende Aufgabenstellungen mit dem Bauordnungsamt zu klären. Fäkalienhebeanlagen zur begrenzten Verwendung sind Einrichtungen zum Sammeln und automatischen Heben von fäkalienhaltigem und fäkalienfreiem Abwasser der angeschlossenen Entwässerungsgegenstände über die Rückstau­ebene. Integrierter Bestandteil einer Fäkalienhebeanlage zur begrenzten Verwendung ist ein Sammelbehälter zur Speicherung des Vorlagevolumens sowie eine Förder- und Schalteinrichtung zur selbsttätigen Steuerung der Anlage. Der Sammelbehälter muss geschlossen, wasser- und geruchsdicht sein.

Rohranschlüsse, Lüftung und Mindestquerschnitte

Die Maße von Zulauf-, Druck- und Lüftungsanschlüssen müssen den Gebrauch genormter Rohrmaße ermöglichen. Die Anschlüsse sind so auszubilden, dass ein dichter sowie elastischer Anschluss gewährleistet wird. Sie müssen dem maximalen Betriebsdruck der Pumpen ohne Leckage standhalten. Die ­Maße des WC-Zulaufstutzens müssen dem Anschluss von einem WC nach EN 33 oder EN 37 in der Nennweite DN 100 entsprechen. Der Mindestdurchmesser der zusätzlichen Anschlüsse muss DN 40 sein. Der Sammelbehälter muss eine ausreichende Lüftung gewährleisten. Eine Lüftung in den Aufstellraum muss geruchfrei sein. Die Mindestfließgeschwindigkeit in der Druckleitung muss 0,7 m/s im Betriebspunkt betragen. Der freie Durchgang in der Fäkalienhebeanlage zur begrenzten Verwendung zwischen Zulauf der Anlage und Eintrittsöffnung der Fördereinrichtung muss mindestens 25 mm Kugeldurchgang betragen. Zwischen den zusätzlichen Anschlüssen für fäkalienfreies Abwasser und der Eintrittsöffnung der Fördereinrichtung muss ein freier Kugeldurchgang von mindestens 10 mm gesichert sein. Druckanschluss, Druckleitungen und Rückflussverhinderer von Kleinhebeanlagen mit Fäkalienzerteilung müssen einen Mindestinnendurchmesser von 20 mm haben. In Anlagen ohne Zerteilung muss die Druckleitung einen Mindestinnendurchmesser von 25 mm haben. Die elektrische Einrichtung in Abwasserhebeanlagen muss explosionsgeschützt sein. Wenn sich nur der hydraulische Teil der Pumpe im explosionsgefährdeten Raum befindet, ist ein explosionsgeschützter Motor nicht nötig. Die elektrische Einrichtung der Anlage muss mindestens der Schutzart IP 44 nach EN 60529 entsprechen, auch wenn sie in gut ­belüfteten Räumen und nicht überflutbar aufgestellt sind.

Zur Schwarz- und Grauwasser­beseitigung geeignet

Kleinhebeanlagen zur begrenzten Verwendung dienen in verschiedenen Ausführungen der Entsorgung von Schwarzwasser (Abwasser mit Fäkalien und Urin) und von Grauwasser (Abwasser ohne Fäkalien und Urin). Bild 4 zeigt eine Kleinhebeanlage mit einem Sammelbehälter aus schlagfestem Kunststoff und eingebauter Tauchpumpe. Sie dient der Entsorgung eines unmittelbar angeschlossenen Einzel-WCs nach EN 33 oder EN 37 in der Nennweite DN 100 und je nach Modellvariante über zusätzliche Anschlüsse DN 40, die das Abwasser von Waschbecken, Bidet, Dusche, Spülbecken, Waschmaschine oder Geschirrspülmaschine aufnehmen. Die Tauchpumpe verfügt über Feststoff-Auffangkorb mit oben liegendem Schneidwerk aus Edelstahl, das Feststoffe bei Eintritt in den Behälter zerkleinert und so Verstopfungen verhindert.

Kleinhebeanlagen mit WC-Anschluss sind mit einer Rückschlagklappe ausgestattet, die ein Rückdrücken von Abwasser aus der steigenden Druckleitung in den Sammelbehälter bei Pumpenstillstand verhindert. Sie können mit einer vertikalen Förderhöhe von einem bis fünf Metern ab Oberkante Fußboden in der Nennweite DN 20 bei horizontaler Rohrführung mit abgestuften Rohrlängen von maximal 100 m bis 10 m betrieben werden.

Kleinhebeanlagen für Küchen- und Waschtischanschlüsse können hingegen mit einer vertikalen Förderhöhe von einem bis vier Meter ab Oberkante Fußboden in der Nennweite DN 20 bei horizontaler Rohrführung mit abgestuften Rohrlängen von maximal 50 m bis 10 m betrieben werden.

Dimensionierung der Pumpendruckleitung

Nach der europäischen Norm DIN EN 12056-4 sind für die hier behandelten Kleinhebeanlagen Mindestdurchmesser der zusätzlichen Anschlüsse – zusätzlich zum Klosettanschluss – mit DN 40 einzuhalten. Dabei entspricht die Nennweite DN 40 nach DIN EN 12056-2 einem Mindestinnendurchmesser von 34 mm. Bei Kleinhebeanlagen, in denen zwangsläufig eine Fäkalienzerteilung stattfindet, muss die Druckleitung einen Mindestinnendurchmesser von 20 mm haben. Für Anlagen, bei denen keine zwangsläufige Zerteilung der mitgeführten Feststoffe (Fäkalien und Toiletten­papier) stattfindet, ist ein Mindestinnen­durchmesser von 25 mm einzuhalten. Als Werkstoffe für die Druckleitungen sind beispielsweise Kupferrohre in den Abmessungen 22 x 1 mm, 28 x 1,5 mm, 35 x 1,5 mm und 42 x 1,5 mm oder Kunststoffrohre aus PVC, PE oder PP mit entsprechenden Innendurchmessern zu verwenden. Die Druckleitung kann ab Sammelbehälter zunächst über ein oder zwei Geschosse, abhängig von der zur Verfügung stehenden geodätischen Förderhöhe senkrecht nach oben oder nach unten geführt werden. Horizontale Druckleitungen sind mit einem Gefälle von 10 mm/m möglichst geradlinig bis zum Anschluss an eine Schmutzwasser-Fall- oder Sammelleitung der Grundstücksentwässerung zu verlegen. Alle Richtungsänderungen sind mit Bogen auszuführen. Nach dem Gipfelpunkt der hochgeführten Druckleitung kann die weiterführende horizontale Druckleitung, die nächstgrößere Nennweite, maximal DN 40 erhalten. Der unterste Punkt einer Pumpendruck-Steigleitung ist mit einer Entleerungöffnung (Entleerungshahn DN 15) auszustatten.

Kleinhebeanlagen für fäkalien­haltiges Abwasser

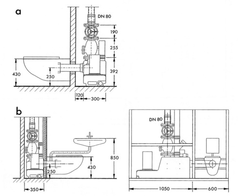
Kleinhebeanlagen für fäkalienhaltiges Abwasser, die der Entsorgung eines unmittelbar angeschlossenen Einzel-WCs dienen, aber auch fäkalienfreies Abwasser anderer Sanitärobjekte aufnehmen können, stehen in zahlreichen Ausführungen zur Auswahl. Bei der Installation wandhängender Klosetts erfolgt die Ausführung nach Bild 5 als Vorwand- oder Hinterwandinstallation mit einem rund 12 cm tiefen Sammelbehälter. Innerhalb des Systems erfolgt die Anordnung links- oder rechtsseitig neben dem Klosett, damit die Anlage für eine Wartung leicht zugänglich ist. Die Abwasserentsorgung weiterer Sanitärobjekte eines Wohnungsbades erfolgt ebenfalls über diese Kleinhebeanlage. Die Druckleitung kann bis zu einer geodätischen Förderhöhe von vier Meter senkrecht hoch geführt werden. Davon abhängig ist die Leitungsanlage nach Herstellerangaben zu bestimmen. Die in Bild 5 dargestellte ausgeführte Anlage besteht aus einem Sammelbehälter aus schlagfestem Kunststoff und eingebauter Tauchpumpe. Direkt angeschlossen sind ein wandhängendes Klosett und zwei Zulaufanschlüsse DN 40 für Waschtisch und Brausewanne. Die Tauchpumpe verfügt über ein in einem Feststoff-Auffangkorb oben liegendes Schneidwerk aus Edelstahl, das Feststoffe bereits bei Eintritt in den Behälter zerkleinert und so Verstopfungen verhindern soll. Die Druckleitung mit einem Innendurchmesser von 20 mm ist mit einer Rückschlagklappe ausgestattet, die ein Rückdrücken von Abwasser aus der steigenden Druckleitung in den Sammelbehälter bei Pumpenstillstand verhindert. Die Be- und Entlüftung des Sammelbehälters erfolgt geruchlos über einen Kohlefilter. Eine Lüftungsleitung ist nicht erforderlich. Mit einer berührungslos arbeitenden Niveauschaltung wird der Sammelbehälter automatisch entleert. Für eine optimale Förderleistung sollte die Druckleitung möglichst neben dem Sammelbehälter senkrecht steigend und nach Erreichen einer zulässigen geodätischen Förderhöhe waagerecht als Gefälleleitung mit einem Gefälle von 10 mm/m zu einer Fall- oder Sammelleitung der Grundstücksentwässerung verlegt werden. Auch bei einer rein waagerechten Förderung ist die Druckleitung hinter der Pumpe zunächst ca. 0,50 m nach oben zu führen. Bild 6 zeigt die Ausführung einer bodenstehenden Klosettkombination aus Sanitärporzellan mit im Sockel verdeckt integrierter Kleinhebeanlage für ein Spülwasservolumen von 3 Litern. Das WC-Becken ist gleichzeitig Sammelbehälter und vor der ersten Benutzung auf eine Wasserfüllung bis 5 cm unter Beckenoberkante einzustellen. Der Zulaufanschluss erfolgt über ein Geräteanschlussventil DN 15 und einem zum Becken gehörenden Hochdruck-Verbindungsschlauch. Der elektrische Anschluss wird über eine handelsübliche Schukosteckdose hergestellt. Die Spülung wird durch Betätigung eines Pneumatik-Spülkopfes, der auf dem hinteren Beckenrand angeordnet ist, oder bei einem anderen Modell durch Zuklappen des Sitzdeckels ausgelöst. Der über ein Magnetventil gesteuerte Wasserzufluss beschränkt den Wasserverbrauch auf ca. drei Liter je Spülung. Die Ausführung kann auch mit einem Waschbeckenanschluss geliefert werden.

Zahlreiche Ausführungen stehen zur Wahl

Bild 7 zeigt das Einbaubeispiel einer Kleinhebeanlage für den Einsatz in einer Vorwandinstallation zum unmittelbaren Anschluss eines wandhängenden Klosetts mit Wandeinbauspülkasten für ein Spülwasservolumen von 6 Litern. Weiterhin ist der Anschluss eines Waschbeckens, einer Brausewanne und eines Bidets zulässig. Die Druckleitung ist in der Nennweite DN 32 aus PVC, PP oder PE auszuführen. Die Verlegung der Druckleitung kann senkrecht nach oben mit einer Schleife über die örtlich festgelegte Rückstauebene oder auch nach kurzer Steigung waagerecht erfolgen. Eine Rückschlagklappe verhindert das Rückfließen von Abwasser aus der Steigleitung in den Sammelbehälter bei Pumpenstillstand. Die hier vorhandene Lüftungsleitung in der Nennweite DN 50 kann mit einem dem Lüftungsgitter vorgeschalteten Aktivkohleeinsatz oder alternativ über Dach zur Ausführung kommen. Zur akustischen Störmeldung besitzt die Anlage eine integrierte Alarmanlage, die rechtzeitig eine vorliegende Funktionsstörung signalisiert. Dazu ist es möglich, die Störmeldung über einen eingebauten potenzialfreien Kontakt an andere Orte weiterzuleiten. Das Gerät ist steckerfertig zum Anschluss an eine Schukosteckdose vorbereitet und arbeitet vollautomatisch, sobald der Abwasserzufluss einsetzt. Für die Montage und Wartungsarbeiten an der Anlage wird eine ausreichend große Revisionsöffnung von 400 x 500 mm mit Magnetverschluss empfohlen. Die Abwasserhebeanlage in Bild 8 für die Einzelraumentwässerung kann für die konventionelle Installation bodenstehender und wandhängender Klosettbecken sowie für die Vorwandinstallation eingesetzt werden. Zulaufanschlüsse in der Nennweite DN 40 an den Sammelbehälter können für den Anschluss von Waschtisch, Badewanne, Brausewanne und Bidet genutzt werden. Deren Anordnung an den beiden Längsseiten und einer Stirnseite ist frei wählbar und ermöglicht eine größtmögliche Anschlussflexibilität. Der Druckleitungsanschluss in der Nennweite DN 80 ist mit Rückflussverhinderer und Absperrschieber ausgestattet. Eine Entlüftungsrohrkombination kann für den Anschluss einer Entlüftungsleitung DN 70 und bei Ausfall der Anlage für den Anschluss einer Handmembranpumpe verwendet werden. Die Handmembranpumpe kann am unteren Zulauf DN 40 des Sammelbehälters fest installiert werden. Die Tauchmotorpumpe ist mit einem wirkungsgradoptimierten Freistromlaufrad und einem Edelstahl­motor ausgestattet. Der Einsatz kann für den ­ Toilettendirektanschluss, die Einzelraumentwässerung, die Vorwandinstallation und den Wandeinbau erfolgen.

Kleinhebeanlagen für fäkalienfreies Abwasser

Für fäkalienfreies Abwasser der Entwässerungsgegenstände in Küche und Hausarbeitsraum zeigt Bild 9 ein Anwendungsbeispiel mit Doppelspüle, Wasch- und Geschirrspülmaschine. Der Sammelbehälter besitzt einen Zulaufanschluss DN 50 von oben für den Spültisch, einen seitlichen Zulaufanschluss DN 50 für die Waschmaschine und einen seitlichen Zulaufanschluss DN 50 für einen weiteren Sanitärgegenstand. Der Druckleitungsanschluss in der Nennweite DN 40 ist seitlich angeordnet und kann wahlweise rechts oder links erfolgen. Die in der Pumpendruckleitung des Sammelbehälters angeordnete Rückschlagklappe verhindert ein Leerlaufen der Druckleitung bei Pumpenstillstand. Die Entlüftung ist mit Aktivkohle-Geruchsfilter und integrierter Überlaufsicherung ausgestattet. Eine Entlüftungsleitung ist nicht erforderlich. Die automatische mittels Schwimmer schaltende Tauchmotorpumpe arbeitet mit Drehstrom. Drei Zulaufstutzen in der Nennweite DN 50 ermöglichen den Anschluss von Spültisch, Wasch- und Geschirrspülmaschine oder ­anderer Entwässerungsgegenstände. Nicht gestattet ist der Anschluss von Klosetts und Urinalen. Die Druckleitung in der Nennweite DN 40 kann bis zu einer geodätischen Förderhöhe von 3,50 m zunächst senkrecht steigend und danach mit einem Gefälle von 10 bis 30 mm/m bis zum Anschluss an eine Schmutzwasser-Fall- oder Sammelleitung der Grundstücksentwässerung verlegt werden. Geruchverschlussabgänge von Bidets, Brause- oder Badewanne müssen mit ihrer Rohrsohle mindestens 120 mm über Oberkante Fußboden liegen, damit sie oberhalb des Fußbodens an die Zulaufanschlüsse des Sammelbehälters herangeführt werden können. Bei Wasch- und Geschirrspülmaschinen darf die Abwassertemperatur bei Eintritt in den Sammelbehälter 35 °C bis 40 °C nicht überschreiten, da andernfalls die herstellerseitige Gewährleistung infrage gestellt ist. Bei Waschmaschinen ist im Kurzbetrieb allerdings ein Heißwasserzyklus bis zu 75 °C zulässig. Bild 10 zeigt das Anwendungsbeispiel einer Kleinhebeanlage für fäkalienfreies Abwasser, die unterhalb des Spültisches in einer Wohnungsküche einzubauen ist. Angeschlossen sind der Spültisch und die Geschirrspülmaschine. Der Sammelbehälter, der eine Tauchmotorpumpe mit Schwimmerschalter beinhaltet, ist mit einem Zulaufanschluss von DN 40 von oben, zwei seitlichen Zulaufanschlüssen DN 40 und einem Druckleitungsanschluss DN 40 nach oben (mit integriertem Rückflussverhinderer) ausgestattet. Der Einsatz einer Kleinhebeanlage für den Anschluss einer Brausewanne und einer Geschirrspülmaschine ist in Bild 11 dargestellt. Der Sammelbehälter mit herausnehmbarer Tauchmotorpumpe, integriertem Rückflussverhinderer und Schwimmerschalter ist unterhalb des Waschtisches angeordnet. Die angeschlossene Brausewanne kann auch mit einer längeren Zulaufleitung DN 40 und einem Gefälle von 20 mm/m an den Sammelbehälter angeschlossen werden.

Vermeidung von Störungen

Zur Vermeidung von Störungen dürfen die hier beschrieben Kleinhebeanlagen nur bestimmungsgemäßes Abwasser aufnehmen. Die Einleitung von Stoffen wie beispielsweise Baumwolle, Tampons, Lösungsmittel, Speisereste, Öle und dergleichen ist auszuschließen, da sonst mit Funktionsstörungen gerechnet werden muss. Für den elektrischen Anschluss gelten die jeweils gültigen IEC-Vorschriften bzw. die Anforderungen der VDE 0100 Teil 701. Werden die Anlagen in belüfteten Räumen und nicht überflutbar aufgestellt, müssen diese mindestens der Schutzart IP 44 entsprechen.

Zulaufanschlüsse an den Sammelbehälter

In der DIN EN 12050-3 werden für den Schmutzwasserabfluss der an den Sammelbehälter anzuschließenden Entwässerungsgegenstände keine Anschlusswerte angegeben. Dagegen wird in den Prüfbestimmungen des Deutschen Instituts für Bautechnik von so genannten reduzierten tatsächlichen Anschlusswerten ausgegangen. Begründet wird dies mit dem eingeschränkten Anwendungsbereich für alle anzuschließenden Entwässerungsgegenstände im selben Raum mit kleinem Benutzerkreis. Empfohlen wird für die Dimensionierung ein einheitlicher Abflusswert von 0,5 l/s.

Nach der Europanorm DIN EN 12050-3 können Kleinhebeanlagen zum Transport fäkalienhaltiger Abwässer, aber auch für fäkalienfreies Abwasser von Handwaschbecken, Duschen, Bidets und Spülbecken eingesetzt werden. Allerdings müssen die Maße des WC-Zulaufstutzens dem Anschluss von einem WC in der Nennweite DN 100 entsprechen. Der Mindestdurchmesser der zusätzlichen Anschlüsse muss DN 40 sein. Bei Anlagen, in denen eine Fäkalienzerteilung stattfindet, muss die Druckleitung einen Mindestinnendurchmesser von 20 mm haben. Für Kleinhebeanlagen, bei denen keine Zerteilung der mitgeführten Feststoffe stattfindet, ist ein Mindestinnendurchmesser von 25 mm einzuhalten.

Weitere Informationen

Unser Autor Dr.-Ing. Hugo Feurich ist Inhaber eines ­Ingenieurbüros. Darüber hinaus hat er sich unter ­anderem als Autor unzähliger Fachpublikationen und Fachbücher einen Namen gemacht. 13465 Berlin, ­Telefon (0 30) 4 06 20 77, Telefax (0 30) 4 06 20 77.

Tags