Springe auf Hauptinhalt Springe auf Hauptmenü Springe auf SiteSearch
Längenausdehnung berücksichtigen

Rohrleitungen richtig befestigen

Bei jeder Installation, ob im Heizungs-, Lüftungs- oder Sanitärbereich, kommen Rohrleitungsbefestigungen zum Einsatz (Bild 1). Bei der Auswahl der richtigen Befestigungen muss neben der Ausdehnung der Rohre auch der Befestigungsabstand beachtet werden. Der Abstand der Rohrleitungsbefestigungen richtet sich nach Rohrmaterial, Betriebsmedium und Betriebstemperatur. Die in Teil 2 der DIN 1988, Abschnitt 3.3.1 empfohlenen Befestigungsabstände für Stahl- und Kupferrohre können nach DVGW-TRGI 86/96, Abschnitt 3.3.7.2 auch für Gasleitungen angenommen werden. Die Abstände von Rohrunterstützungen (Rohrschellen) der übrigen Leitungsführung haben sich an der DIN 1988–2 Abschnitt 3.3.1 zu orientieren. Erforderliche Mindestbefestigungsabstände für andere Rohrmaterialien geben die Hersteller der Produkte verbindlich vor.

Entsprechend der individuellen Beanspruchungen sind die Anforderungen an die Befestigungen der verschiedenen Leitungen unterschiedlich.
Entsprechend der individuellen Beanspruchungen sind die Anforderungen an die Befestigungen der verschiedenen Leitungen unterschiedlich.

Rohrlängenveränderungen ­ausgleichen

Rohrleitungen wie Heizungs- oder Warmwasserleitungen, die sich während des Betriebes einer haustechnischen Anlage erwärmen und wieder abkühlen, dehnen sich je nach Werkstoff unterschiedlich aus. Kälteleitungen dagegen können um eine bestimmte Länge schrumpfen. Eine 7 m lange PE-Rohrleitung zum Beispiel dehnt sich bei einem Temperaturanstieg der durchströmenden Flüssigkeit von 20 auf 60 °C um 56mm aus (Bilder 2 und 3). Wie groß die jeweilige Längenänderung sein kann, bestimmen die Leitungslänge, der Ausdehnungskoeffizient des Rohrmaterials und die zu erwartende Temperaturdifferenz. Dabei empfiehlt es sich, bei der Berechnung der Längenveränderung die Temperaturdifferenz nicht nur normaler Betriebstemperaturen, sondern maximal möglicher, wie sie etwa bei einem Störfall auftreten könnten, zu berücksichtigen. Auch spielt die Einbautemperatur eine Rolle. Wird zum Beispiel an einem heißen Sommertag im Deckenbereich einer Lagerhalle eine Leitung installiert, können dort hohe Temperaturen auftreten. Es muss also immer die höchste zu erwartende Temperaturdifferenz berücksichtigt werden.

Mit zunehmendem Temperaturanstieg der durchströmenden Flüssigkeit…
Mit zunehmendem Temperaturanstieg der durchströmenden Flüssigkeit…
…dehnt sich das Rohr aus.
…dehnt sich das Rohr aus.

Zur Berechnung der Längenveränderung der Rohrleitung wird folgende Formel angewendet:

ΔL = L x ααx ΔT [mm]

  • ΔL = max. Längenänderung des Rohres [mm]
  • L = Länge der Rohrleitung [m]
  • αα= Ausdehnungskoeffizient [mm/(m × K)]
  • ΔT = max. Temperaturunterschied [K]

Beispiel 1:

  • Rohrmaterial: Stahl
  • Rohrlänge: 20 m
  • Tmin = +55°C
  • Tmax = +70°C
  • Einbautemperatur (TEinbau): +20 °C

ΔT = Tmax – TEinbau

ΔT = 70°C – 20°C

ΔT = 50K

ΔL = 20 m x 0,012 mm / m x K x 50K

ΔL = 12,0 mm

=> Mögliche Längenausdehnung des Rohres: 12mm

Beispiel 2:

  • Rohrmaterial: Edelstahl
  • Rohrlänge: 50 m
  • Tmin = +6 °C
  • Tmax = +12 °C
  • Einbautemperatur (TEinbau): +35 °C

ΔT = TEinbau – Tmin

ΔT = 35 °C – 6 °C

ΔT = 29 K

ΔL = 50 m x 0,010 mm / m x K x 29 K

ΔL = 14,5 mm

=> Mögliche Schrumpfung: 14,5mm

Um unerwünschte Spannungen im Rohrnetz und daraus resultierende Schäden zu vermeiden, müssen bereits bei der Planung, aber auch bei der Montage von Rohr­leitungsanlagen mögliche Längenveränderungen der Rohrleitungen berücksichtigt werden (Bilder 4 und 5). Durch die Einplanung von Dehnungsmöglichkeiten können auftretende Spannungen kompensiert und Schäden in der Rohrleitungsanlage und am Bauwerk verhindert werden. Längenveränderungen können ausgeglichen werden durch:

  • eine komplette Rohrfixierung bei Kunststoffrohren (Sie verhindert eine Ausdehnung auf der gesamten Rohrlänge – der Rohrdurchmesser wird größer. Bei Stahlrohren ist diese Befestigungsmöglichkeit allerdings ausgeschlossen, da hier extreme Kräfte auf die Rohrbefestigung einwirken würden)
  • den natürlichen Leitungsverlauf (durch Richtungsänderungen), Biegeschenkel und/oder Dehnungsbögen, Leitungswinkel (L- oder Z-Bögen), U-Bögen, Lyra-­Bögen (Omega-Bögen)
  • in die Leitung eingebaute Kompensatoren.
Thermischer Längenausdehnungskoeffizient α ausgewählter Materialien.
Thermischer Längenausdehnungskoeffizient α ausgewählter Materialien.
Thermisch bedingte ­Längenausdehnung unterschiedlicher Rohrarten (mm).
Thermisch bedingte ­Längenausdehnung unterschiedlicher Rohrarten (mm).

Längenausdehnungen ohne ­Folgeschäden

In Rohrsystemen mit häufigen Richtungswechseln (z.B. L- oder Z-Bögen) ist die Längenausdehnung der einzelnen Teilstrecken meist so gering, dass sie über die Befestigung (Gewindestangen, Schallschutzeinlage der Rohrschelle) aufgefangen werden kann. Ist ein häufiger Richtungswechsel nicht gegeben, können unter Einsatz von U- bzw. Lyra-Bögen Dehnungsschenkel erzeugt werden. Reicht das dafür vorzusehende Platzangebot nicht aus, müssen Kompensatoren in die Rohrleitung eingebaut werden. Diese nehmen Bewegungen des Rohres auf und gleichen sie aus. Bei der Planung und Montage von Kompensatoren ist auch der Anlageninnendruck von Bedeutung.

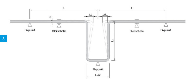
Berechnung eines Biegeschenkels

Um Flexibilität zu garantieren, bleibt ein sogenannter Biegeschenkel frei. Wie groß er sein muss, hängt dabei von der aufzunehmenden maximalen Längenänderung, vom Material der Rohrleitung und vom Leitungsdurchmesser ab (Bild 6). Die Mindestlänge des Biegeschenkels Lb berechnet man wie folgt:

Lb = K x √da x ΔL [mm]

Lb = Länge des Biegeschenkels [mm]

K = Materialkonstante (da materialabhängig vom Rohrhersteller einzuholen)

da = Außendurchmesser des Rohres [mm]

ΔL = max. Längenänderung des Rohres [m]

Abbildung: Biegeschenkel.
Abbildung: Biegeschenkel.

Berechnung der Festpunktkraft

Bei Rohrleitungen mit großer Ausdehnung werden Fixpunkte eingesetzt. Sie führen die Ausdehnung in Richtung eines Kompensators oder eines Dehnungsbogens, um auftretenden Kräften entgegenzuwirken. An einem neutralen Punkt installiert, bieten sie Rohrleitungen in beiden Richtungen vom Fixpunkt aus Spielraum. Zwischen den Fixpunkten montierte Gleitstücke ermöglichen dem Rohr freie Ausdehnung. Diese Gleitpunkte (Gleitrohrschellen oder -führungen) bilden schiebende Halterungen zwischen Festpunkten. Dabei ist zu beachten, dass ein Gleitwiderstand auftritt und die dadurch entstehenden Kräfte auch vom Fixpunkt aufgenommen werden müssen. Bei einem Dehnungsbogen ist die Distanz der ersten Führungsschelle bis zum Bogen äußerst wichtig. Je kleiner die ­Distanz, desto größer sind die benötigten Kräfte, um den Bogen zu biegen und die Rohrausdehnung aufzunehmen. Die dabei entstehenden Kräfte werden auf den Fixpunkt übertragen. Zur Auswahl des richtigen Fixpunktes muss man Folgendes kennen:

  • Material des Rohres
  • Durchmesser und Wandstärke des Rohres
  • die Betriebsbedingungen, insbesondere Minimal- und Maximaltemperatur
  • den Maximaldruck im Rohrinneren etwa beim Einbau von Kompensatoren. Entsprechende Berechnungsformeln samt erläuternden Beispielen finden Sie in den Extras.

Wärme- und Schallübertragung der Rohrbefestigungen

Schallschutz in Gebäuden und seine Auswirkungen auf Wohlbefinden und Gesundheit der Menschen rückt seit Jahren immer mehr in den Mittelpunkt. Wie sehr Geräusche übertragen und ausgebreitet werden, beeinflussen in Leitungen, Armaturen und anderen Geräten der Haustechnik folgende Faktoren:

  • Grundriss des Gebäudes
  • Bauart und die Baustoffe des Gebäudes
  • Leitungsführung
  • Baustoffe und Bauteile der haustechnischen Anlage
  • Verbund von Installation und Bauwerk
  • Betriebsbedingungen
  • Bedienung durch den Nutzer.

Schalldämmung in Gebäuden findet dadurch statt, dass ein Hindernis den Schall mindert, etwa

  • eine massive Wand bei Luftschall
  • eine weiche Befestigung bei Körperschall, zum Beispiel Schallschutzeinlagen in Rohrschellen.

Bei der Befestigung von Rohren für Trinkwasserinstallationen ist darauf zu achten, dass die Rohrschellen die Anforderungen der DIN 4109 mit witterungs-, alterungs- und UV-­beständigen Einlagen erfüllen und entsprechende Zertifikate über die Gummiqualität der Einlagen besitzen. Ein Problem für jeden Installateur stellte lange Zeit der Schallschutz bei der Befestigung von Abwasserleitungen aus Guss oder Kunststoff dar. Heute gibt es Lösungen für körperschallgedämmte Stützbefestigungen für Gusseisen- und Kunststoff-Abwasserleitungen. Montagen mit solchen Befestigungen stellen die akustische Entkopplung vom Baukörper sicher.

Schienensysteme sparen Zeit

Einzelbefestigungen von Rohren, zum Beispiel mit einem in eine Stahlbetondecke gesetzten Einschlaganker, einem Gewindestab oder -stift oder einer Rohrschelle, finden sich häufig bei kleineren Bauvorhaben wie Ein- und Zweifamilienwohnhäusern. Als ökonomischer, da bis zu 40 % zeitsparender als Einzelmontagen, und deutlich montagefreundlicher erweisen sich Schienenmontagesysteme. Sie sind deshalb besonders bei größeren Objekten wie Wohn-, Gewerbe- oder Industrieanlagen und komplexen Rohrinstallationen gefragt, wenn mehrere Rohrleitungen nebeneinander verlegt werden.

Bei der Schienenmontage wird eine Profilschiene oder eine Konsole an Decke oder Wand fixiert, an der alle Rohrleitungen mit Montagezubehör wie Hammerkopfschrauben und daran montierte Rohrschellen befestigt werden (Bild 7). Der Zeitvorteil ergibt sich einmal durch die Schienenmontage: Mit Befestigungsschrauben und Dübeln am Baukörper wie Wand oder Decke angebracht, ­ermöglicht sie im Gegensatz zur Einzelmontage weitere Befestigungsabstände und benötigt weniger Bohrungen. Außerdem sind Befestigungspunkte, im Gegensatz zu Einzelbefestigungen mit Dübel, Gewindestange und Rohrschelle, nachträglich ohne weiteres Bohren veränderbar. Zum Zubehör von Schienensystemen zählen zum Beispiel Schiebemuttern, Hammerkopfschrauben, Kugelgelenksätze und Schienen- bzw. Gelenkverbinder. Gebrauchsfertig vormontiert an den verwendeten Schienen und Wandkonsolen erhöhen sie dabei zusätzlich den Montage- und Zeitvorteil.

Einsetzen, Eindrehen, beliebig positionieren und festziehen — mit ein paar Handgriffen sitzt die Befestigung am gewählten Ort.
Einsetzen, Eindrehen, beliebig positionieren und festziehen — mit ein paar Handgriffen sitzt die Befestigung am gewählten Ort.

Fazit

Viele Faktoren beeinflussen richtig ausgeführte Rohrleitungsbefestigungen, so kann es keine starren Vorschriften für die Ausführung von Rohrleitungsbefestigungen geben. Sie müssen dem Installationsfall angepasst ausgewählt und eingebaut werden: je nach Art und Ausführung der Decken und Wände, der bau- und sicherheitstechnischen Auflagen sowie der technischen Anforderungen, die an die Befestigung gestellt werden müssen.

Extras

Eine Liste mit Formeln und Beispielen zur Berechnung eines Biegeschenkels oder der Festpunktkraft finden Sie zum Download unter
https://www.sbz-online.de/tags/extras-zum-heft

INFO

Definition Längenausdehnungskoeffizient

Der thermische Längenausdehnungskoeffizient α gibt die Längenänderung eines einen Meter langen Körpers bei einer Temperaturänderung von einem Kelvin an:

Die Längenausdehnung in Millimetern (mm) ergibt sich abhängig von der verlegten Länge in Metern (m) und der Temperaturdifferenz in Kelvin (K). Je länger das verlegte Rohr und je höher die Temperaturdifferenz, desto stärker die gesamte Ausdehnung.

Da Längenausdehnungskoeffizienten experimentell bestimmt werden, können die Werte in verschiedenen Tabellen unterschiedlich sein. Für besondere Rohrtypen ist der Koeffizient beim jeweiligen Rohrhersteller einzuholen.

Autoren

Simon Christer ist bei der Walraven GmbH zuständig für Anwendungstechnik.

Thomas Geißler ist bei der Walraven GmbH zuständig für Anwendungstechnik.