Die Gewinner des Europäischen Architekturpreises 2012 Energie + Architektur heißen „bogevischs buero architekten und stadtplaner gmbh“ und haben ihren Sitz in München. Sie überzeugten die Architekturpreis-Jury mit einem Pilotprojekt, das 2011 am westlichen Stadtrand von Ingolstadt fertig gestellt wurde. Alle zwei Jahre schreiben ZVSHK und Bund Deutscher Architekten (BDA) diesen mit 10000 Euro dotierten Architekturpreis aus, um eine nachhaltige Baukultur zu fördern. Denn Planung und Konstruktion eines Gebäudes sind die Schlüsselfaktoren für die Effizienzsteigerung des Energieeinsatzes in Europa. Mit hervorragenden Lösungen machen BDA und SHK-Handwerk öffentlich, wie die Integration energetischer Konzepte in die gestalterische Lösung gelingen kann.
Familien profitieren von Musterhaus
Der preiswürdige Gebäudekomplex in Ingolstadt ist ein Teil von insgesamt zehn Pilotprojekten, mit denen die Oberste Baubehörde München unter dem Sammelbegriff „e % – Energieeffizienter Wohnungsbau“ einen sparsamen und effizienten Umgang mit Energie im geförderten Wohnungsbau erprobt und auswertet. Dabei sollen die Anforderungen der EnEV 2009 um 40 bis 60 % unterschritten werden.
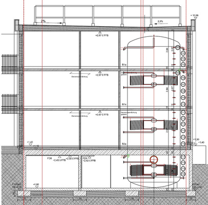
Gab es auf dem Ingolstädter Areal ursprünglich nur eine Seniorenwohnanlage von 1993, so hat inzwischen ein Masterplan dafür gesorgt, dass das Quartier durch etwa 145 familiengerechte Wohnungen ergänzt werden konnte. Zum Gebäudekonzept: Auf den kalten ungedämmten Stahlbeton-Parkdecks sitzen dichte, hoch wärmegedämmte Holzbauten im Niedrigstenergiestandard mit einem Heizenergiebedarf unter 20kWh/ (m 2 a). Die konsequente Trennung kalt/warm bzw. Beton/Holz vermeidet jede Kältebrücke.
Das Energiekonzept: Herzstück der Energieversorgungsanlage sind zwei zentrale Heizwasser-Pufferspeicher (270m 3 ), die in die Gebäude bis zur obersten Geschossdecke integriert und als spezielle Schichtspeicher ausgeführt sind. Die Wärmeversorgung wird vorrangig über Solarkollektoren (Gesamtfläche 850m 2 ) für 5750m 2 Wohnfläche gedeckt und erreicht einen solaren Deckungsgrad von 55 bis 60 %. Der solare Wärmeeintrag in die Pufferspeicher erfolgt über interne Glattrohrwärmetauscher, die hydraulisch speziell verschaltet sind. Durch dieses System ist ein hocheffizienter solarer Wärmeeintrag bei geringstem Regelaufwand in jedem Betriebspunkt der Solaranlage gewährleistet.
Zur Abdeckung des Restenergiebedarfes gibt es pro Bauabschnitt einen Fernwärmeanschluss. Die Wärmeverteilung erfolgt über ein Nahwärmenetz, wobei die hydraulischen Anlageteile so dimensioniert sind, dass eine Rücklauftemperatur von max. 35 °C in keinem Betriebspunkt der Anlage überschritten wird.
Warmwasser entsteht dezentral
Die Warmwasserbereitung erfolgt im Durchlaufprinzip in den einzelnen Wohnungen. In sogenannten Wohnungsstationen fließt über die zentrale Wärmeversorgung durchgehend Heizungswasser mit 60 °C ein und sorgt über Edelstahl-Wärmetauscher für Trinkwarmwasser mit 55 °C. Im Zapfbetrieb werden Heizwasser-Rücklauftemperaturen von unter 30 °C erreicht, was wiederum die Effizienz der Solaranlage steigert. Weil die Wohnanlage im Niedrigstenergiestandard ausgeführt ist, sorgen insgesamt vier zentrale Lüftungsanlagen mit Wärmetauscher für einen kontrollierten Luftaustausch.
Zitat aus der Beurteilung der Jury: „Durch die klare und kompakte Bauweise ist es gelungen, eine energetisch günstige und flächensparende, verdichtete Siedlungsform zu schaffen.“ Alle Informationen zum Preisgewinn sind in einer Dokumentation zusammengefasst, die sich unter https://www.zvshk.de/ herunterladen lässt.
Fünf Auszeichnungen
Neben dem Preisträger entschied sich die Jury, aus den insgesamt 57 eingereichten Objekten weitere überzeugende Konzepte durch Auszeichnung hervorzuheben:
- Realschule in Dachau im Passivhausstandard – aus der Begründung der Jury zum Projekt von Diezinger & Kramer Architekten (Eichstätt): Durch die kontrollierte Be- und Entlüftung des Gebäudes reduzieren sich die Wärmeverluste auf ein Minimum und stellen mit den guten Raumkonditionen beste Lernbedingungen dar. Die örtlichen Energiequellen werden optimal genutzt.
- Technische Universität München, Gebäude 0505 – aus der Begründung der Jury zum Projekt von Hild und K Architekten BDA (München): Im Innern überrascht die ganzheitliche Ausformung aus Alt und Neu. Daneben garantiert ein durchdachtes Energiekonzept ein den Anforderungen an einen Neubau entsprechend energetisch optimiertes Gebäude, das erneuerbare Energien mit einbezieht.
- Wohn- und Werkstattgebäude Klavier Matz in Öhningen/Schweiz. Zur Gebäudetechnik gehören Lüftungs-Wärmepumpe, Solarthermie (Fassade) sowie Photovoltaikanlage (Flachdach) – aus der Begründung der Jury zum Projekt von Schaller + Sternagel Architekten (Allensbach): Die Nutzung erneuerbarer Energien und die Verwendung von Baustoffen aus nachwachsenden Rohstoffen unterstreichen die Nachhaltigkeit der gesamten Planung.
- Kunstmuseum in Ravensburg – aus der Begründung der Jury zum Projekt des Architekturbüros Lederer Ragnarsdóttir Oei (Stuttgart): Das Museum wurde in Passivbauweise errichtet, wobei die geforderte Luftfeuchtigkeit von 50 % in allen Ausstellungsräumen eine hohe Herausforderung darstellte. Die intelligent in das Gesamtkonzept integrierte Technik konnte auf das notwendige Maß beschränkt werden.
- Bundesministerium für Umwelt in Berlin – aus der Begründung der Jury zum Projekt von Jürgen Pleuser Architekten (Berlin): Das ökologisch energetische Konzept zeigt richtungsweisende Formen der Optimierung. Der Neubau als Passivhaus, der Altbau im Niedrigenergiehausstandard mit einem um 60 % gesenkten Energiebedarf. Brennstoffzellen, Photovoltaik, Fernwärme und Fernkälte aus KWK und Geothermie sowie Abwasserwärme-Rückgewinnung zeigen Modellcharakter.
Sechs Anerkennungen
Weitere Konzepte erhielten eine besondere Anerkennung der Jury:
- Kinderhaus mit Hort und Mensa in Unterföhring (Hirner & Riehl Architekten BDA und Stadtplaner, München)
- Hauptverwaltung der Daniel Swarovski Corporation in Männedorf/Schweiz (ingenhoven architects international, Männedorf/Schweiz)
- Deutsche Börse in Eschborn (KSP Jürgen Engel Architekten GmbH, Frankfurt)
- Zentralarchiv der Elektrizitätsgesellschaft EDF in Bure/Frankreich (LAN Architecture, Paris)
- Erweiterungsbau für den Bayerischen Landtag im Nordhof des Maximilianeums in München (Léon Wohlhage Wernik Gesellschaft von Architekten mbH, Berlin)
- Zentrum für virtuelles Engineering am Fraunhofer Institut in Stuttgart (UNStudio, Amsterdam)
Info
Broschüre zum Wettbewerb als Download
Den Architekturpreis 2012 „Energie + Architektur“ hat der ZVSHK in einer 20-seitigen Broschüre dokumentiert. Das Gewinner-Objekt, die fünf Anerkennungen sowie die sechs Auszeichnungen sind darin näher beschrieben und bebildert. Auch die Mitglieder der Jury sowie alle eingereichten Objekte sind namentlich erwähnt. Diese weiterführenden Infos stehen online unter https://www.zvshk.de/ als PDF zum Download bereit.
 
     
     
     
     
     
     
     
     
     
     
    